Информационная система
«Ёшкин Кот»

Скачать базу одним архивом
Скачать обновления
История создания базы
Карта сайта

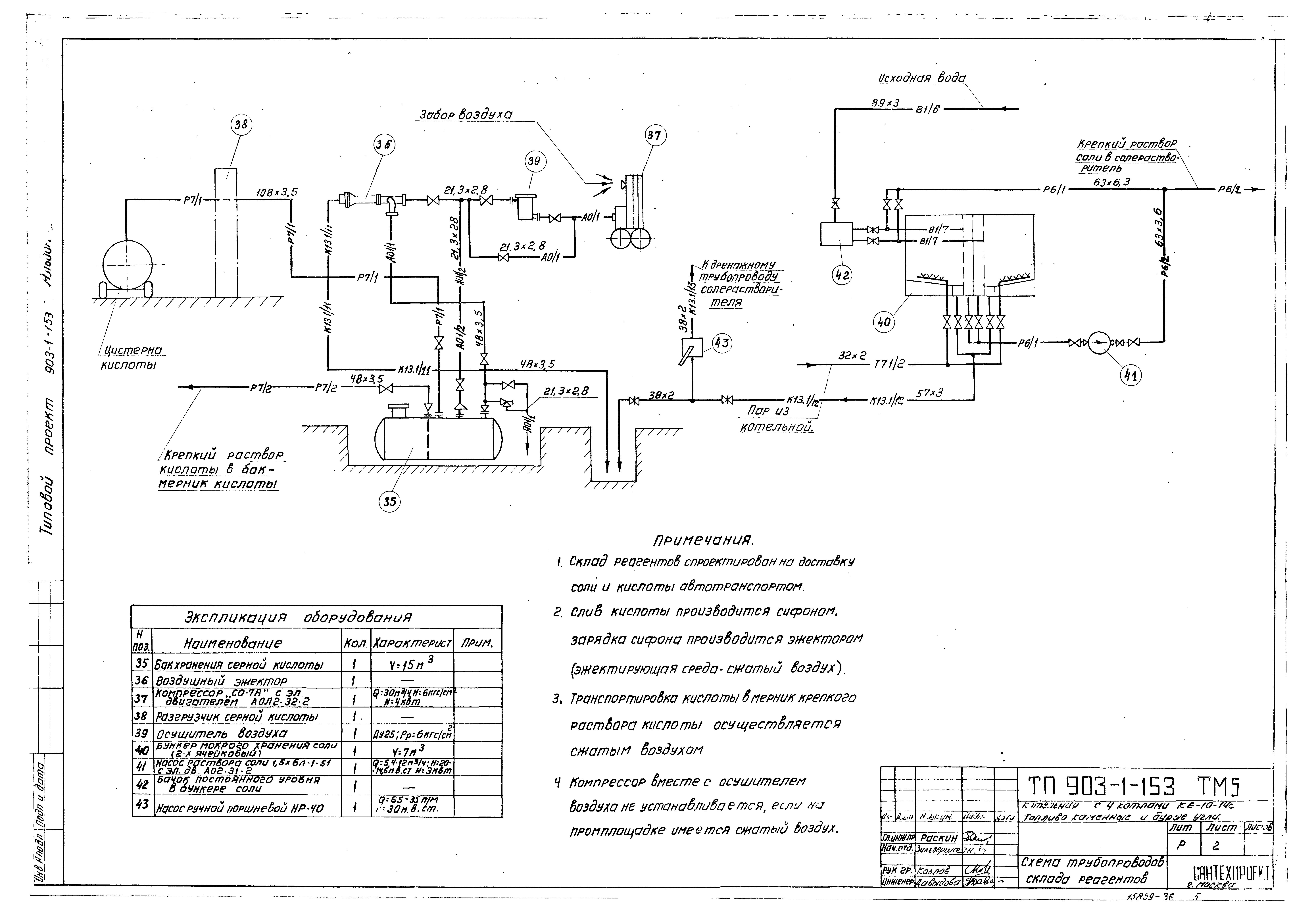
Скачать Типовой проект 903-1-153 Альбом IX.82. Склад реагентов (все части)

Дата актуализации: 10.08.2017

Типовой проект 903-1-153

Альбом IX.82. Склад реагентов (все части)

Обозначение: Типовой проект 903-1-153
Обозначение англ: 903-1-153
Статус:заменен
Название рус.:Альбом IX.82. Склад реагентов (все части)
Дата добавления в базу:01.09.2013
Дата актуализации:05.05.2017
Дата введения:01.01.1990
Разработан: ГПИ Сантехпроект Госстроя СССР
Минтяжмаш СССР
Союзпроммеханизация
Утверждён:13.08.1982 ГПИ Сантехпроект (119)
Расположен в:Техническая документация Строительство Справочные документы Типовые строительные конструкции, изделия и узлы Общероссийский строительный каталог Промышленные предприятия, здания и сооружения Здания и сооружения санитарно-технические Теплоснабжение Котельные установки Закрытые системы теплоснабжения Топливо - каменные и бурые угли
Заменяет собой:
Чем заменён:
Типовой проект 903-1-153Типовой проект 903-1-153Типовой проект 903-1-153Типовой проект 903-1-153Типовой проект 903-1-153Типовой проект 903-1-153Типовой проект 903-1-153Типовой проект 903-1-153Типовой проект 903-1-153Типовой проект 903-1-153Типовой проект 903-1-153Типовой проект 903-1-153Типовой проект 903-1-153Типовой проект 903-1-153Типовой проект 903-1-153Типовой проект 903-1-153Типовой проект 903-1-153Типовой проект 903-1-153Типовой проект 903-1-153Типовой проект 903-1-153Типовой проект 903-1-153Типовой проект 903-1-153Типовой проект 903-1-153Типовой проект 903-1-153Типовой проект 903-1-153Типовой проект 903-1-153Типовой проект 903-1-153

© 2013 Ёшкин Кот :-) Карта сайта