Информационная система
«Ёшкин Кот»

Скачать базу одним архивом
Скачать обновления
История создания базы
Карта сайта

Скачать Типовой проект 903-1-153 Альбом II. Чертежи индустриальных строительных конструкций и изделий котельной

Дата актуализации: 10.08.2017

Типовой проект 903-1-153

Альбом II. Чертежи индустриальных строительных конструкций и изделий котельной

Обозначение: Типовой проект 903-1-153
Обозначение англ: 903-1-153
Статус:заменен
Название рус.:Альбом II. Чертежи индустриальных строительных конструкций и изделий котельной
Дата добавления в базу:01.10.2014
Дата актуализации:05.05.2017
Дата введения:13.08.1982
Оглавление:Содержание альбома
Выборка стали
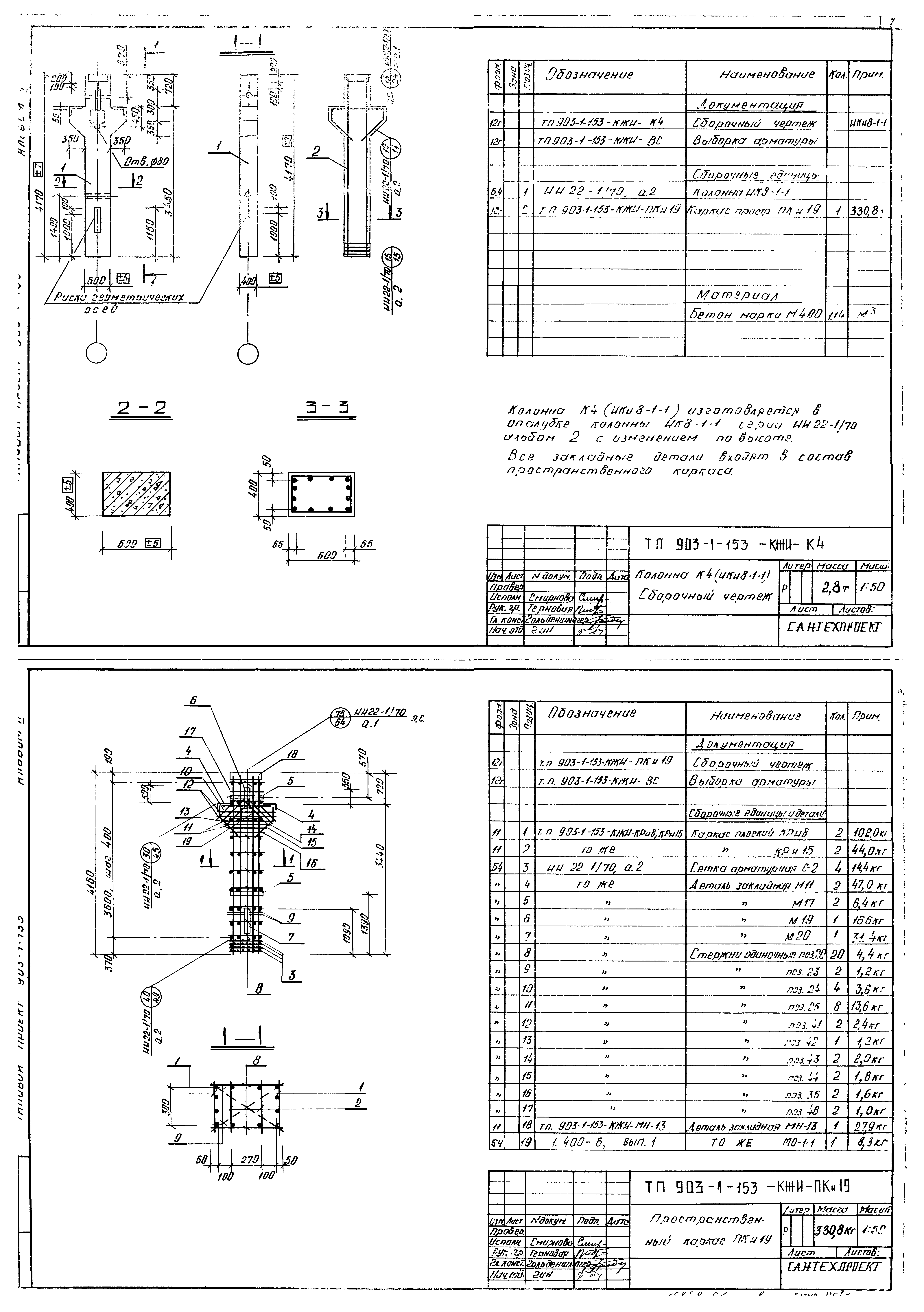
Колонна. Каркас пространственный
Связь металлическая
Связь вертикальная
Ригель
Анкер
Колонна
Каркас пространственный
Балка
Диафрагма жесткости
Лестничный марш
Изделие закладное. Каркас плоский
Сетка арматурная
Связь металлическая
Угловой блок
Плита
Каркас плоский. Сетка арматурная
Каркас плоский одиночный стержень
Каркас плоский. Деталь закладная
Пластина. Анкер
Стойка фахверка
Щит стальной
Деталь закладная
Изделие соединительное
Сетка арматурная
Каркас пространственный
Сетка арматурная
Каркас пространственный
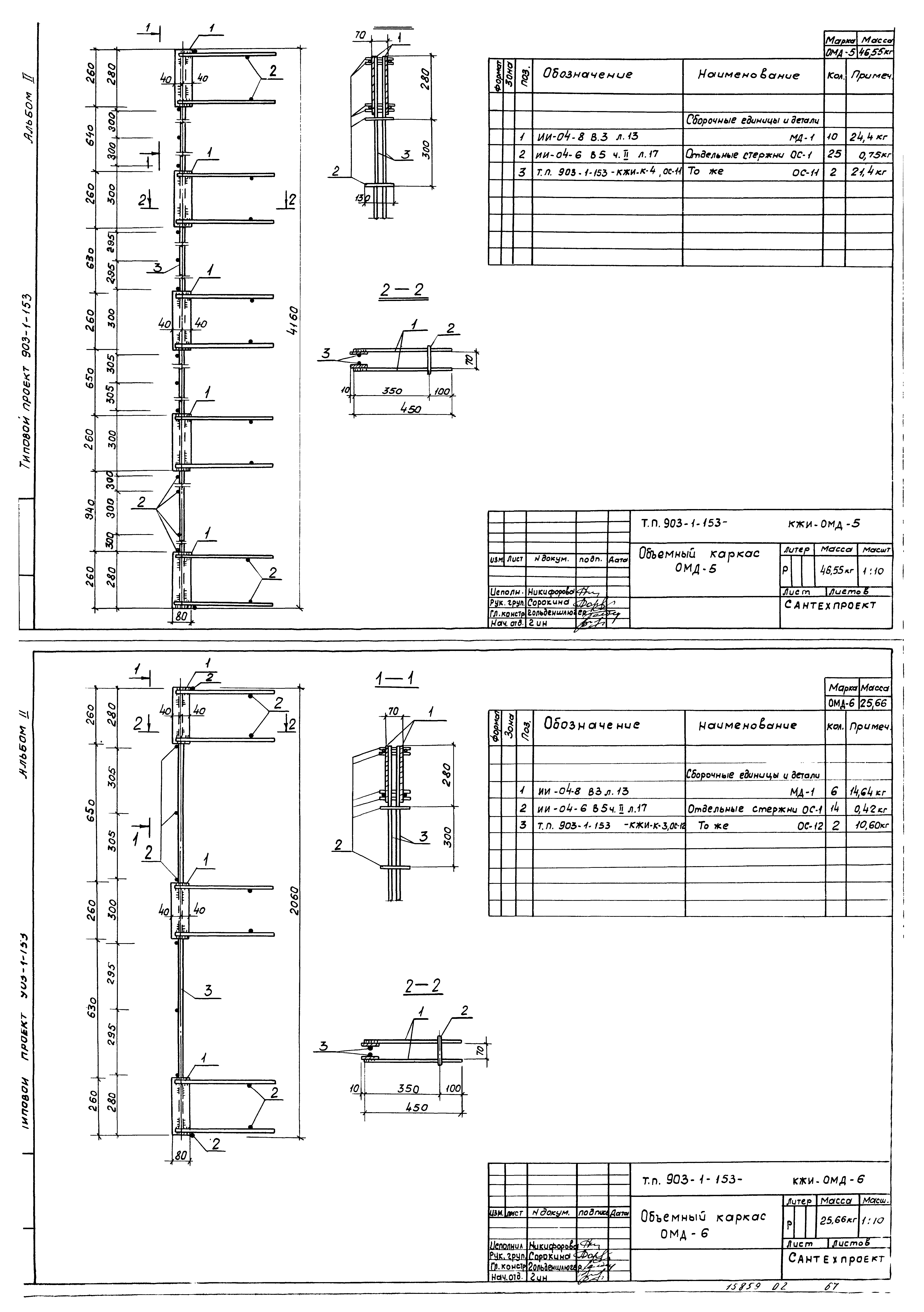
Каркас объемный
Выборка стали
Сетка арматурная
Каркас объемный
Изделие закладное. Изделие соединительное
Анкер
Разработан: ГПИ Сантехпроект Госстроя СССР
Минтяжмаш СССР
Союзпроммеханизация
Утверждён:23.03.1979 ГПИ Сантехпроект (47)
Расположен в:Техническая документация Строительство Справочные документы Типовые строительные конструкции, изделия и узлы Общероссийский строительный каталог Промышленные предприятия, здания и сооружения Здания и сооружения санитарно-технические Теплоснабжение Котельные установки Закрытые системы теплоснабжения Топливо - каменные и бурые угли
Заменяет собой:
  • Типовой проект 903-1-106
Чем заменён:
Типовой проект 903-1-153Типовой проект 903-1-153Типовой проект 903-1-153Типовой проект 903-1-153Типовой проект 903-1-153Типовой проект 903-1-153Типовой проект 903-1-153Типовой проект 903-1-153Типовой проект 903-1-153Типовой проект 903-1-153Типовой проект 903-1-153Типовой проект 903-1-153Типовой проект 903-1-153Типовой проект 903-1-153Типовой проект 903-1-153Типовой проект 903-1-153Типовой проект 903-1-153Типовой проект 903-1-153Типовой проект 903-1-153Типовой проект 903-1-153Типовой проект 903-1-153Типовой проект 903-1-153Типовой проект 903-1-153Типовой проект 903-1-153Типовой проект 903-1-153Типовой проект 903-1-153Типовой проект 903-1-153Типовой проект 903-1-153Типовой проект 903-1-153Типовой проект 903-1-153Типовой проект 903-1-153Типовой проект 903-1-153Типовой проект 903-1-153Типовой проект 903-1-153Типовой проект 903-1-153Типовой проект 903-1-153Типовой проект 903-1-153Типовой проект 903-1-153Типовой проект 903-1-153Типовой проект 903-1-153Типовой проект 903-1-153Типовой проект 903-1-153Типовой проект 903-1-153Типовой проект 903-1-153Типовой проект 903-1-153Типовой проект 903-1-153Типовой проект 903-1-153Типовой проект 903-1-153Типовой проект 903-1-153Типовой проект 903-1-153Типовой проект 903-1-153Типовой проект 903-1-153Типовой проект 903-1-153Типовой проект 903-1-153Типовой проект 903-1-153Типовой проект 903-1-153Типовой проект 903-1-153Типовой проект 903-1-153Типовой проект 903-1-153Типовой проект 903-1-153Типовой проект 903-1-153Типовой проект 903-1-153Типовой проект 903-1-153Типовой проект 903-1-153Типовой проект 903-1-153Типовой проект 903-1-153Типовой проект 903-1-153Типовой проект 903-1-153Типовой проект 903-1-153Типовой проект 903-1-153Типовой проект 903-1-153Типовой проект 903-1-153Типовой проект 903-1-153Типовой проект 903-1-153

© 2013 Ёшкин Кот :-) Карта сайта