Информационная система
«Ёшкин Кот»

Скачать базу одним архивом
Скачать обновления
История создания базы
Карта сайта

Скачать Типовой проект 705-1-197.86 Альбом 1. Пояснительная записка. Технология производства. Нетиповые технологические конструкции. Эскизные чертежи. Воздухоснабжение. Связь и сигнализация. Конструкции металлические покрытия. Антикоррозийная защита строительных конструкций

Дата актуализации: 10.08.2017

Типовой проект 705-1-197.86

Альбом 1. Пояснительная записка. Технология производства. Нетиповые технологические конструкции. Эскизные чертежи. Воздухоснабжение. Связь и сигнализация. Конструкции металлические покрытия. Антикоррозийная защита строительных конструкций

Обозначение: Типовой проект 705-1-197.86
Обозначение англ: 705-1-197.86
Статус:действует
Название рус.:Альбом 1. Пояснительная записка. Технология производства. Нетиповые технологические конструкции. Эскизные чертежи. Воздухоснабжение. Связь и сигнализация. Конструкции металлические покрытия. Антикоррозийная защита строительных конструкций
Дата добавления в базу:01.09.2013
Дата актуализации:05.05.2017
Оглавление:ТП 705-1-197.86 Содержание альбома
ТП 705-1-197.86-ПЗ Пояснительная записка
ТП 705-1-197.86-ТХ Технологические чертежи
ТП 705-1-197.86-ТХ-1 Общие данные (начало)
ТП 705-1-197.86-ТХ-1 Общие данные (окончание)
ТП 705-1-197.86-ТХ-1 План
ТП 705-1-197.86-ТХ-1 Разрезы А-А;Б-Б
ТП 705-1-197.86-ТХ-1 Разрезы В-В;Г-Г
ТП 705-1-197.86-ТХ-1 Схема установки первой группы вагонов бункерного типа под разгрузку
ТП 705-1-197.86-ТХ-1 Схема установки второй группы вагонов бункерного типа под разгрузку
ТП 705-1-197.86-ТХ-1 Схема образования отвалов при разгрузке вагонов на повышенном ж.д. пути
ТП 705-1-197.86-ТХ-1 Схема расположения технологических зон и участков
ТП 705-1-197.86-ТХ-1 Установка крана мостового грейферного г/п 3.2 т в химстойком исполнении
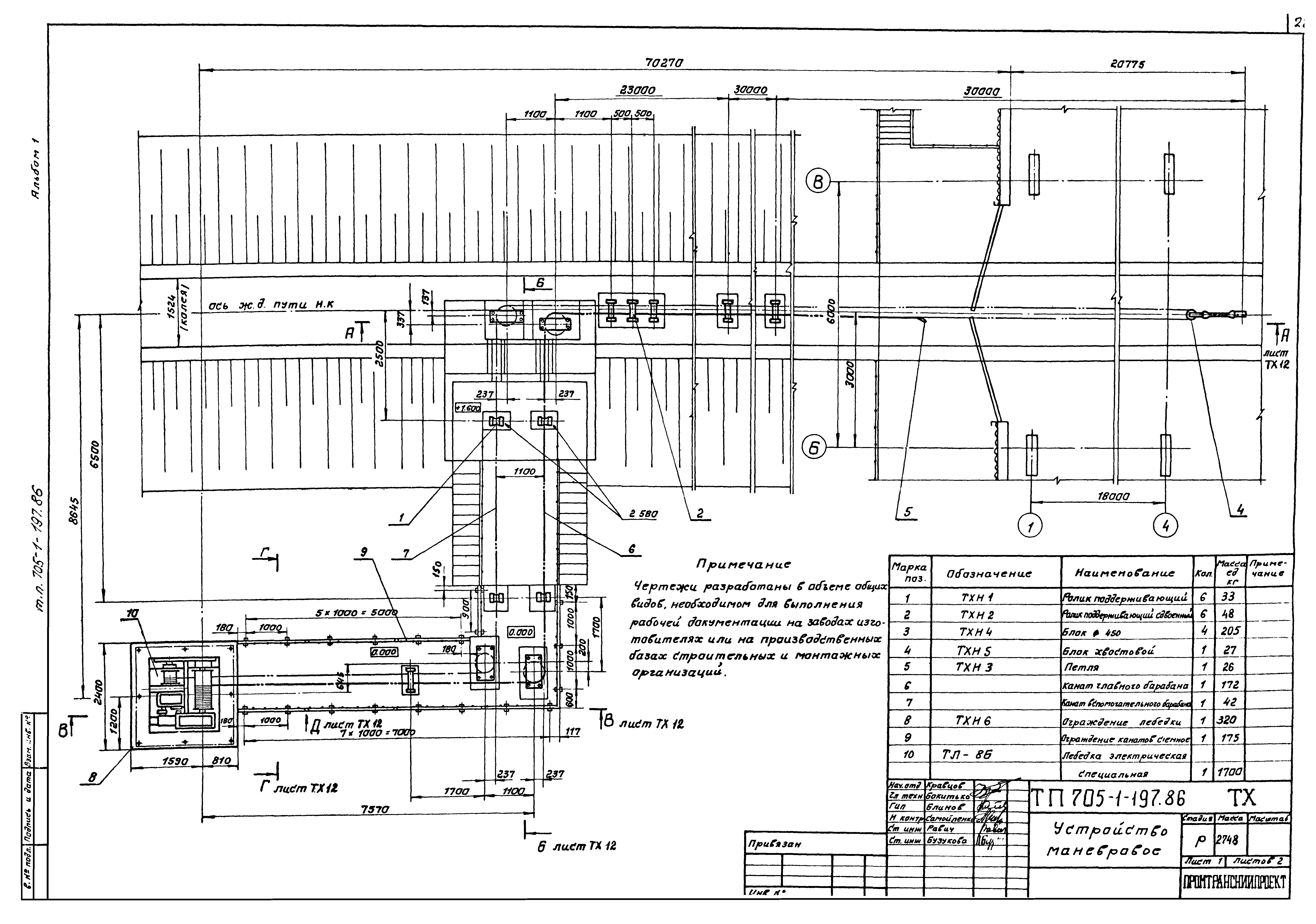
ТП 705-1-197.86-ТХ-1 Устройство маневровое
ТП 705-1-197.86-ТХ-1 Разрезы А-А;Б-Б;В-В,Г-Г. Вид Д
ТП 705-1-197.86-ТХН-1 Нетиповые технологические конструкции. Эскизные чертежи
ТП 705-1-197.86-ТХН-1 Ролик поддерживающий
ТП 705-1-197.86-ТХН-1 Ролик поддерживающий сдвоенный
ТП 705-1-197.86-ТХН-1 Петля
ТП 705-1-197.86-ТХН-1 Блок ø 450
ТП 705-1-197.86-ТХН-1 Блок хвостовой
ТП 705-1-197.86-ТХН-1 Ограждение лебедки
ТП 705-1-197.86-ВС Чертежи воздухоснабжения
ТП 705-1-197.86-ВС-1 Общие данные
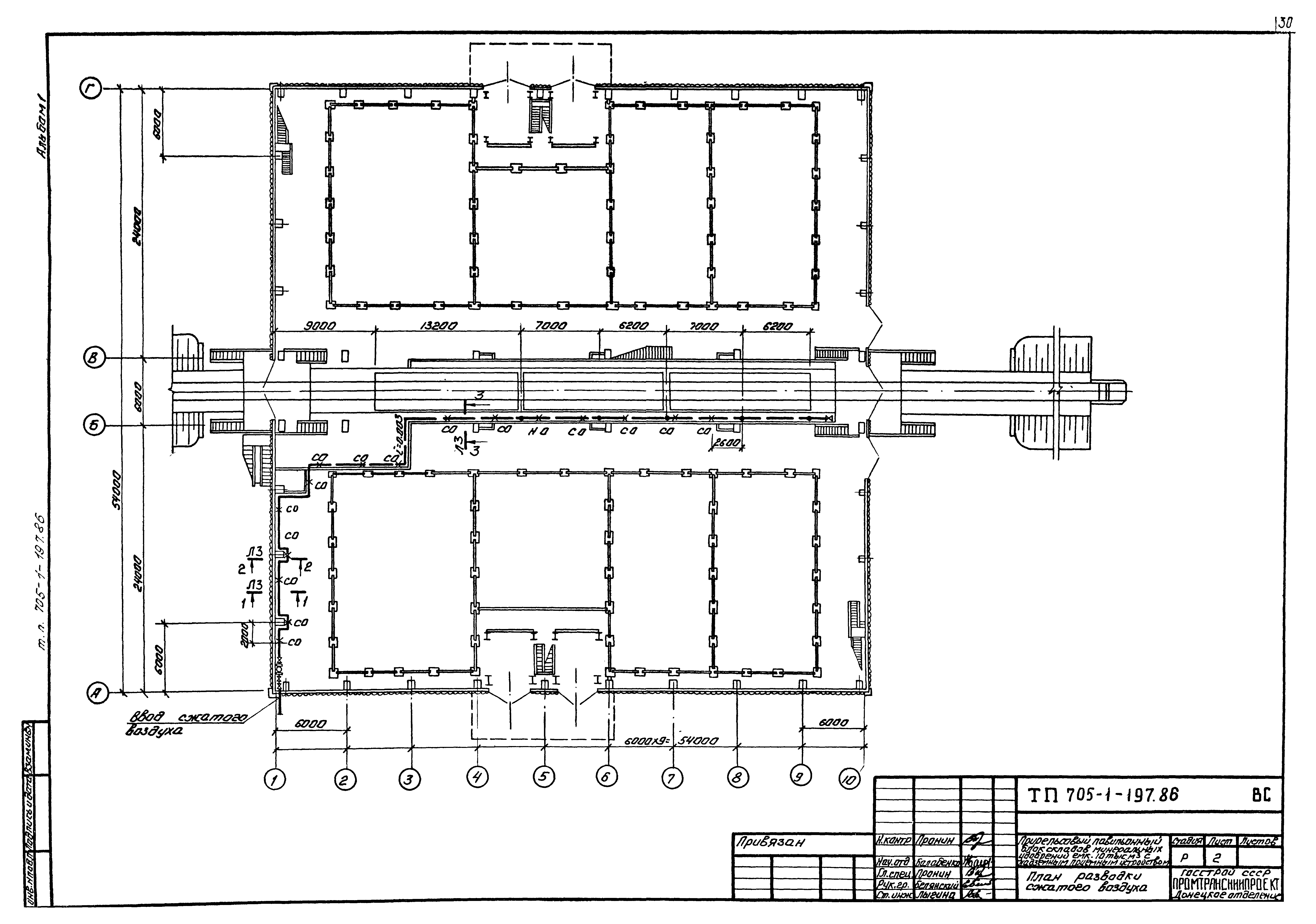
ТП 705-1-197.86-ВС-2 План разводки сжатого воздуха
ТП 705-1-197.86-ВС-3 Схема трубопроводов сжатого воздуха. Разрезы
ТП 705-1-197.86-ВСН Нетиповые конструкции воздухоснабжения. Эскизные чертежи
ТП 705-1-197.86-ВСН1 Водоотделитель
ТП 705-1-197.86-ВСН2 Рукав резинотекстильный в сборе
ТП 705-1-197.86-СС Чертежи связи и сигнализации
ТП 705-1-197.86-СС-1 Общие данные
ТП 705-1-197.86-СС-2 Схема связи. План размещения устройств связи
ТП 705-1-197.86-КМ1 Чертежи конструкций металлических покрытия
ТП 705-1-197.86-КМ1-1 Общие данные (начало)
ТП 705-1-197.86-КМ1-2 Общие данные (продолжение)
ТП 705-1-197.86-КМ1-3 Общие данные (продолжение)
ТП 705-1-197.86-КМ1-4 Общие данные (окончание)
ТП 705-1-197.86-КМ1-5 План покрытия. Разрезы 1-1...6-6
ТП 705-1-197.86-КМ1-6 Б1. Узел 10...12
ТП 705-1-197.86-КМ1-7 Узел 1...3
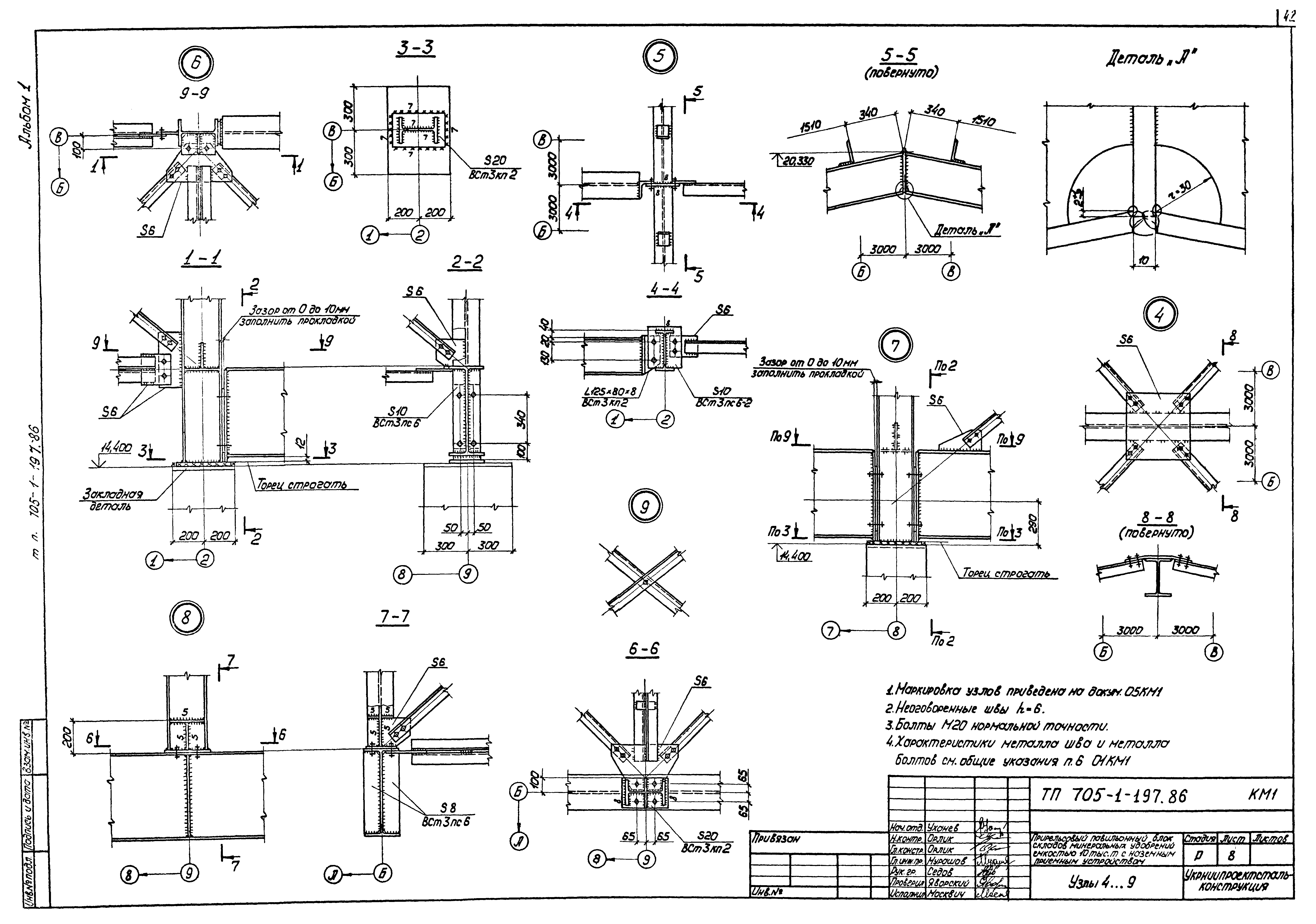
ТП 705-1-197.86-КМ1-8 Узел 4...9
ТП 705-1-197.86-АЗ Чертежи антикоррозионной защиты строительных конструкций
ТП 705-1-197.86-АЗ-1 Общие данные (начало)
ТП 705-1-197.86-АЗ-2 Общие данные (окончание)
ТП 705-1-197.86-АЗ-3 План на отм. 0.000. Узел 1
ТП 705-1-197.86-АЗ-4 Разрезы 1-1,2-2,3-3,4-4. Узлы 2,3
Разработан: Промтрансниипроект
Утверждён:09.11.1982 Минсельхоз СССР (USSR Minselkhoz 70)
Расположен в:Техническая документация Строительство Справочные документы Типовые строительные конструкции, изделия и узлы Общероссийский строительный каталог Сельскохозяйственные предприятия, здания и сооружения Предприятия, здания и сооружения по ремонту, техническому обслуживанию, хранению и обеспечению горюче-смазочными материалами сельхозтехники Прирельсовые склады твердых минеральных удобрений
Типовой проект 705-1-197.86Типовой проект 705-1-197.86Типовой проект 705-1-197.86Типовой проект 705-1-197.86Типовой проект 705-1-197.86Типовой проект 705-1-197.86Типовой проект 705-1-197.86Типовой проект 705-1-197.86Типовой проект 705-1-197.86Типовой проект 705-1-197.86Типовой проект 705-1-197.86Типовой проект 705-1-197.86Типовой проект 705-1-197.86Типовой проект 705-1-197.86Типовой проект 705-1-197.86Типовой проект 705-1-197.86Типовой проект 705-1-197.86Типовой проект 705-1-197.86Типовой проект 705-1-197.86Типовой проект 705-1-197.86Типовой проект 705-1-197.86Типовой проект 705-1-197.86Типовой проект 705-1-197.86Типовой проект 705-1-197.86Типовой проект 705-1-197.86Типовой проект 705-1-197.86Типовой проект 705-1-197.86Типовой проект 705-1-197.86Типовой проект 705-1-197.86Типовой проект 705-1-197.86Типовой проект 705-1-197.86Типовой проект 705-1-197.86Типовой проект 705-1-197.86Типовой проект 705-1-197.86Типовой проект 705-1-197.86Типовой проект 705-1-197.86Типовой проект 705-1-197.86Типовой проект 705-1-197.86Типовой проект 705-1-197.86Типовой проект 705-1-197.86Типовой проект 705-1-197.86Типовой проект 705-1-197.86Типовой проект 705-1-197.86Типовой проект 705-1-197.86Типовой проект 705-1-197.86Типовой проект 705-1-197.86Типовой проект 705-1-197.86Типовой проект 705-1-197.86

© 2013 Ёшкин Кот :-) Карта сайта