Информационная система
«Ёшкин Кот»

Скачать базу одним архивом
Скачать обновления
История создания базы
Карта сайта

Скачать Серия ОТУ 32-4717 Выпуск 2. Установка и подключение СТП и КТПМ. Изделия. Рабочие чертежи

Дата актуализации: 10.08.2017

Серия ОТУ 32-4717

Выпуск 2. Установка и подключение СТП и КТПМ. Изделия. Рабочие чертежи

Обозначение: Серия ОТУ 32-4717
Обозначение англ: Series ОТУ 32-4717
Статус:не определен законодательством
Название рус.:Выпуск 2. Установка и подключение СТП и КТПМ. Изделия. Рабочие чертежи
Дата добавления в базу:01.09.2013
Дата актуализации:05.05.2017
Дата введения:07.05.1997
Оглавление:ОТУ 32-4717-2.1 СТП-1,СТП-2. Установка и подключение на площадке и в выемке
ОТУ 32-4717-2.2 СТП-1,СТЛ-2. Установка и подключение на насыпи
ОТУ 32-4717-2.3 СТП-10. Установка и подключение на площадке
ОТУ 32-4717-2.4 СТП-10. Установка и подключение в выемке
ОТУ 32-4717-2.5 СТП-10. Установка и подключение на насыпи
ОТУ 32-4717-2.6 КТПМ-25. Установка и подключение на площадке. Схема 1
ОТУ 32-4717-2.7 КТПМ-25. Установка и подключение на площадке. Схема 2
ОТУ 32-4717-2.8 КТПМ-25. Установка и подключение на насыпи. Схема 1
ОТУ 32-4717-2.9 КТПМ-25. Установка и подключение на насыпи. Схема 2
ОТУ 32-4717-2.10 КТПМ-25. Установка и подключение в выемке.
ОТУ 32-4717-2.11 КТПМ-100, КТПМ-250, КТПМ-400. Установка и подключение на площадке. Схема 1
ОТУ 32-4717-2.12 КТПМ-100, КТПМ-250, КТПМ-400. Установка и подключение на площадке. Схема 2
ОТУ 32-4717-2.13 КТПМ-100, КТПМ-250, КТПМ-400. Установка и подключение на площадке. Схема 3
ОТУ 32-4717-2.14 КТПМ-100, КТПМ-250, КТПМ-400. Установка и подключение на насыпи. Схема 1
ОТУ 32-4717-2.15 КТПМ-100, КТПМ-250, КТПМ-400. Установка и подключение на насыпи. Схема 2
ОТУ 32-4717-2.16 КТПМ-100, КТПМ-250, КТПМ-400. Установка и подключение на насыпи. Схема 3
ОТУ 32-4717-2.17 КТПМ-100, КТПМ-250, КТПМ-400. Установка и подключение в выемке. Схема 1
ОТУ 32-4717-2.18 КТПМ-100, КТПМ-250, КТПМ-400. Установка и подключение в выемке. Схема 2
ОТУ 32-4717-2.19 КТПМ-100, КТПМ-250, КТПМ-400. Установка и подключение в выемке. Схема 3
ОТУ 32-4717-2.20 КТПМ-25. Установка и подключение на площадке при расположении проводов ДПР с одной стороны
ОТУ 32-4717-2.21 КТПМ-100, КТПМ-250, КТПМ-400. Установка и подключение на площадке при расположении проводов ДПР с одной стороны
ОТУ 32-4717-2.25 Перекидки проводов ДПР
ОТУ 32-4717-2.26 Анкеровка проводов на железобетонной опоре
ОТУ 32-4717-2.27 Двойное подвешивание проводов на ригеле жесткой поперечине
ОТУ 32-4717-2.28 Кронштейн А-1
ОТУ 32-4717-2.29 Хомут
ОТУ 32-4717-2.30 Накладка
ОТУ 32-4717-2.31 Балка
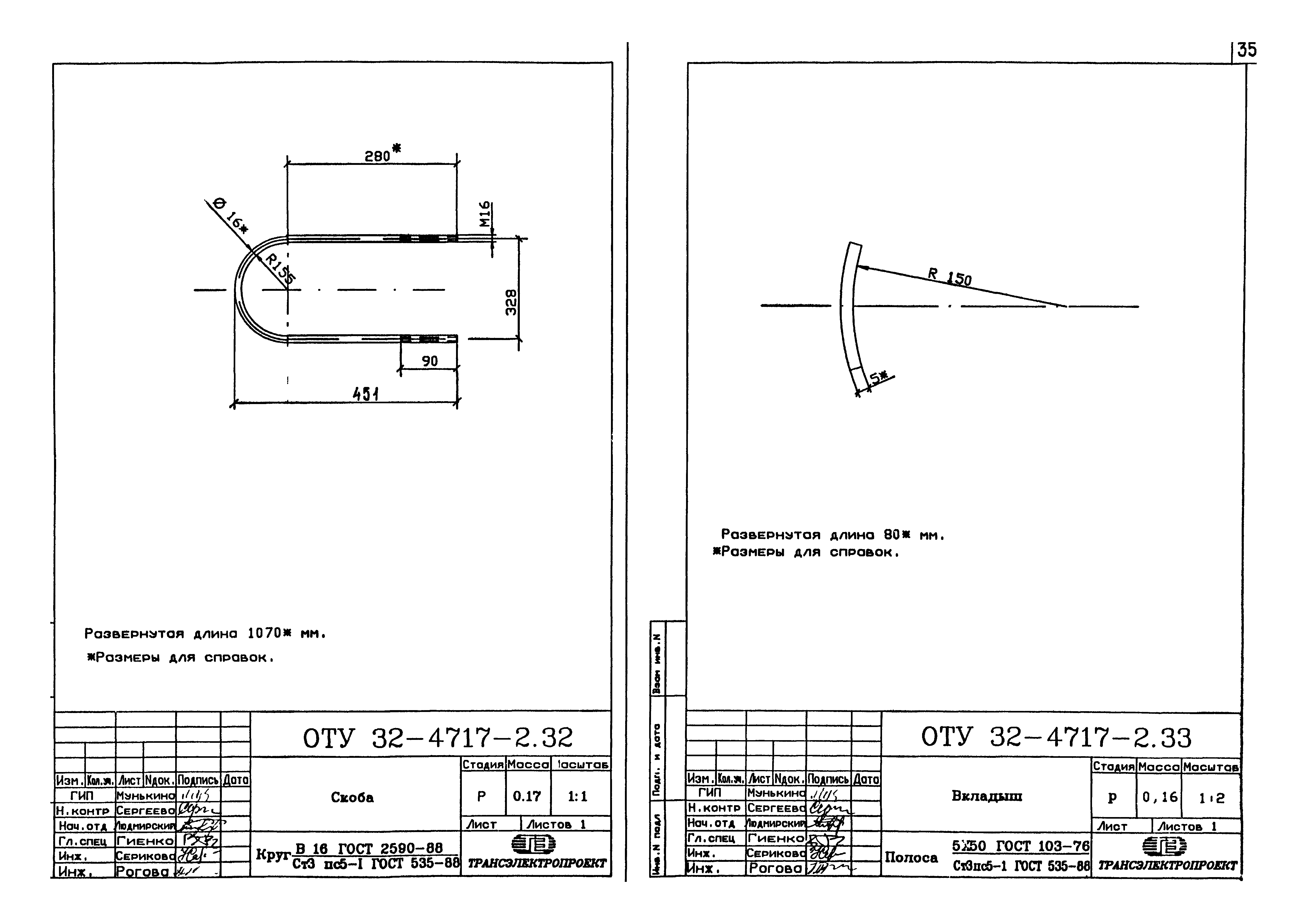
ОТУ 32-4717-2.32 Скоба
ОТУ 32-4717-2.33 Вкладыш
ОТУ 32-4717-2.34 Подвес
ОТУ 32-4717-2.35 Хомутик
ОТУ 32-4717-2.36 Кронштейн на ригеле
ОТУ 32-4717-2.37 Скоба
Разработан: Трансэлектропроект МПС
Утверждён:07.05.1997 Департамент электрификации и электроснабжения МПС РФ (14)
Расположен в:Техническая документация Строительство Справочные документы Типовые строительные конструкции, изделия и узлы Разработанные другими министерствами, ведомствами и организациями
Серия ОТУ 32-4717Серия ОТУ 32-4717Серия ОТУ 32-4717Серия ОТУ 32-4717Серия ОТУ 32-4717Серия ОТУ 32-4717Серия ОТУ 32-4717Серия ОТУ 32-4717Серия ОТУ 32-4717Серия ОТУ 32-4717Серия ОТУ 32-4717Серия ОТУ 32-4717Серия ОТУ 32-4717Серия ОТУ 32-4717Серия ОТУ 32-4717Серия ОТУ 32-4717Серия ОТУ 32-4717Серия ОТУ 32-4717Серия ОТУ 32-4717Серия ОТУ 32-4717Серия ОТУ 32-4717Серия ОТУ 32-4717Серия ОТУ 32-4717Серия ОТУ 32-4717Серия ОТУ 32-4717Серия ОТУ 32-4717Серия ОТУ 32-4717Серия ОТУ 32-4717Серия ОТУ 32-4717Серия ОТУ 32-4717Серия ОТУ 32-4717Серия ОТУ 32-4717Серия ОТУ 32-4717Серия ОТУ 32-4717Серия ОТУ 32-4717Серия ОТУ 32-4717Серия ОТУ 32-4717Серия ОТУ 32-4717Серия ОТУ 32-4717

© 2013 Ёшкин Кот :-) Карта сайта