Информационная система
«Ёшкин Кот»

Скачать базу одним архивом
Скачать обновления
История создания базы
Карта сайта

Скачать Серия ОТУ 32-4717 Выпуск 1. Схемы электрические принципиальные. Установочные чертежи. Рабочие чертежи

Дата актуализации: 10.08.2017

Серия ОТУ 32-4717

Выпуск 1. Схемы электрические принципиальные. Установочные чертежи. Рабочие чертежи

Обозначение: Серия ОТУ 32-4717
Обозначение англ: Series ОТУ 32-4717
Статус:не определен законодательством
Название рус.:Выпуск 1. Схемы электрические принципиальные. Установочные чертежи. Рабочие чертежи
Дата добавления в базу:01.09.2013
Дата актуализации:05.05.2017
Дата введения:07.05.1997
Оглавление:ОТУ 32-4717-1.ПЗ Пояснительной записка
ОТУ 32-4717-1.1 СТП-1,СТП-2. Схема электрическая принципиальная
ОТУ 32-4717-1.2 СТП-10. Схема электрическая принципиальная.
ОТУ 32-4717-1.3 КТПМ-25. Схема электрической принципиальная.
ОТУ 32-4717-1.4 КТПМ-100. Схема электрическая принципиальная.
ОТУ 32-4717-1.5 КТПМ-250, КТПМ-400. Схема электрическая принципиальная.
ОТУ 32-4717-1.6 Установка СТП-1,СТП-2 на опоре контактной сети
ОТУ 32-4717-1.7 Установка СТП-10 на стойках С1,85/10,1
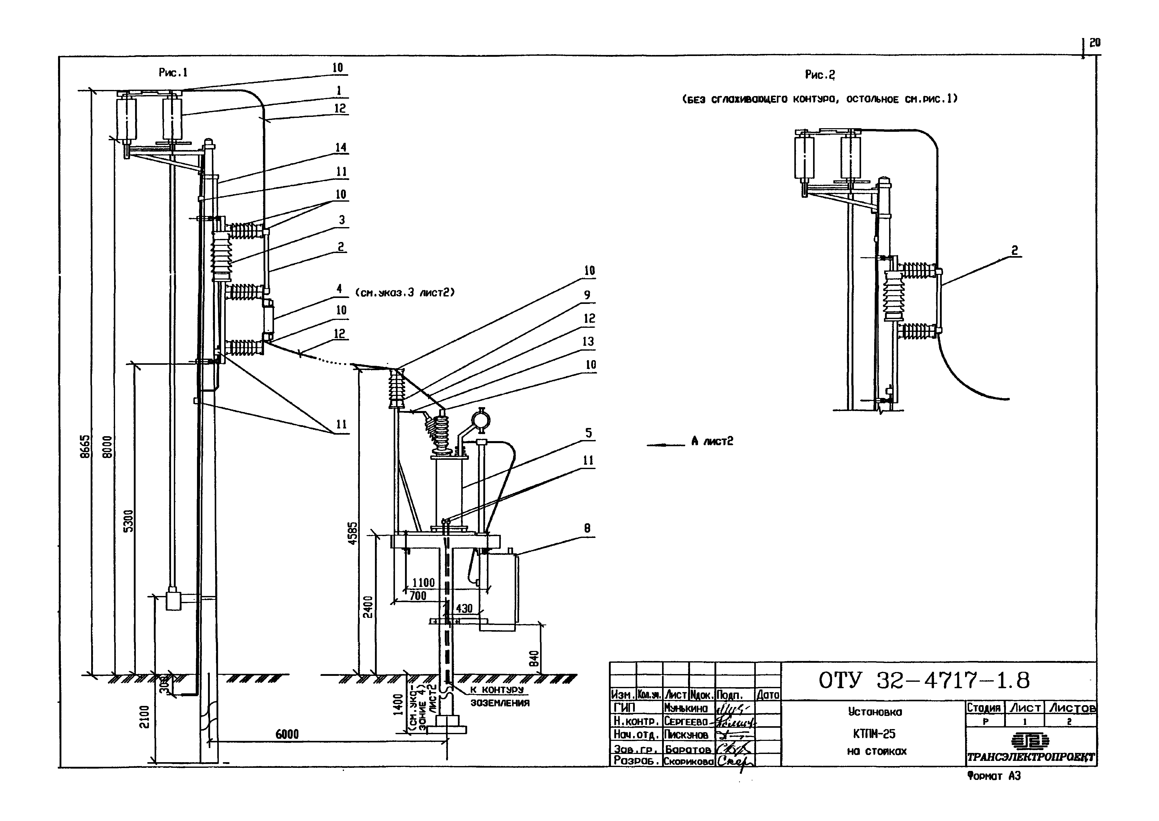
ОТУ 32-4717-1.8 Установка КТПМ-25 на стойках
ОТУ 32-4717-1.9 Установка КТПМ-100 на стойках
ОТУ 32-4717-1.10 Установка КТПМ-250, КТПМ-400. на стойках
ОТУ 32-4717-1.11 СТП-1,СТП-2, СТП-10, КТПМ-25. Заземляющее устройство
ОТУ 32-4717-1.12 КТПМ-100, КТПМ-250, КТПМ-400. Выравнивающий контур. Присоединение к рельсу и дроссель-трансформатору
ОТУ 32-4717-1.13 Заземляющее устройство нейтрали трансформатора
ОТУ 32-4717-1.14 СТП-1,СТП-2,СТП-10. Низковольтные кабельные выводы
ОТУ 32-4717-1.15 КТПМ-25. Низковольтные кабельные выводы.
ОТУ 32-4717-1.16 КТПМ-100, КТПМ- 250, КТПМ- 400. Низковольтные кабельные выводы .
ОТУ 32-4717-1.17 Установка кронштейна тип И-1, И-2 с изолятором
ОТУ 32-4717-1.18 Кронштейн тип И-1, И-2
ОТУ 32-4717-1.30 Установка разъединителя с ручным приводом на железобетонной опоре (с заземляющим ножом).
ОТУ 32-4717-1.31 Установка двухполюсного разъединителя.
ОТУ 32-4717-1.32 Кронштейн разъединителя.
ОТУ 32-4717-1.33 Кронштейн привода.
ОТУ 32-4717-1.34 Кронштейн ручного привода.
ОТУ 32-4717-1.35 Балка.
ОТУ 32-4717-1.36 Муфта соединительная разъединителя .
ОТУ 32-4717-1.37 Вал тип B-I, В-II.
ОТУ 32-4717-1.38 Ушко вала.
ОТУ 32-4717-1.39 Стакан.
ОТУ 32-4717-1.40 Скоба.
ОТУ 32-4717-1.41 Болт специальный.
ОТУ 32-4717-1.42 Ограничитель.
ОТУ 32-4717-1.43 Болт М16.
ОТУ 32-4717-1.44 Уголок крепительный
ОТУ 32-4717-1.45 Кронштейн разъединителя двухполюсного.
ОТУ 32-4717-1.46 Кронштейн привода двухполюсного разъединителя.
ОТУ 32-4717-1.47 Хомут.
ОТУ 32-4717-1.50 КТПМ-25. Установка на стойках. Схема расположения элементов.
ОТУ 32-4717-1.51 КТПМ-100, КТПМ-250, КТПМ-400. Установка на стойках. Схема расположения элементов.
ОТУ 32-4717-1.52 КТПМ-25, КТПМ-100, КТПМ-250, КТПМ-400. Установка на стойках. Разрез 1-1
ОТУ 32-4717-1.53 Фундамент АФ1-25
ОТУ 32-4717-1.54 Стойки АС1-25, AC1-1-25, AC2-25, АС2-1-25
ОТУ 32-4717-1.55 Сетки C1, C1-1
ОТУ 32-4717-1.56 Разрезы А-А, Б-Б, В-В
ОТУ 32-4717-1.57 Каркасы КР1, КР1-1, КР1-2, КP1-3, KP1-4
ОТУ 32-4717-1.58 Каркас КР1-5
ОТУ 32-4717-1.59 Петля П1
ОТУ 32-4717-1.60 КТПМ-25. Установка на приставках. Схема расположения элементов.
ОТУ 32-4717-1.61 КТПМ-100, КТПМ-250, КТПМ-400. Установка на приставках. Схема расположения элементов.
ОТУ 32-4717-1.62 КТПМ-25, КТПМ-100, КТПМ-250, КТПМ-400. Установка на приставках. Разрезы 1-1, 2-2
ОТУ 32-4717-1.63 Металлические изделия M1...М5
Разработан: Трансэлектропроект МПС
Утверждён:07.05.1997 Департамент электрификации и электроснабжения МПС РФ (14)
Расположен в:Техническая документация Строительство Справочные документы Типовые строительные конструкции, изделия и узлы Разработанные другими министерствами, ведомствами и организациями
Серия ОТУ 32-4717Серия ОТУ 32-4717Серия ОТУ 32-4717Серия ОТУ 32-4717Серия ОТУ 32-4717Серия ОТУ 32-4717Серия ОТУ 32-4717Серия ОТУ 32-4717Серия ОТУ 32-4717Серия ОТУ 32-4717Серия ОТУ 32-4717Серия ОТУ 32-4717Серия ОТУ 32-4717Серия ОТУ 32-4717Серия ОТУ 32-4717Серия ОТУ 32-4717Серия ОТУ 32-4717Серия ОТУ 32-4717Серия ОТУ 32-4717Серия ОТУ 32-4717Серия ОТУ 32-4717Серия ОТУ 32-4717Серия ОТУ 32-4717Серия ОТУ 32-4717Серия ОТУ 32-4717Серия ОТУ 32-4717Серия ОТУ 32-4717Серия ОТУ 32-4717Серия ОТУ 32-4717Серия ОТУ 32-4717Серия ОТУ 32-4717Серия ОТУ 32-4717Серия ОТУ 32-4717Серия ОТУ 32-4717Серия ОТУ 32-4717Серия ОТУ 32-4717Серия ОТУ 32-4717Серия ОТУ 32-4717Серия ОТУ 32-4717Серия ОТУ 32-4717Серия ОТУ 32-4717Серия ОТУ 32-4717Серия ОТУ 32-4717Серия ОТУ 32-4717Серия ОТУ 32-4717Серия ОТУ 32-4717Серия ОТУ 32-4717Серия ОТУ 32-4717Серия ОТУ 32-4717Серия ОТУ 32-4717Серия ОТУ 32-4717Серия ОТУ 32-4717Серия ОТУ 32-4717Серия ОТУ 32-4717Серия ОТУ 32-4717Серия ОТУ 32-4717Серия ОТУ 32-4717Серия ОТУ 32-4717Серия ОТУ 32-4717Серия ОТУ 32-4717Серия ОТУ 32-4717Серия ОТУ 32-4717Серия ОТУ 32-4717Серия ОТУ 32-4717Серия ОТУ 32-4717Серия ОТУ 32-4717

© 2013 Ёшкин Кот :-) Карта сайта