Информационная система
«Ёшкин Кот»

Скачать базу одним архивом
Скачать обновления
История создания базы
Карта сайта

Скачать Серия ТДК-Н-1-70 Часть II Раздел VII. Альбом 10. Санузлы и станции перекачки

Дата актуализации: 10.08.2017

Серия ТДК-Н-1-70 Часть II

Раздел VII. Альбом 10. Санузлы и станции перекачки

Обозначение: Серия ТДК-Н-1-70 Часть II
Обозначение англ: Series ТДК-Н-1-70 Часть II
Статус:не определен законодательством
Название рус.:Раздел VII. Альбом 10. Санузлы и станции перекачки
Дата добавления в базу:01.09.2013
Дата актуализации:05.05.2017
Дата введения:01.12.1971
Оглавление:Заглавный лист
Содержание альбома
Санузел на 150 человек с пудр-клозетом. Санузел на 150 человек с самотечной канализацией и пудр-клозетом. Санузел на 300 человек с самотечной канализацией и аварийной емкостью. Планы, разрезы
Щиты и детали крепления кабин и перегородок санитарных узлов на 150 и 300 человек, узлы, спецификация
Санитарные узлы на 450, 600 и 900 человек с защищенной станцией перекачки с совмещенным аварийным и приемным резервуаром. План и разрезы
План армирования плиты пола для санитарных узлов на 450, 600 и 900 человек. Сечения, узлы, детали, спецификация, выборка
Металлическая лестница МЛ-1, сечения, деталировка. Спецификация
Металлическая лестница МЛ-2, сечения, деталировка. Спецификация. Металлическая решетчатая дверь РДМ. Узлы, сечения. Спецификация
План размещения щитов кабин и перегородок в санитарных узлах на 400, 600 и 900 человек. Разрезы, узлы, детали, спецификация щитов, дверей и металла
Размещение закладных деталей и фундаментов под оборудование в санитарных узлах на 450, 600 и 900 человек. План на отм. 0.000 и перекрытия, развертка стены, сечения
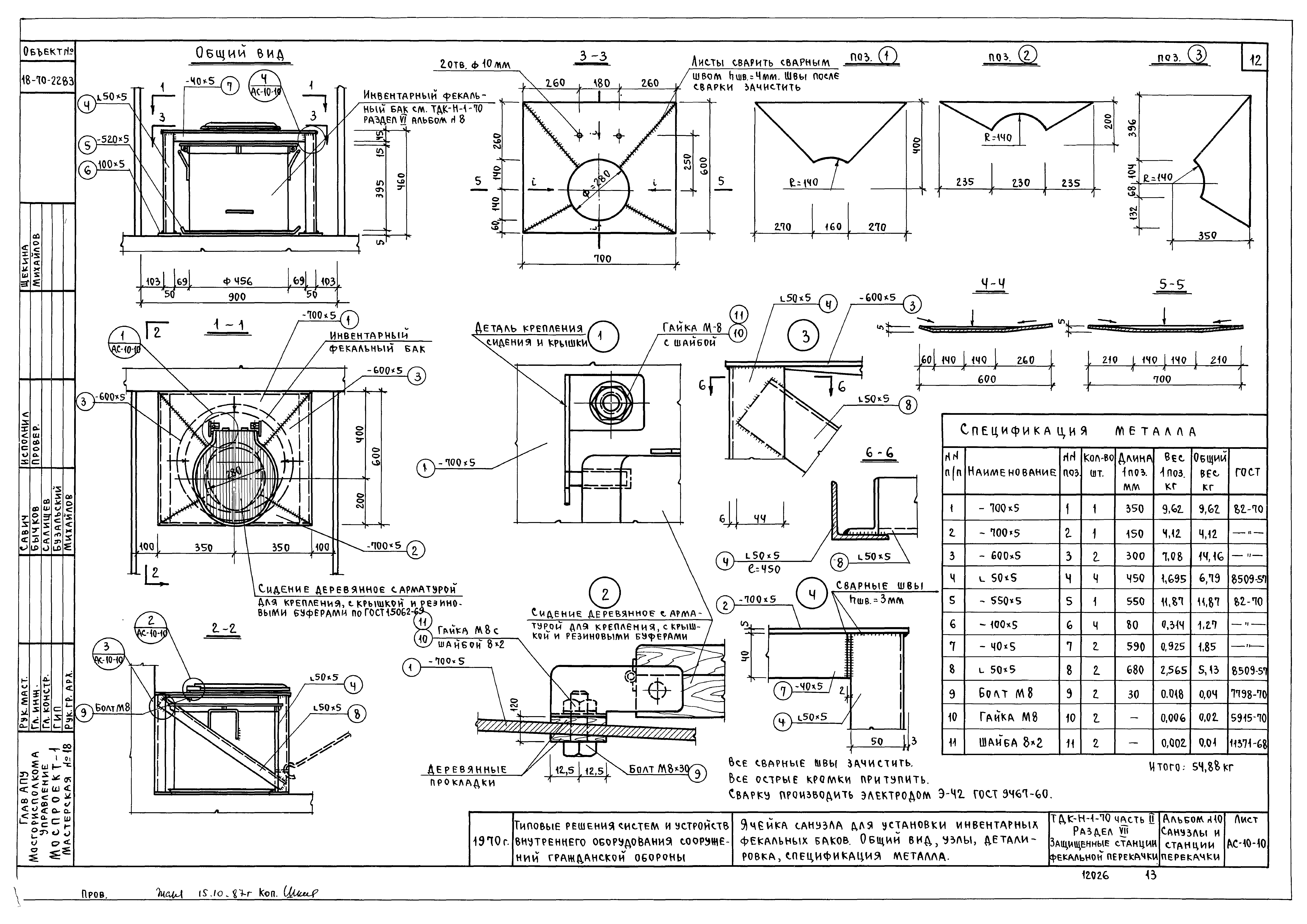
Ячейка санитарного узла для установки инвентарных фекальных баков. Общий вид, узлы, деталировка, спецификация металла
Санузел на 150 и 300 человек. Планы с сетями канализации. Разрезы по канализации
Санузлы на 450, 600 и 900 человек с защищенной станцией перекачки. Планы, разрезы по канализации, схемы обвязки насосов 1 1/2 К-6 и 2 1/2 НФ
Сводная спецификация
Разработан: Моспроект-1
Утверждён:07.12.1971 Моспроект-1 (274-Р)
Расположен в:Техническая документация Строительство Справочные документы Типовые строительные конструкции, изделия и узлы Общероссийский строительный каталог Защитные сооружения гражданской обороны Конструкции и инженерное оборудование Инженерное оборудование
Серия ТДК-Н-1-70 Часть IIСерия ТДК-Н-1-70 Часть IIСерия ТДК-Н-1-70 Часть IIСерия ТДК-Н-1-70 Часть IIСерия ТДК-Н-1-70 Часть IIСерия ТДК-Н-1-70 Часть IIСерия ТДК-Н-1-70 Часть IIСерия ТДК-Н-1-70 Часть IIСерия ТДК-Н-1-70 Часть IIСерия ТДК-Н-1-70 Часть IIСерия ТДК-Н-1-70 Часть IIСерия ТДК-Н-1-70 Часть IIСерия ТДК-Н-1-70 Часть IIСерия ТДК-Н-1-70 Часть IIСерия ТДК-Н-1-70 Часть IIСерия ТДК-Н-1-70 Часть II

© 2013 Ёшкин Кот :-) Карта сайта