Информационная система
«Ёшкин Кот»

Скачать базу одним архивом
Скачать обновления
История создания базы
Карта сайта

Скачать Серия ТДК-Н-1-70 Часть II Раздел III. Альбом 3. Установка дверей и противовзрывных устройств

Дата актуализации: 10.08.2017

Серия ТДК-Н-1-70 Часть II

Раздел III. Альбом 3. Установка дверей и противовзрывных устройств

Обозначение: Серия ТДК-Н-1-70 Часть II
Обозначение англ: Series ТДК-Н-1-70 Часть II
Статус:не определен законодательством
Название рус.:Раздел III. Альбом 3. Установка дверей и противовзрывных устройств
Дата добавления в базу:01.09.2013
Дата актуализации:05.05.2017
Дата введения:07.12.1971
Оглавление:Содержание альбома
Заглавный лист
Примеры установок металлических дверей ДУ-I-1, ДУ-II-1, ДУ-III-1, ДУ-IV-1 и ставней СУ-II-1, СУ-III-1, СУ-IV-1 в монолитных железобетонных стенах
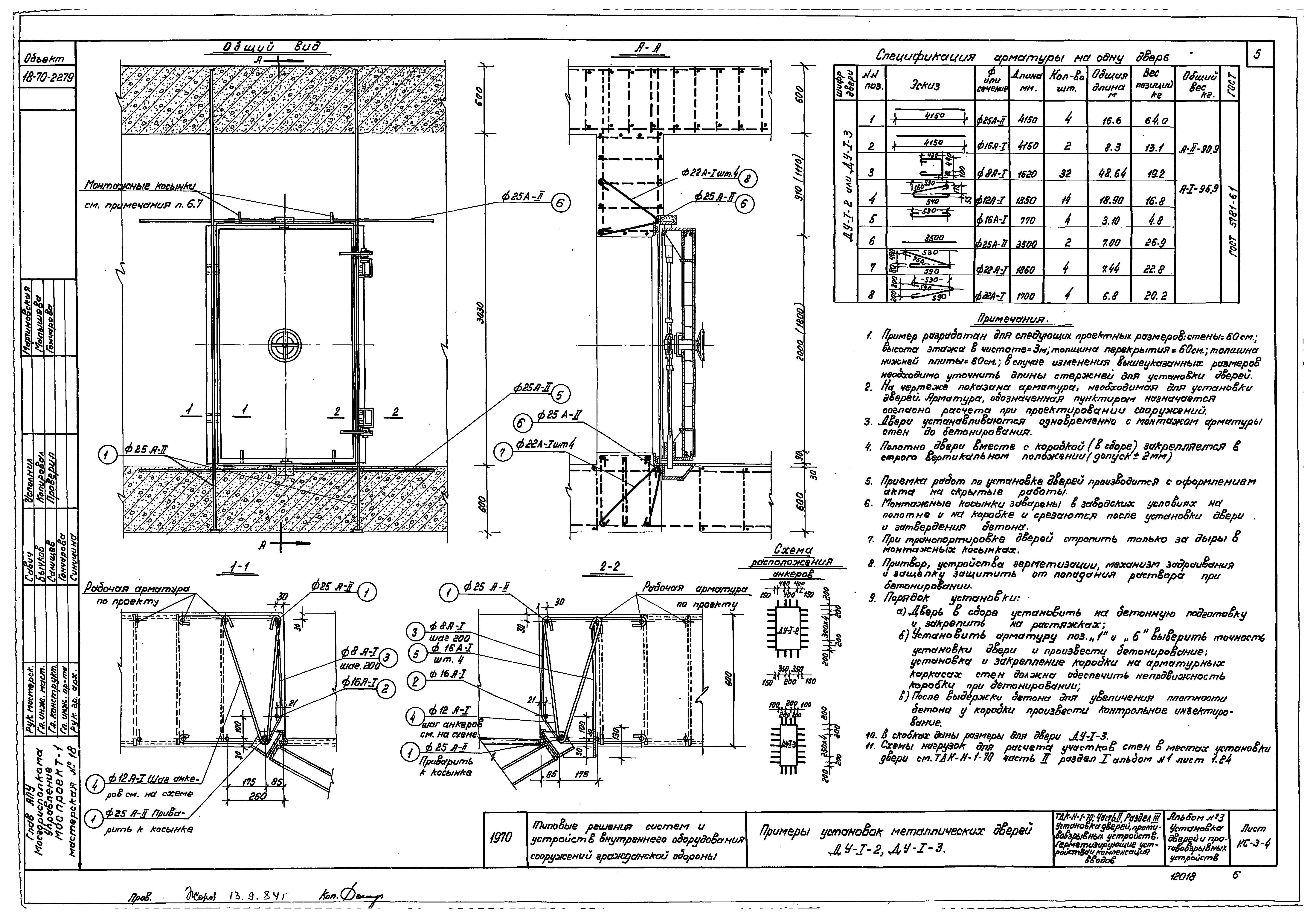
Примеры установок металлических дверей ДУ-I-2, ДУ-I-3
Примеры установок дверей ДУ-III-2, ДУ-IV-2, ДУ-III-3, ДУ-IV-3
Пример установки дверей ДУ-I-4 и ДУ-III-4. Общий вид
Пример установки дверей ДУ-I-4 и ДУ-III-4. Арматурные разрезы
Пример установки дверей ДУ-I-4 и ДУ-III-4. Сечения. Спецификация арматуры. Порядок производства работ
Пример установки двери ДУ-I-5. Общий вид. Спецификация арматуры
Пример установки двери ДУ-I-6. Общий вид. Спецификация арматуры
Пример установки дверей ДУ-I-5 и ДУ-I-6. Арматурные резервы. Эскизы каркасов и стержней
Пример установки дверей ДУ-I-5 и ДУ-I-6. Планы перекрытия с раскладкой арматуры. Порядок производства работ
Примеры компоновки защитных устройств на приточных и вытяжных системах вентиляции
Пример установки коробки М31 в железобетонных конструкциях
Пример установки коробки У32 в железобетонных конструкциях
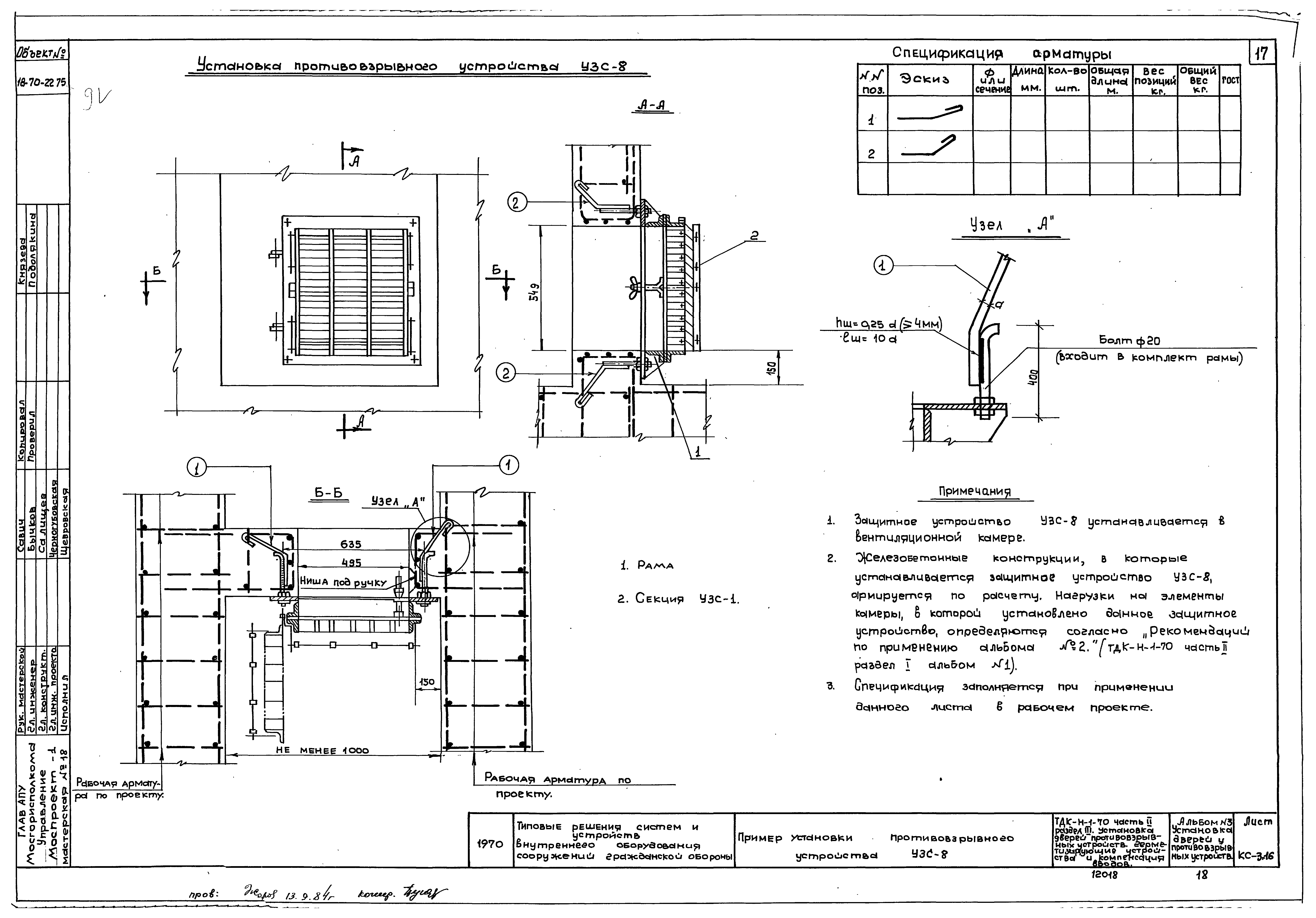
Пример установки противовзрывного устройства УЗС-8
Пример установки противовзрывного устройства УЗС-25
Пример установки противовзрывного устройства УЗС-50
Установка масляных фильтров в дверном проеме. Общий вид. Спецификация
Установка масляных фильтров в дверном проеме. Узлы А, Б и В
Установка масляных фильтров в дверном проеме. Узлы Д, Е и Ж. Закладная коробка. Выборка металла
Установка масляных фильтров в дверном проеме. Детали №№3, 4, 11, 12, 16, 17, 18, 21 и 25
Установка масляных фильтров в дверном проеме. Детали №№19, 20, 22, 23, 24, 26
Металлические расширительные камеры на 2,0 куб. м и 0,5 куб. м
Разработан: Моспроект-1
Утверждён:07.12.1971 Моспроект-1 (274-р)
Расположен в:Техническая документация Строительство Справочные документы Типовые строительные конструкции, изделия и узлы Общероссийский строительный каталог Защитные сооружения гражданской обороны Конструкции и инженерное оборудование Инженерное оборудование
Серия ТДК-Н-1-70 Часть IIСерия ТДК-Н-1-70 Часть IIСерия ТДК-Н-1-70 Часть IIСерия ТДК-Н-1-70 Часть IIСерия ТДК-Н-1-70 Часть IIСерия ТДК-Н-1-70 Часть IIСерия ТДК-Н-1-70 Часть IIСерия ТДК-Н-1-70 Часть IIСерия ТДК-Н-1-70 Часть IIСерия ТДК-Н-1-70 Часть IIСерия ТДК-Н-1-70 Часть IIСерия ТДК-Н-1-70 Часть IIСерия ТДК-Н-1-70 Часть IIСерия ТДК-Н-1-70 Часть IIСерия ТДК-Н-1-70 Часть IIСерия ТДК-Н-1-70 Часть IIСерия ТДК-Н-1-70 Часть IIСерия ТДК-Н-1-70 Часть IIСерия ТДК-Н-1-70 Часть IIСерия ТДК-Н-1-70 Часть IIСерия ТДК-Н-1-70 Часть IIСерия ТДК-Н-1-70 Часть IIСерия ТДК-Н-1-70 Часть IIСерия ТДК-Н-1-70 Часть IIСерия ТДК-Н-1-70 Часть IIСерия ТДК-Н-1-70 Часть II

© 2013 Ёшкин Кот :-) Карта сайта