Скачать Серия ТДК-Н-1-68 Часть II. Раздел II. Защитные устройства на воздухозаборах, воздуховыбросах и газовыхлопахДата актуализации: 10.08.2017 Серия ТДК-Н-1-68
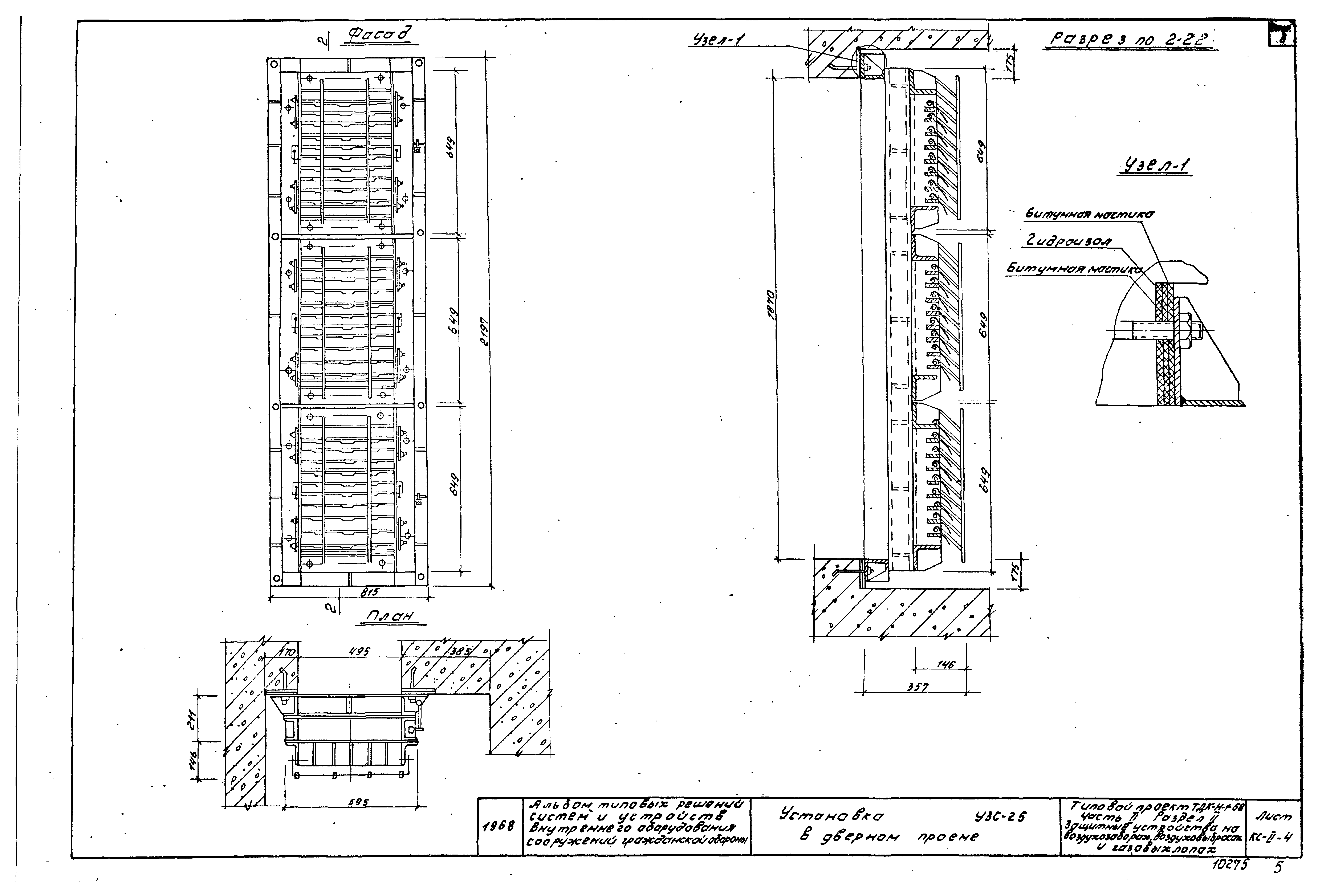
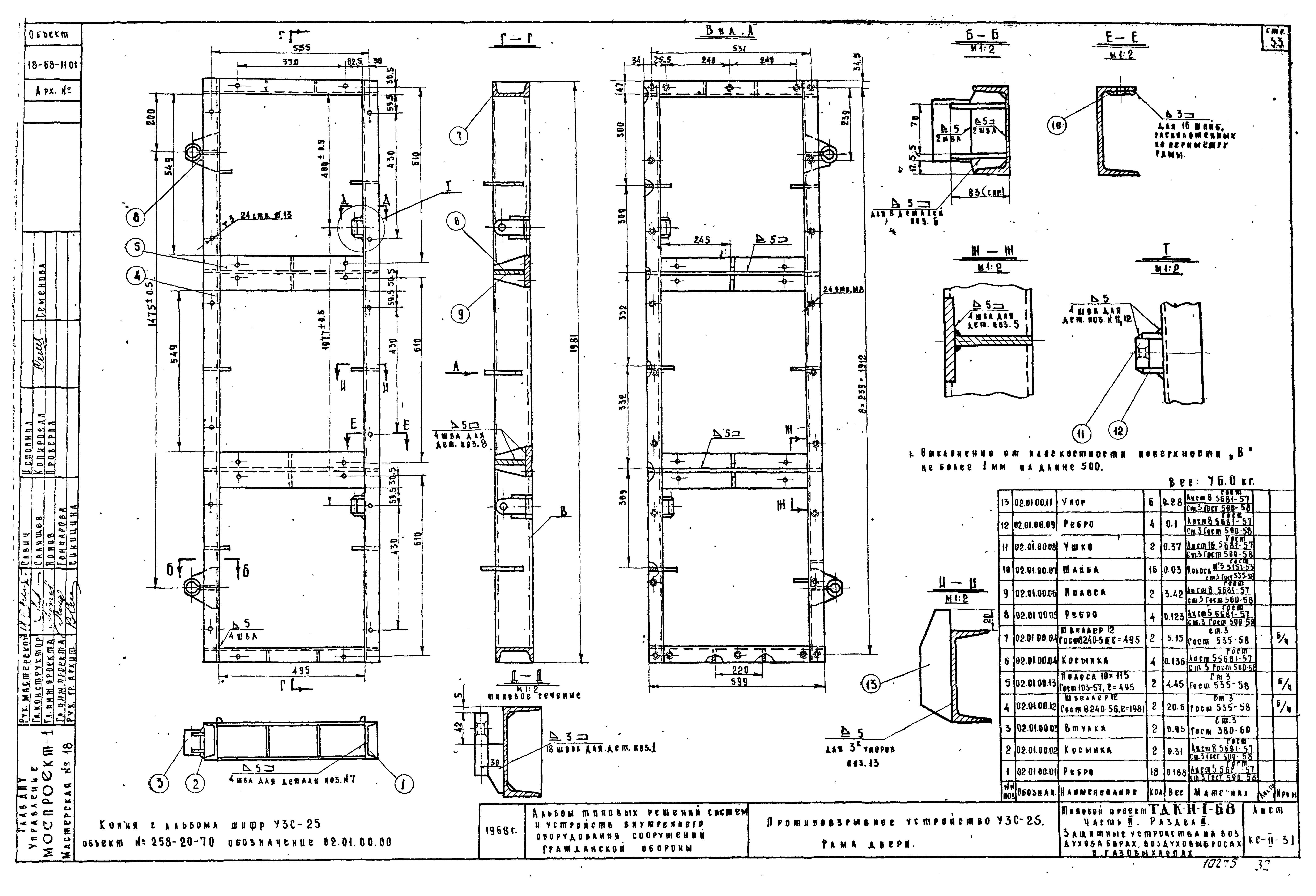
Часть II. Раздел II. Защитные устройства на воздухозаборах, воздуховыбросах и газовыхлопахОбозначение: | Серия ТДК-Н-1-68 | Обозначение англ: | Series ТДК-Н-1-68 | Статус: | не определен законодательством | Название рус.: | Часть II. Раздел II. Защитные устройства на воздухозаборах, воздуховыбросах и газовыхлопах | Дата добавления в базу: | 01.09.2013 | Дата актуализации: | 05.05.2017 | Дата введения: | 17.12.1968 | Оглавление: | Содержание раздела УЗС на воздуховоде, в камере (закрытое и открытое исполнение), в проеме и в вентшахте МЗС в камере (закрытое и открытое исполнение), в вентшахте и на воздуховоде Установка УЗС-25 в дверном проеме Коробка для установки УЗС-1 в камере (закрытое исполнение) Коробка для установки УЗС-1 в камере (открытое исполнение) Коробка для установки УЗС-1 на воздуховоде. Общий вид Коробка для установки УЗС-1 на воздуховоде и в камере. Детали Коробка для установки МЗС на воздуховоде. Общий вид Коробка для установки МЗС на воздуховоде. Детали Железобетонная вентшахта для установки МЗС. Опалубка и армирование Железобетонная вентшахта для установки МЗС. Спецификация арматуры. Общий вид закладной детали. Спецификация Железобетонная вентшахта для установки МЗС. Закладная деталь Техническое описание противовзрывного устройства, шифр "МЗС" Противовзрывное устройство МЗС для установки на оголовке воздуховода Противовзрывное устройство МЗС переходник и кожух Малогабаритная защитная секция Малогабаритная защитная секция. Решетка Малогабаритная защитная секция. Рамка. Прокладка Техническое описание противовзрывных устройств, шифр "УЗС" Унифицированная защитная секция УЗС-1 Унифицированная защитная секция УЗС-1. Рама Унифицированная защитная секция УЗС-1. Решетка Противовзрывное устройство УЗС-8 Противовзрывное устройство УЗС-8. Секция Противовзрывное устройство УЗС-8. Рама Противовзрывное устройство УЗС-25 Противовзрывное устройство УЗС-25. Рама Противовзрывное устройство УЗС-25. Рама двери Противовзрывное устройство УЗС-25. Дверь | Разработан: | Моспроект-1
| Утверждён: | 17.12.1968 Моспроект-1 (362-Р)
| Расположен в: |
|
                                
|