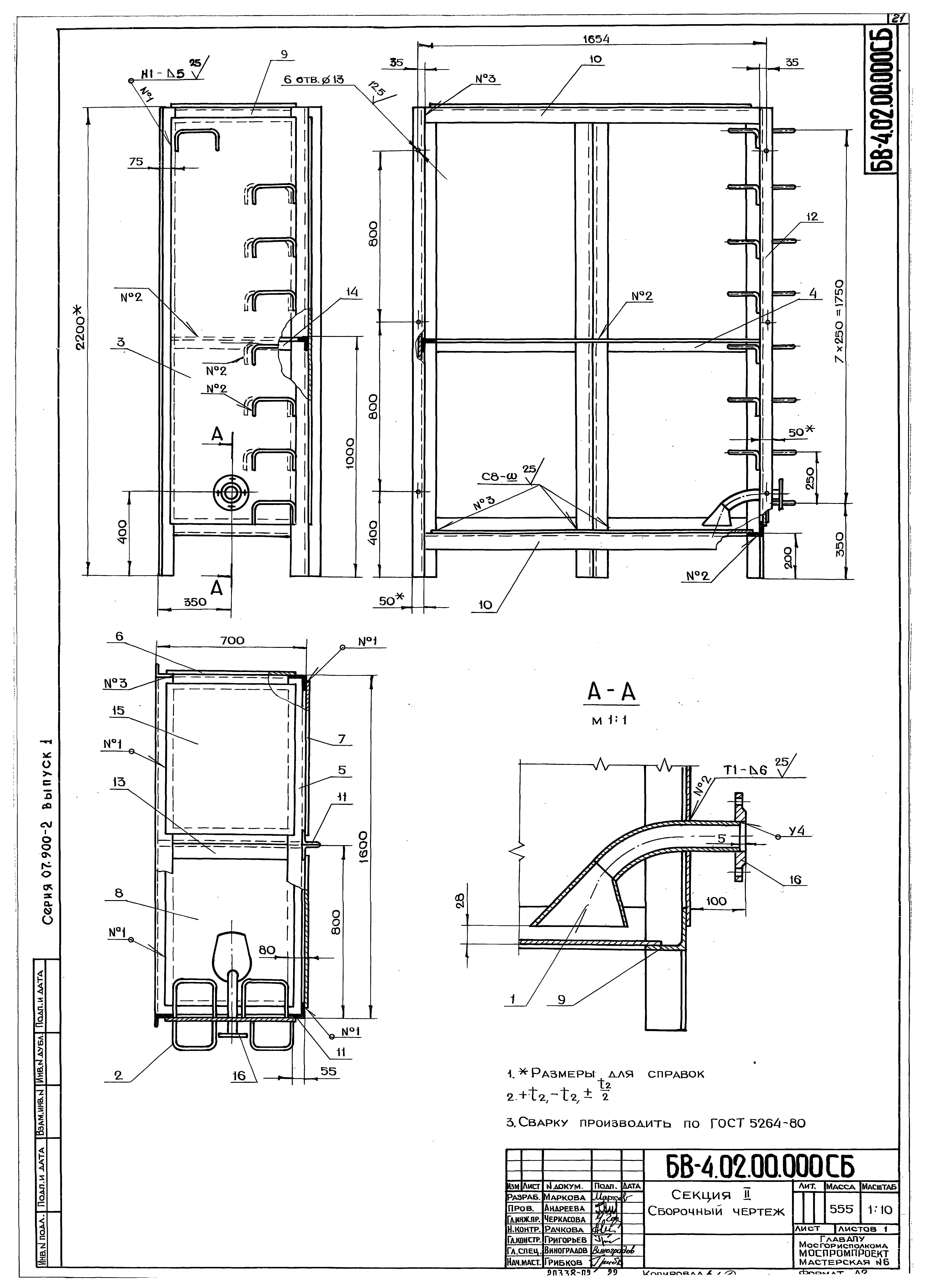
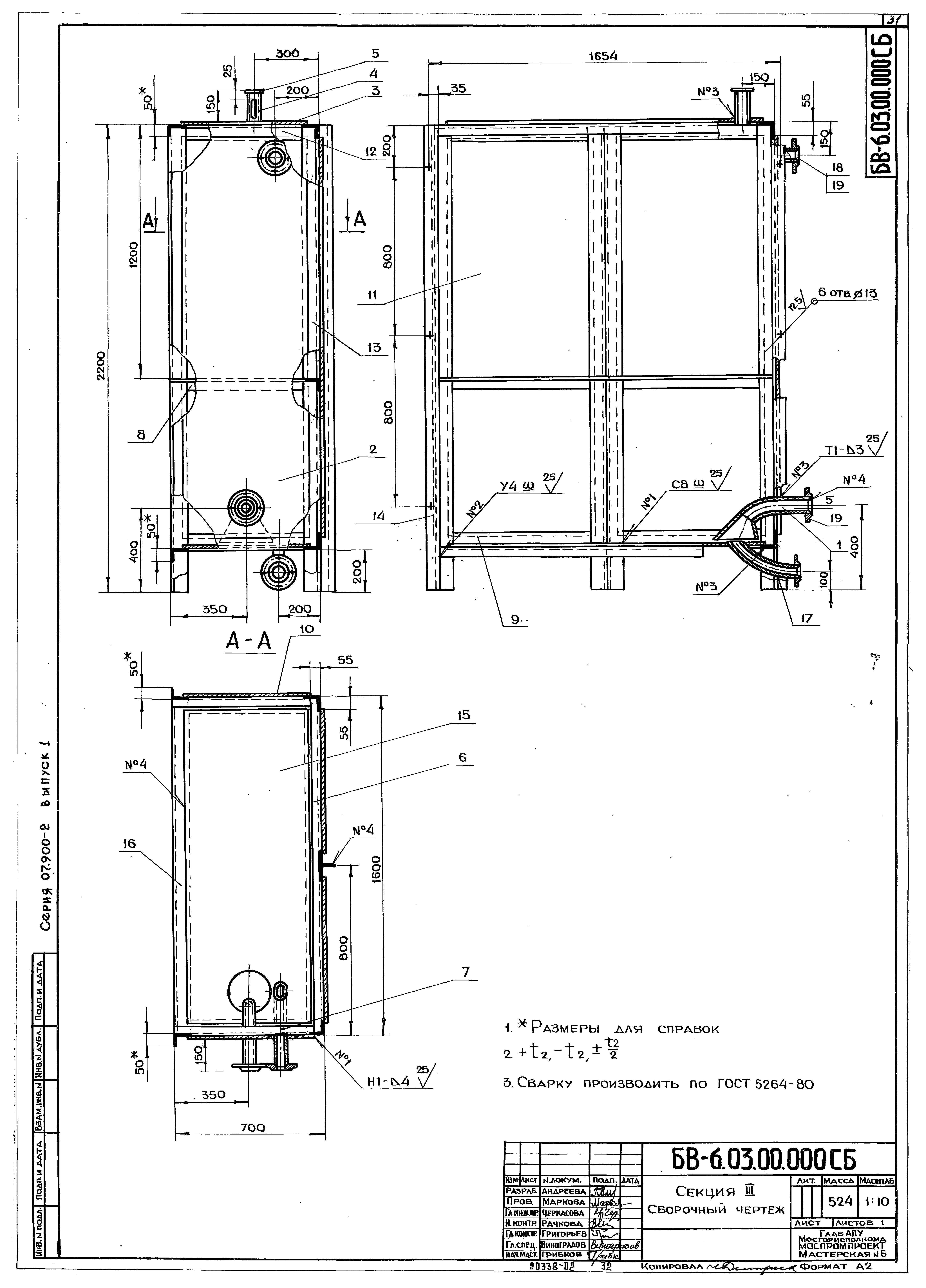
Скачать Серия 07.900-2 Выпуск 1. Баки для воды прямоугольные БВ-2; БВ-4; БВ-6; БВ-8; БВ-10Дата актуализации: 10.08.2017 Серия 07.900-2
Выпуск 1. Баки для воды прямоугольные БВ-2; БВ-4; БВ-6; БВ-8; БВ-10Обозначение: | Серия 07.900-2 | Обозначение англ: | Series 07.900-2 | Статус: | не определен законодательством | Название рус.: | Выпуск 1. Баки для воды прямоугольные БВ-2; БВ-4; БВ-6; БВ-8; БВ-10 | Дата добавления в базу: | 01.09.2013 | Дата актуализации: | 05.05.2017 | Дата введения: | 08.02.1985 | Разработан: | Моспромпроект
| Утверждён: | 05.07.1984 НГО СССР (235/11/1873)
| Расположен в: |
|
                                                               
|