Скачать Серия 03.005-8 Выпуск 0-4. Конструктивные решения входов с тамбурами, тамбур-шлюзами и павильонами для защитных сооружений в водонасыщенных грунтах. Материалы для проектированияДата актуализации: 10.08.2017 Серия 03.005-8
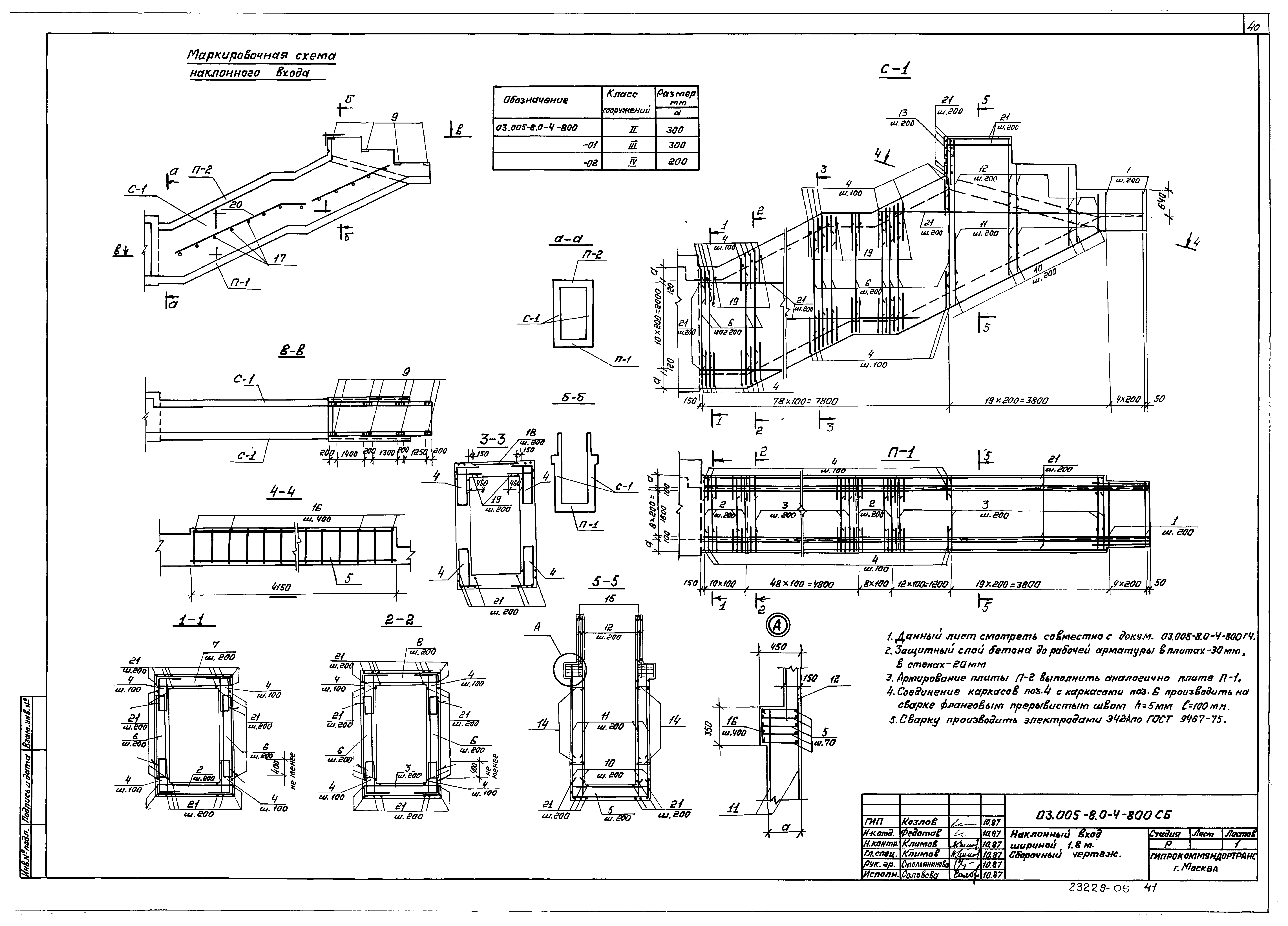
Выпуск 0-4. Конструктивные решения входов с тамбурами, тамбур-шлюзами и павильонами для защитных сооружений в водонасыщенных грунтах. Материалы для проектированияОбозначение: | Серия 03.005-8 | Обозначение англ: | Series 03.005-8 | Статус: | не определен законодательством | Название рус.: | Выпуск 0-4. Конструктивные решения входов с тамбурами, тамбур-шлюзами и павильонами для защитных сооружений в водонасыщенных грунтах. Материалы для проектирования | Дата добавления в базу: | 01.09.2013 | Дата актуализации: | 05.05.2017 | Дата введения: | 01.10.1988 | Оглавление: | 03.005-8.0-4-000 Содержание 03.005-8.0-4-000 ПЗ Пояснительная записка 03.005-8.0-4-100 ГЧ Участок тамбура-шлюза с артскважинами наклонного входа шириной 1,2 м 03.005-8.0-4-100 Участок тамбура-шлюза с артскважинами наклонного входа шириной 1,2 м 03.005-8.0-4-100 СБ Участок тамбура-шлюза с артскважинами наклонного входа шириной 1,2 м. Сборочный чертеж 03.005-8.0-4-200 ГЧ Участок тамбура-шлюза с предтамбуром наклонного входа шириной 1,2 м 03.005-8.0-4-200 Участок тамбура-шлюза с предтамбуром наклонного входа шириной 1,2 м 03.005-8.0-4-200 СБ Участок тамбура-шлюза с предтамбуром наклонного входа шириной 1,2 м. Сборочный чертеж 03.005-8.0-4-300 ГЧ Участок тамбура-шлюза с артскважинами наклонного входа шириной 1,8 м 03.005-8.0-4-300 Участок тамбура-шлюза с артскважинами наклонного входа шириной 1,8 м 03.005-8.0-4-300 СБ Участок тамбура-шлюза с артскважинами наклонного входа шириной 1,8 м. Сборочный чертеж 03.005-8.0-4-400 ГЧ Участок тамбура-шлюза с предтамбуром наклонного входа шириной 1,8 м 03.005-8.0-4-400 Участок тамбура-шлюза с предтамбуром наклонного входа шириной 1,8 м 03.005-8.0-4-400 СБ Участок тамбура-шлюза с предтамбуром наклонного входа шириной 1,8 м. Сборочный чертеж 03.005-8.0-4-500 ГЧ Тамбур и предтамбур наклонного входа шириной 1,2 м 03.005-8.0-4-500 Тамбур и предтамбур наклонного входа шириной 1,2 м 03.005-8.0-4-500 СБ Тамбур и предтамбур наклонного входа шириной 1,2 м. Сборочный чертеж 03.005-8.0-4-600 ГЧ Тамбур и предтамбур наклонного входа шириной 1,8 м 03.005-8.0-4-600 Тамбур и предтамбур наклонного входа шириной 1,8 м 03.005-8.0-4-600 СБ Тамбур и предтамбур наклонного входа шириной 1,8 м. Сборочный чертеж 03.005-8.0-4-700 ГЧ Наклонный вход шириной 1,2 м 03.005-8.0-4-700 Наклонный вход шириной 1,2 м 03.005-8.0-4-700 СБ Наклонный вход шириной 1,2 м. Сборочный чертеж 03.005-8.0-4-800 ГЧ Наклонный вход шириной 1,8 м 03.005-8.0-4-800 Наклонный вход шириной 1,8 м 03.005-8.0-4-800 СБ Наклонный вход шириной 1,8 м. Сборочный чертеж 03.005-8.0-4-900 РС Ведомость расхода стали на входы с тамбурами и тамбур-шлюзами 03.005-8.0-4-1000 Конструкция павильонов над входами 03.005-8.0-4-1000 СБ Конструкция павильонов над входами. Сборочный чертеж | Разработан: | Гипрокоммундортранс
| Утверждён: | 06.05.1988 Управление НГО СССР (31)
| Расположен в: |
|
                                          
|