Информационная система
«Ёшкин Кот»

Скачать базу одним архивом
Скачать обновления
История создания базы
Карта сайта

Скачать Серия 03.005-7 Выпуск 0-2. Конструктивные решения входов и аварийных выходов защитных сооружений в водонасыщенных грунтах. Материалы для проектирования

Дата актуализации: 10.08.2017

Серия 03.005-7

Выпуск 0-2. Конструктивные решения входов и аварийных выходов защитных сооружений в водонасыщенных грунтах. Материалы для проектирования

Обозначение: Серия 03.005-7
Обозначение англ: Series 03.005-7
Статус:не определен законодательством
Название рус.:Выпуск 0-2. Конструктивные решения входов и аварийных выходов защитных сооружений в водонасыщенных грунтах. Материалы для проектирования
Дата добавления в базу:01.09.2013
Дата актуализации:05.05.2017
Дата введения:01.09.1990
Оглавление:03.005-7.0-2-ПЗ Пояснительная записка
03.005-7.0-2-1 Аварийный выход тупиковый прямой, совмещенный со входом, с тамбуром - АВТ1. Чертеж общего вида
03.005-7.0-2-2 АВТ1. Стена убежища. Армирование
03.005-7.0-2-3 АВТ1. Тамбур и ФВП. Габаритный чертеж
03.005-7.0-2-4 АВТ1. Тамбур и ФВП. Армирование
03.005-7.0-2-5 Аварийный выход тупиковый прямой, совмещенный со входом, с тамбуром-шлюзом - АВТ2. Чертеж общего вида
03.005-7.0-2-6 АВТ2. Тамбур-шлюз и ФВП. Габаритный чертеж
03.005-7.0-2-7 АВТ2. Тамбур-шлюз и ФВП. Армирование
03.005-7.0-2-8 Аварийный выход тупиковый коленчатый, совмещенный со входом, с тамбуром - АВТ3. Чертеж общего вида
03.005-7.0-2-9 АВТ3. Тамбур и ФВП. Габаритный чертеж
03.005-7.0-2-10 АВТ3. Тамбур и ФВП. Армирование
03.005-7.0-2-11 Аварийный выход тупиковый коленчатый, совмещенный со входом, с тамбуром-шлюзом - АВТ-4. Чертеж общего вида
03.005-7.0-2-12 АВТ4. Стена убежища. Армирование
03.005-7.0-2-13 АВТ4. Тамбур-шлюз и ФВП. Габаритный чертеж
03.005-7.0-2-14 АВТ4. Тамбур-шлюз и ФВП. Армирование
03.005-7.0-2-15 Вход тупиковый прямой с тамбуром при ширине дверного проема 0,8 м - ВТ1. Чертеж общего вида
03.005-7.0-2-16 ВТ1. Стена убежища и тамбур. Габаритный чертеж
03.005-7.0-2-17 ВТ1. Стена убежища и тамбур. Армирование
03.005-7.0-2-18 Вход тупиковый прямой с тамбуром при ширине дверного проема 1,2 м - ВТ2. Чертеж общего вида
03.005-7.0-2-19 ВТ2. Подходной тоннель. Армирование
03.005-7.0-2-20 ВТ2. Стена убежища и тамбур. Габаритный чертеж
03.005-7.0-2-21 ВТ2. Стена убежища и тамбур. Армирование
03.005-7.0-2-22 Вход тупиковый прямой с тамбуром-шлюзом при ширине дверного проема 0,8 м - ВТ3. Чертеж общего вида
03.005-7.0-2-23 ВТ3. Стена убежища и тамбур-шлюз. Габаритный чертеж
03.005-7.0-2-24 ВТ3. Стена убежища и тамбур-шлюз. Армирование
03.005-7.0-2-25 Вход тупиковый прямой с тамбуром-шлюзом при ширине дверного проема 1,2 м - ВТ4. Чертеж общего вида
03.005-7.0-2-26 ВТ4. Стена убежища и тамбур-шлюз. Габаритный чертеж
03.005-7.0-2-27 ВТ4. Стена убежища и тамбур-шлюз. Армирование
03.005-7.0-2-28 Вход тупиковый пристенный с тамбуром - ВТ5. Чертеж общего вида
03.005-7.0-2-29 ВТ5. Подходной тоннель и предтамбур. Армирование
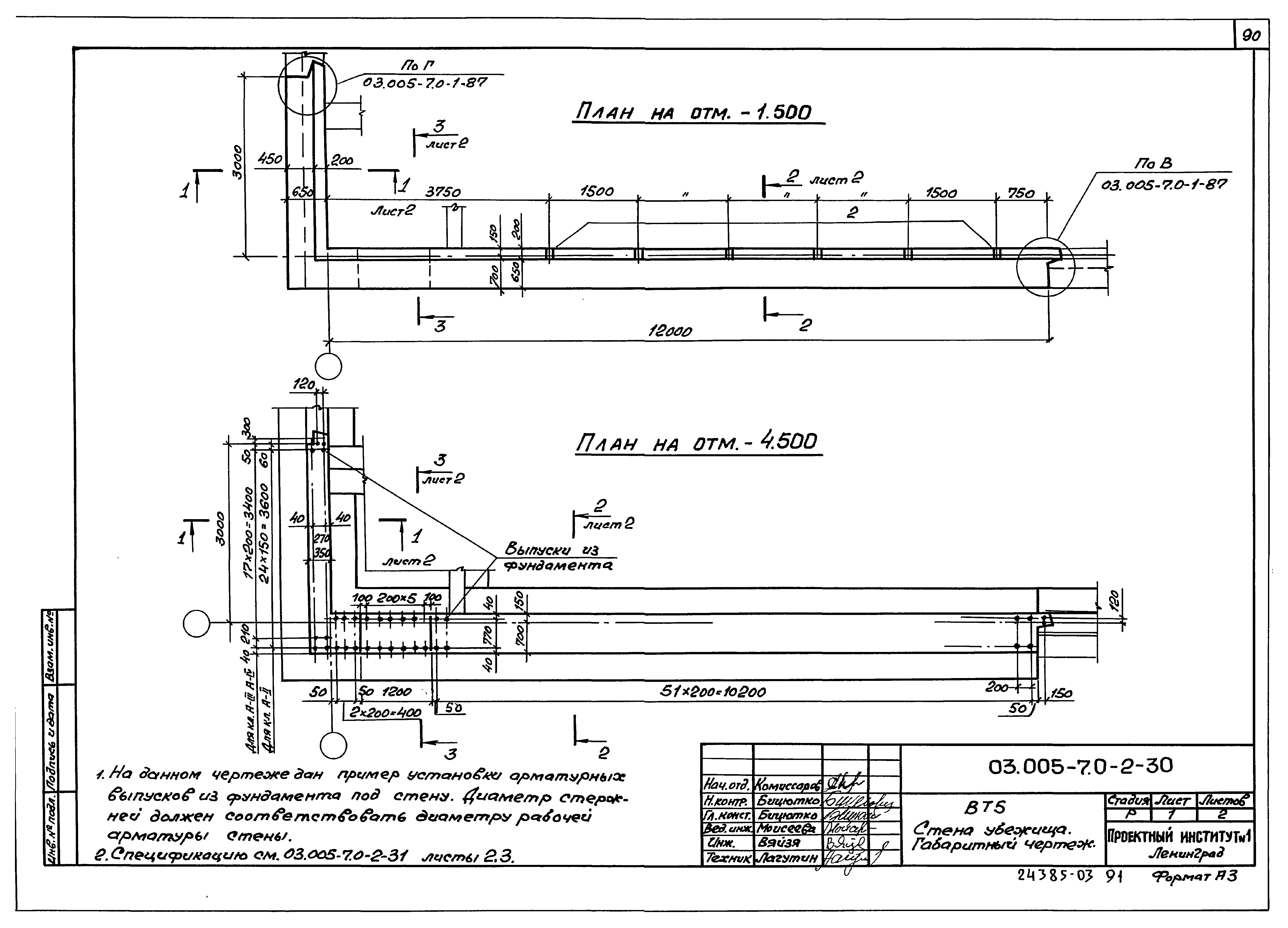
03.005-7.0-2-30 ВТ5. Стена убежища. Габаритный чертеж
03.005-7.0-2-31 ВТ5. Стена убежища. Армирование
03.005-7.0-2-32 ВТ5. Тамбур. Габаритный чертеж
03.005-7.0-2-33 ВТ5. Тамбур. Армирование
03.005-7.0-2-34 Вход сквозниковый с тамбуром при ширине дверного проема 1,2 м - ВС1. Чертеж общего вида
03.005-7.0-2-35 ВС1. Стена убежища и предтамбур. Армирование
03.005-7.0-2-36 Вход сквозниковый с двухкамерным тамбуром-шлюзом при ширине дверных проемов 0,8 м - ВС2. Чертеж общего вида
03.005-7.0-2-37 ВС2. Двухкамерный тамбур-шлюз. Габаритный чертеж
03.005-7.0-2-38 ВС2. Двухкамерный тамбур-шлюз. Армирование
03.005-7.0-2-39 Вход сквозниковый с двухкамерным тамбуром-шлюзом при ширине дверных проемов 0,8 м и 1,2 м - ВС3. Чертеж общего вида
03.005-7.0-2-40 ВС3. Подходной тоннель. Армирование
03.005-7.0-2-41 ВС3. Двухкамерный тамбур-шлюз. Габаритный чертеж
03.005-7.0-2-42 ВС3. Двухкамерный тамбур-шлюз. Армирование
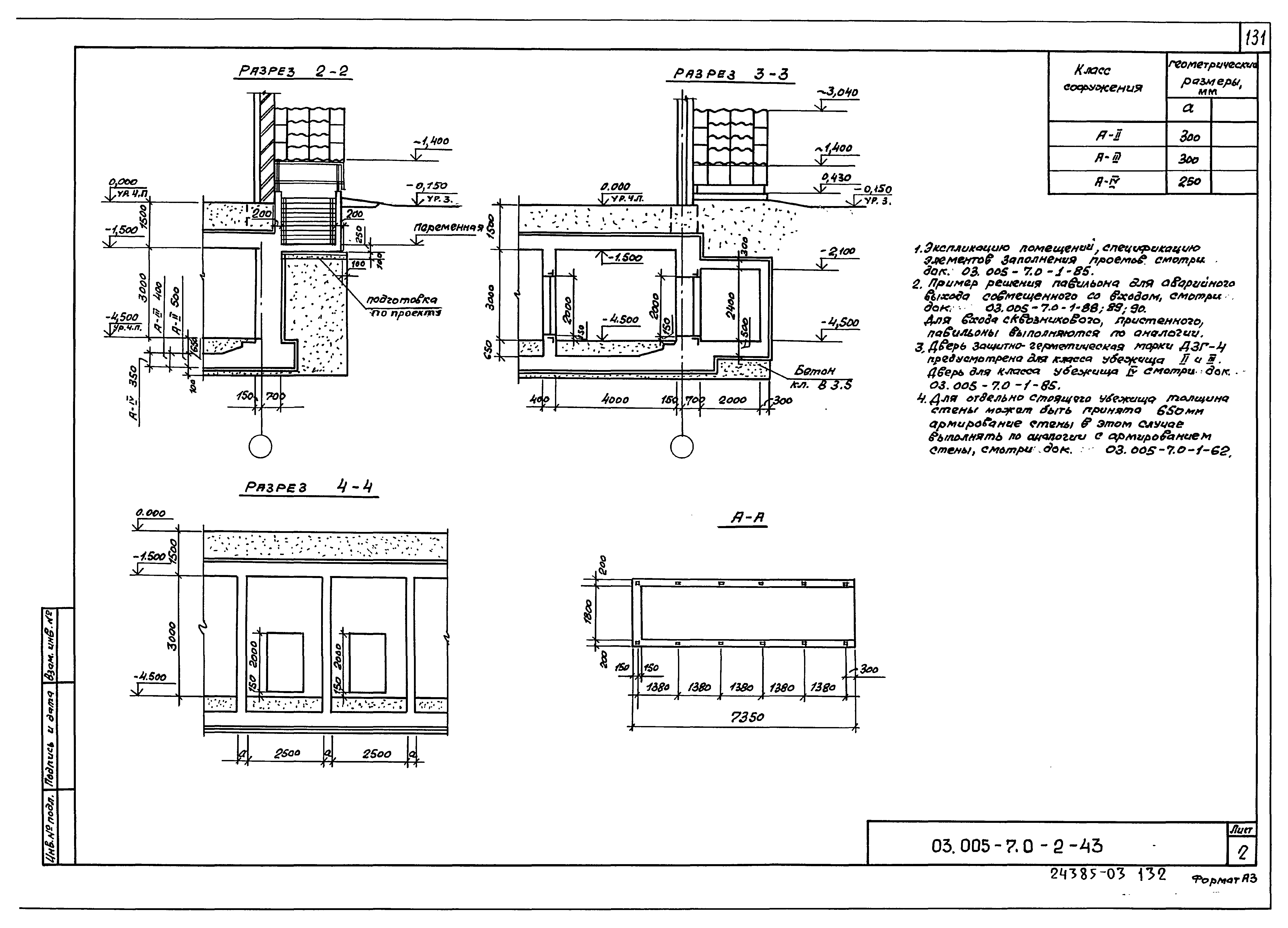
03.005-7.0-2-43 Вход сквозниковый с двухкамерным тамбуром-шлюзом, пристенный - ВС4. Чертеж общего вида
03.005-7.0-2-44 ВС4. Двухкамерный тамбур-шлюз. Габаритный чертеж
03.005-7.0-2-45 ВС4. Двухкамерный тамбур-шлюз. Армирование
03.005-7.0-2-46 Вход из лестничной клетки многоэтажного здания с тамбуром и предтамбуром - ВЛ1. Чертеж общего вида
03.005-7.0-2-47 ВЛ1. Габаритный чертеж
03.005-7.0-2-48 ВЛ1. Армирование
03.005-7.0-2-49 Вход из подвала, не защищенного от ударной волны, с тамбуром и предтамбуром - ВП1. Чертеж общего вида
03.005-7.0-2-50 ВП1. Габаритный чертеж
03.005-7.0-2-51 ВП1. Армирование
Разработан: Проектный институт № 1
Утверждён:27.04.1990 Штаб гражданской обороны СССР (USSR Civil Defense Headquarters 14)
Расположен в:Техническая документация Строительство Справочные документы Типовые строительные конструкции, изделия и узлы Общероссийский строительный каталог Защитные сооружения гражданской обороны Конструкции и инженерное оборудование Конструкции и изделия
Серия 03.005-7Серия 03.005-7Серия 03.005-7Серия 03.005-7Серия 03.005-7Серия 03.005-7Серия 03.005-7Серия 03.005-7Серия 03.005-7Серия 03.005-7Серия 03.005-7Серия 03.005-7Серия 03.005-7Серия 03.005-7Серия 03.005-7Серия 03.005-7Серия 03.005-7Серия 03.005-7Серия 03.005-7Серия 03.005-7Серия 03.005-7Серия 03.005-7Серия 03.005-7Серия 03.005-7Серия 03.005-7Серия 03.005-7Серия 03.005-7Серия 03.005-7Серия 03.005-7Серия 03.005-7Серия 03.005-7Серия 03.005-7Серия 03.005-7Серия 03.005-7Серия 03.005-7Серия 03.005-7Серия 03.005-7Серия 03.005-7Серия 03.005-7Серия 03.005-7Серия 03.005-7Серия 03.005-7Серия 03.005-7Серия 03.005-7Серия 03.005-7Серия 03.005-7Серия 03.005-7Серия 03.005-7Серия 03.005-7Серия 03.005-7Серия 03.005-7Серия 03.005-7Серия 03.005-7Серия 03.005-7Серия 03.005-7Серия 03.005-7Серия 03.005-7Серия 03.005-7Серия 03.005-7Серия 03.005-7Серия 03.005-7Серия 03.005-7Серия 03.005-7Серия 03.005-7Серия 03.005-7Серия 03.005-7Серия 03.005-7Серия 03.005-7Серия 03.005-7Серия 03.005-7Серия 03.005-7Серия 03.005-7Серия 03.005-7Серия 03.005-7Серия 03.005-7Серия 03.005-7Серия 03.005-7Серия 03.005-7Серия 03.005-7Серия 03.005-7Серия 03.005-7Серия 03.005-7Серия 03.005-7Серия 03.005-7Серия 03.005-7Серия 03.005-7Серия 03.005-7Серия 03.005-7Серия 03.005-7Серия 03.005-7Серия 03.005-7Серия 03.005-7Серия 03.005-7Серия 03.005-7Серия 03.005-7Серия 03.005-7Серия 03.005-7Серия 03.005-7Серия 03.005-7Серия 03.005-7Серия 03.005-7Серия 03.005-7Серия 03.005-7Серия 03.005-7Серия 03.005-7Серия 03.005-7Серия 03.005-7Серия 03.005-7Серия 03.005-7Серия 03.005-7Серия 03.005-7Серия 03.005-7Серия 03.005-7Серия 03.005-7Серия 03.005-7Серия 03.005-7Серия 03.005-7Серия 03.005-7Серия 03.005-7Серия 03.005-7Серия 03.005-7Серия 03.005-7Серия 03.005-7Серия 03.005-7Серия 03.005-7Серия 03.005-7Серия 03.005-7Серия 03.005-7Серия 03.005-7Серия 03.005-7Серия 03.005-7Серия 03.005-7Серия 03.005-7Серия 03.005-7Серия 03.005-7Серия 03.005-7Серия 03.005-7Серия 03.005-7Серия 03.005-7Серия 03.005-7Серия 03.005-7Серия 03.005-7Серия 03.005-7Серия 03.005-7Серия 03.005-7Серия 03.005-7Серия 03.005-7Серия 03.005-7Серия 03.005-7Серия 03.005-7Серия 03.005-7Серия 03.005-7Серия 03.005-7Серия 03.005-7

© 2013 Ёшкин Кот :-) Карта сайта