Информационная система
«Ёшкин Кот»

Скачать базу одним архивом
Скачать обновления
История создания базы
Карта сайта

Скачать Серия 1.251.1-КР-1 Выпуск 2. Арматурные изделия

Дата актуализации: 10.08.2017

Серия 1.251.1-КР-1

Выпуск 2. Арматурные изделия

Обозначение: Серия 1.251.1-КР-1
Обозначение англ: Series 1.251.1-КР-1
Статус:не действует
Название рус.:Выпуск 2. Арматурные изделия
Дата добавления в базу:01.09.2013
Дата актуализации:05.05.2017
Оглавление:1.251.1-КР-1 Выпуск 2
1.251.1-КР-1.2.00.0.00.0 ТО Техническое описание
1.251.1-КР-1.2.01.1.00.0 Блок арматурный АБЛ-1÷АБЛ-5
1.251.1-КР-1.2.01.1.00.0 СБ Блок арматурный АБЛ-1÷АБЛ-5. Сборочный чертеж
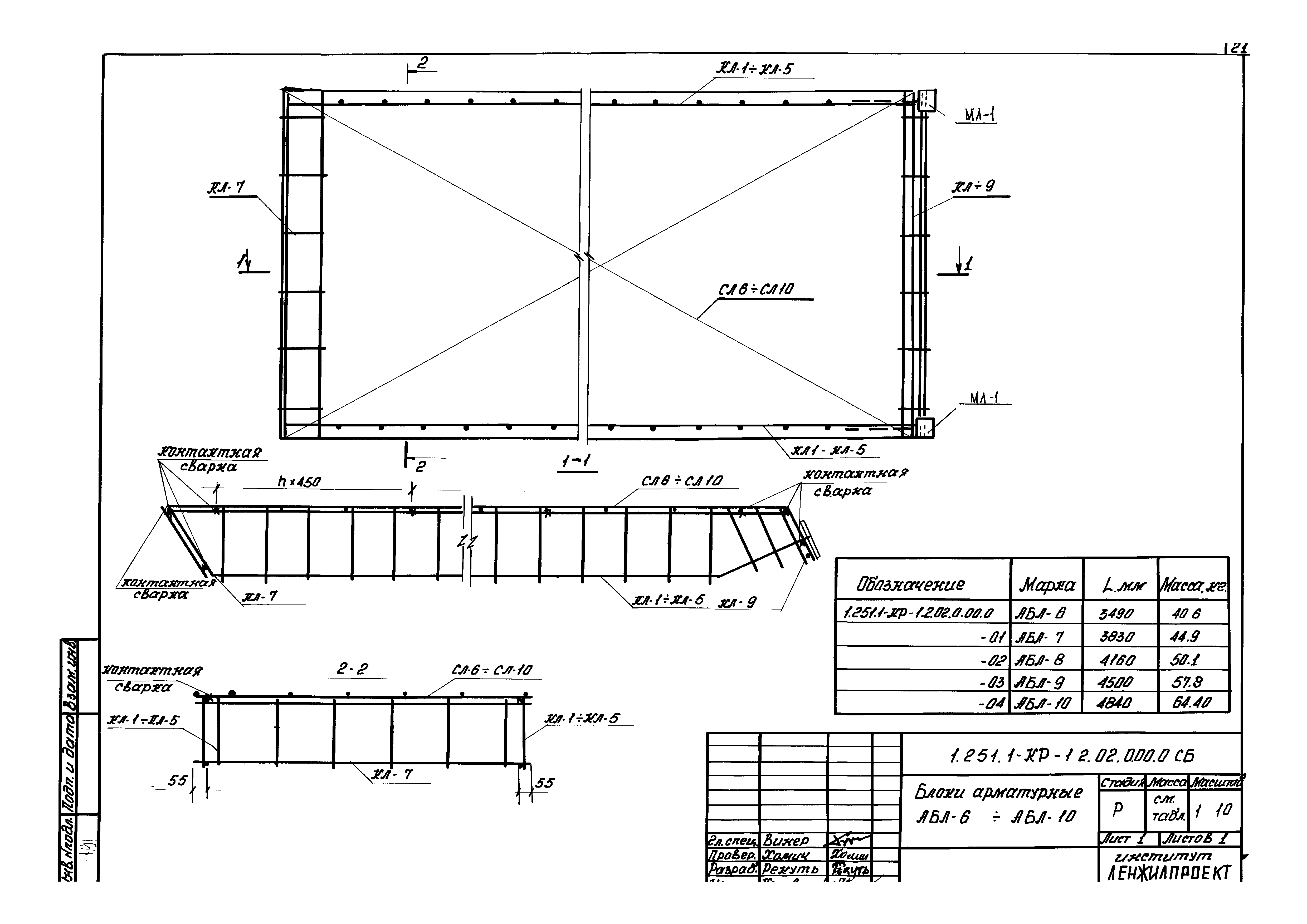
1.251.1-КР-1.2.02.1.00.0 Блок арматурный АБЛ-6÷АБЛ-10
1.251.1-КР-1.2.02.1.00.0 СБ Блок арматурный АБЛ-6÷АБЛ-10. Сборочный чертеж
1.251.1-КР-1.2.01.1.01.0 Сетка СЛ-1÷СЛ-5
1.251.1-КР-1.2.01.1.01.0 СБ Сетка СЛ-1÷СЛ-5. Сборочный чертеж
1.251.1-КР-1.2.02.1.01.0 Сетка СЛ-6÷СЛ-10
1.251.1-КР-1.2.02.1.01.0 СБ Сетка СЛ-6÷СЛ-10. Сборочный чертеж
1.251.1-КР-1.2.01.1.02.0 Каркас КЛ-1÷КЛ5
1.251.1-КР-1.2.01.1.02.0 СБ Каркас КЛ-1÷КЛ5. Сборочный чертеж
1.251.1-КР-1.2.01.1.04.0 Каркас КЛ-6,КЛ7
1.251.1-КР-1.2.01.1.04.0 СБ Каркас КЛ-6,КЛ7. Сборочный чертеж
1.251.1-КР-1.2.01.1.05.0 Каркас КЛ-8,КЛ9
1.251.1-КР-1.2.01.1.05.0 СБ Каркас КЛ-8,КЛ9. Сборочный чертеж
1.251.1-КР-1.2.01.0.01.0 Изделия закладные МЛ-1
1.251.1-КР-1.2.01.0.02.0 Изделия закладные МЛ-2
1.251.1-КР-1.2.01.0.03.0 Изделия закладные МЛ-3
Разработан: ЛенжилНИИпроект
Утверждён:05.09.1983 ЛенжилНИИпроект
Расположен в:Техническая документация Строительство Справочные документы Типовые строительные конструкции, изделия и узлы Разработанные другими министерствами, ведомствами и организациями
Серия 1.251.1-КР-1Серия 1.251.1-КР-1Серия 1.251.1-КР-1Серия 1.251.1-КР-1Серия 1.251.1-КР-1Серия 1.251.1-КР-1Серия 1.251.1-КР-1Серия 1.251.1-КР-1Серия 1.251.1-КР-1Серия 1.251.1-КР-1Серия 1.251.1-КР-1Серия 1.251.1-КР-1Серия 1.251.1-КР-1Серия 1.251.1-КР-1Серия 1.251.1-КР-1Серия 1.251.1-КР-1Серия 1.251.1-КР-1

© 2013 Ёшкин Кот :-) Карта сайта