Информационная система
«Ёшкин Кот»

Скачать базу одним архивом
Скачать обновления
История создания базы
Карта сайта

Скачать Типовой проект 213-2-183 Альбом VII. Вариант двойного использования помещений I этажа

Дата актуализации: 10.08.2017

Типовой проект 213-2-183

Альбом VII. Вариант двойного использования помещений I этажа

Обозначение: Типовой проект 213-2-183
Обозначение англ: 213-2-183
Статус:действует
Название рус.:Альбом VII. Вариант двойного использования помещений I этажа
Дата добавления в базу:01.09.2013
Дата актуализации:05.05.2017
Дата введения:27.11.1979
Оглавление:ТП Б-3-200/213-2-183 Заглавный лист
ТП Б-3-200/213-2-183 Пояснительная записка
ТП Б-3-200/213-2-183 Архитектурно-строительная часть
ТП Б-3-200/213-2-183 Отопление и вентиляция
ТП Б-3-200/213-2-183 Водопровод и канализация
ТП Б-3-200/213-2-183 Электрооборудование
ТП Б-3-200/213-2-183 Комплекс связи
ТП Б-3-200/213-2-183-АС-1 Генплан
ТП Б-3-200/213-2-183-АС-2 Вариант для наружных стен при tн=-20ºС,-30ºС. План
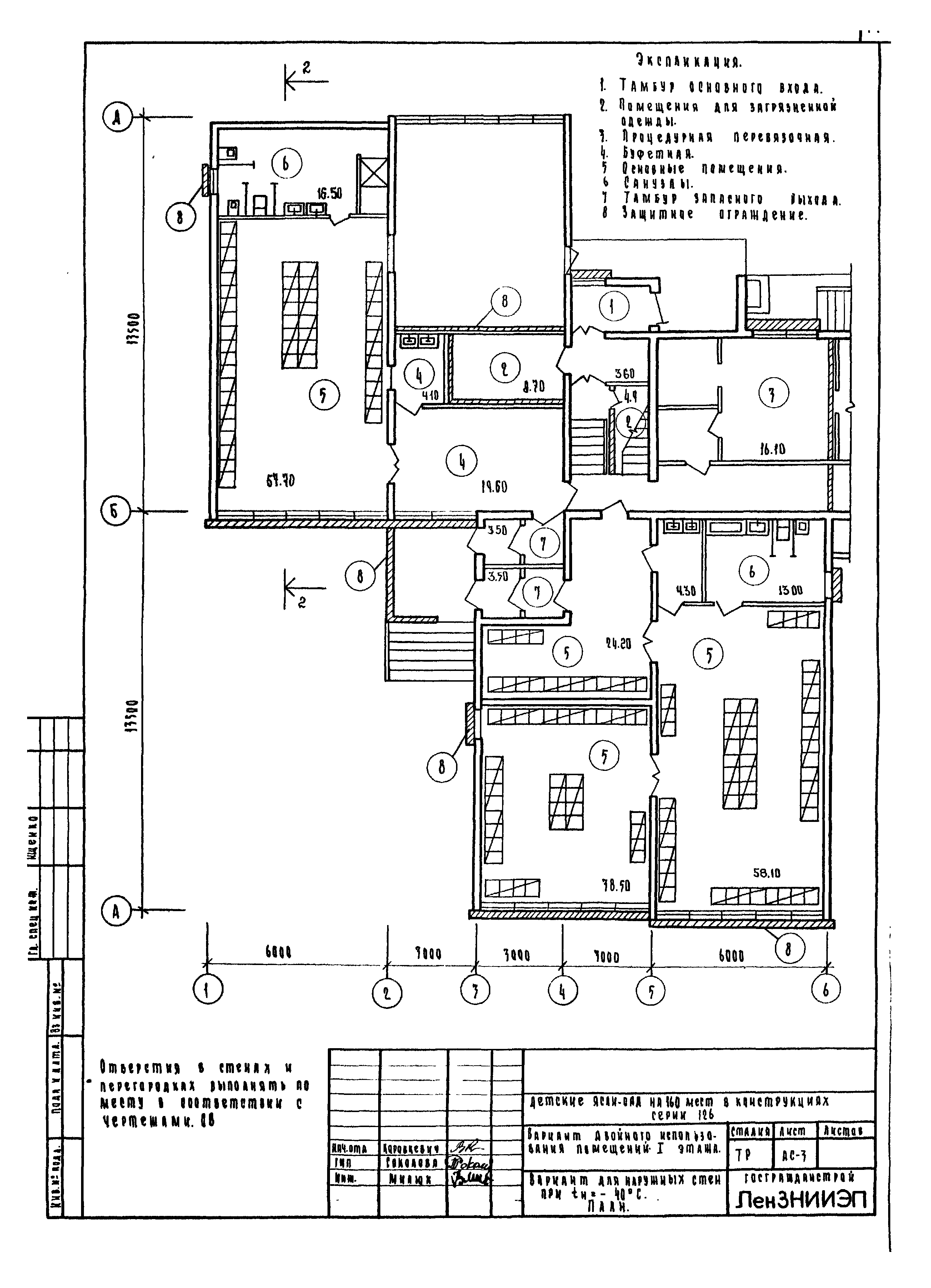
ТП Б-3-200/213-2-183-АС-3 Вариант для наружных стен при tн=-40ºС. План
ТП Б-3-200/213-2-183-АС-4 Разрезы 1-1;2-2
ТП Б-3-200/213-2-183-АС-5 Детали 1 и 2
ТП Б-3-200/213-2-183-ОВ-1 Отопление и вентиляция
ТП Б-3-200/213-2-183-ВК-1 Водопровод и канализация
ТП Б-3-200/213-2-183-ЭЛ-1 Электрооборудование
ТП Б-3-200/213-2-183-ОВ-1 Устройства связи
ТП Б-3-200/213-2-183-ОВ-2 Дополнительные спецификации по отоплению, вентиляции и связи
ТП Б-3-200/213-2-183 Расчет стоимости
ТП Б-3-200/213-2-183-АС Сметы
Разработан: ЛенЗНИИЭП Госгражданстроя
Утверждён:03.05.1979 Госгражданстрой (Gosgrazhdanstroy 90)
Расположен в:Техническая документация Строительство Справочные документы Типовые строительные конструкции, изделия и узлы Общероссийский строительный каталог Общественные здания в городах и поселках городского типа Детские дошкольные учреждения Детские ясли-сады
Типовой проект 213-2-183Типовой проект 213-2-183Типовой проект 213-2-183Типовой проект 213-2-183Типовой проект 213-2-183Типовой проект 213-2-183Типовой проект 213-2-183Типовой проект 213-2-183Типовой проект 213-2-183Типовой проект 213-2-183Типовой проект 213-2-183Типовой проект 213-2-183Типовой проект 213-2-183Типовой проект 213-2-183Типовой проект 213-2-183Типовой проект 213-2-183Типовой проект 213-2-183Типовой проект 213-2-183Типовой проект 213-2-183Типовой проект 213-2-183Типовой проект 213-2-183Типовой проект 213-2-183Типовой проект 213-2-183Типовой проект 213-2-183Типовой проект 213-2-183Типовой проект 213-2-183

© 2013 Ёшкин Кот :-) Карта сайта