Информационная система
«Ёшкин Кот»

Скачать базу одним архивом
Скачать обновления
История создания базы
Карта сайта

Скачать Серия 5.905-КР-1 Выпуск 1. Рабочие чертежи

Дата актуализации: 10.08.2017

Серия 5.905-КР-1

Выпуск 1. Рабочие чертежи

Обозначение: Серия 5.905-КР-1
Обозначение англ: Series 5.905-КР-1
Статус:действует
Название рус.:Выпуск 1. Рабочие чертежи
Дата добавления в базу:01.09.2013
Дата актуализации:05.05.2017
Дата введения:01.01.1987
Оглавление:5.905-КР-1.1.00.0.00 Содержание
5.905-КР-1.1.00.0.00 ТО Техническое описание
5.905-КР-1.1.01.0.00 Крепление газопровода при обводке лифтовых шахт. Вариант 1
5.905-КР-1.1.01.0.00 СБ Крепление газопровода при обводке лифтовых шахт. Вариант 1. Сборочный чертеж
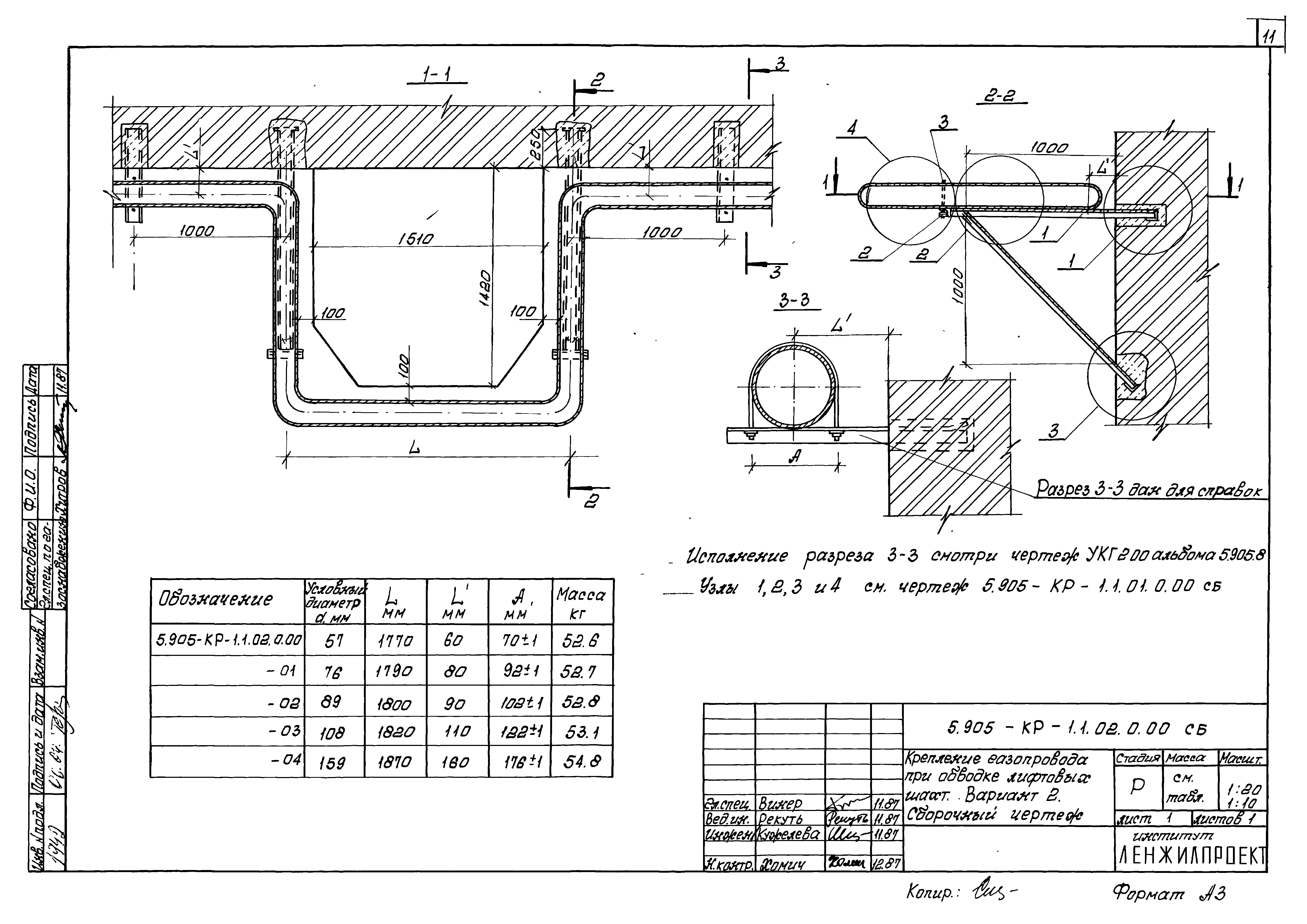
5.905-КР-1.1.02.0.00 Крепление газопровода при обводке лифтовых шахт. Вариант 2
5.905-КР-1.1.02.0.00 СБ Крепление газопровода при обводке лифтовых шахт. Вариант 2. Сборочный чертеж
5.905-КР-1.1.01.1.01 Кронштейн К-1
5.905-КР-1.1.01.1.01 СБ Кронштейн К-1. Сборочный чертеж
5.905-КР-1.1.02.1.02 Кронштейн К-2
5.905-КР-1.1.02.1.02 СБ Кронштейн К-2. Сборочный чертеж
5.905-КР-1.1.01.1.01.1 Консоль
5.905-КР-1.1.01.1.012 Упор
5.905-КР-1.1.01.1.013 Уголок
5.905-КР-1.1.03.0.00 Прокладка газопроводов между зданиями. Монтажные схемы. Вариант 1
5.905-КР-1.1.03.0.00 СБ Прокладка газопроводов между зданиями. Монтажные схемы. Вариант 1. Сборочный чертеж
5.905-КР-1.1.03.1.00 Кронштейн К-3(К-3´)
5.905-КР-1.1.03.1.00 СБ Кронштейн К-3(К-3´). Сборочный чертеж
5.905-КР-1.1.03.1.02 Скоба
5.905-КР-1.1.04.0.00 Прокладка газопроводов между зданиями. Монтажные схемы. Вариант 2
5.905-КР-1.1.04.0.00 СБ Прокладка газопроводов между зданиями. Монтажные схемы. Вариант 2. Сборочный чертеж
5.905-КР-1.1.05.0.00 Защита горизонтальных и вертикальных газопроводов в арках и подъездах
5.905-КР-1.1.05.0.00 СБ Защита горизонтальных и вертикальных газопроводов в арках и подъездах. Сборочный чертеж
5.905-КР-1.1.05.1.02 Консоль
5.905-КР-1.1.05.1.02.0 Защитное устройство вертикального газопровода (ЗУВ-1÷ЗУВ-5)
5.905-КР-1.1.05.1.02.0 СБ Защитное устройство вертикального газопровода (ЗУВ-1÷ЗУВ-5). Сборочный чертеж
5.905-КР-1.1.06.0.00 Обвод газопроводов водосточными трубами
5.905-КР-1.1.07.0.01.0 Защита газопроводов на стенах Ду=50 мм и Ду=65 мм. Вариант 1
5.905-КР-1.1.07.0.01.0 СБ Защита газопроводов на стенах Ду=50 мм и Ду=65 мм. Вариант 1. Сборочный чертеж
5.905-КР-1.1.08.0.01.0 Защита газопроводов на стенах Ду=8,100,150 мм. Вариант 2
5.905-КР-1.1.08.0.01.0 СБ Защита газопроводов на стенах Ду=8,100,150 мм. Вариант 2. Сборочный чертеж
5.905-КР-1.1.09.0.01.0 Защита горизонтального ИФС от атмосферных осадков
5.905-КР-1.1.09.0.01.0 СБ Защита горизонтального ИФС от атмосферных осадков. Сборочный чертеж
5.905-КР-1.1.10.0.01.0 Защита вертикального ИФС от атмосферных осадков
5.905-КР-1.1.10.0.01.0 СБ Защита вертикального ИФС от атмосферных осадков. Сборочный чертеж
5.905-КР-1.1.10.0.01.1 Хомут
5.905-КР-1.1.10.0.01.1 СБ Хомут. Сборочный чертеж
5.905-КР-1.1.11.1.01.1 Кронштейн К-4÷К-6
Разработан: ЛенжилНИИпроект
Утверждён: Ленжилпроект
Расположен в:Техническая документация Строительство Справочные документы Типовые строительные конструкции, изделия и узлы Общероссийский строительный каталог Строительные конструкции, изделия и узлы зданий и сооружений для всех видов строительства Инженерное оборудование Инженерное оборудование; изделия и узлы инженерного оборудования зданий и сооружений Установки газоснабжения
Серия 5.905-КР-1Серия 5.905-КР-1Серия 5.905-КР-1Серия 5.905-КР-1Серия 5.905-КР-1Серия 5.905-КР-1Серия 5.905-КР-1Серия 5.905-КР-1Серия 5.905-КР-1Серия 5.905-КР-1Серия 5.905-КР-1Серия 5.905-КР-1Серия 5.905-КР-1Серия 5.905-КР-1Серия 5.905-КР-1Серия 5.905-КР-1Серия 5.905-КР-1Серия 5.905-КР-1Серия 5.905-КР-1Серия 5.905-КР-1Серия 5.905-КР-1Серия 5.905-КР-1Серия 5.905-КР-1Серия 5.905-КР-1Серия 5.905-КР-1Серия 5.905-КР-1Серия 5.905-КР-1Серия 5.905-КР-1Серия 5.905-КР-1Серия 5.905-КР-1Серия 5.905-КР-1Серия 5.905-КР-1Серия 5.905-КР-1Серия 5.905-КР-1Серия 5.905-КР-1Серия 5.905-КР-1Серия 5.905-КР-1Серия 5.905-КР-1Серия 5.905-КР-1

© 2013 Ёшкин Кот :-) Карта сайта