Информационная система
«Ёшкин Кот»

Скачать базу одним архивом
Скачать обновления
История создания базы
Карта сайта

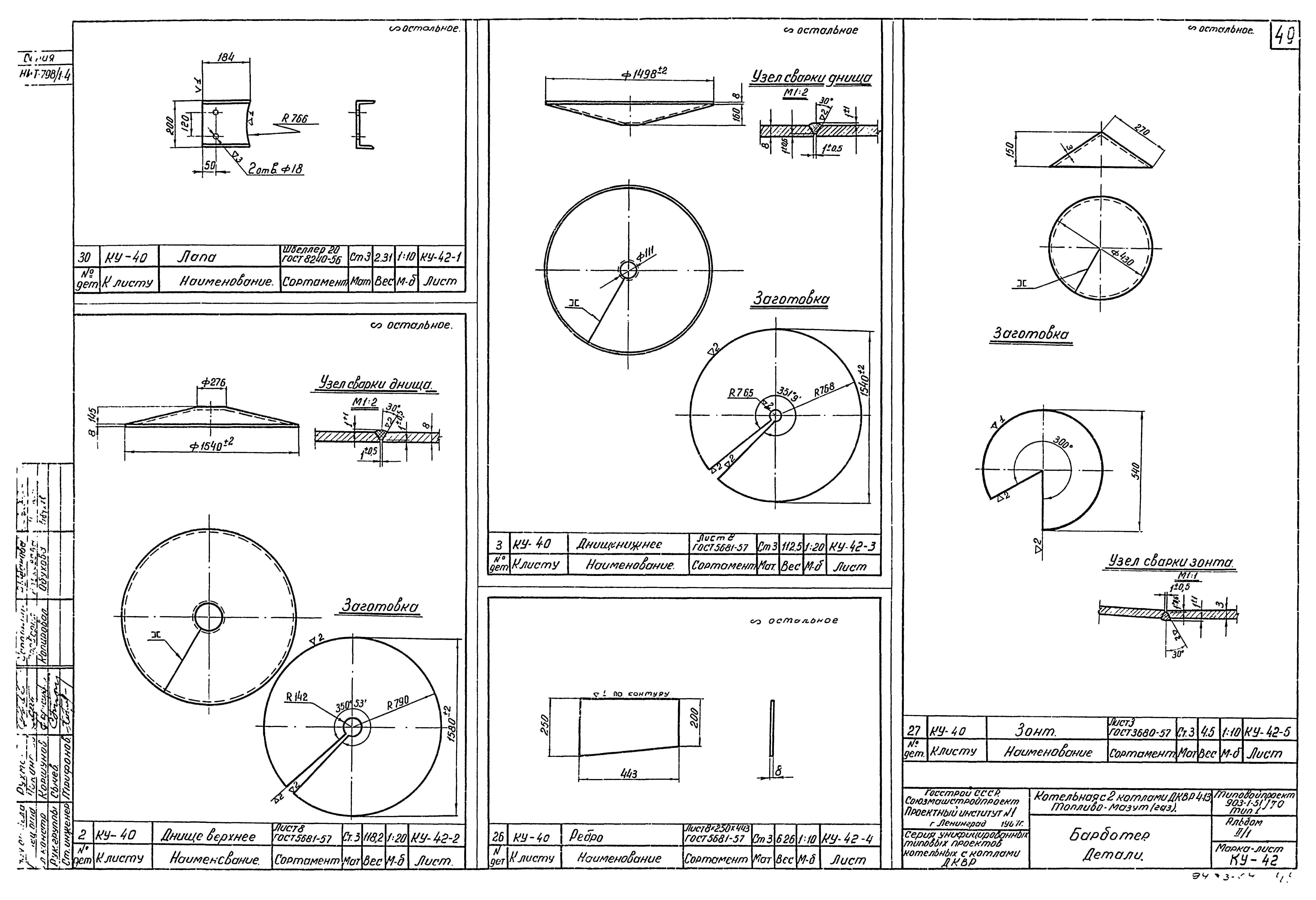
Скачать Типовой проект 903-1-51/70 Альбом II/1. Тип 1. Общая тепломеханическая часть

Дата актуализации: 10.08.2017

Типовой проект 903-1-51/70

Альбом II/1. Тип 1. Общая тепломеханическая часть

Обозначение: Типовой проект 903-1-51/70
Обозначение англ: 903-1-51/70
Статус:действует
Название рус.:Альбом II/1. Тип 1. Общая тепломеханическая часть
Дата добавления в базу:01.02.2017
Дата актуализации:05.05.2017
Разработан: Проектный институт № 1 Госстроя СССР
Утверждён:31.07.1970 Госстрой СССР (Государственный комитет Совета Министров СССР по делам строительства) (USSR Gosstroy 255)
Издан: ЦИТП Госстроя СССР (CITP, Gosstroy (USSR) 1974 г. )
Расположен в:Техническая документация Строительство Справочные документы Типовые строительные конструкции, изделия и узлы Общероссийский строительный каталог Промышленные предприятия, здания и сооружения Здания и сооружения санитарно-технические Теплоснабжение Котельные установки Закрытые системы теплоснабжения Топливо - мазут
Типовой проект 903-1-51/70Типовой проект 903-1-51/70Типовой проект 903-1-51/70Типовой проект 903-1-51/70Типовой проект 903-1-51/70Типовой проект 903-1-51/70Типовой проект 903-1-51/70Типовой проект 903-1-51/70Типовой проект 903-1-51/70Типовой проект 903-1-51/70Типовой проект 903-1-51/70Типовой проект 903-1-51/70Типовой проект 903-1-51/70Типовой проект 903-1-51/70Типовой проект 903-1-51/70Типовой проект 903-1-51/70Типовой проект 903-1-51/70Типовой проект 903-1-51/70Типовой проект 903-1-51/70Типовой проект 903-1-51/70Типовой проект 903-1-51/70Типовой проект 903-1-51/70Типовой проект 903-1-51/70Типовой проект 903-1-51/70Типовой проект 903-1-51/70Типовой проект 903-1-51/70Типовой проект 903-1-51/70Типовой проект 903-1-51/70Типовой проект 903-1-51/70Типовой проект 903-1-51/70Типовой проект 903-1-51/70Типовой проект 903-1-51/70Типовой проект 903-1-51/70Типовой проект 903-1-51/70Типовой проект 903-1-51/70Типовой проект 903-1-51/70Типовой проект 903-1-51/70Типовой проект 903-1-51/70Типовой проект 903-1-51/70Типовой проект 903-1-51/70Типовой проект 903-1-51/70Типовой проект 903-1-51/70Типовой проект 903-1-51/70Типовой проект 903-1-51/70Типовой проект 903-1-51/70Типовой проект 903-1-51/70Типовой проект 903-1-51/70Типовой проект 903-1-51/70Типовой проект 903-1-51/70Типовой проект 903-1-51/70Типовой проект 903-1-51/70Типовой проект 903-1-51/70Типовой проект 903-1-51/70Типовой проект 903-1-51/70

© 2013 Ёшкин Кот :-) Карта сайта