Скачать Типовой проект 503-313 Альбом III. Электротехнические чертежи. Чертежи связи, сигнализации и автоматизацииДата актуализации: 10.08.2017 Типовой проект 503-313
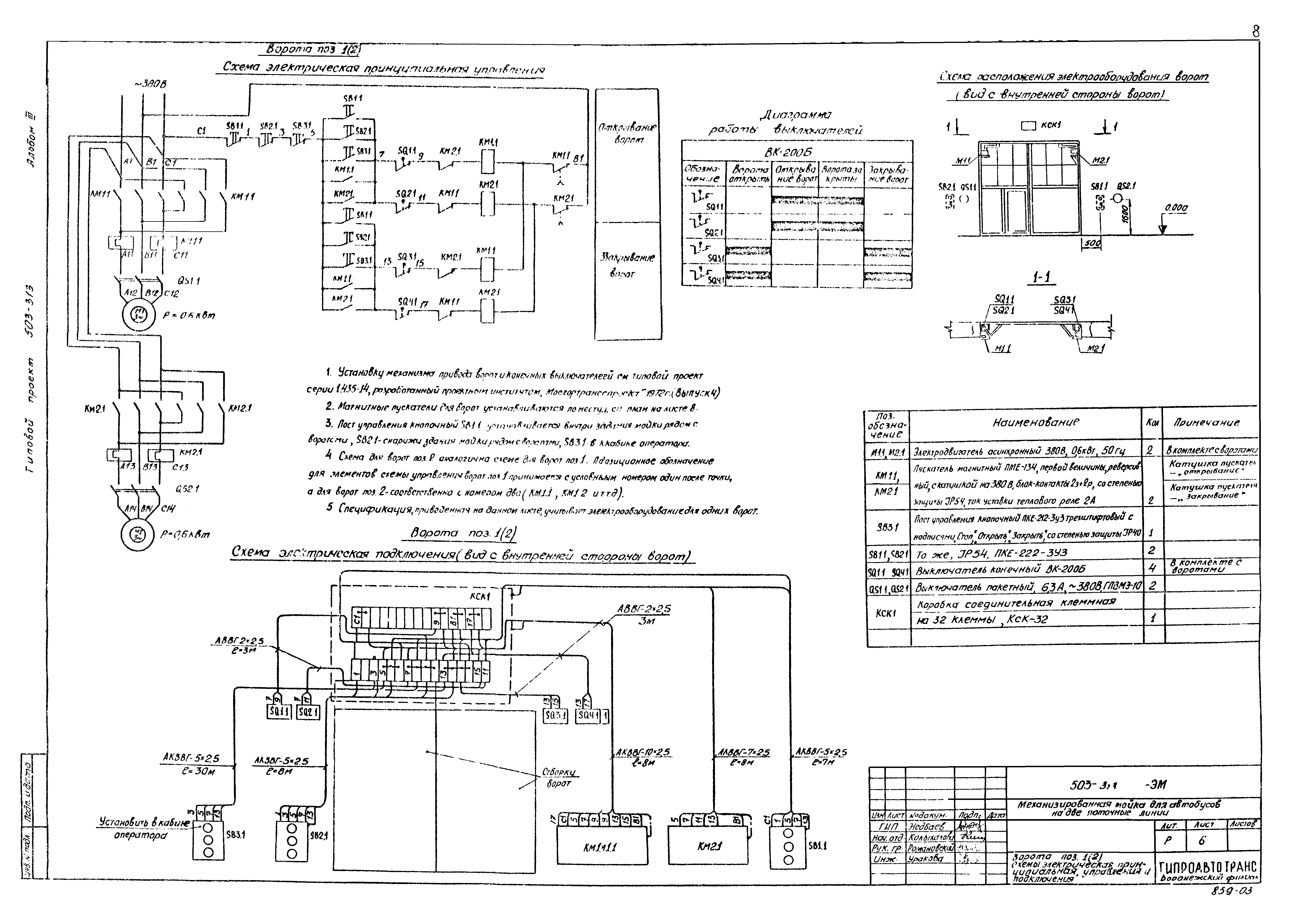
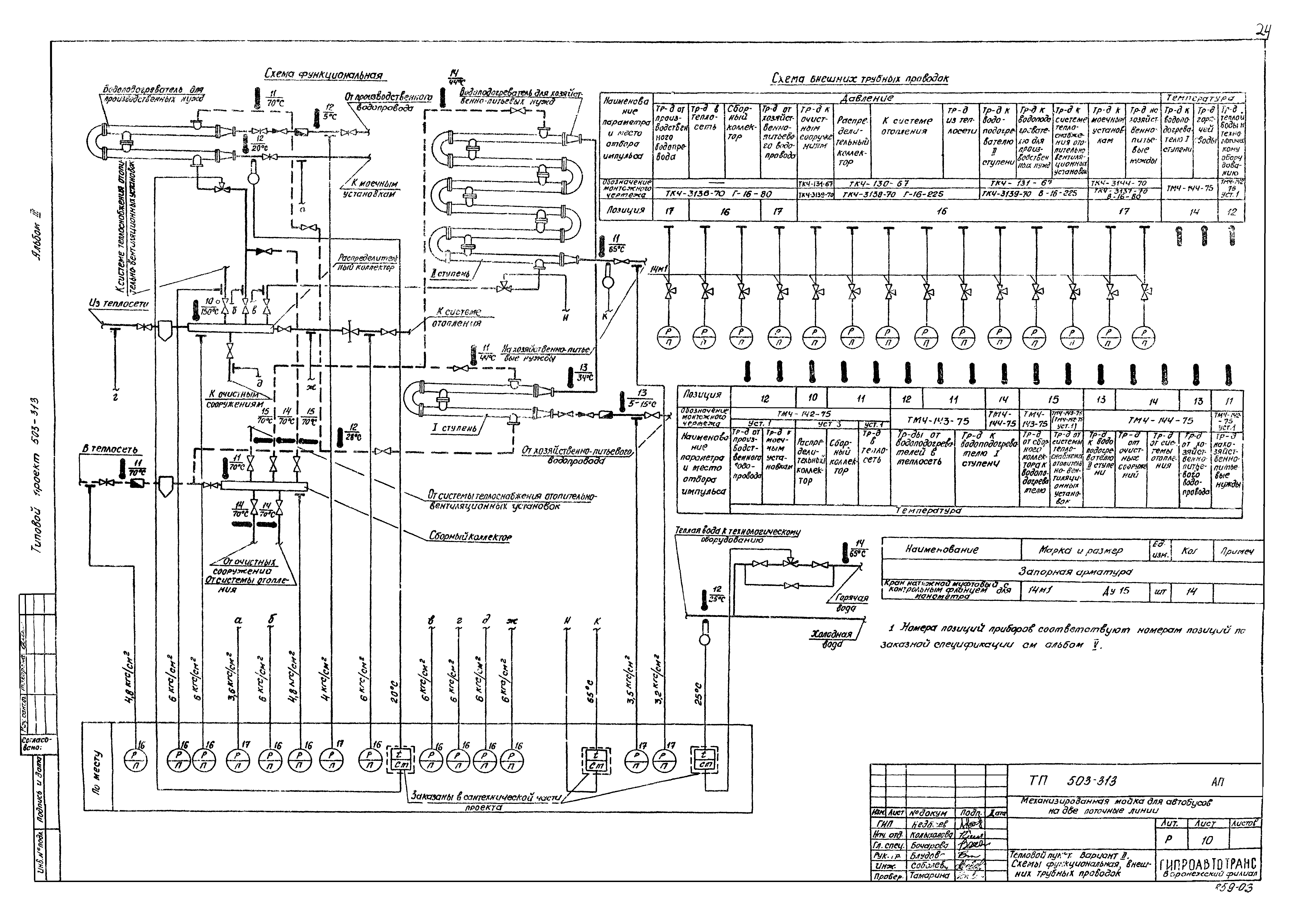
Альбом III. Электротехнические чертежи. Чертежи связи, сигнализации и автоматизацииОбозначение: | Типовой проект 503-313 | Обозначение англ: | 503-313 | Статус: | не действует | Название рус.: | Альбом III. Электротехнические чертежи. Чертежи связи, сигнализации и автоматизации | Дата добавления в базу: | 01.09.2013 | Дата актуализации: | 05.05.2017 | Оглавление: | ТП 503-313-ЭМ-1 Общие данные. Основные показатели. Ведомости чертежей ТП 503-313-ЭМ-2 Схема электрическая принципиальная 380/220 В 1ШР ТП 503-313-ЭМ-3 Схема электрическая принципиальная 380/220 В 2ШР ТП 503-313-ЭМ-4 Схемы электрические принципиальные 380/220 В 3ШР,4ШР ТП 503-313-ЭМ-5 Схема электрическая принципиальная 380/220 В 5ШР ТП 503-313-ЭМ-6 Ворота поз. 1(2). Схема электрическая принципиальная управления и подключения ТП 503-313-ЭМ-7 Ворота поз. 15(16). Схема электрическая принципиальная управления и подключения ТП 503-313-ЭМ-8 Планы на отм. 0.000 и 3.000 ТП 503-313-ЭМ-9 План раскладки лотков. Схема раскладки лотков ТП 503-313-ЭО-1 Общие данные. Основные показатели. Ведомости чертежей ТП 503-313-ЭО-2 План на отм. 0.000 ТП 503-313-ЭО-3 План на отм. 3.000. Принципиальная схема питающей сети ТП 503-313-АП-1 Общие данные (начало) ТП 503-313-АП-2 Общие данные (окончание) ТП 503-313-АП-3 Приточная система П1(П2-П5). Схема функциональная ТП 503-313-АП-4 Приточная система П1(П2-П5). Схема электрическая принципиальная управления ТП 503-313-АП-5 Приточная система П1(П2-П5). Схема электрическая принципиальная регулирования ТП 503-313-АП-6 Приточная система П1(П2-П5). Схема внешних электрических проводок ТП 503-313-АП-7 Воздушно-тепловые завесы У1,У2(У3-У8). Схемы функциональная, электрическая принципиальная управления ТП 503-313-АП-8 Воздушно-тепловые завесы У1,У2(У3-У8). Схема внешних электрических проводок ТП 503-313-АП-9 Тепловой пункт. Вариант 1. Схемы функциональная, внешних трубных проводок ТП 503-313-АП-10 Тепловой пункт. Вариант 2. Схемы функциональная, внешних трубных проводок ТП 503-313-АП-11 План расположения средств автоматизации и проводок (начало) ТП 503-313-АП-12 План расположения средств автоматизации и проводок (окончание). Изменения в схемах конвейера ТП 503-313-АП-13 Насос мойки верха автобусов. Схемы электрическая принципиальная управления, внешних электрических и трубных проводок ТП 503-313-СС-1 Общие данные ТП 503-313-СС-2 Комплексная сеть и сеть громкоговорящего оповещения. План на отм. 0.000. Фрагмент плана | Разработан: | Воронежский филиал Гипроавтотранс
| Утверждён: | 14.08.1978 Минавтотранс РСФСР (Russian Federation Minavtotrans 56)
| Расположен в: |
| Чем заменён: | |
                             
|