Информационная система
«Ёшкин Кот»

Скачать базу одним архивом
Скачать обновления
История создания базы
Карта сайта

Скачать Типовой проект 705-1-143 Альбом IV. Электротехнические чертежи. Чертежи по связи и сигнализации. Чертежи задания заводу-изготовителю

Дата актуализации: 10.08.2017

Типовой проект 705-1-143

Альбом IV. Электротехнические чертежи. Чертежи по связи и сигнализации. Чертежи задания заводу-изготовителю

Обозначение: Типовой проект 705-1-143
Обозначение англ: 705-1-143
Статус:не действует
Название рус.:Альбом IV. Электротехнические чертежи. Чертежи по связи и сигнализации. Чертежи задания заводу-изготовителю
Дата добавления в базу:01.09.2013
Дата актуализации:05.05.2017
Оглавление:ТП 705-1-143-СА-1 Содержание альбома
ТП 705-1-143-ЭЛ Электротехнические устройства
ТП 705-1-143-ЭЛ-1...ЭЛ-4 Общие данные
ТП 705-1-143-ЭЛ-5,ЭЛ-6 Принципиальная однолинейная схема
ТП 705-1-143-ЭЛ-7 Схемы: электрическая принципиальная, функциональная, блокировочных зависимостей
ТП 705-1-143-ЭЛ-8 Схемы: электрическая принципиальная, сигнализации
ТП 705-1-143-ЭЛ-9 Шибер 4(6). Аспирация 15. Вентиляторы 16,17 (18...23). Вибратор 7(8). Схема электрическая принципиальная
ТП 705-1-143-ЭЛ-10 ЩСУ панели 1,2,3. Пульт управления ПУ. Схема подключений
ТП 705-1-143-ЭЛ-11 Вентиляторы 16...23. Шибер 6. Вибраторы 7,8. Аспирация 15. Шибер 4. Конвейеры 1,2,3. Схемы подключения
ТП 705-1-143-ЭЛ-12 Схема расположения. Компоновочная схема склада
ТП 705-1-143-ЭЛ-13 Помещение склада. Схема расположения. План на отм. 11.200
ТП 705-1-143-ЭЛ-14,ЭЛ-15 Кабельный журнал
ТП 705-1-143-ЭЛ Электроосвещение
ТП 705-1-143-ЭЛ-16 План на отм. 0.000. Комплектные узлы
ТП 705-1-143-ЭЛ-17 Планы на отм. 0.000;6.400;11.200;13.250. Комплектные узлы
ТП 705-1-143-ЭЛ Силовое электрооборудование
ТП 705-1-143-ЭЛ-18 План магистралей зануления. Схема молниезащиты
ТП 705-1-143 Устройство связи
ТП 705-1-143-СУ-1 Общие данные. План на отм. 0.000
ТП 705-1-143 Задание заводу-изготовителю
ТП 705-1-143-ЭЛ-00-00 Перечень чертежей
ТП 705-1-143-ЭЛ-01-00 СБ Щит управления крупноблочный в шкафах ЩСУ. Общий вид
ТП 705-1-143-ЭЛ-01-00-1 Щит управления крупноблочный в шкафах ЩСУ. Технические данные электрооборудования
ТП 705-1-143-ЭЛ-01-00-2 Щит управления крупноблочный в шкафах ЩСУ. Перечень надписей
ТП 705-1-143-ЭЛ-01-03 СБ Щит управления крупноблочный в шкафах ЩСУ. Панель 3. Блок релейный. Общий вид
ТП 705-1-143-ЭЛ-01-03-1 Щит управления крупноблочный в шкафах ЩСУ. Панель 3. Блок релейный. Технические данные электрооборудования
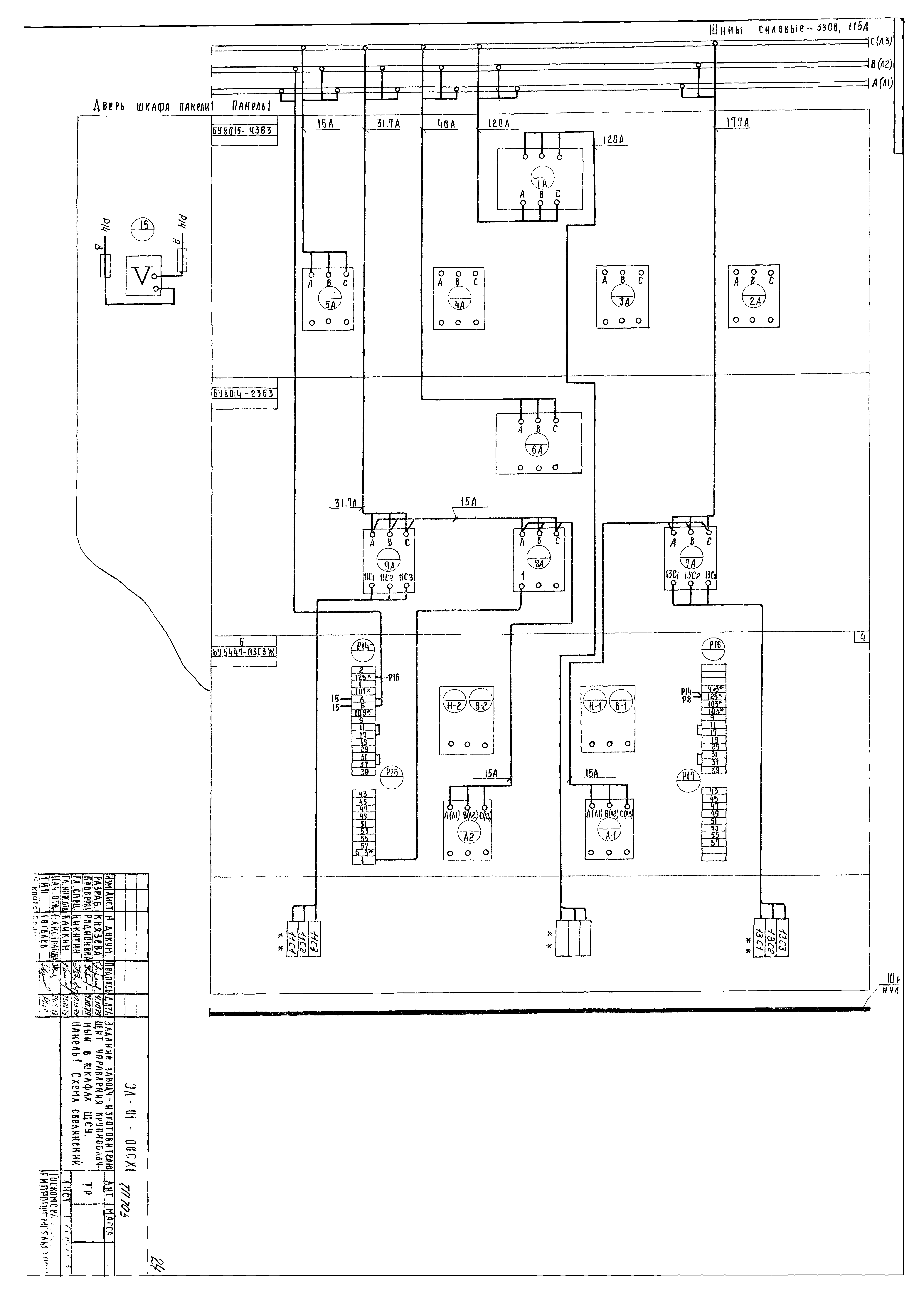
ТП 705-1-143-ЭЛ-01-00СХ1 Щит управления крупноблочный в шкафах ЩСУ. Панель 1. Схема соединений
ТП 705-1-143-ЭЛ-01-00СХ2 Щит управления крупноблочный в шкафах ЩСУ. Панель 2. Схема соединений
ТП 705-1-143-ЭЛ-01-03СХ Щит управления крупноблочный в шкафах ЩСУ. Панель 3. Схема соединений
ТП 705-1-143-ЭЛ-02-00 СБ Пульт управления ПУ. Общий вид
ТП 705-1-143-ЭЛ-02-00-1 Пульт управления ПУ. Технические данные электрооборудования
ТП 705-1-143-ЭЛ-02-00-2 Пульт управления ПУ. Перечень надписей
ТП 705-1-143-ЭЛ-02-00СХ Пульт управления ПУ. Схема соединений
Разработан: Гипропромсельстрой
Утверждён:28.09.1979 Госкомсельхозтехника СССР (82)
Расположен в:Техническая документация Строительство Справочные документы Типовые строительные конструкции, изделия и узлы Общероссийский строительный каталог Сельскохозяйственные предприятия, здания и сооружения Предприятия, здания и сооружения по ремонту, техническому обслуживанию, хранению и обеспечению горюче-смазочными материалами сельхозтехники Прирельсовые склады твердых минеральных удобрений
Типовой проект 705-1-143Типовой проект 705-1-143Типовой проект 705-1-143Типовой проект 705-1-143Типовой проект 705-1-143Типовой проект 705-1-143Типовой проект 705-1-143Типовой проект 705-1-143Типовой проект 705-1-143Типовой проект 705-1-143Типовой проект 705-1-143Типовой проект 705-1-143Типовой проект 705-1-143Типовой проект 705-1-143Типовой проект 705-1-143Типовой проект 705-1-143Типовой проект 705-1-143Типовой проект 705-1-143Типовой проект 705-1-143Типовой проект 705-1-143Типовой проект 705-1-143Типовой проект 705-1-143Типовой проект 705-1-143Типовой проект 705-1-143Типовой проект 705-1-143Типовой проект 705-1-143Типовой проект 705-1-143Типовой проект 705-1-143Типовой проект 705-1-143Типовой проект 705-1-143

© 2013 Ёшкин Кот :-) Карта сайта