Информационная система
«Ёшкин Кот»

Скачать базу одним архивом
Скачать обновления
История создания базы
Карта сайта

Скачать Типовой проект 507-63 Альбом III. Ворота распашные 3х3 м и строительные изделия

Дата актуализации: 10.08.2017

Типовой проект 507-63

Альбом III. Ворота распашные 3х3 м и строительные изделия

Обозначение: Типовой проект 507-63
Обозначение англ: 507-63
Статус:действует
Название рус.:Альбом III. Ворота распашные 3х3 м и строительные изделия
Дата добавления в базу:01.09.2013
Дата актуализации:05.05.2017
Дата введения:08.12.1980
Оглавление:ТП 507-63-КЖИ Содержание
ТП 507-63-КЖИ-В1ПЗ Пояснительная записка
ТП 507-63-КЖИ-В1ТУ Технические условия
ТП 507-63-КЖИ-В1 Ворота распашные 3х3 м В1
ТП 507-63-КЖИ-В1 СБ Ворота распашные 3х3 м В1. Сборочный чертеж
ТП 507-63-КЖИ-КЛ1 Каркас левого полотна КЛ1
ТП 507-63-КЖИ-КЛ1 СБ Каркас левого полотна КЛ1. Сборочный чертеж
ТП 507-63-КЖИ-КП1 Каркас правого полотна КЛ1
ТП 507-63-КЖИ-КП1 СБ Каркас правого полотна КЛ1. Сборочный чертеж
ТП 507-63-КЖИ-КС1,КС2 Косынка КС1,КС2
ТП 507-63-КЖИ-ПП1,ПП2 Поперечина ПП1,ПП2
ТП 507-63-КЖИ-ПП3,ПП4,ПП8 Поперечина ПП3,ПП4,ПП8
ТП 507-63-КЖИ-ПП5,ПП6,ПП7 Поперечина ПП5,ПП6,ПП7
ТП 507-63-КЖИ-06 Обшивка 06
ТП 507-63-КЖИ-03 Обшивка 03
ТП 507-63-КЖИ-04 Обшивка 04
ТП 507-63-КЖИ-Б1,Б2 Брусок Б1,Б2
ТП 507-63-КЖИ-ОБ1 Оконный блок ОБ1
ТП 507-63-КЖИ-П1,П2 Планка П1,П2
ТП 507-63-КЖИ-П3 Планка П3
ТП 507-63-КЖИ-П2 Панель перекрытия П2
ТП 507-63-КЖИ-С1,С2 Сетка С1,С2
ТП 507-63-КЖИ-ОП1 Опорная подушка ОП1
ТП 507-63-КЖИ-С1 Стремянка С1
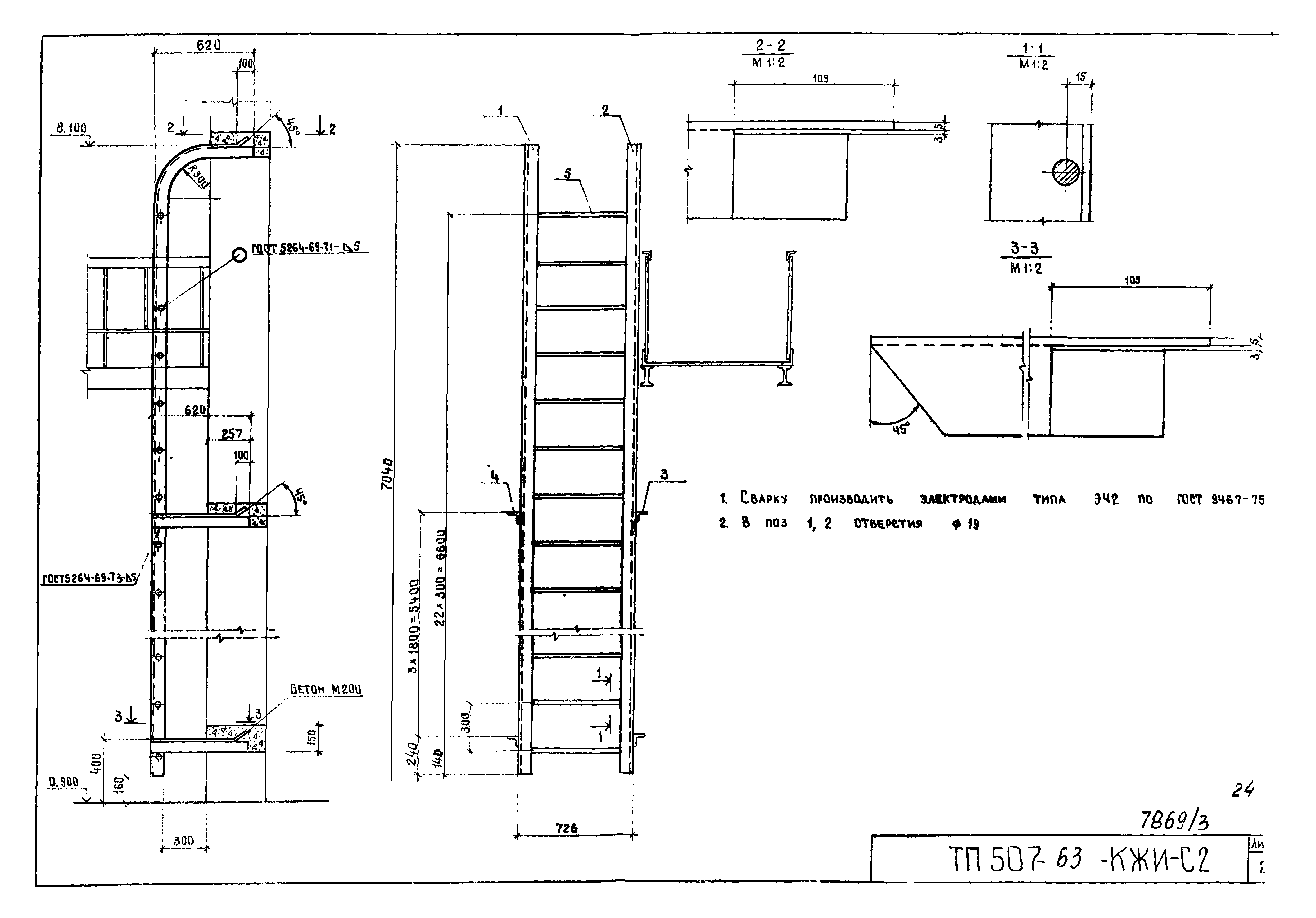
ТП 507-63-КЖИ-С2 Стремянка С2
ТП 507-63-КЖИ-С1 Стремянка С1
ТП 507-63-КЖИ-С2 Стремянка С2
ТП 507-63-КЖИ-ЛМ1 Лестница металлическая ЛМ1
ТП 507-63-КЖИ-МП2 Площадка металлическая МП2
ТП 507-63-КЖИ-МП2 СБ Площадка металлическая МП2. Сборочный чертеж
ТП 507-63-КЖИ-МП3 Площадка металлическая МП3
ТП 507-63-КЖИ-МП3 СБ Площадка металлическая МП3. Сборочный чертеж
ТП 507-63-КЖИ-ОГ1 Ограждение ОГ1
ТП 507-63-КЖИ-ОГ1П Ограждение правое ОГ1П
ТП 507-63-КЖИ-ОГ1Л Ограждение правое ОГ1Л
ТП 507-63-КЖИ-ОГ2П Ограждение правое ОГ2П
ТП 507-63-КЖИ-ОГ2Л Ограждение правое ОГ2Л
ТП 507-63-КЖИ-МО1 Обрамление ворот металлическое МО1
ТП 507-63-КЖИ-МО2 Обрамление двери металлическое МО2
ТП 507-63-КЖИ-МО3 Обрамление ворот металлическое МО3
ТП 507-63-КЖИ-Щ1,Щ7 Металлические щиты Щ1,Щ7
ТП 507-63-КЖИ-Щ4 Металлический щит Щ4
ТП 507-63-КЖИ-Щ2,Щ8,Щ15,Щ16,Щ18 Металлические щиты Щ2,Щ8,Щ15,Щ16,Щ18
ТП 507-63-КЖИ-Щ3,Щ14 Металлические щиты Щ3,Щ14
ТП 507-63-КЖИ-Щ5,Щ6 Металлические щиты Щ5,Щ6
ТП 507-63-КЖИ-Щ9,Щ10,Щ13,Щ17,Щ20 Металлические щиты Щ9,Щ10,Щ13,Щ17,Щ20
ТП 507-63-КЖИ-Щ11,Щ12,Щ19 Металлические щиты Щ11,Щ12,Щ19
ТП 507-63-КЖИ-Щ21 Металлический щит Щ21
ТП 507-63-КЖИ-МР1 Решетка металлическая МР1
ТП 507-63-КЖИ-БМ1,БМ8 Балка металлическая БМ1,БМ8
ТП 507-63-КЖИ-БМ2 Балка металлическая БМ2
ТП 507-63-КЖИ-БМ3 Балка металлическая БМ3
ТП 507-63-КЖИ-БМ4 Балка металлическая БМ4
ТП 507-63-КЖИ-МР2 Металлическая рама МР2
ТП 507-63-КЖИ-БМ5 Балка металлическая БМ5
ТП 507-63-КЖИ-А3 Болт анкерный А3
ТП 507-63-КЖИ-БМ6,БМ7 Балки металлические БМ6,БМ7
ТП 507-63-КЖИ-РМ1 Рама металлическая РМ1
ТП 507-63-КЖИ-РМ2 Рама металлическая РМ2
ТП 507-63-КЖИ-ЖР1,ЖР2 Жалюзийные решетки ЖР1,ЖР2
ТП 507-63-КЖИ-ЖР3 Жалюзийная решетка ЖР3
ТП 507-63-КЖИ-МН1 Закладная деталь МН1
ТП 507-63-КЖИ-А1,А2 Анкеры А1,А2
ТП 507-63-КЖИ-КР-1 Каркас плоский КР-1
ТП 507-63-КЖИ-КР-2 Каркас плоский КР-2
Разработан: Укрюжгипрокоммунстрой Минжилкомхоза УССР
Утверждён:05.12.1980 МЖКХ УССР (453)
Расположен в:Техническая документация Строительство Справочные документы Типовые строительные конструкции, изделия и узлы Общероссийский строительный каталог Промышленные предприятия, здания и сооружения Предприятия, здания и сооружения транспорта Транспорт городской, кроме автомобильного
Типовой проект 507-63Типовой проект 507-63Типовой проект 507-63Типовой проект 507-63Типовой проект 507-63Типовой проект 507-63Типовой проект 507-63Типовой проект 507-63Типовой проект 507-63Типовой проект 507-63Типовой проект 507-63Типовой проект 507-63Типовой проект 507-63Типовой проект 507-63Типовой проект 507-63Типовой проект 507-63Типовой проект 507-63Типовой проект 507-63Типовой проект 507-63Типовой проект 507-63Типовой проект 507-63Типовой проект 507-63Типовой проект 507-63Типовой проект 507-63Типовой проект 507-63Типовой проект 507-63Типовой проект 507-63Типовой проект 507-63Типовой проект 507-63Типовой проект 507-63Типовой проект 507-63Типовой проект 507-63Типовой проект 507-63Типовой проект 507-63Типовой проект 507-63Типовой проект 507-63Типовой проект 507-63Типовой проект 507-63Типовой проект 507-63Типовой проект 507-63Типовой проект 507-63Типовой проект 507-63Типовой проект 507-63Типовой проект 507-63Типовой проект 507-63Типовой проект 507-63Типовой проект 507-63Типовой проект 507-63Типовой проект 507-63Типовой проект 507-63Типовой проект 507-63Типовой проект 507-63Типовой проект 507-63Типовой проект 507-63Типовой проект 507-63

© 2013 Ёшкин Кот :-) Карта сайта