Информационная система
«Ёшкин Кот»

Скачать базу одним архивом
Скачать обновления
История создания базы
Карта сайта

Скачать Типовой проект 503-4-70.13.91 Альбом 3. Архитектурные решения. Конструкции железобетонные. Конструкции металлические

Дата актуализации: 10.08.2017

Типовой проект 503-4-70.13.91

Альбом 3. Архитектурные решения. Конструкции железобетонные. Конструкции металлические

Обозначение: Типовой проект 503-4-70.13.91
Обозначение англ: 503-4-70.13.91
Статус:не определен законодательством
Название рус.:Альбом 3. Архитектурные решения. Конструкции железобетонные. Конструкции металлические
Дата добавления в базу:01.09.2013
Дата актуализации:05.05.2017
Дата введения:22.11.1991
Оглавление:ТП 503-4-70.13.91 Содержание альбома
ТП 503-4-70.13.91-АР Архитектурные решения
ТП 503-4-70.13.91-АР-1 Общие данные (начало)
ТП 503-4-70.13.91-АР-2 Общие данные (окончание)
ТП 503-4-70.13.91-АР-3 План на отм. 0.600
ТП 503-4-70.13.91-АР-4 Фрагменты 1,2
ТП 503-4-70.13.91-АР-5 Планы венткамер на отм. 4.200
ТП 503-4-70.13.91-АР-6 План кровли. Разрез 1-1
ТП 503-4-70.13.91-АР-7 Фасады 1-17;17-1;А-Л;Л-А
ТП 503-4-70.13.91-АР-8 Схемы расположения легких перекрытий и сетчатых перегородок
ТП 503-4-70.13.91-АР-9 Планы полов
ТП 503-4-70.13.91-АР-10 Узлы, детали
ТП 503-4-70.13.91-КЖ Чертежи КЖ
ТП 503-4-70.13.91-КЖ-1 Общие данные (начало)
ТП 503-4-70.13.91-КЖ-2 Общие данные (окончание)
ТП 503-4-70.13.91-КЖ-3 Схема расположения элементов фундаментов
ТП 503-4-70.13.91-КЖ-4 Спецификация к схеме расположения элементов фундаментов
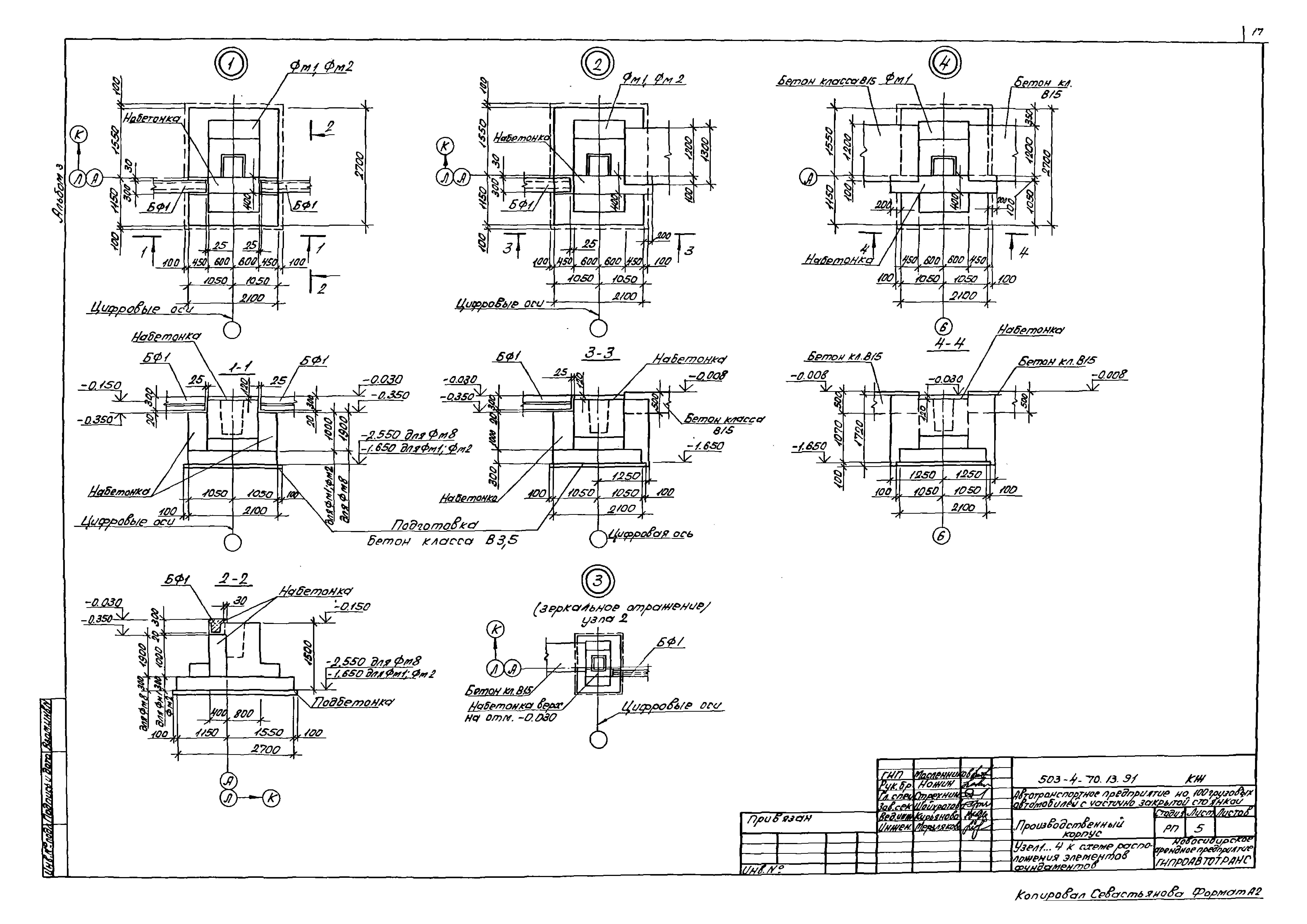
ТП 503-4-70.13.91-КЖ-5 Узел 1...4 к схеме расположения элементов фундаментов
ТП 503-4-70.13.91-КЖ-6 Узел 5...9 к схеме расположения элементов фундаментов
ТП 503-4-70.13.91-КЖ-7 Узел 10,11. Фрагмент 1 к схеме расположения элементов фундаментов
ТП 503-4-70.13.91-КЖ-8 Узел 12...16 к схеме расположения элементов фундаментов
ТП 503-4-70.13.91-КЖ-9 Фундамент ФМ1...ФМ4
ТП 503-4-70.13.91-КЖ-10 Фундамент ФМ5...ФМ6,ФМ19...ФМ24
ТП 503-4-70.13.91-КЖ-11 Фундамент ФМ7,ФМ8,ФМ9
ТП 503-4-70.13.91-КЖ-12 Фундамент ФМ10,ФМ11
ТП 503-4-70.13.91-КЖ-13 Фундамент ФМ12...ФМ16
ТП 503-4-70.13.91-КЖ-14 Фундамент ФМ17...ФМ18
ТП 503-4-70.13.91-КЖ-15 Схема расположения элементов подземного хозяйства
ТП 503-4-70.13.91-КЖ-16 Спецификация к схеме расположения элементов подземного хозяйства
ТП 503-4-70.13.91-КЖ-17 Подземное хозяйство. Фундамент ФОМ1. План на отм. 0.000 и на отм. -0.400
ТП 503-4-70.13.91-КЖ-18 Подземное хозяйство. Фундамент ФОМ1
ТП 503-4-70.13.91-КЖ-19 Подземное хозяйство. Фундамент ФОМ1. Узел 2,3
ТП 503-4-70.13.91-КЖ-20 Подземное хозяйство. Фундамент ФОМ2
ТП 503-4-70.13.91-КЖ-21 Подземное хозяйство. Фрагмент 1 для ФОМ2
ТП 503-4-70.13.91-КЖ-22 Подземное хозяйство. Фрагмент 2 для ФОМ2
ТП 503-4-70.13.91-КЖ-23 Подземное хозяйство. Спецификации на ФОМ2. Ведомость расхода стали, кг
ТП 503-4-70.13.91-КЖ-24 Подземное хозяйство. Фундамент ФОМ3. План на отм. 0.000
ТП 503-4-70.13.91-КЖ-25 Подземное хозяйство. Фундамент ФОМ3. План на отм. Ниже 0.000
ТП 503-4-70.13.91-КЖ-26 Подземное хозяйство. Фундамент ФОМ3. Сечения 3-3...13-13. Узел 1...6
ТП 503-4-70.13.91-КЖ-27 Подземное хозяйство. Фундамент ФОМ9. Поддон ПД1
ТП 503-4-70.13.91-КЖ-28 Подземное хозяйство. Фундамент ФОМ9. Колодец К1,К2. Приямок 1
ТП 503-4-70.13.91-КЖ-29 Подземное хозяйство. Фундамент ФОМ10
ТП 503-4-70.13.91-КЖ-30 Подземное хозяйство. Фрагмент 3. Фундамент ФОМ4...ФОМ11
ТП 503-4-70.13.91-КЖ-31 Подземное хозяйство. Фундамент ФОМ12...ФОМ23
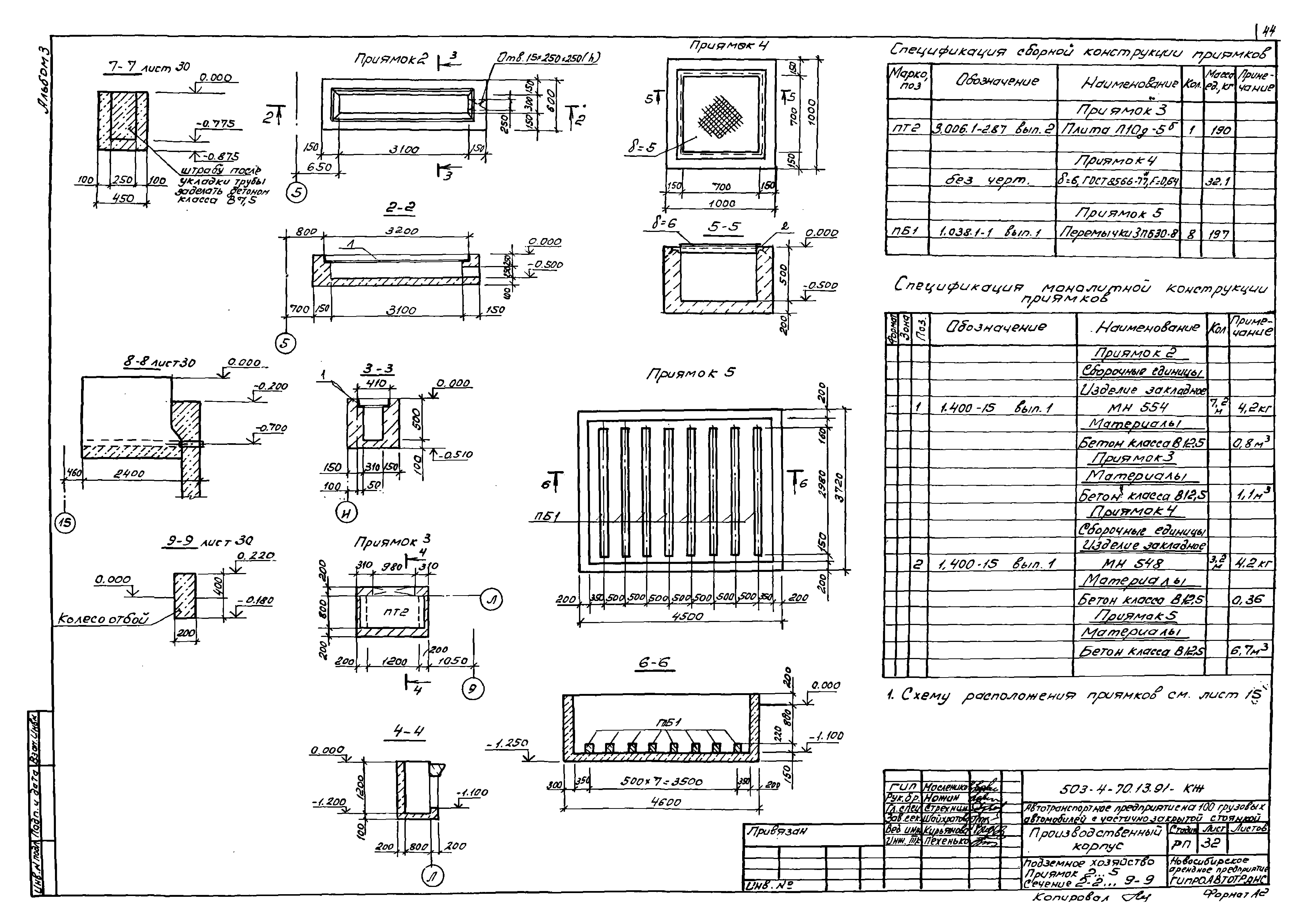
ТП 503-4-70.13.91-КЖ-32 Подземное хозяйство. Приямок 2...5. Сечение 2-2...9-9
ТП 503-4-70.13.91-КЖ-33 Подземное хозяйство. Канал 1...10
ТП 503-4-70.13.91-КЖ-34 Подземное хозяйство. Канал 11...13. Сечение 1-1...22-22
ТП 503-4-70.13.91-КЖ-35 Подземное хозяйство. Спецификации
ТП 503-4-70.13.91-КЖ-36 Резервуар приемный РЕП1. Сечения 1-1...2-2
ТП 503-4-70.13.91-КЖ-37 Резервуар приемный РЕП1. Схема расположения панелей стен, щитов перекрытия
ТП 503-4-70.13.91-КЖ-38 Резервуар приемный РЕП1. Днище монолитное ДМ1. Сечение 1-1...2-2
ТП 503-4-70.13.91-КЖ-39 Стеллаж для зарядки аккумуляторов
ТП 503-4-70.13.91-КЖ-40 Схема расположения колонн, ферм
ТП 503-4-70.13.91-КЖ-41 Схема расположения плит покрытия
ТП 503-4-70.13.91-КЖ-42 Схема расположения элементов торцового фахверка. Сечение 1-1...4-4
ТП 503-4-70.13.91-КЖ-43 Спецификация к схемам расположения колонн, ферм, элементов торцового фахверка, плит покрытия
ТП 503-4-70.13.91-КЖ-44 Фундамент под оборудование ФОМ24...ФОМ29
ТП 503-4-70.13.91-КЖ-45 Схема расположения колонн, ригелей, металлических балок, венткамер
ТП 503-4-70.13.91-КЖ-46 Узлы 1...10. Сечения 7-7...10-10 к схеме расположения колонн, ригелей, столиков, балок венткамер
ТП 503-4-70.13.91-КЖ-47 Схемы расположения плит перекрытия венткамер на отм. 4.200
ТП 503-4-70.13.91-КЖ-48 Схемы расположения плит перекрытия венткамеры на отм. 4.800
ТП 503-4-70.13.91-КЖ-49 Участки монолитные УМ1...УМ3
ТП 503-4-70.13.91-КЖ-50 Схема расположения колонн для перегородок
ТП 503-4-70.13.91-КЖ-51 Схемы расположения панелей стен по оси А;Л;1
ТП 503-4-70.13.91-КЖ-52 Схемы расположения панелей стен по оси 17
ТП 503-4-70.13.91-КМ Чертежи КМ
ТП 503-4-70.13.91-КМ-1 Общие данные (начало)
ТП 503-4-70.13.91-КМ-2 Общие данные (продолжение)
ТП 503-4-70.13.91-КМ-3 Общие данные (продолжение)
ТП 503-4-70.13.91-КМ-4 Общие данные (продолжение)
ТП 503-4-70.13.91-КМ-5 Общие данные (окончание)
ТП 503-4-70.13.91-КМ-6 Схема расположения элементов подвесных путей
ТП 503-4-70.13.91-КМ-7 Сечение 1-1...8-8. Фрагмент 1 к схеме расположения элементов подвесных путей
ТП 503-4-70.13.91-КМ-8 Схема расположения элементов лестницы около оси З,А,Л. Узел
ТП 503-4-70.13.91-КМ-9 Схема расположения элементов лестницы между осями Д и Е, под емкость 16 м³. Узел 1...3
ТП 503-4-70.13.91-КМ-10 Стойки металлические СК1...СК12
ТП 503-4-70.13.91-КМ-11 Схемы расположения элементов площадки на отм. 3.000, площадок приемного резервуара
ТП 503-4-70.13.91-КМ-12 Сечение 1-1...9-9, узел 1...5 к схемам расположения элементов площадок
ТП 503-4-70.13.91-КМ-13 Схема расположения элементов площадки на отм. 2.2000. Стойка СК13
Разработан: Гипроавтотранс
Утверждён:22.11.1991 Новосибирский Облисполком (21)
Расположен в:Техническая документация Строительство Справочные документы Типовые строительные конструкции, изделия и узлы Общероссийский строительный каталог Промышленные предприятия, здания и сооружения Предприятия, здания и сооружения транспорта Транспорт автомобильный Корпуса производственные, станции технического обслуживания и ремонта грузовых и легковых автомобилей и автобусов
Типовой проект 503-4-70.13.91Типовой проект 503-4-70.13.91Типовой проект 503-4-70.13.91Типовой проект 503-4-70.13.91Типовой проект 503-4-70.13.91Типовой проект 503-4-70.13.91Типовой проект 503-4-70.13.91Типовой проект 503-4-70.13.91Типовой проект 503-4-70.13.91Типовой проект 503-4-70.13.91Типовой проект 503-4-70.13.91Типовой проект 503-4-70.13.91Типовой проект 503-4-70.13.91Типовой проект 503-4-70.13.91Типовой проект 503-4-70.13.91Типовой проект 503-4-70.13.91Типовой проект 503-4-70.13.91Типовой проект 503-4-70.13.91Типовой проект 503-4-70.13.91Типовой проект 503-4-70.13.91Типовой проект 503-4-70.13.91Типовой проект 503-4-70.13.91Типовой проект 503-4-70.13.91Типовой проект 503-4-70.13.91Типовой проект 503-4-70.13.91Типовой проект 503-4-70.13.91Типовой проект 503-4-70.13.91Типовой проект 503-4-70.13.91Типовой проект 503-4-70.13.91Типовой проект 503-4-70.13.91Типовой проект 503-4-70.13.91Типовой проект 503-4-70.13.91Типовой проект 503-4-70.13.91Типовой проект 503-4-70.13.91Типовой проект 503-4-70.13.91Типовой проект 503-4-70.13.91Типовой проект 503-4-70.13.91Типовой проект 503-4-70.13.91Типовой проект 503-4-70.13.91Типовой проект 503-4-70.13.91Типовой проект 503-4-70.13.91Типовой проект 503-4-70.13.91Типовой проект 503-4-70.13.91Типовой проект 503-4-70.13.91Типовой проект 503-4-70.13.91Типовой проект 503-4-70.13.91Типовой проект 503-4-70.13.91Типовой проект 503-4-70.13.91Типовой проект 503-4-70.13.91Типовой проект 503-4-70.13.91Типовой проект 503-4-70.13.91Типовой проект 503-4-70.13.91Типовой проект 503-4-70.13.91Типовой проект 503-4-70.13.91Типовой проект 503-4-70.13.91Типовой проект 503-4-70.13.91Типовой проект 503-4-70.13.91Типовой проект 503-4-70.13.91Типовой проект 503-4-70.13.91Типовой проект 503-4-70.13.91Типовой проект 503-4-70.13.91Типовой проект 503-4-70.13.91Типовой проект 503-4-70.13.91Типовой проект 503-4-70.13.91Типовой проект 503-4-70.13.91Типовой проект 503-4-70.13.91Типовой проект 503-4-70.13.91Типовой проект 503-4-70.13.91Типовой проект 503-4-70.13.91Типовой проект 503-4-70.13.91Типовой проект 503-4-70.13.91Типовой проект 503-4-70.13.91Типовой проект 503-4-70.13.91Типовой проект 503-4-70.13.91Типовой проект 503-4-70.13.91Типовой проект 503-4-70.13.91Типовой проект 503-4-70.13.91Типовой проект 503-4-70.13.91

© 2013 Ёшкин Кот :-) Карта сайта