Скачать Типовые проектные решения 901-02-123 Альбом I. Технологические решения, электрооборудование, автоматизация, технологический контрольДата актуализации: 10.08.2017 Типовые проектные решения 901-02-123
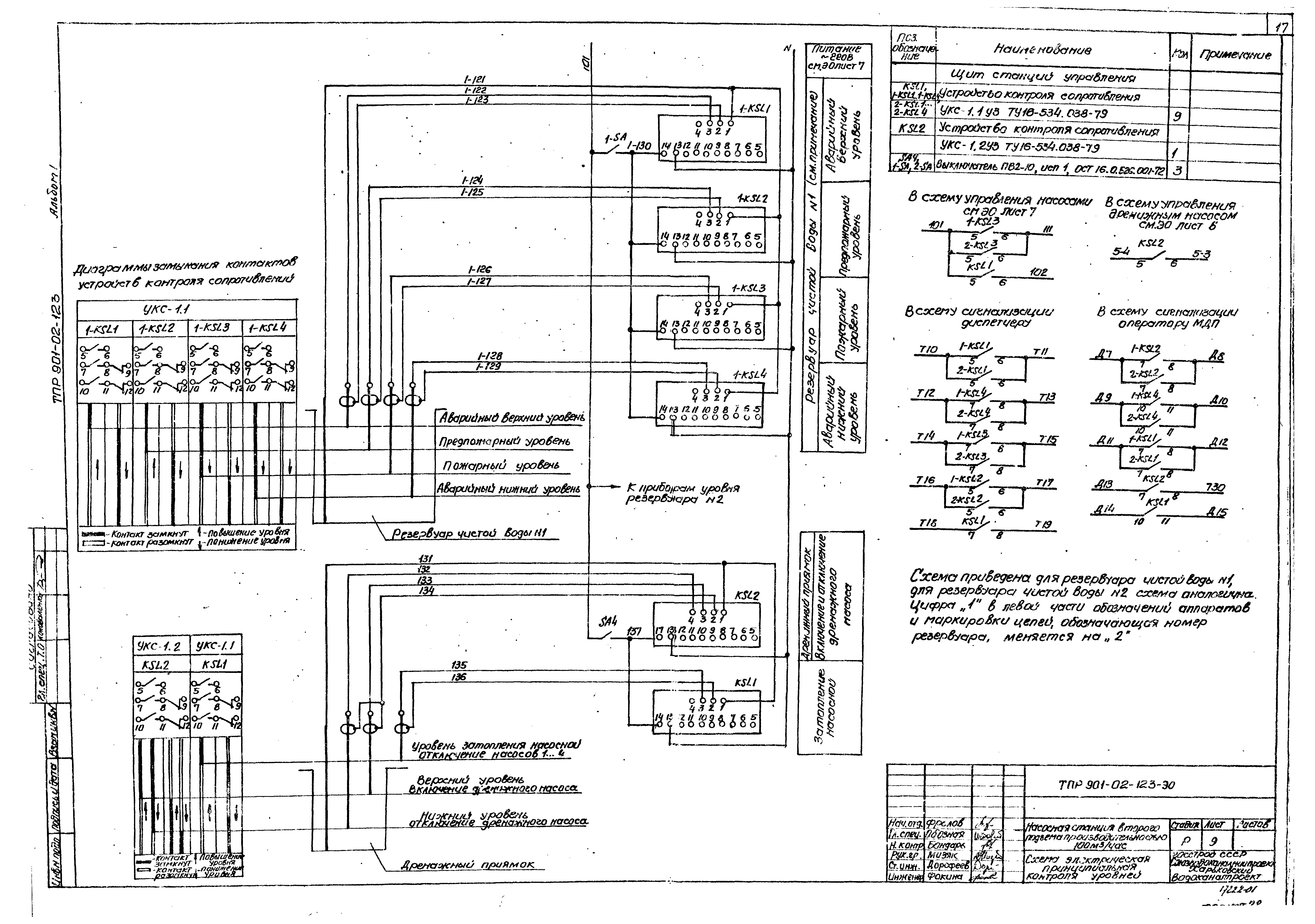
Альбом I. Технологические решения, электрооборудование, автоматизация, технологический контрольОбозначение: | Типовые проектные решения 901-02-123 | Обозначение англ: | 901-02-123 | Статус: | cправочные материалы, мп, тпр | Название рус.: | Альбом I. Технологические решения, электрооборудование, автоматизация, технологический контроль | Дата добавления в базу: | 01.09.2013 | Дата актуализации: | 05.05.2017 | Дата введения: | 10.03.1981 | Разработан: | Харьковский Водоканалпроект
| Утверждён: | 26.08.1980 Главпромстройпроект Госстроя СССР (19/3-3550)
| Расположен в: |
|
                      
|