Скачать Типовой проект 291-8-21.87 Альбом III. Часть 1. Инженерное оборудование, отопление и вентиляция, внутренние водопровод и канализация, автоматизация сантехустройств, электрооборудование, связь и сигнализация, пожарная сигнализацияДата актуализации: 10.08.2017 Типовой проект 291-8-21.87
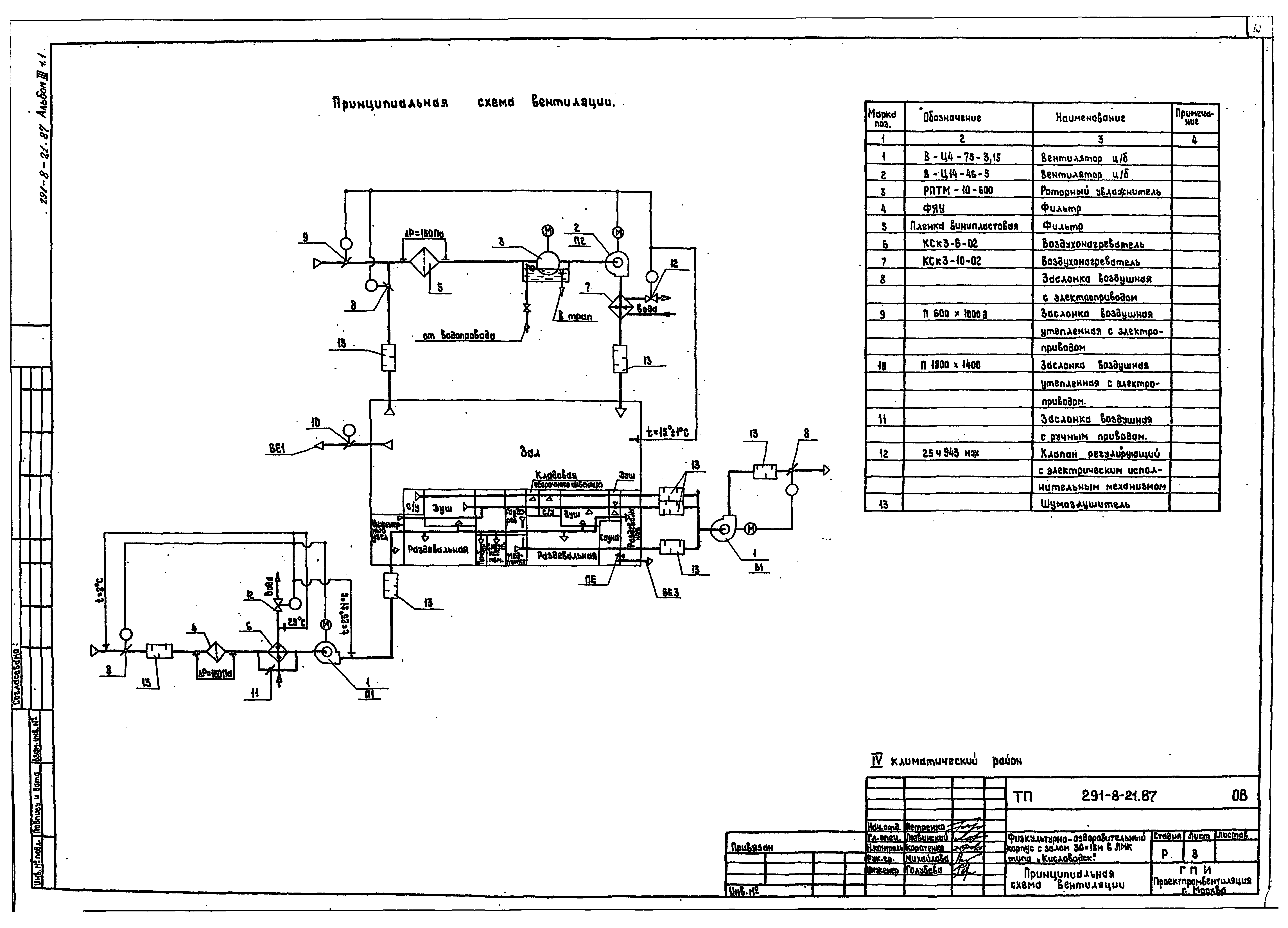
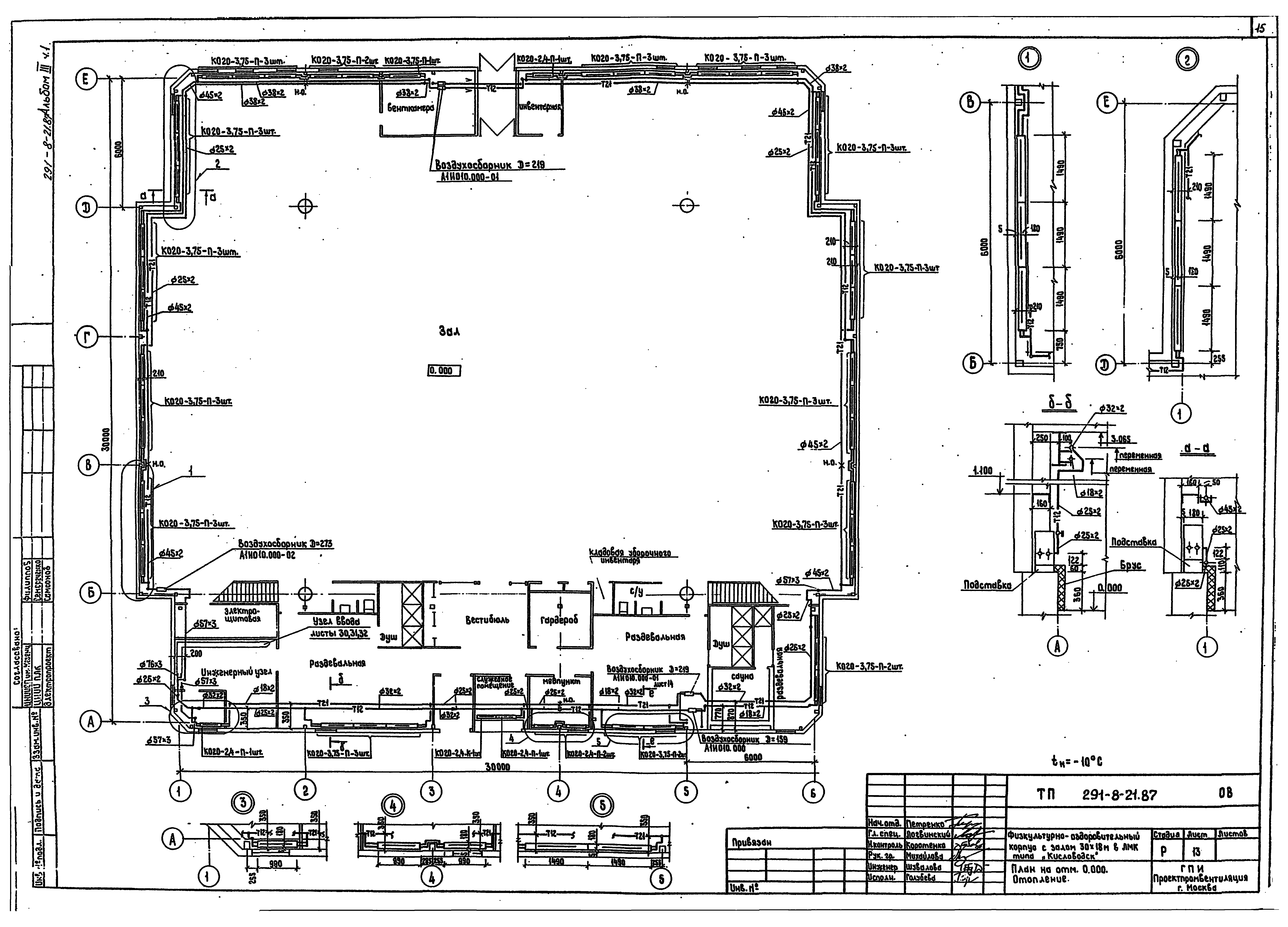
Альбом III. Часть 1. Инженерное оборудование, отопление и вентиляция, внутренние водопровод и канализация, автоматизация сантехустройств, электрооборудование, связь и сигнализация, пожарная сигнализацияОбозначение: | Типовой проект 291-8-21.87 | Обозначение англ: | 291-8-21.87 | Статус: | не определен законодательством | Название рус.: | Альбом III. Часть 1. Инженерное оборудование, отопление и вентиляция, внутренние водопровод и канализация, автоматизация сантехустройств, электрооборудование, связь и сигнализация, пожарная сигнализация | Дата добавления в базу: | 01.09.2013 | Дата актуализации: | 05.05.2017 | Дата введения: | 15.06.1987 | Оглавление: | Чертежи марки ОВ Общие данные Структурно-принципиальная схема вентиляции. IВ, II, III климатические районы Структурно-принципиальная схема вентиляции. IV климатический район Структурно-принципиальные схемы узлов ввода План на отм. 0.000. Вентиляция План на отм. 3.300 между осями 1 - 6; А - Б. Разрезы 1-1, 2-2, 3-3, 4-4, 5-5. Вентиляция План на отм. 0.000. Отопление tн = минус 20; tн = минус 30; tн = минус 40 градусов Цельсия План на отм. 0.000. Отопление. tн = минус 10 градусов Цельсия План на отм. 3.300 между осями 1 - 6; А - Е. Отопление План на отм. 0.000 между осями 1 - 2; А - Б. Теплоснабжение установок П1, П2. Схема системы теплоснабжения установок П1, П2 (теплоноситель вода Тг = 150; Тобр = 70 градусов Цельсия) IВ, II, III климатические районы, tн = минус 30; tн = минус 40 градусов Цельсия План на отм. 0.000 между осями 1 - 2; А - Е. Теплоснабжение установок П1, П2. Схема системы теплоснабжения установок П1, П2 (теплоноситель вода Тг = 150; Тобр = 70 градусов Цельсия) IV климатический район tн = минус 10; tн = минус 20 градусов Цельсия План на отм. 0.000 между осями 1 - 2; А - Е. Теплоснабжение установок П1, П2. Схема системы теплоснабжения установок П1, П2 (теплоноситель вода Тг = 95; Тобр = 70 градусов Цельсия) IВ, II, III климатические районы, tн = минус 20; tн = минус 30; tн = минус 40 градусов Цельсия План на отм. 0.000 между осями 1 - 2; А - Е. Теплоснабжение установок П1, П2. Схема системы теплоснабжения установок П1, П2 (теплоноситель вода Тг = 95; Тобр = 70 градусов Цельсия) IV климатический район tн = минус 10; tн = минус 20 градусов Цельсия Схемы систем П1, П2, В1, В2, ВЕ1, ВЕ2, ВЕ3 Схемы системы отопления tн = минус 30; tн = минус 40 градусов Цельсия Схемы системы отопления tн = минус 20 градусов Цельсия Схемы системы отопления tн = минус 10 градусов Цельсия Узлы 1, 2, 3, 4, 5. сечения а-а, б-б, в-в. tн = минус 20; минус 30; минус 40 градусов Цельсия Установка систем П1, В1 Установка систем П1, В1. Спецификация. Узлы 1, 2 Установка систем П2, В2. IВ, II, III климатические районы. Tн = минус 20; минус 30; минус 40 градусов Цельсия Установка систем П2, В2. Спецификация. Узлы 1, 2. IВ, II, III климатические районы. Tн = минус 20; минус 30; минус 40 градусов Цельсия Установка системы П2. IV климатический район. Tн = минус 10; минус 20 градусов Цельсия Установка системы П2. Спецификация. Узел 1. IV климатический район. Tн = минус 10; минус 20 градусов Цельсия Узел ввода. План на отм. 0.000 между осями 1, А. Разрез 3-3 (теплоноситель вода Тг = 150; Тобр = 70 градусов Цельсия) Узел ввода. Разрезы 1-1, 2-2, 4-4 (теплоноситель вода Тг = 150; Тобр = 70 градусов Цельсия) Узел ввода. План на отм. 0.000 между осями 1, А. Разрезы 1-1, 2-2 (теплоноситель вода Тг = 95; Тобр = 70 градусов Цельсия) Чертежи марки ВК Общие данные План на отм. 0.000 Схемы систем В0, Т3, Т4, К1 и К2 Чертежи марки АОВ Общие данные Пояснительная записка IВ, II, III климатические районы. Приточная система П1. Схема автоматизации IВ, II, III климатические районы. Приточная система П2. Схема автоматизации IВ, II, III климатические районы. Вытяжной вентилятор. Естественная вытяжка. Схема автоматизации IВ, II, III климатические районы. Приточная система П1. Схема электрическая принципиальная IВ, II, III климатические районы. Приточная система П2. Схема электрическая принципиальная IВ, II, III климатические районы. Вытяжной вентилятор В1, В2. Схема электрическая принципиальная IВ, II, III климатические районы. Естественная вытяжка ВЕ1, ВЕ2. Схема электрическая принципиальная IВ, II, III климатические районы. Задвижка. Схема электрическая принципиальная IВ, II, III климатические районы. Приточная система П1. Схема соединений внешних проводок IВ, II, III климатические районы. Приточная система П2. Схема соединений внешних проводок IВ, II, III климатические районы. Задвижка. Схема соединений внешних проводок IВ, II, III климатические районы. Кабельный журнал IВ, II, III климатические районы. План расположения электрооборудования прокладки кабелей и проводов IV климатический район. Приточная система П1. Схема автоматизации IV климатический район. Приточная система П2. Схема автоматизации | Разработан: | ЦНИИЭП им. Б.С. Мезенцева Госгражданстроя
| Утверждён: | 15.06.1987 Госгражданстрой (Gosgrazhdanstroy 184)
| Издан: | ЦИТП Госстроя СССР (CITP, Gosstroy (USSR) 1987 г. )
| Расположен в: |
|
                                                               
|