Скачать Типовой проект 228-1-604.88 Альбом I. Архитектурно-строительные, технологические чертежиДата актуализации: 10.08.2017 Типовой проект 228-1-604.88
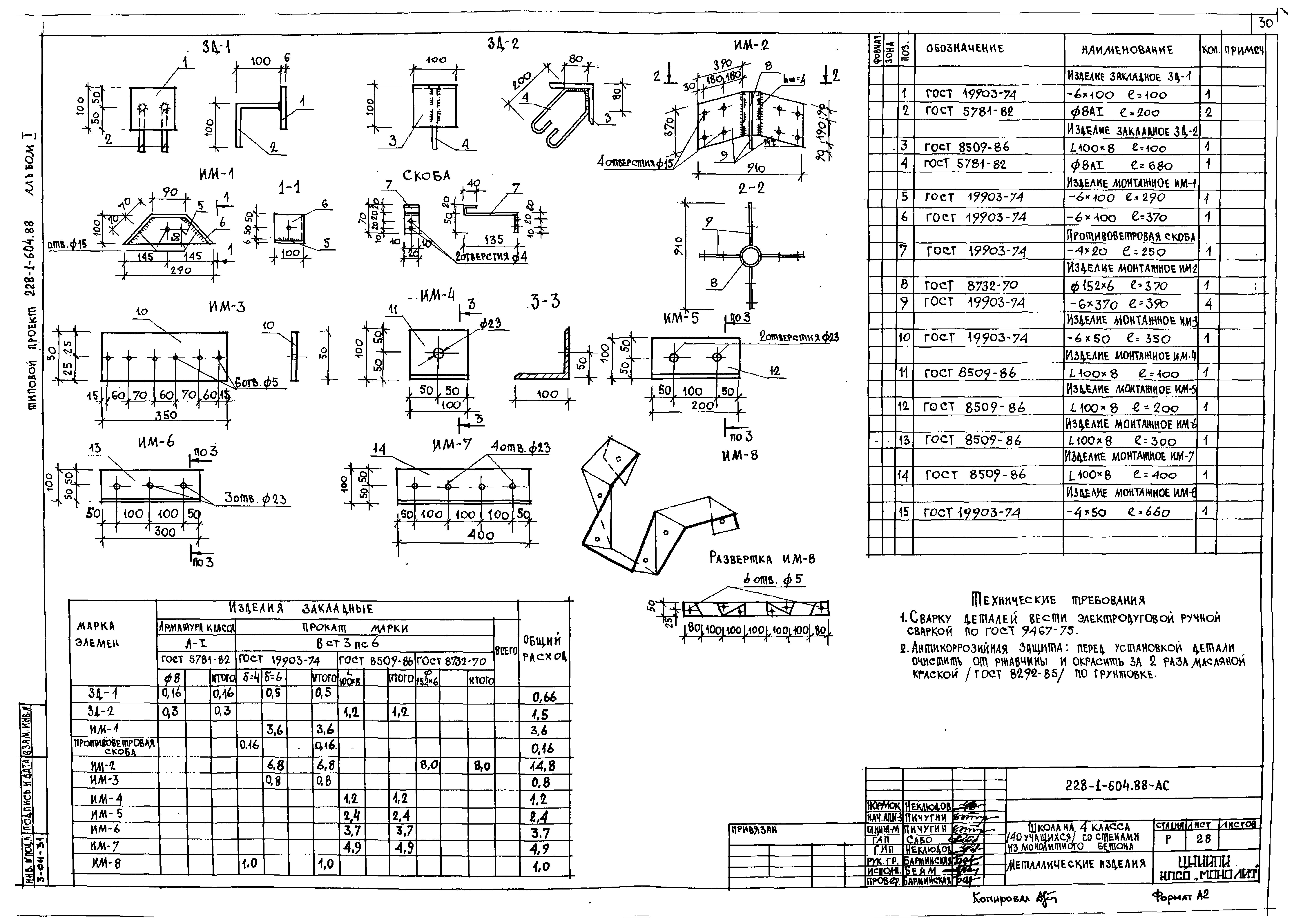
Альбом I. Архитектурно-строительные, технологические чертежиОбозначение: | Типовой проект 228-1-604.88 | Обозначение англ: | 228-1-604.88 | Статус: | не определен законодательством | Название рус.: | Альбом I. Архитектурно-строительные, технологические чертежи | Дата добавления в базу: | 01.09.2013 | Дата актуализации: | 05.05.2017 | Дата введения: | 01.06.1987 | Оглавление: | ТП 228-1-604.88 Титульный лист ТП 228-1-604.88 Содержание альбома ТП 228-1-604.88-АС Архитектурно-строительные чертежи АС ТП 228-1-604.88-АС-1 Общие данные (начало) ТП 228-1-604.88-АС-2 Общие данные (продолжение) ТП 228-1-604.88-АС-3 Общие данные (окончание) ТП 228-1-604.88-АС-4 Схема генерального плана ТП 228-1-604.88-АС-5 Схема расположения фундаментов, приямков и крыльца ТП 228-1-604.88-АС-6 Фасады ТП 228-1-604.88-АС-7 Фасады с плоской кровлей (вариант) ТП 228-1-604.88-АС-8 План ТП 228-1-604.88-АС-9 Разрезы 1-1;2-2. Узлы ТП 228-1-604.88-АС-10 План опалубочный ТП 228-1-604.88-АС-11 Армирование стен над проемами ТП 228-1-604.88-АС-12 Схема расположения перегородок ТП 228-1-604.88-АС-13 Фрагмент фасада. Вход. Фрамуга Ф-1. Детали ТП 228-1-604.88-АС-14 Спецификация элементов заполнения проемов ТП 228-1-604.88-АС-15 Рекреация. Развертки стен ТП 228-1-604.88-АС-16 Окно В-1. Узлы ТП 228-1-604.88-АС-17 Экран Э-1. Детали. Металлический поручень П-1 ТП 228-1-604.88-АС-18 Экран светильника. Детали крепления гимнастической стенки ТП 228-1-604.88-АС-19 Схема расположения элементов чердачного перекрытия ТП 228-1-604.88-АС-20 Схема расположения элементов стропильной крыши. План кровли ТП 228-1-604.88-АС-21 Схема расположения элементов стропильной крыши. Разрезы ТП 228-1-604.88-АС-22 Схема расположения элементов стропильной крыши. Узлы ТП 228-1-604.88-АС-23 Слуховое окно СО-1 ТП 228-1-604.88-АС-24 Спецификация расхода древесины на слуховое окно СО-1 ТП 228-1-604.88-АС-25 Деревянная ферма покрытия Ф-1 ТП 228-1-604.88-АС-26 План расположения вентиляционных шахт ТП 228-1-604.88-АС-27 Вентиляционные шахты ТП 228-1-604.88-АС-28 Металлические изделия ТП 228-1-604.88-АС-29 Схема расположения ж/б элементов покрытия (вариант совмещенной крыши) ТП 228-1-604.88-АС-30 Монолитные участки УМ-1,УМ-2 (вариант совмещенной крыши) ТП 228-1-604.88-АС-31 Схема расположения деревянных элементов покрытия. План кровли (вариант совмещенной крыши) ТП 228-1-604.88-АС-32 Конструкция козырька над входом (вариант совмещенной крыши) ТП 228-1-604.88-ТС Технологические чертежи - ТХ ТП 228-1-604.88-ТС-1 Общие данные ТП 228-1-604.88-ТС-2 План с расстановкой оборудования и мебели и привязкой точек подводки воды, канализации и электроэнергии | Разработан: | ПСК ЦНИИПИ Монолит
| Утверждён: | 01.06.1987 Госгражданстрой (Gosgrazhdanstroy 172)
| Расположен в: |
|
                                   
|