Информационная система
«Ёшкин Кот»

Скачать базу одним архивом
Скачать обновления
История создания базы
Карта сайта

Скачать Типовой проект 902-5-12.85 Альбом II. Технологическая, санитарно-техническая части

Дата актуализации: 10.08.2017

Типовой проект 902-5-12.85

Альбом II. Технологическая, санитарно-техническая части

Обозначение: Типовой проект 902-5-12.85
Обозначение англ: 902-5-12.85
Статус:не определен законодательством
Название рус.:Альбом II. Технологическая, санитарно-техническая части
Дата добавления в базу:01.09.2013
Дата актуализации:05.05.2017
Дата введения:26.07.1985
Оглавление:ТП 902-5-12.85 Содержание альбома
ТП 902-5-12.85-ТХ Технологическая часть
ТП 902-5-12.85-ТХ-1 Общие данные
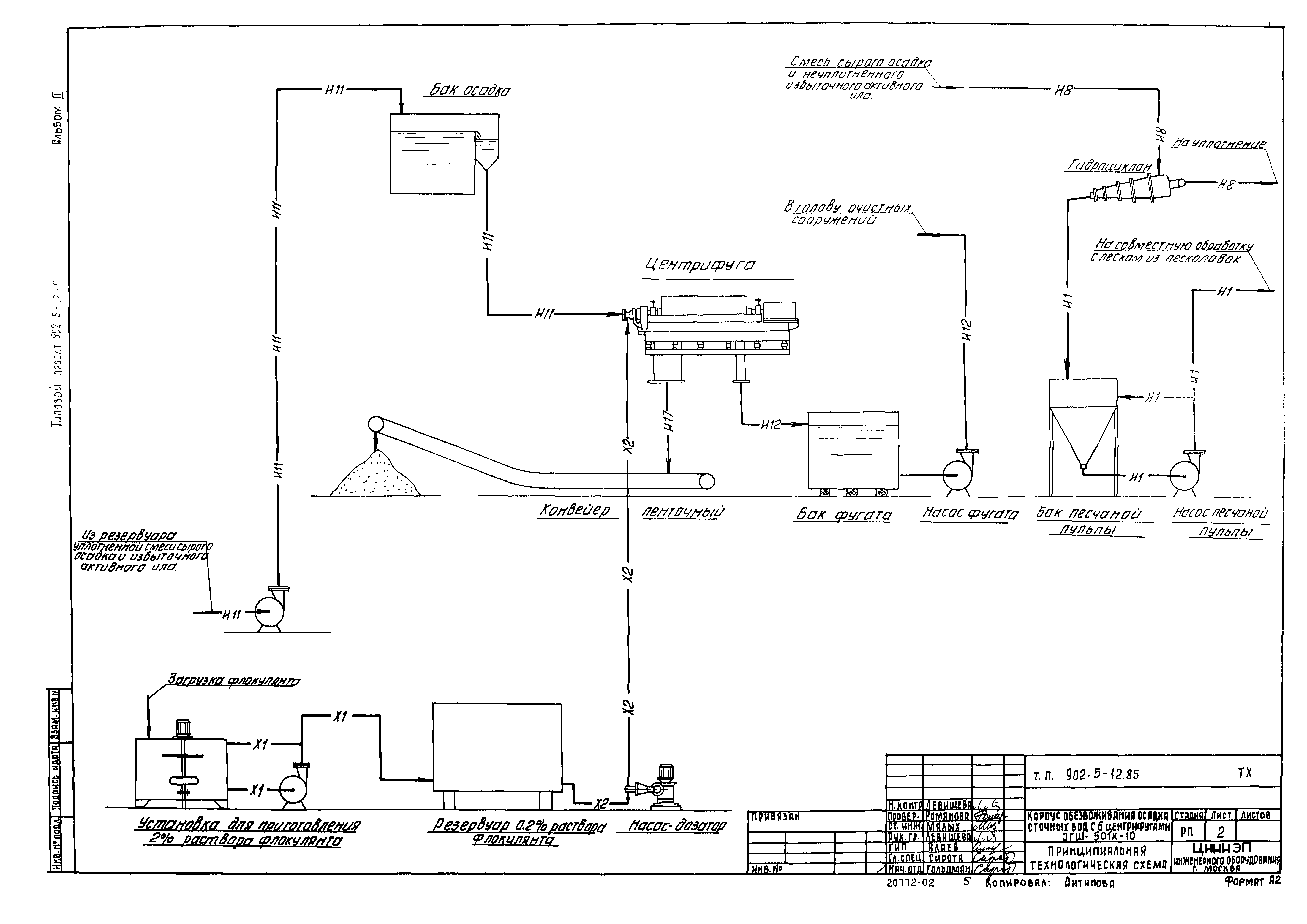
ТП 902-5-12.85-ТХ-2 Принципиальная технологическая схема
ТП 902-5-12.85-ТХ-3 План на отм. 0.000. Экспликация помещений. Экспликация оборудования
ТП 902-5-12.85-ТХ-4 План на отм. 4.800. Разрез 1-1
ТП 902-5-12.85-ТХ-5 Зал центрифуг. План на отм. 0.000
ТП 902-5-12.85-ТХ-6 Зал центрифуг. План на отм. 2.400;4.800
ТП 902-5-12.85-ТХ-7 Зал центрифуг. Разрез 2-2
ТП 902-5-12.85-ТХ-8 Зал центрифуг. Разрез 3-3
ТП 902-5-12.85-ТХ-9 Зал центрифуг. Разрез 4-4. Узел 1
ТП 902-5-12.85-ТХ-10 Склад флокулянта. План
ТП 902-5-12.85-ТХ-11 Склад флокулянта. Разрез 5-5;6-6
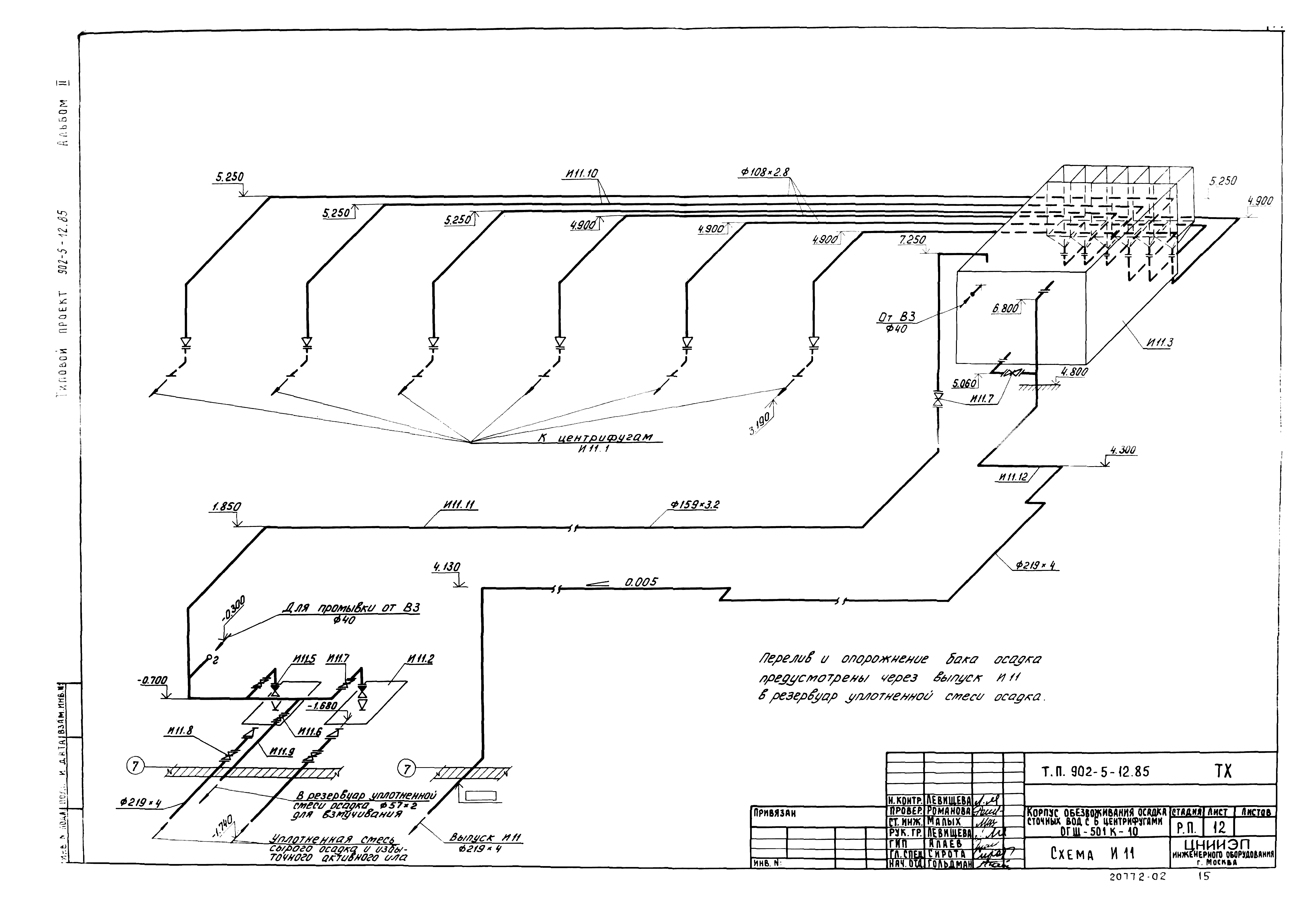
ТП 902-5-12.85-ТХ-12 Схема И11
ТП 902-5-12.85-ТХ-13 Схемы И1;И8;И12
ТП 902-5-12.85-ТХ-14 Схема В3
ТП 902-5-12.85-ТХ-15 Схема К3
ТП 902-5-12.85-ТХ-16 Схемы Х1;Х2
ТП 902-5-12.85-ТХ-17 Пример размещения корпуса обезвоживания осадка на генплане станции биологической очистки сточных вод Q=100 тыс. м³/сут.
ТП 902-5-12.85-ТХН-1 Линия транспорта обезвоженного осадка. Общий вид
ТП 902-5-12.85-ТХН-2 Линия транспорта обезвоженного осадка. Схема. Разрез. Выносной элемент
ТП 902-5-12.85-ТХН-3 Линия транспорта обезвоженного осадка. Выносной элемент. Виды
ТП 902-5-12.85-ТХН-4 Линия транспорта обезвоженного осадка. Разрезы
ТП 902-5-12.85-ТХН-5 Бак осадка. Общий вид
ТП 902-5-12.85-ТХН-6 Бак песчаной пульпы. Общий вид
ТП 902-5-12.85-ТХН-7 Бак фугата. Общий вид
ТП 902-5-12.85-ТХН-8 Течка фугата. Общий вид
ТП 902-5-12.85-ТХН-9 Течка осадка. Общий вид
ТП 902-5-12.85-ТХН-10 Течка концевая. Общий вид
ТП 902-5-12.85-ТХН-11 Рама натяжки. Общий вид
ТП 902-5-12.85-ТХН-12 Рама привода. Общий вид
ТП 902-5-12.85-ТХН-13 Рама гидроциклона. Общий вид
ТП 902-5-12.85-ОВ Санитарно-техническая часть
ТП 902-5-12.85-ОВ Отопление и вентиляция
ТП 902-5-12.85-ОВ-1 Общие данные
ТП 902-5-12.85-ОВ-2 План на отм. 0.000
ТП 902-5-12.85-ОВ-3 План на отм. 3.600
ТП 902-5-12.85-ОВ-4 Схема систем отопления. Схемы систем П1;П2;В1-В7. Узел управления. Схема системы теплоснабжения установок П1;П2;А1-А4
ТП 902-5-12.85-ОВ-5 Установки систем П1;П2. Схема системы теплоснабжения установок П1;П2
ТП 902-5-12.85-ОВ-6 Установки систем В5;В6;В7
ТП 902-5-12.85-ОВН-1,ОВН-2 Конфузоры. Переходы
ТП 902-5-12.85-ОВН-3 Воздуховод из асбестоцементных листов. Узлы соединений
ТП 902-5-12.85-ОВН-4 Конструкция изоляции трубопроводов
ТП 902-5-12.85-ВК Водопровод и канализация
ТП 902-5-12.85-ВК-1 Общие данные
ТП 902-5-12.85-ВК-2 План на отм. 0.000. Экспликация помещений
ТП 902-5-12.85-ВК-3 План на отм. 3.600. Экспликация помещений
ТП 902-5-12.85-ВК-4 План кровли
ТП 902-5-12.85-ВК-5 Схемы В3 и Т3,Т4
ТП 902-5-12.85-ВК-6 Схемы К1 и К2
Разработан: ЦНИИЭП иженерного оборудования
Утверждён:18.02.1985 Госгражданстрой (Gosgrazhdanstroy 49)
Расположен в:Техническая документация Строительство Справочные документы Типовые строительные конструкции, изделия и узлы Общероссийский строительный каталог Промышленные предприятия, здания и сооружения Здания и сооружения санитарно-технические Канализация Сооружения для очистки производственных сточных вод Сооружения для обработки осадка
Типовой проект 902-5-12.85Типовой проект 902-5-12.85Типовой проект 902-5-12.85Типовой проект 902-5-12.85Типовой проект 902-5-12.85Типовой проект 902-5-12.85Типовой проект 902-5-12.85Типовой проект 902-5-12.85Типовой проект 902-5-12.85Типовой проект 902-5-12.85Типовой проект 902-5-12.85Типовой проект 902-5-12.85Типовой проект 902-5-12.85Типовой проект 902-5-12.85Типовой проект 902-5-12.85Типовой проект 902-5-12.85Типовой проект 902-5-12.85Типовой проект 902-5-12.85Типовой проект 902-5-12.85Типовой проект 902-5-12.85Типовой проект 902-5-12.85Типовой проект 902-5-12.85Типовой проект 902-5-12.85Типовой проект 902-5-12.85Типовой проект 902-5-12.85Типовой проект 902-5-12.85Типовой проект 902-5-12.85Типовой проект 902-5-12.85Типовой проект 902-5-12.85Типовой проект 902-5-12.85Типовой проект 902-5-12.85Типовой проект 902-5-12.85Типовой проект 902-5-12.85Типовой проект 902-5-12.85Типовой проект 902-5-12.85Типовой проект 902-5-12.85Типовой проект 902-5-12.85Типовой проект 902-5-12.85Типовой проект 902-5-12.85Типовой проект 902-5-12.85Типовой проект 902-5-12.85Типовой проект 902-5-12.85Типовой проект 902-5-12.85

© 2013 Ёшкин Кот :-) Карта сайта