Скачать Серия 1.465-5с Сборные железобетонные предварительно напряженные плиты покрытий длиной 6 и 12 м для одноэтажных промышленных зданий с расчетной сейсмичностью 7, 8 и 9 баллов. Материалы для проектированияДата актуализации: 10.08.2017 Серия 1.465-5с
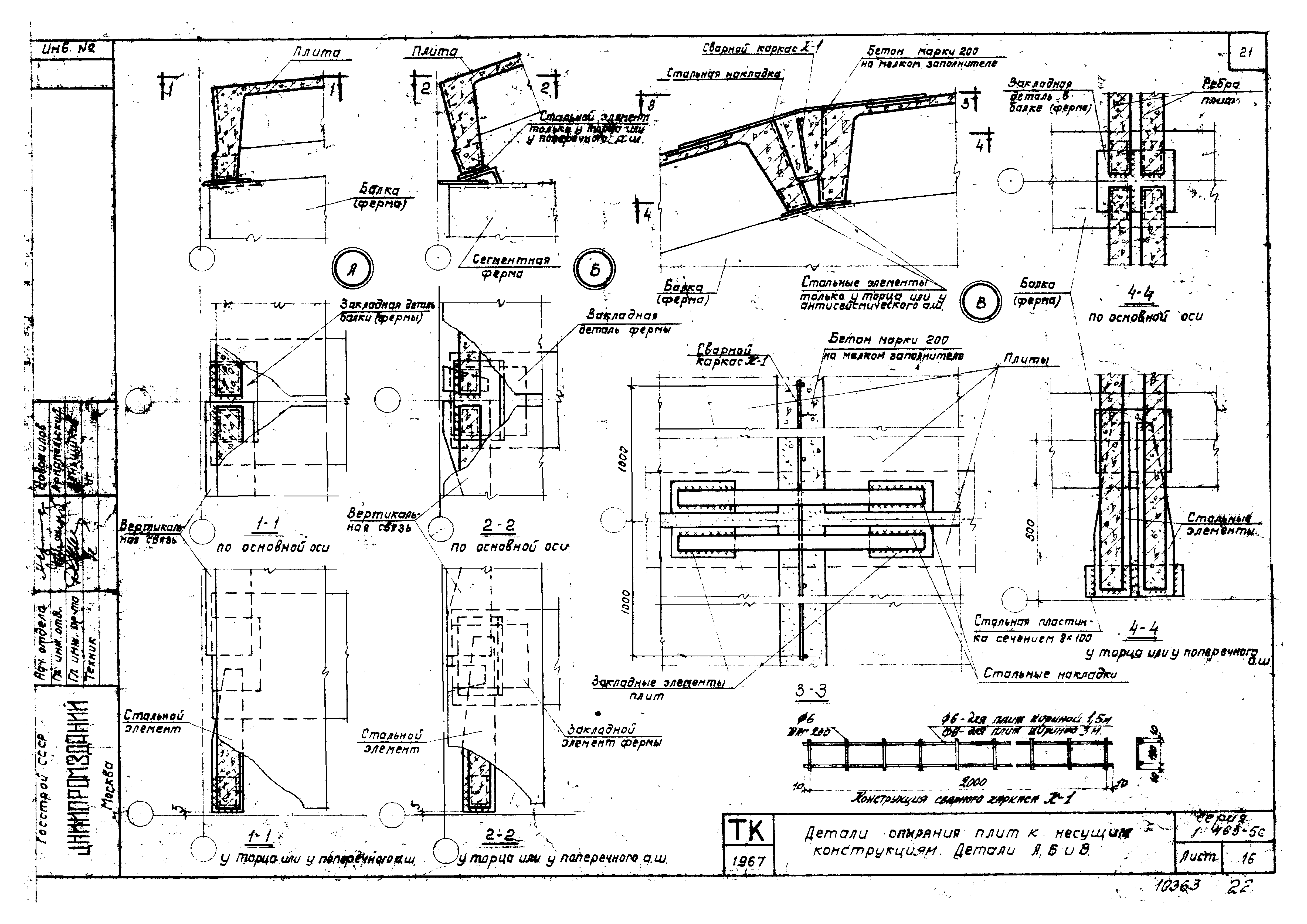
Сборные железобетонные предварительно напряженные плиты покрытий длиной 6 и 12 м для одноэтажных промышленных зданий с расчетной сейсмичностью 7, 8 и 9 баллов. Материалы для проектированияОбозначение: | Серия 1.465-5с | Обозначение англ: | Series 1.465-5с | Статус: | заменен | Название рус.: | Сборные железобетонные предварительно напряженные плиты покрытий длиной 6 и 12 м для одноэтажных промышленных зданий с расчетной сейсмичностью 7, 8 и 9 баллов. Материалы для проектирования | Дата добавления в базу: | 01.09.2013 | Дата актуализации: | 05.05.2017 | Дата введения: | 01.01.1976 | Разработан: | ЦНИИСК им. В.А. Кучеренко ЦНИИпромзданий НИИЖБ
| Утверждён: | 26.11.1969 Госстрой СССР (Государственный комитет Совета Министров СССР по делам строительства) (USSR Gosstroy 2/3-717)
| Расположен в: |
| Чем заменён: | |
                     
|