Информационная система
«Ёшкин Кот»

Скачать базу одним архивом
Скачать обновления
История создания базы
Карта сайта

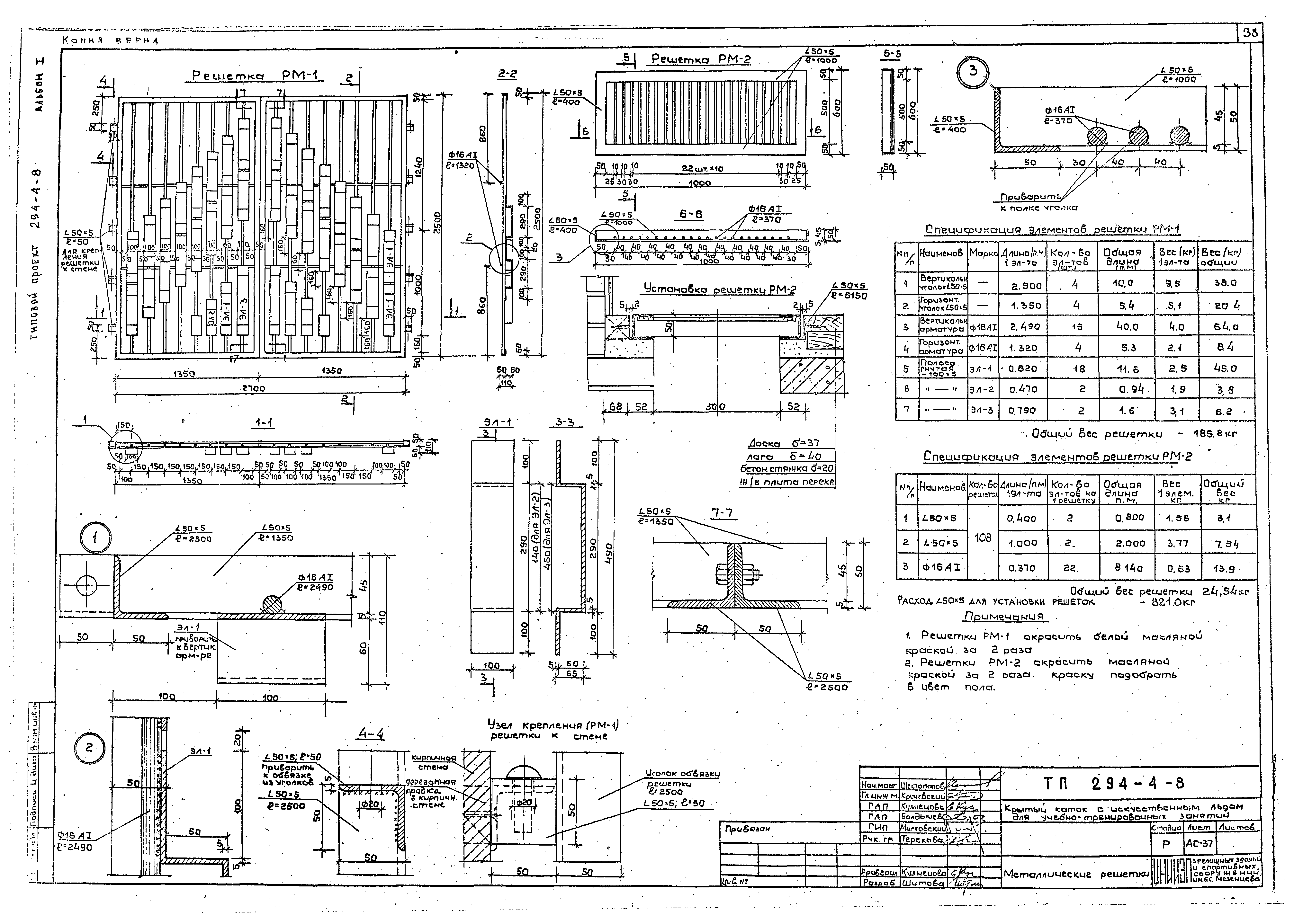
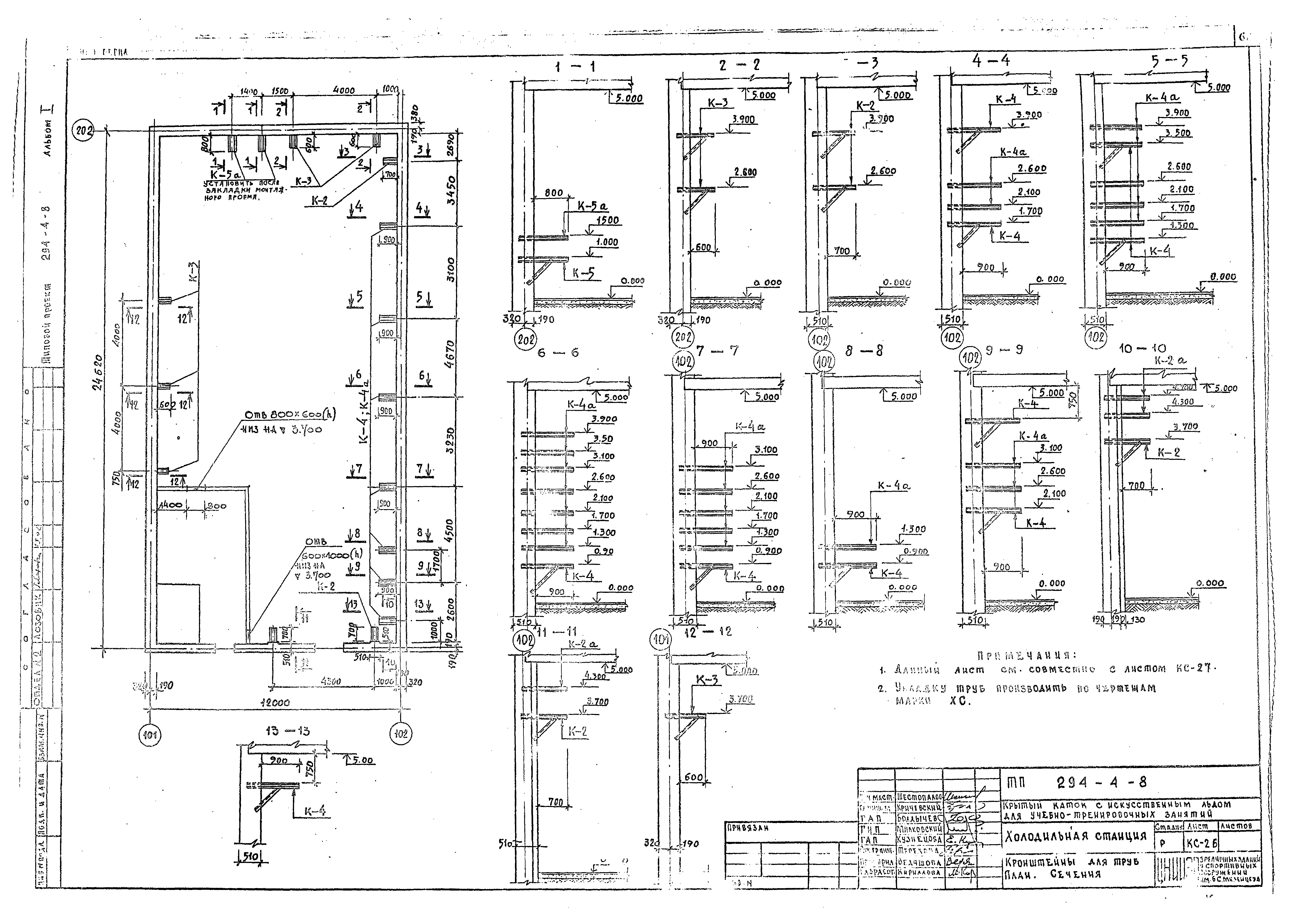
Скачать Типовой проект 294-4-8 Альбом I. Архитектурно-строительные и технологические чертежи

Дата актуализации: 10.08.2017

Типовой проект 294-4-8

Альбом I. Архитектурно-строительные и технологические чертежи

Обозначение: Типовой проект 294-4-8
Обозначение англ: 294-4-8
Статус:не определен законодательством
Название рус.:Альбом I. Архитектурно-строительные и технологические чертежи
Дата добавления в базу:01.09.2013
Дата актуализации:05.05.2017
Дата введения:05.12.1981
Разработан: ЦНИИЭП зрелищных зданий и спортивных сооружений Госгражданстроя
Утверждён:03.11.1978 Госгражданстрой (Gosgrazhdanstroy 233)
Расположен в:Техническая документация Строительство Справочные документы Типовые строительные конструкции, изделия и узлы Общероссийский строительный каталог Общественные здания в городах и поселках городского типа Физкультурно-оздоровительные и спортивные здания и сооружения Сооружения для зимних видов спорта
Типовой проект 294-4-8Типовой проект 294-4-8Типовой проект 294-4-8Типовой проект 294-4-8Типовой проект 294-4-8Типовой проект 294-4-8Типовой проект 294-4-8Типовой проект 294-4-8Типовой проект 294-4-8Типовой проект 294-4-8Типовой проект 294-4-8Типовой проект 294-4-8Типовой проект 294-4-8Типовой проект 294-4-8Типовой проект 294-4-8Типовой проект 294-4-8Типовой проект 294-4-8Типовой проект 294-4-8Типовой проект 294-4-8Типовой проект 294-4-8Типовой проект 294-4-8Типовой проект 294-4-8Типовой проект 294-4-8Типовой проект 294-4-8Типовой проект 294-4-8Типовой проект 294-4-8Типовой проект 294-4-8Типовой проект 294-4-8Типовой проект 294-4-8Типовой проект 294-4-8Типовой проект 294-4-8Типовой проект 294-4-8Типовой проект 294-4-8Типовой проект 294-4-8Типовой проект 294-4-8Типовой проект 294-4-8Типовой проект 294-4-8Типовой проект 294-4-8Типовой проект 294-4-8Типовой проект 294-4-8Типовой проект 294-4-8Типовой проект 294-4-8Типовой проект 294-4-8Типовой проект 294-4-8Типовой проект 294-4-8Типовой проект 294-4-8Типовой проект 294-4-8Типовой проект 294-4-8Типовой проект 294-4-8Типовой проект 294-4-8Типовой проект 294-4-8Типовой проект 294-4-8Типовой проект 294-4-8Типовой проект 294-4-8Типовой проект 294-4-8Типовой проект 294-4-8Типовой проект 294-4-8Типовой проект 294-4-8Типовой проект 294-4-8Типовой проект 294-4-8Типовой проект 294-4-8Типовой проект 294-4-8Типовой проект 294-4-8Типовой проект 294-4-8Типовой проект 294-4-8Типовой проект 294-4-8Типовой проект 294-4-8Типовой проект 294-4-8Типовой проект 294-4-8Типовой проект 294-4-8Типовой проект 294-4-8Типовой проект 294-4-8Типовой проект 294-4-8Типовой проект 294-4-8Типовой проект 294-4-8Типовой проект 294-4-8Типовой проект 294-4-8Типовой проект 294-4-8Типовой проект 294-4-8Типовой проект 294-4-8Типовой проект 294-4-8Типовой проект 294-4-8Типовой проект 294-4-8Типовой проект 294-4-8Типовой проект 294-4-8Типовой проект 294-4-8

© 2013 Ёшкин Кот :-) Карта сайта