Информационная система
«Ёшкин Кот»

Скачать базу одним архивом
Скачать обновления
История создания базы
Карта сайта

Скачать Типовой проект 904-1-20/76 Альбом IV. Архитектурно-строительная и сантехническая части

Дата актуализации: 10.08.2017

Типовой проект 904-1-20/76

Альбом IV. Архитектурно-строительная и сантехническая части

Обозначение: Типовой проект 904-1-20/76
Обозначение англ: 904-1-20/76
Статус:не действует
Название рус.:Альбом IV. Архитектурно-строительная и сантехническая части
Дата добавления в базу:01.09.2013
Дата актуализации:05.05.2017
Дата введения:17.02.1976
Дата окончания срока действия:01.04.1985
Оглавление:Титульный лист
Содержание альбома
Пояснительная записка
Чертежи марки АР
   Заглавный лист
   План на отм. 0.000. Разрезы 1-1, 2-2. Элемент плана №1
   Фасады. Спецификации
   Схемы заполнения оконных проемов. Планы балок и асбестоцементных плит подвесного потолка. Спецификации. Детали 1 - 5
   Фасад смотрового окна ОС1. Разрезы 1-1, 2-2. Переплет смотрового окна ОС1. Узлы "А", "Б"
   Коробка смотрового окна ОС1. Узлы "В", "Г". Схема разверток листов перфорированной фанеры. Выборка материалов на один оконный проем
   Таблица внутренних отделочных работ и экспликация полов. Примечания
   Детали 6 - 17
   План каналов и раскладка деревянных щитов в помещении оператора. Сечения. Детали 18 - 21
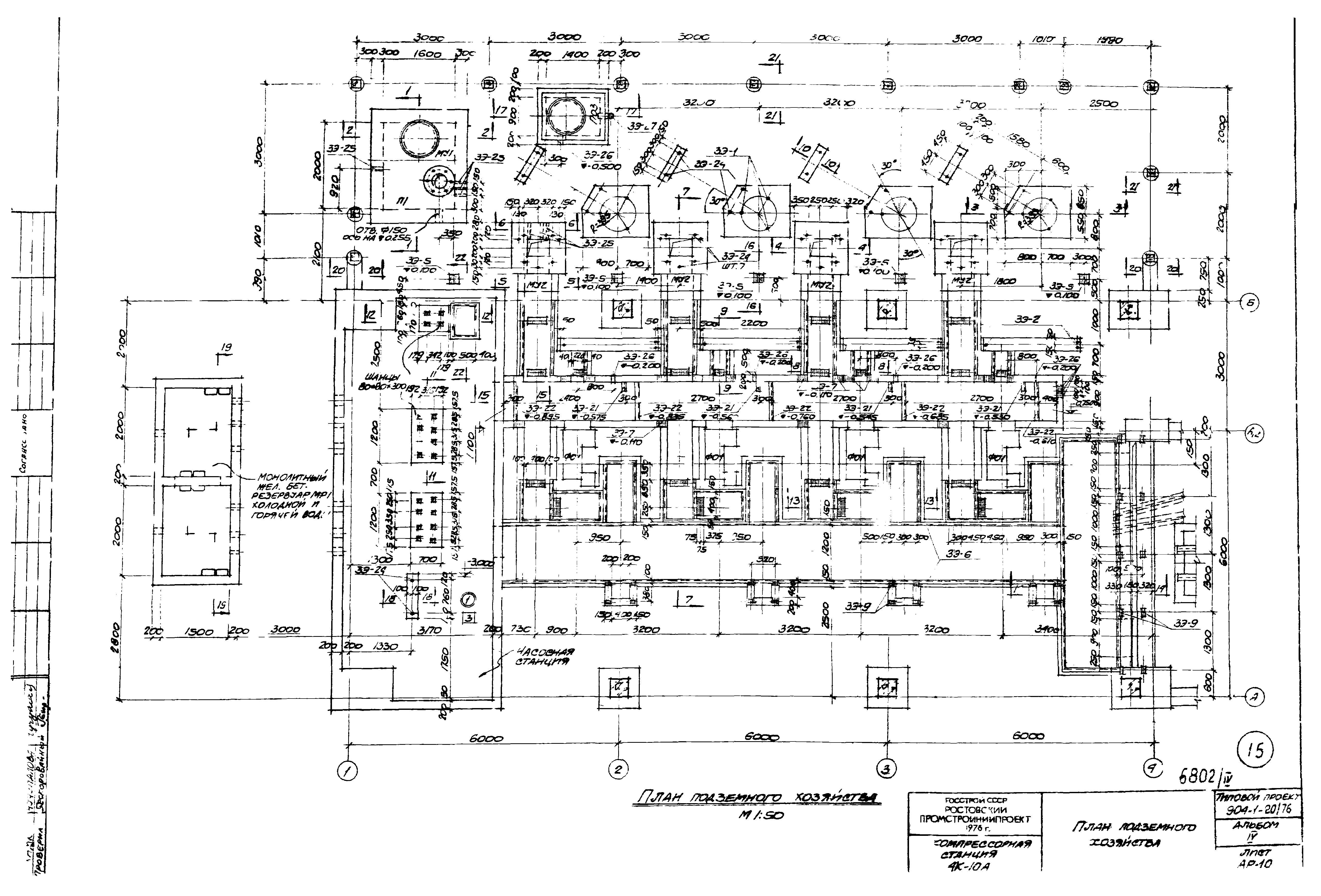
   План подземного хозяйства
   КТП. План на отм. 0.250. План подземного хозяйства. Детали 22 - 26
   Сечения 1-1 - 18-18
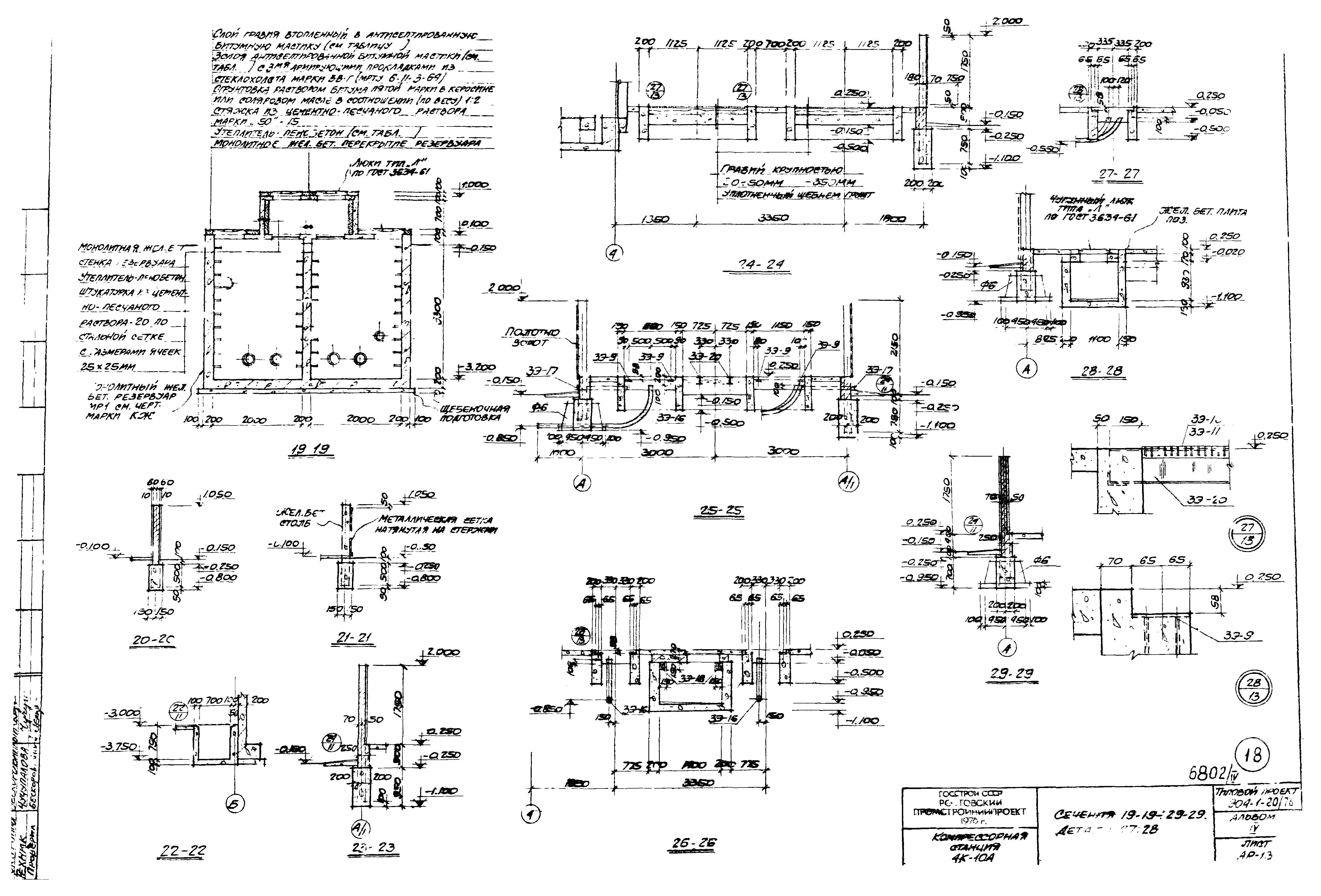
   Сечения 19- 19 - 29-29. Детали 27, 28
   Закладные элементы ЗД1 - ЗД20. Спецификация
Чертежи марки КЖ
   Перечень листов марки КЖ. Перечень примененных в чертежах марки КЖ стандартов и типовых чертежей
   Спецификации сборных и монолитных ж/б элементов. Расход бетона и стали на здание. Техническая спецификация стали
   План фундаментов. Разрезы 1-1 - 5-5
   Фундаменты ФА25-1, ФА25-2, ФА31-1
   Фундаменты ФА35-1, ФА35-2, МФ1
   Спецификация и выборка арматуры к листам КЖ4, 5
   Монолитная плита МП1
   Подпорная стенка МПС1
   Подпорная стенка МПС2
   Подпорные стенки МПС3, МПС4
   Фундамент ФО1 (опалубочные чертежи)
   Фундамент ФО1 (арматурные чертежи)
   Стальные изделия к листам КЖ-8 - КЖ-12, КЖ-15
   Спецификации арматуры на один железобетонный элемент к листам КЖ-7 - КЖ-10
   Балки МБ1, МБ2. Деталь 1. Спецификация и выборка стали на один элемент
   Монолитные участки МУ1, МУ2. Фундаментная балка МФБ1
   Монтажные схемы конструкций каркаса. Разрезы 1-1 - 4-4
   Узлы 1 - 3, разрезы 5-5 - 10-10. Спецификации к листу КЖ-17
   Монтажные схемы стеновых панелей. Фрагменты Ф1, Ф2, Ф3
   Фрагменты Ф4 - Ф10. Разрезы 1-1, 2-2
   Сборные ж/б элементы
   Стальные элементы
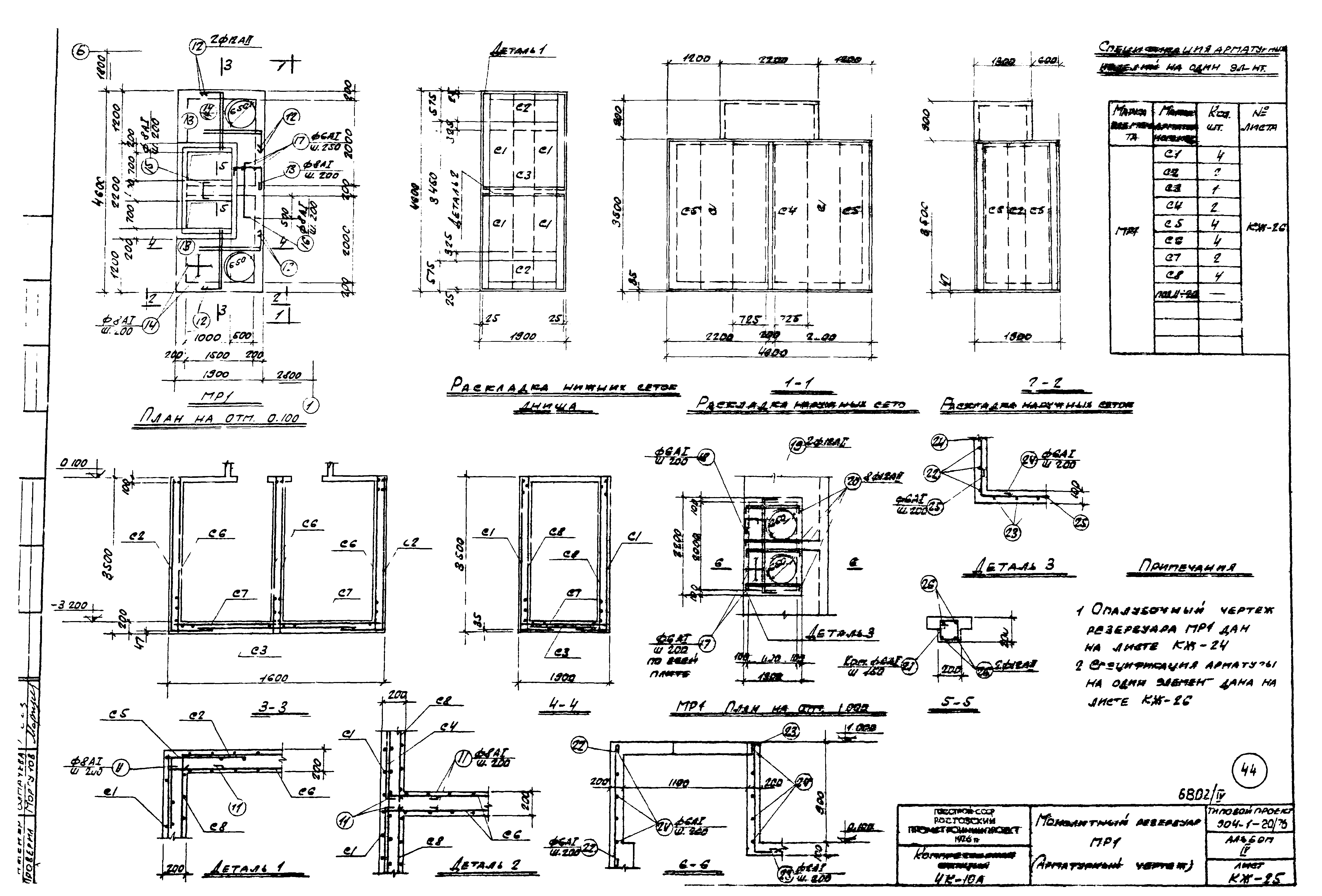
   Монолитный резервуар МР1 (опалубочный чертеж)
   Монолитный резервуар МР1 (арматурный чертеж)
   Стальные изделия, спецификация и выборка стали к листу КЖ-25
   Закладные элементы М1 - М12, М16 - М20
   Закладные элементы М13, М14, М15, НД1 - НД4. Спецификация стали на один закладной элемент
   Монтажная схема плит и щитов перекрытия каналов
   Схема лестницы. Щиты Щ1 - Щ6
   Схема монорельса на отм. 3.800
Чертежи марки ОВ
   Заглавный лист
   Характеристика отопительно-вентиляционных систем. Таблица воздушно-тепловых балансов помещений
   Планы отопления и вентиляции на отм. 0.000; - 3.000. Разрезы 1-1, 2-2. Схема системы В3
   Схема трубопроводов отопления. Узел управления
   Сводная спецификация систем отопления и вентиляции
Чертежи марки ВК
   Заглавный лист
   План на отм. 0.000. Схемы В1, Т3, К1
   Насосная станция водопровода оборотной воды. План. Разрезы
   Насосная станция водопровода оборотной воды. Схема трубопроводов. Спецификация
Разработан: ПромстройНИИпроект
Утверждён:01.02.1976 Минстройдормаш (Minstroydormash 1/76)
Расположен в:Техническая документация Строительство Справочные документы Типовые строительные конструкции, изделия и узлы Общероссийский строительный каталог Промышленные предприятия, здания и сооружения Здания и сооружения санитарно-технические Воздухоснабжение, вентиляция и кондиционирование воздуха Воздухоснабжение
Чем заменён:
Типовой проект 904-1-20/76Типовой проект 904-1-20/76Типовой проект 904-1-20/76Типовой проект 904-1-20/76Типовой проект 904-1-20/76Типовой проект 904-1-20/76Типовой проект 904-1-20/76Типовой проект 904-1-20/76Типовой проект 904-1-20/76Типовой проект 904-1-20/76Типовой проект 904-1-20/76Типовой проект 904-1-20/76Типовой проект 904-1-20/76Типовой проект 904-1-20/76Типовой проект 904-1-20/76Типовой проект 904-1-20/76Типовой проект 904-1-20/76Типовой проект 904-1-20/76Типовой проект 904-1-20/76Типовой проект 904-1-20/76Типовой проект 904-1-20/76Типовой проект 904-1-20/76Типовой проект 904-1-20/76Типовой проект 904-1-20/76Типовой проект 904-1-20/76Типовой проект 904-1-20/76Типовой проект 904-1-20/76Типовой проект 904-1-20/76Типовой проект 904-1-20/76Типовой проект 904-1-20/76Типовой проект 904-1-20/76Типовой проект 904-1-20/76Типовой проект 904-1-20/76Типовой проект 904-1-20/76Типовой проект 904-1-20/76Типовой проект 904-1-20/76Типовой проект 904-1-20/76Типовой проект 904-1-20/76Типовой проект 904-1-20/76Типовой проект 904-1-20/76Типовой проект 904-1-20/76Типовой проект 904-1-20/76Типовой проект 904-1-20/76Типовой проект 904-1-20/76Типовой проект 904-1-20/76Типовой проект 904-1-20/76Типовой проект 904-1-20/76Типовой проект 904-1-20/76Типовой проект 904-1-20/76Типовой проект 904-1-20/76Типовой проект 904-1-20/76Типовой проект 904-1-20/76Типовой проект 904-1-20/76Типовой проект 904-1-20/76Типовой проект 904-1-20/76Типовой проект 904-1-20/76Типовой проект 904-1-20/76Типовой проект 904-1-20/76Типовой проект 904-1-20/76Типовой проект 904-1-20/76Типовой проект 904-1-20/76

© 2013 Ёшкин Кот :-) Карта сайта