Информационная система
«Ёшкин Кот»

Скачать базу одним архивом
Скачать обновления
История создания базы
Карта сайта

Скачать Типовой проект 904-1-20/76 Альбом III. Автоматизация и КИП, электротехническая часть. Задание заводу на изготовление щитов и пультов

Дата актуализации: 10.08.2017

Типовой проект 904-1-20/76

Альбом III. Автоматизация и КИП, электротехническая часть. Задание заводу на изготовление щитов и пультов

Обозначение: Типовой проект 904-1-20/76
Обозначение англ: 904-1-20/76
Статус:не действует
Название рус.:Альбом III. Автоматизация и КИП, электротехническая часть. Задание заводу на изготовление щитов и пультов
Дата добавления в базу:01.09.2013
Дата актуализации:05.05.2017
Дата введения:17.02.1976
Дата окончания срока действия:01.04.1985
Оглавление:Титульный лист
Чертежи основного комплекта марки А
   Содержание альбома
   Указания по привязке типового проекта
   Принципиальная электрическая схема питания
   Принципиальная электрическая схема управления компрессорным агрегатом
   Принципиальная электрическая схема общестанционной сигнализации
   Схема измерения давления и расхода воздуха в сборном коллекторе
   Принципиальная электрическая схема управления насосами охлажденной воды
   Принципиальная электрическая схема управления насосами нагретой воды
   Принципиальная электрическая схема управления дренажным насосом
   Принципиальная электрическая схема сигнализации по насосной станции
   Центральный щит компрессорной. Сборочный чертеж (общий вид)
   МКС Адресный способ
      Центральный щит компрессорной. Панель ПУ1. Схема монтажная
      Центральный щит компрессорной. Панель ПУ2. Схема монтажная
      Центральный щит компрессорной. Панель РП1. Общий вид. Схема монтажная
      Центральный щит компрессорной. Панель РП2. Общий вид. Схема монтажная
   МКС Графический способ
      Центральный щит компрессорной. Панель ПУ1. Схема монтажная
      Центральный щит компрессорной. Панель ПУ2. Схема монтажная
      Центральный щит компрессорной. Панель РП1. Общий вид. Схема монтажная
      Центральный щит компрессорной. Панель РП2. Общий вид. Схема монтажная
   Нестандартизированое оборудование
      03.000 Установка щитов в помещении оператора
      03.000СБ Установка щитов в помещении оператора. Сборочный чертеж
      14.000МЧ Установка реле электромагнитного типа РПУ-1 на щите
      15.000МЧ Установка реле промежуточного типа РП12 на щите
   Заказная спецификация аппаратуры и материалов, установленных на щитах
   Заказная спецификация щитов и пультов
Чертежи основного комплекта марки ЭЛ
   Щит закрытый 1ШЩ. Опись документов
   Щит закрытый 1ШЩ. Общий вид
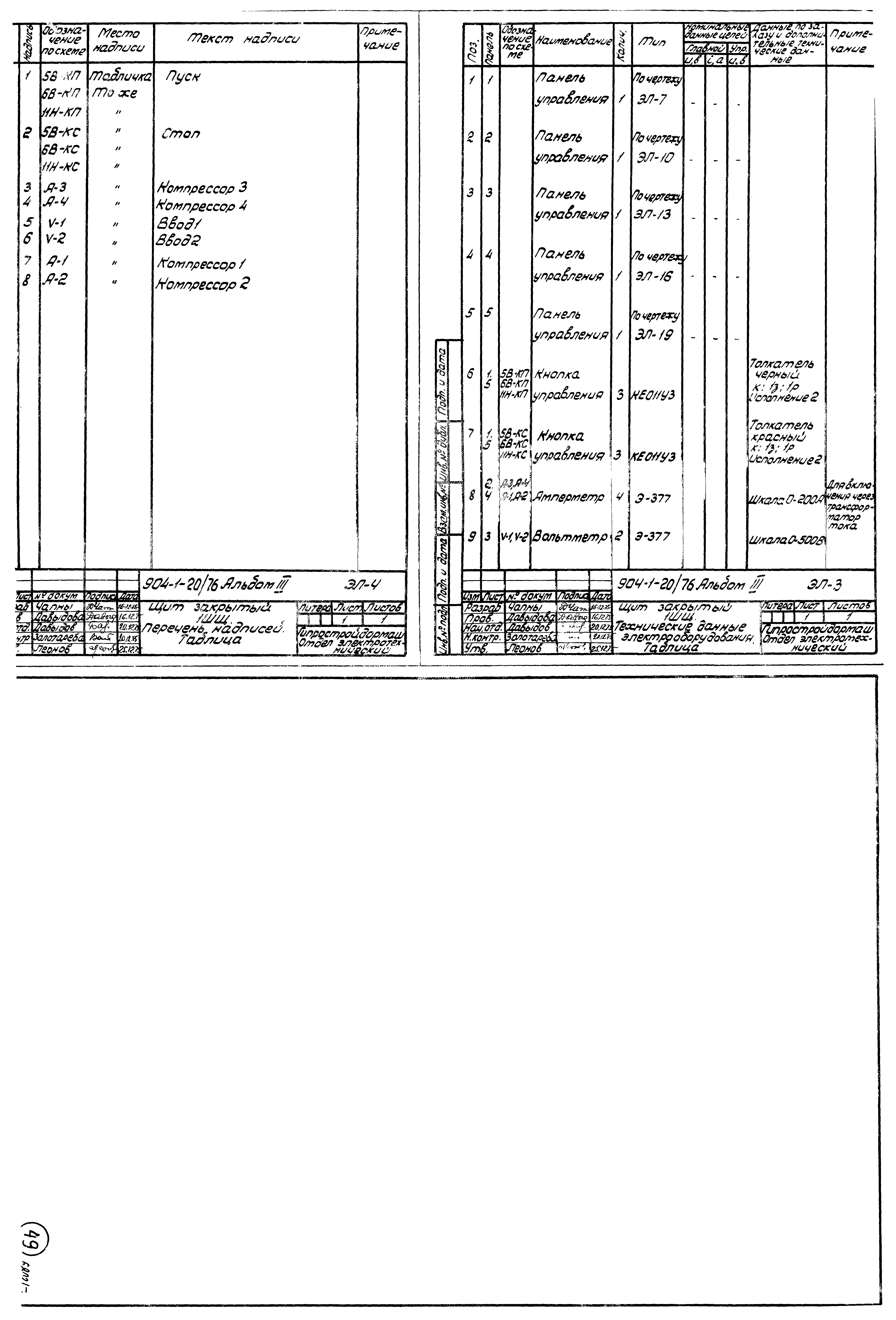
   Щит закрытый 1ШЩ. Перечень надписей. Таблица
   Щит закрытый 1ШЩ. Технические данные электрооборудования. Таблица
   Щит закрытый 1ШЩ. Панели 1, 2. Схема электрическая соединений
   Щит закрытый 1ШЩ. Панели 3 - 5. Схема электрическая соединений
   Щит закрытый 1ШЩ. Панель 1. Перечень надписей. Таблица
   Щит закрытый 1ШЩ. Панель 1. Технические данные электрооборудования. Таблица
   Щит закрытый 1ШЩ. Панель 1. Общий вид
   Щит закрытый 1ШЩ. Панель 2. Перечень надписей. Таблица
   Щит закрытый 1ШЩ. Панель 2. Технические данные электрооборудования. Таблица
   Щит закрытый 1ШЩ. Панель 2. Общий вид
   Щит закрытый 1ШЩ. Панель 3. Перечень надписей. Таблица
   Щит закрытый 1ШЩ. Панель 3. Технические данные электрооборудования. Таблица
   Щит закрытый 1ШЩ. Панель 3. Общий вид
   Щит закрытый 1ШЩ. Панель 4. Перечень надписей. Таблица
   Щит закрытый 1ШЩ. Панель 4. Технические данные электрооборудования. Таблица
   Щит закрытый 1ШЩ. Панель 4. Общий вид
   Щит закрытый 1ШЩ. Панель 5. Перечень надписей. Таблица
   Щит закрытый 1ШЩ. Панель 5. Технические данные электрооборудования. Таблица
   Щит закрытый 1ШЩ. Панель 5. Общий вид
Разработан: Гипростройдормаш
Утверждён:01.02.1976 Минстройдормаш (Minstroydormash 1/76)
Расположен в:Техническая документация Строительство Справочные документы Типовые строительные конструкции, изделия и узлы Общероссийский строительный каталог Промышленные предприятия, здания и сооружения Здания и сооружения санитарно-технические Воздухоснабжение, вентиляция и кондиционирование воздуха Воздухоснабжение
Чем заменён:
Типовой проект 904-1-20/76Типовой проект 904-1-20/76Типовой проект 904-1-20/76Типовой проект 904-1-20/76Типовой проект 904-1-20/76Типовой проект 904-1-20/76Типовой проект 904-1-20/76Типовой проект 904-1-20/76Типовой проект 904-1-20/76Типовой проект 904-1-20/76Типовой проект 904-1-20/76Типовой проект 904-1-20/76Типовой проект 904-1-20/76Типовой проект 904-1-20/76Типовой проект 904-1-20/76Типовой проект 904-1-20/76Типовой проект 904-1-20/76Типовой проект 904-1-20/76Типовой проект 904-1-20/76Типовой проект 904-1-20/76Типовой проект 904-1-20/76Типовой проект 904-1-20/76Типовой проект 904-1-20/76Типовой проект 904-1-20/76Типовой проект 904-1-20/76Типовой проект 904-1-20/76Типовой проект 904-1-20/76Типовой проект 904-1-20/76Типовой проект 904-1-20/76Типовой проект 904-1-20/76Типовой проект 904-1-20/76Типовой проект 904-1-20/76Типовой проект 904-1-20/76Типовой проект 904-1-20/76Типовой проект 904-1-20/76Типовой проект 904-1-20/76Типовой проект 904-1-20/76Типовой проект 904-1-20/76Типовой проект 904-1-20/76Типовой проект 904-1-20/76Типовой проект 904-1-20/76Типовой проект 904-1-20/76Типовой проект 904-1-20/76Типовой проект 904-1-20/76Типовой проект 904-1-20/76Типовой проект 904-1-20/76Типовой проект 904-1-20/76Типовой проект 904-1-20/76Типовой проект 904-1-20/76Типовой проект 904-1-20/76Типовой проект 904-1-20/76Типовой проект 904-1-20/76Типовой проект 904-1-20/76Типовой проект 904-1-20/76Типовой проект 904-1-20/76Типовой проект 904-1-20/76Типовой проект 904-1-20/76Типовой проект 904-1-20/76Типовой проект 904-1-20/76Типовой проект 904-1-20/76

© 2013 Ёшкин Кот :-) Карта сайта