Скачать Типовые материалы для проектирования 904-02-30.86 Альбом IV. Кондиционер прямоточный с одной секцией воздухонагревателя первого подогрева, оснащаемого циркуляционным насосом, и с четырьмя доводчиками. Электрическая система регулированияДата актуализации: 10.08.2017 Типовые материалы для проектирования 904-02-30.86
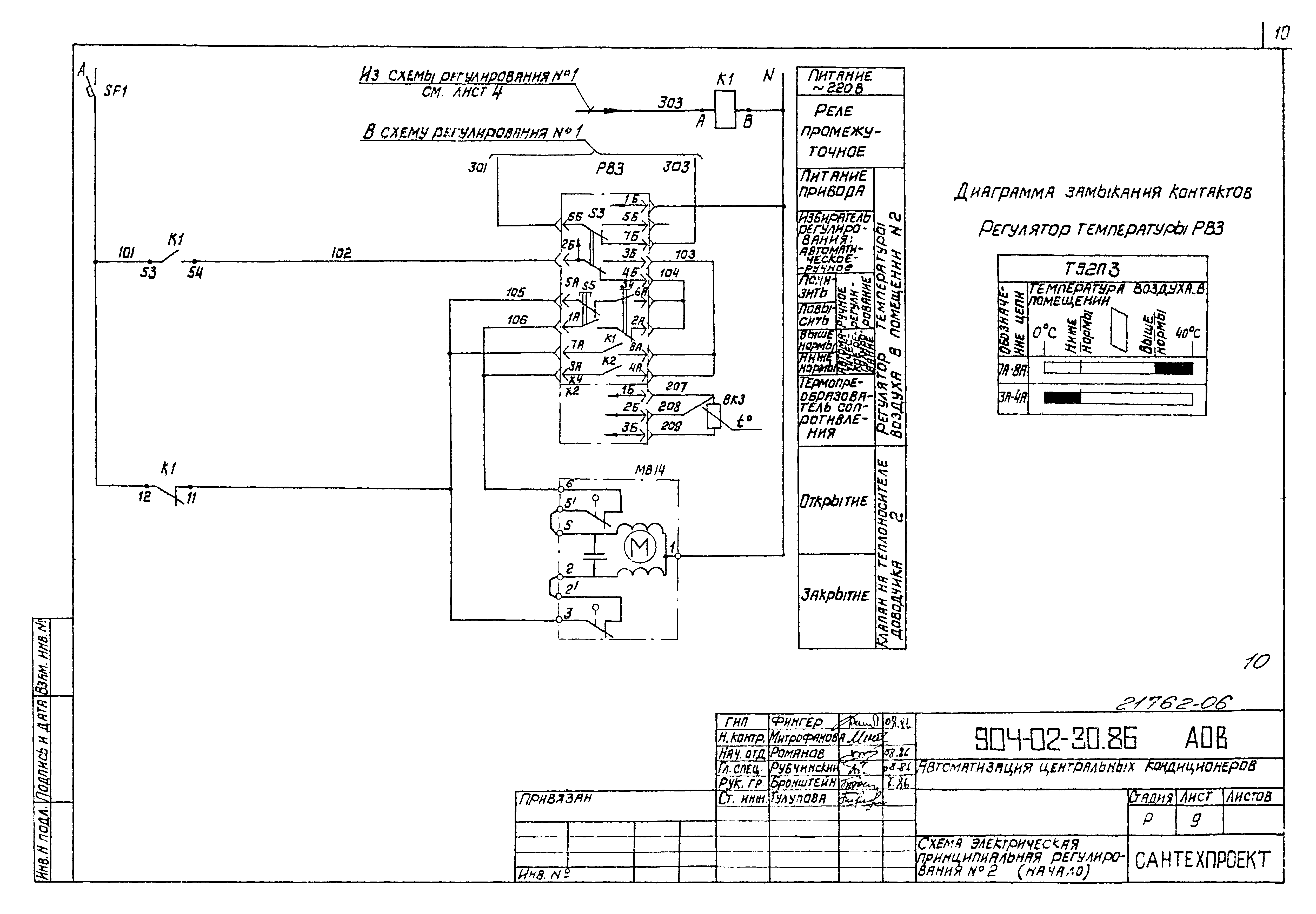
Альбом IV. Кондиционер прямоточный с одной секцией воздухонагревателя первого подогрева, оснащаемого циркуляционным насосом, и с четырьмя доводчиками. Электрическая система регулированияОбозначение: | Типовые материалы для проектирования 904-02-30.86 | Обозначение англ: | 904-02-30.86 | Статус: | cправочные материалы, мп, тпр | Название рус.: | Альбом IV. Кондиционер прямоточный с одной секцией воздухонагревателя первого подогрева, оснащаемого циркуляционным насосом, и с четырьмя доводчиками. Электрическая система регулирования | Дата добавления в базу: | 01.09.2013 | Дата актуализации: | 05.05.2017 | Оглавление: | ТП 904-02-30.86-АОВ-1 Ведомости ссылочных и примененных документов и чертежей ТП 904-02-30.86-АОВ-2,3 Схема автоматизации ТП 904-02-30.86-АОВ-4-8 Схема электрическая принципиальная регулирования № 1 ТП 904-02-30.86-АОВ-9-12 Схема электрическая принципиальная регулирования № 2 ТП 904-02-30.86-АОВ-13-17 Щит Щ7П1-1Д. Общий вид ТП 904-02-30.86-АОВ-18-22 Щит Щ7П1-1Д. Таблица соединений ТП 904-02-30.86-АОВ-23-26 Щит Щ7П1-1Д. Таблица подключения ТП 904-02-30.86-АОВ-27-31 Щит Щ7П1-2Д. Общий вид ТП 904-02-30.86-АОВ-32-36 Щит Щ7П1-2Д. Таблица соединений ТП 904-02-30.86-АОВ-37-40 Щит Щ7П1-2Д. Таблица подключения ТП 904-02-30.86-АОВ-41 Схема подключения № 1 ТП 904-02-30.86-АОВ-42 Схема подключения № 2 | Разработан: | Сантехпроект Госстроя СССР
| Утверждён: | 15.09.1986 Минмонтажспецстрой СССР (USSR Minmontazhspetsstroy )
| Расположен в: |
|
                               
|