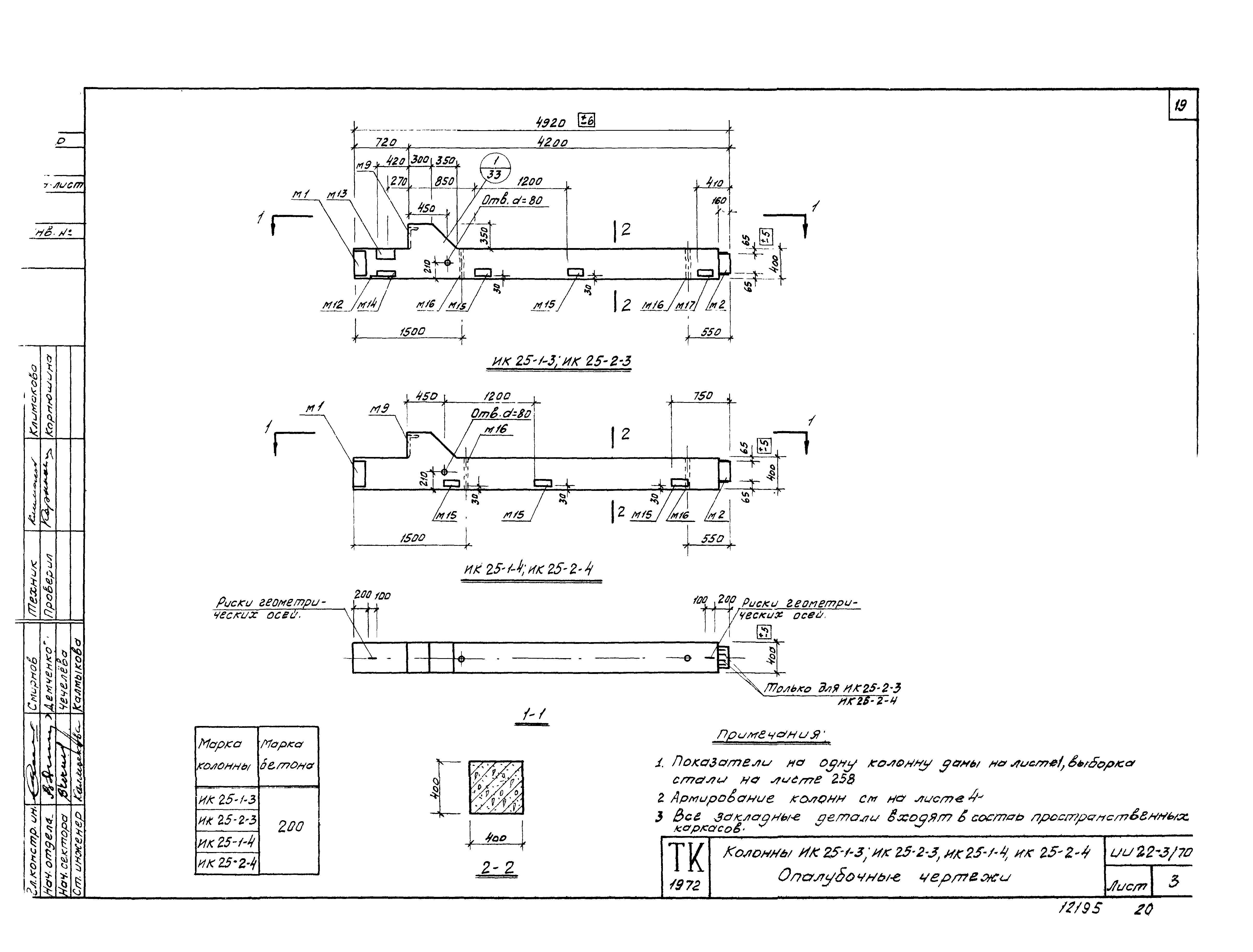
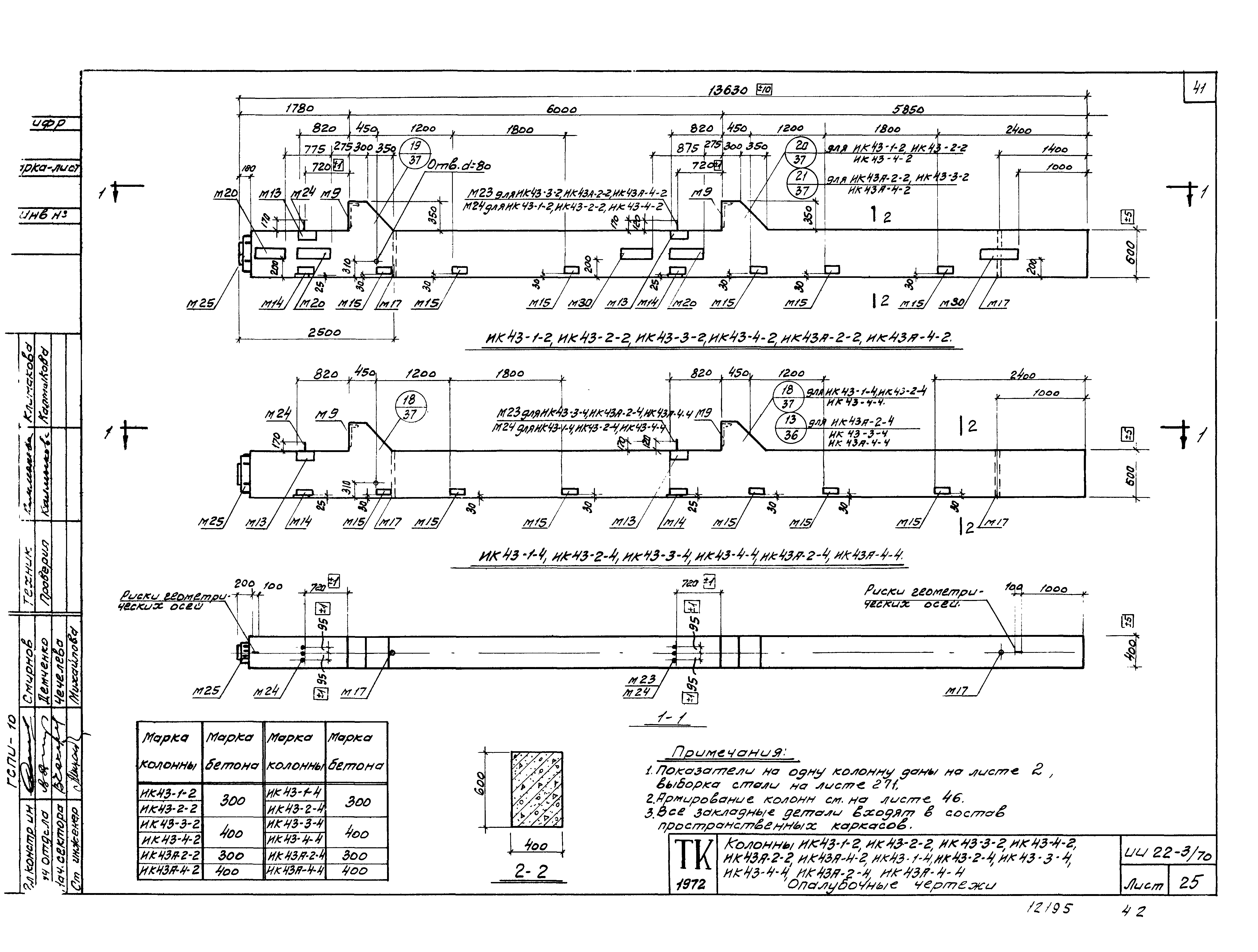
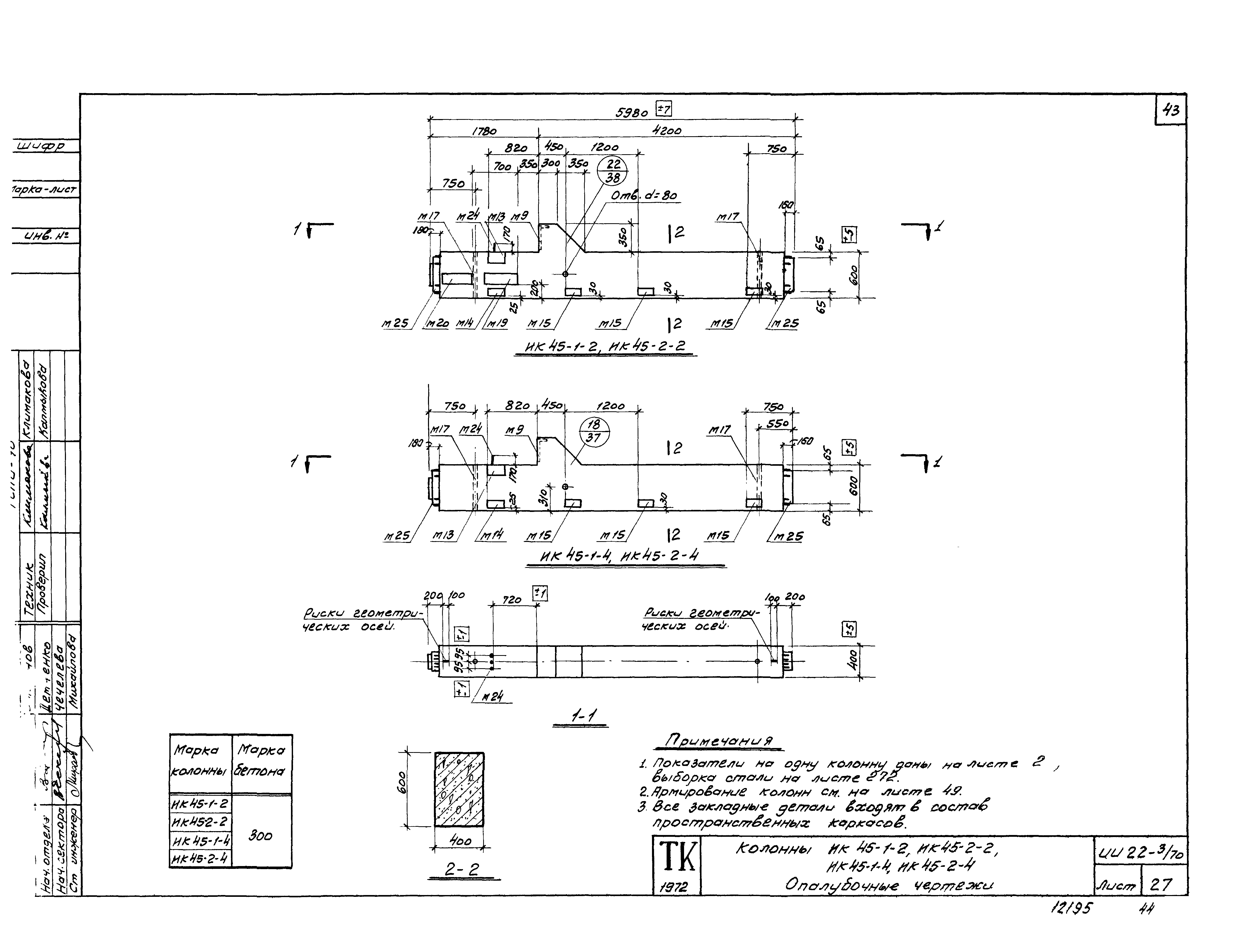
Скачать Серия ИИ22-3/70 Типовые конструкции многоэтажных производственных зданий. Железобетонные колонны высоты этажей 6,0 м, 7,2 м и 10,8 мДата актуализации: 10.08.2017 Серия ИИ22-3/70
Типовые конструкции многоэтажных производственных зданий. Железобетонные колонны высоты этажей 6,0 м, 7,2 м и 10,8 м| Обозначение: | Серия ИИ22-3/70 | | Обозначение англ: | Series ИИ22-3/70 | | Статус: | не действует | | Название рус.: | Типовые конструкции многоэтажных производственных зданий. Железобетонные колонны высоты этажей 6,0 м, 7,2 м и 10,8 м | | Дата добавления в базу: | 01.09.2013 | | Дата актуализации: | 05.05.2017 | | Дата введения: | 01.07.1973 | | Разработан: | ЦНИИпромзданий НИИЖБ ГСПИ-10
| | Утверждён: | 28.11.1972 Госстрой СССР (Государственный комитет Совета Министров СССР по делам строительства) (USSR Gosstroy 203)
| | Издан: | ЦИТП Госстроя СССР (CITP, Gosstroy (USSR) 1975 г. )
| | Расположен в: |
| | Заменяет собой: | | | Чем заменён: | |
                                                                                                                                                                                                                                                                                                          
|