Информационная система
«Ёшкин Кот»

Скачать базу одним архивом
Скачать обновления
История создания базы
Карта сайта

Скачать Типовой проект 903-2-34.90 Альбом 7. Отопление и вентиляция. Внутренние водопровод и канализация. Тепловые сети

Дата актуализации: 10.08.2017

Типовой проект 903-2-34.90

Альбом 7. Отопление и вентиляция. Внутренние водопровод и канализация. Тепловые сети

Обозначение: Типовой проект 903-2-34.90
Обозначение англ: 903-2-34.90
Статус:не определен законодательством
Название рус.:Альбом 7. Отопление и вентиляция. Внутренние водопровод и канализация. Тепловые сети
Дата добавления в базу:01.09.2013
Дата актуализации:05.05.2017
Дата введения:01.04.1991
Оглавление:ТП 903-2-34.90-ОВ Отопление и вентиляция ОВ
ТП 903-2-34.90-ОВ-1 Общие данные (начало)
ТП 903-2-34.90-ОВ-2 Общие данные (продолжение)
ТП 903-2-34.90-ОВ-3 Общие данные (окончание)
ТП 903-2-34.90-ОВ-4 Планы на отметке 0.000-4.000
ТП 903-2-34.90-ОВ-5 Схемы систем отопления и теплоснабжения установки П1. Схемы систем П1;В1;В2;ВЕ1;ВЕ2
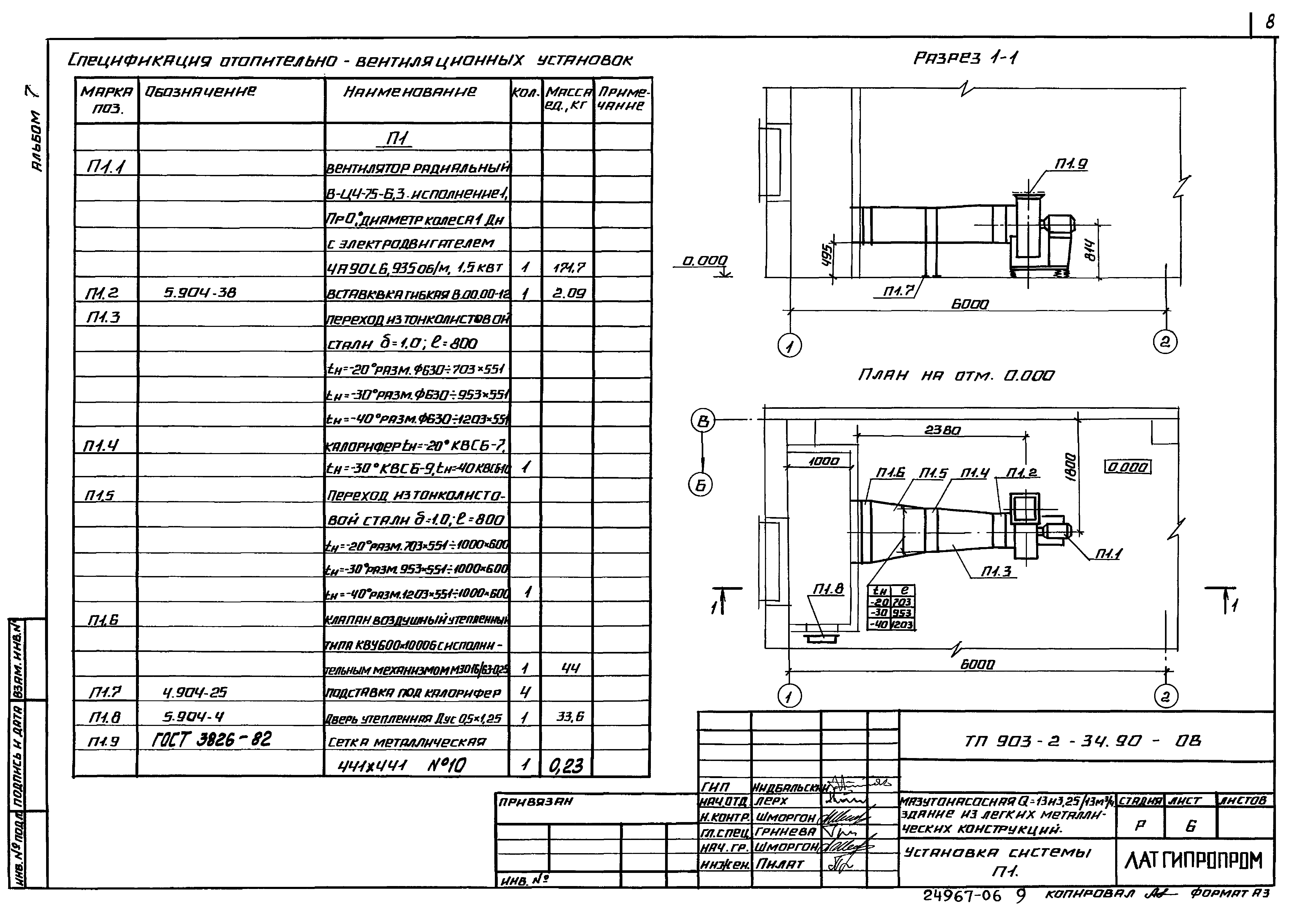
ТП 903-2-34.90-ОВ-6 Установка системы П1
ТП 903-2-34.90-ВК Внутренние водопровод и канализация ВК
ТП 903-2-34.90-ВК-1 Общие данные (начало)
ТП 903-2-34.90-ВК-2 Общие данные (продолжение)
ТП 903-2-34.90-ВК-3 Общие данные (окончание)
ТП 903-2-34.90-ВК-4 План на отметке 0.000
ТП 903-2-34.90-ВК-5 Схемы систем В1 и К13
ТП 903-2-34.90-ТС Тепловые сети ТС
ТП 903-2-34.90-ТС2-1 Общие данные (начало)
ТП 903-2-34.90-ТС2-2 Общие данные (продолжение)
ТП 903-2-34.90-ТС2-3 Индивидуальный тепловой пункт. План. Разрез 1-1
ТП 903-2-34.90-ТС2-4 Индивидуальный тепловой пункт. Схемы узла теплоснабжения
Разработан: Латгипропром
Утверждён:01.04.1991 ГПКНИИ Сантехниипроект (23)
Расположен в:Техническая документация Строительство Справочные документы Типовые строительные конструкции, изделия и узлы Общероссийский строительный каталог Промышленные предприятия, здания и сооружения Здания и сооружения санитарно-технические Теплоснабжение Установка для снабжения котельных жидким топливом
Типовой проект 903-2-34.90Типовой проект 903-2-34.90Типовой проект 903-2-34.90Типовой проект 903-2-34.90Типовой проект 903-2-34.90Типовой проект 903-2-34.90Типовой проект 903-2-34.90Типовой проект 903-2-34.90Типовой проект 903-2-34.90Типовой проект 903-2-34.90Типовой проект 903-2-34.90Типовой проект 903-2-34.90Типовой проект 903-2-34.90Типовой проект 903-2-34.90Типовой проект 903-2-34.90Типовой проект 903-2-34.90Типовой проект 903-2-34.90Типовой проект 903-2-34.90

© 2013 Ёшкин Кот :-) Карта сайта