Информационная система
«Ёшкин Кот»

Скачать базу одним архивом
Скачать обновления
История создания базы
Карта сайта

Скачать Типовой проект 903-2-34.90 Альбом 2. Мазутоснабжение (Q = 13 куб. м/ч)

Дата актуализации: 10.08.2017

Типовой проект 903-2-34.90

Альбом 2. Мазутоснабжение (Q = 13 куб. м/ч)

Обозначение: Типовой проект 903-2-34.90
Обозначение англ: 903-2-34.90
Статус:не определен законодательством
Название рус.:Альбом 2. Мазутоснабжение (Q = 13 куб. м/ч)
Дата добавления в базу:01.09.2013
Дата актуализации:05.05.2017
Дата введения:01.04.1991
Оглавление:ТП 903-2-34.90-МС1-1 Общие данные (начало)
ТП 903-2-34.90-МС1-2 Общие данные (продолжение)
ТП 903-2-34.90-МС1-3 Общие данные (продолжение)
ТП 903-2-34.90-МС1-4 Общие данные (продолжение)
ТП 903-2-34.90-МС1-5 Общие данные (продолжение)
ТП 903-2-34.90-МС1-6 Общие данные (продолжение)
ТП 903-2-34.90-МС1-7 Общие данные (продолжение)
ТП 903-2-34.90-МС1-8 Общие данные (продолжение)
ТП 903-2-34.90-МС1-9 Общие данные (продолжение)
ТП 903-2-34.90-МС1-10 Общие данные (продолжение)
ТП 903-2-34.90-МС1-11 Общие данные (продолжение)
ТП 903-2-34.90-МС1-12 Общие данные (продолжение)
ТП 903-2-34.90-МС1-13 Общие данные (продолжение)
ТП 903-2-34.90-МС1-14 Общие данные (продолжение)
ТП 903-2-34.90-МС1-15 Общие данные (продолжение)
ТП 903-2-34.90-МС1-16 Общие данные (продолжение)
ТП 903-2-34.90-МС1-17 Общие данные (окончание)
ТП 903-2-34.90-МС1-18 Схема соединений установки мазутоснабжения Q=13м³/ч
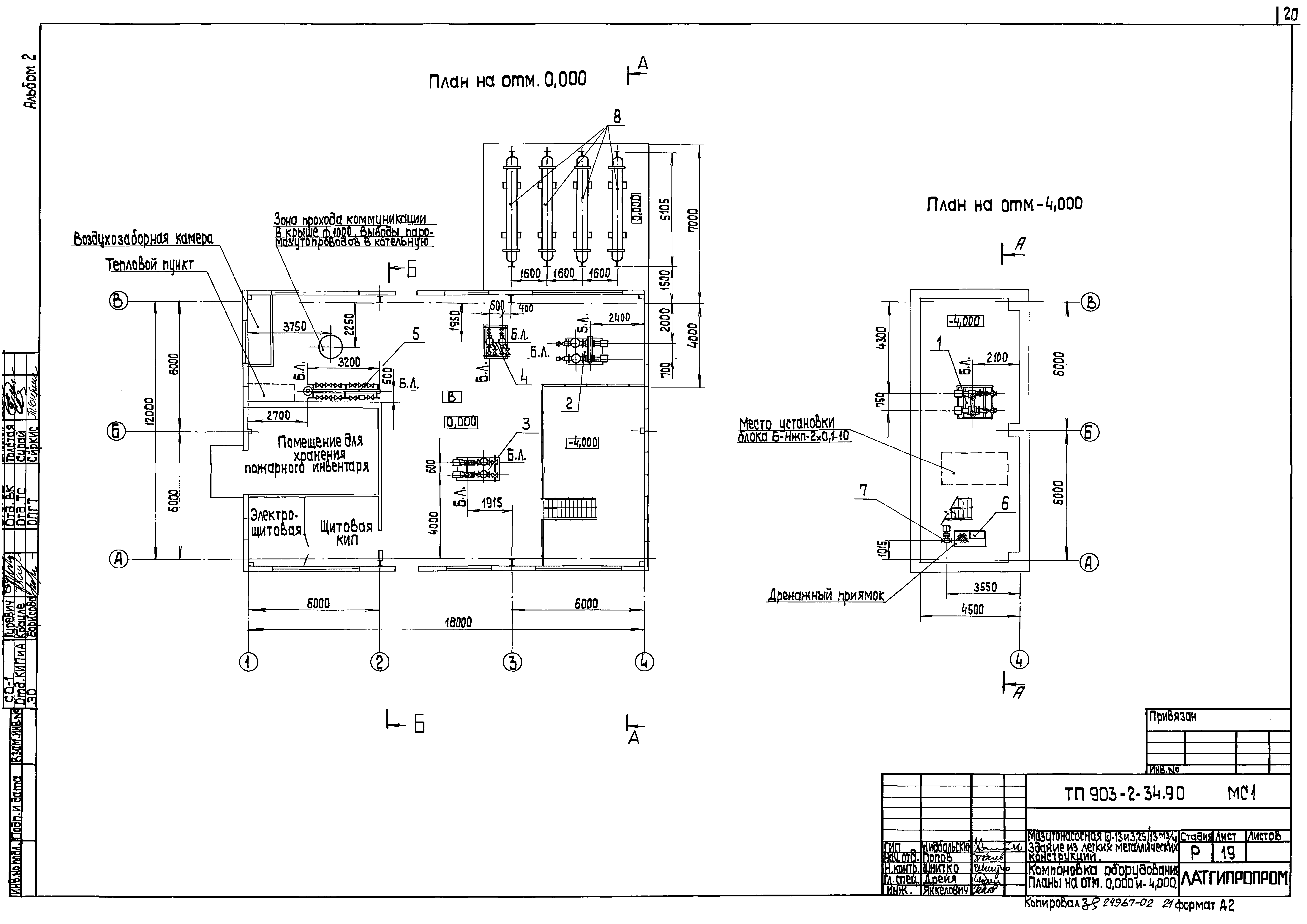
ТП 903-2-34.90-МС1-19 Компоновка оборудования. Планы на отм. 0.000 и -4.000
ТП 903-2-34.90-МС1-20 Компоновка оборудования. Разрез А-А;Б-Б. Вид В
ТП 903-2-34.90-МС1-21 Трубопроводы группы 1. Вид сверху. План на отм. -4.000
ТП 903-2-34.90-МС1-22 Трубопроводы группы 1. Разрезы А-А;Б-Б. Узел прохода
ТП 903-2-34.90-МС1-23 Трубопроводы группы 1. Разрезы В-В;Г-Г;Д-Д;Е-Е
ТП 903-2-34.90-МС1-24 Трубопроводы группы 1. Спецификация
ТП 903-2-34.90-МС1-25 Трубопроводы группы 1. Опоры № 1 и 7
ТП 903-2-34.90-МС1-26 Трубопроводы группы 1. Опора № 2
ТП 903-2-34.90-МС1-27 Трубопроводы группы 1. Опора № 3
ТП 903-2-34.90-МС1-28 Трубопроводы группы 1. Опора № 4
ТП 903-2-34.90-МС1-29 Трубопроводы группы 1. Опора № 6
ТП 903-2-34.90-МС1-30 Трубопроводы группы 1. Опора № 8
ТП 903-2-34.90-МС1-31 Трубопроводы группы 1. Опора № 5 и 9
ТП 903-2-34.90-МС1-32 Трубопроводы группы 1. Опора № 10
ТП 903-2-34.90-МС1-33 Трубопроводы группы 1. Опора № 11
ТП 903-2-34.90-МС1-34 Трубопроводы группы 1. Опора № 12
ТП 903-2-34.90-МС1-35 Схема дренажа и продувки трубопроводов группы 1
ТП 903-2-34.90-МС1-36 Схема дренажа и продувки трубопроводов группы 1. Спецификация
ТП 903-2-34.90-МС1-37 Трубопроводы группы 2. Вид сверху
ТП 903-2-34.90-МС1-38 Трубопроводы группы 2. План паропроводов. План конденсатопроводов. Разрез Е-Е. Узел
ТП 903-2-34.90-МС1-39 Трубопроводы группы 2. Разрезы А-А;Б-Б;В-В;Г-Г
ТП 903-2-34.90-МС1-40 Трубопроводы группы 2. Разрезы Д-Д;Ж-Ж
ТП 903-2-34.90-МС1-41 Трубопроводы группы 2. Спецификация
ТП 903-2-34.90-МС1-42 Схема дренажа и продувки трубопроводов группы 2
ТП 903-2-34.90-МС1-43 Схема дренажа и продувки трубопроводов группы 2. Спецификация
ТП 903-2-34.90-МС1-44 Узел монтажа датчиков уровня ДУ. План. Разрезы А-А;Б-Б. Узел 1
ТП 903-2-34.90-МС1-45 Дренажное и продувочное устройство
ТП 903-2-34.90-МС1-46 Таблица размеров крепежных изделий со спецификацией. Узлы. Детали
Разработан: Латгипропром
Утверждён:01.04.1991 ГПКНИИ Сантехниипроект (23)
Расположен в:Техническая документация Строительство Справочные документы Типовые строительные конструкции, изделия и узлы Общероссийский строительный каталог Промышленные предприятия, здания и сооружения Здания и сооружения санитарно-технические Теплоснабжение Установка для снабжения котельных жидким топливом
Типовой проект 903-2-34.90Типовой проект 903-2-34.90Типовой проект 903-2-34.90Типовой проект 903-2-34.90Типовой проект 903-2-34.90Типовой проект 903-2-34.90Типовой проект 903-2-34.90Типовой проект 903-2-34.90Типовой проект 903-2-34.90Типовой проект 903-2-34.90Типовой проект 903-2-34.90Типовой проект 903-2-34.90Типовой проект 903-2-34.90Типовой проект 903-2-34.90Типовой проект 903-2-34.90Типовой проект 903-2-34.90Типовой проект 903-2-34.90Типовой проект 903-2-34.90Типовой проект 903-2-34.90Типовой проект 903-2-34.90Типовой проект 903-2-34.90Типовой проект 903-2-34.90Типовой проект 903-2-34.90Типовой проект 903-2-34.90Типовой проект 903-2-34.90Типовой проект 903-2-34.90Типовой проект 903-2-34.90Типовой проект 903-2-34.90Типовой проект 903-2-34.90Типовой проект 903-2-34.90Типовой проект 903-2-34.90Типовой проект 903-2-34.90Типовой проект 903-2-34.90Типовой проект 903-2-34.90Типовой проект 903-2-34.90Типовой проект 903-2-34.90Типовой проект 903-2-34.90Типовой проект 903-2-34.90Типовой проект 903-2-34.90Типовой проект 903-2-34.90Типовой проект 903-2-34.90Типовой проект 903-2-34.90Типовой проект 903-2-34.90Типовой проект 903-2-34.90Типовой проект 903-2-34.90Типовой проект 903-2-34.90Типовой проект 903-2-34.90Типовой проект 903-2-34.90

© 2013 Ёшкин Кот :-) Карта сайта