Информационная система
«Ёшкин Кот»

Скачать базу одним архивом
Скачать обновления
История создания базы
Карта сайта

Скачать Типовой проект 407-3-656.01 Альбом 2. Архитектурно-строительные изделия

Дата актуализации: 10.08.2017

Типовой проект 407-3-656.01

Альбом 2. Архитектурно-строительные изделия

Обозначение: Типовой проект 407-3-656.01
Обозначение англ: 407-3-656.01
Статус:не определен законодательством
Название рус.:Альбом 2. Архитектурно-строительные изделия
Дата добавления в базу:01.09.2013
Дата актуализации:05.05.2017
Дата введения:23.01.2003
Оглавление:ТП 407-3-656.01-АС.И-00 Содержание альбома
ТП 407-3-656.01-АС.И-ТУ Технические условия
ТП 407-3-656.01-АС.И-МК1 Марка МК1
ТП 407-3-656.01-АС.И-МК2 Марка МК2
ТП 407-3-656.01-АС.И-МК3;ТП 407-3-656.01-АС.И-МК4 Марка МК3. Марка МК4
ТП 407-3-656.01-АС.И-МН1 Изделие закладное МН1
ТП 407-3-656.01-АС.И-МН2 Изделие закладное МН2
ТП 407-3-656.01-АС.И-МС1 Соединительное изделие МС1
ТП 407-3-656.01-АС.И-МС2 Соединительное изделие МС2
ТП 407-3-656.01-АС.И-ВЖ1 Вентиляционная жалюзийная решетка ВЖ1
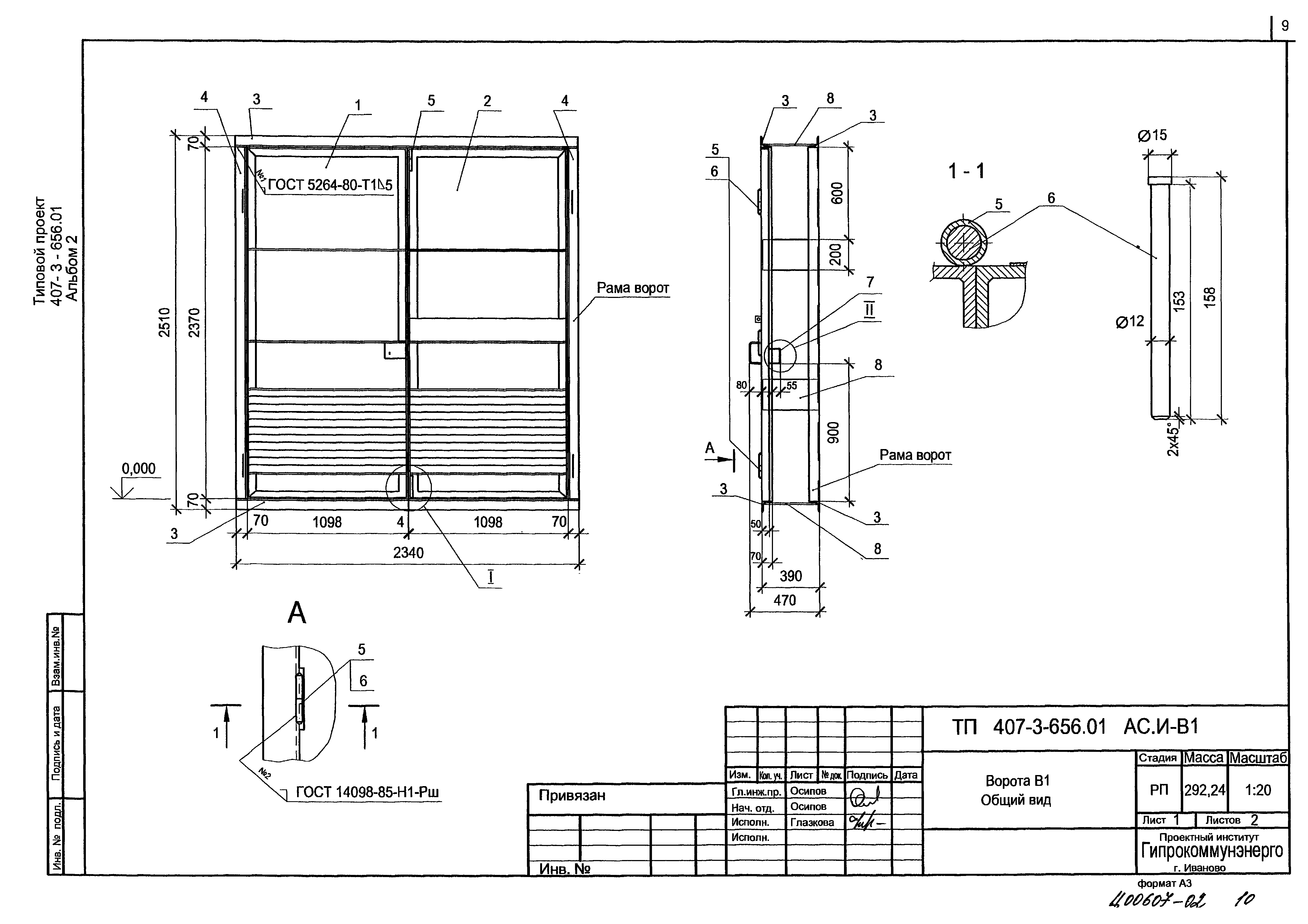
ТП 407-3-656.01-АС.И-В1 Ворота В1. Общий вид
ТП 407-3-656.01-АС.И-В1ПЛ Ворота В1. Полотно левое
ТП 407-3-656.01-АС.И-В1ПП Ворота В1. Полотно правое
ТП 407-3-656.01-АС.И-В2 Ворота В2. Общий вид
ТП 407-3-656.01-АС.И-В2ПЛ Ворота В2. Полотно левое
ТП 407-3-656.01-АС.И-В2ПП Ворота В2. Полотно правое
ТП 407-3-656.01-АС.И-Д1 Дверной блок Д1. Общий вид
ТП 407-3-656.01-АС.И-Д1ПД Дверной блок Д1. Полотно дверное
ТП 407-3-656.01-АС.И-КР1 Каркас КР1
ТП 407-3-656.01-АС.И-КР2 Каркас КР2
ТП 407-3-656.01-АС.И-КР3 Каркас КР3
ТП 407-3-656.01-АС.И-КР4 Каркас КР4
Разработан: Гипрокоммунэнерго
Утверждён:23.01.2003 ЗАО Альстом СЭМЗ (22)
Расположен в:Техническая документация Строительство Справочные документы Типовые строительные конструкции, изделия и узлы Общероссийский строительный каталог Промышленные предприятия, здания и сооружения Предприятия, здания и сооружения промышленности и электроэнергетики Электроэнергетика Устройства и подстанции распределительные
Типовой проект 407-3-656.01Типовой проект 407-3-656.01Типовой проект 407-3-656.01Типовой проект 407-3-656.01Типовой проект 407-3-656.01Типовой проект 407-3-656.01Типовой проект 407-3-656.01Типовой проект 407-3-656.01Типовой проект 407-3-656.01Типовой проект 407-3-656.01Типовой проект 407-3-656.01Типовой проект 407-3-656.01Типовой проект 407-3-656.01Типовой проект 407-3-656.01Типовой проект 407-3-656.01Типовой проект 407-3-656.01Типовой проект 407-3-656.01Типовой проект 407-3-656.01Типовой проект 407-3-656.01Типовой проект 407-3-656.01Типовой проект 407-3-656.01Типовой проект 407-3-656.01Типовой проект 407-3-656.01Типовой проект 407-3-656.01Типовой проект 407-3-656.01Типовой проект 407-3-656.01Типовой проект 407-3-656.01Типовой проект 407-3-656.01

© 2013 Ёшкин Кот :-) Карта сайта