Информационная система
«Ёшкин Кот»

Скачать базу одним архивом
Скачать обновления
История создания базы
Карта сайта

Скачать Типовые материалы для проектирования 407-03-431.86 Альбом I. Архитектурно-строительные решения

Дата актуализации: 10.08.2017

Типовые материалы для проектирования 407-03-431.86

Альбом I. Архитектурно-строительные решения

Обозначение: Типовые материалы для проектирования 407-03-431.86
Обозначение англ: 407-03-431.86
Статус:cправочные материалы, мп, тпр
Название рус.:Альбом I. Архитектурно-строительные решения
Дата добавления в базу:01.09.2013
Дата актуализации:05.05.2017
Дата введения:01.01.1987
Оглавление:ТМП 407-03-431.86-СА-1 Содержание альбома
ТМП 407-03-431.86-АС-1 Общие данные (начало)
ТМП 407-03-431.86-АС-2 Общие данные (окончание)
ТМП 407-03-431.86-АС-3 Схема расположения сборных ж.б. элементов для 35-4в
ТМП 407-03-431.86-АС-4 Схема расположения сборных ж.б. элементов для 35-5
ТМП 407-03-431.86-АС-5 Схема расположения сборных ж.б. элементов для 35-5в
ТМП 407-03-431.86-АС-6 Схема расположения сборных ж.б. элементов для 35-4б
ТМП 407-03-431.86-АС-7 Схема расположения сборных ж.б. элементов для 35-6
ТМП 407-03-431.86-АС-8 Схема расположения сборных ж.б. элементов для 35-3а
ТМП 407-03-431.86-АС-9 Схема расположения сборных ж.б. элементов для 35-3а
ТМП 407-03-431.86-АС-10 Разрезы 1-1;9-9
ТМП 407-03-431.86-АС-11 Схема расположения сборных элементов для КТПМН6-10/0.4-0.69 кВ
ТМП 407-03-431.86-АС-12 Колодец маслосборника
ТМП 407-03-431.86-01.00-02.00-03.00 Изделие закладное МН /МН1...МН3/
ТМП 407-03-431.86-04.00-05.00-06.00-07.00-08.00 Изделие закладное МН /МН4...МН8/
ТМП 407-03-431.86-09.00 Изделие закладное МН /МН9/
ТМП 407-03-431.86-10.00-11.00 Изделие закладное МН /МН10,МН11/
ТМП 407-03-431.86-УП-1-1 Плита УП-1
ТМП 407-03-431.86-12.00 Изделие закладное МН /МН12/
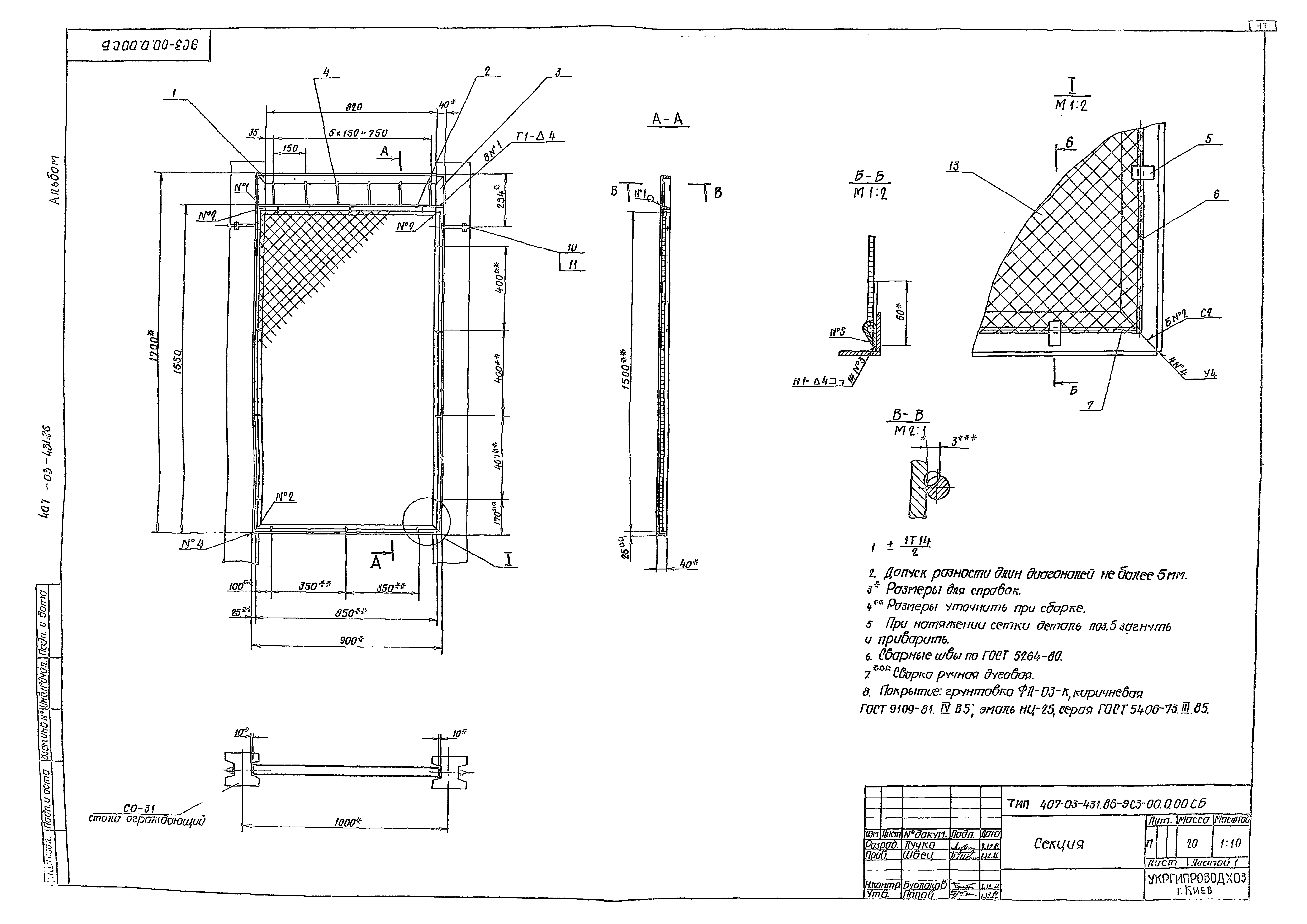
ТМП 407-03-431.86-ЭС3-00.0.00 СБ Секция
ТМП 407-03-431.86-ЭС4-00.0.00 СБ Секция
ТМП 407-03-431.86-ЭС5-00.0.00 СБ Створка ворот
ТМП 407-03-431.86-ЭС6-00.0.00 СБ Створка ворот
ТМП 407-03-431.86-ЭС7-00.0.00 СБ Калитка
ТМП 407-03-431.86-ЭС3-00.0.00 Секция
ТМП 407-03-431.86-ЭС3-00.0.01 Стойка
ТМП 407-03-431.86-ЭС3-00.0.02 Поперечина
ТМП 407-03-431.86-ЭС4-00.0.00 Секция
ТМП 407-03-431.86-ЭС3-00.0.03 Стойка
ТМП 407-03-431.86-ЭС4-00.0.01 Стойка
ТМП 407-03-431.86-ЭС5-00.0.00 Створка ворот
ТМП 407-03-431.86-ЭС5-00.0.01 Стойка
ТМП 407-03-431.86-ЭС4-00.0.02 Поперечина
ТМП 407-03-431.86-ЭС5-00.0.02 Поперечина
ТМП 407-03-431.86-ЭС5-00.0.03 Ушко
ТМП 407-03-431.86-ЭС5-00.0.04 Втулка
ТМП 407-03-431.86-ЭС5-00.0.05 Палец
ТМП 407-03-431.86-ЭС6-00.0.00 Створка ворот
ТМП 407-03-431.86-ЭС6-00.0.02 Планка
ТМП 407-03-431.86-ЭС6-00.0.07 Упор
ТМП 407-03-431.86-ЭС7-00.0.00 Калитка
ТМП 407-03-431.86-ЭС7-00.0.01 Стойка
ТМП 407-03-431.86-ЭС6-00.0.09 Засов
ТМП 407-03-431.86-ЭС7-00.1.00 Стойка
ТМП 407-03-431.86-ЭС7-00.0.03 Поперечна
ТМП 407-03-431.86-ЭС7-00.0.06 Ось
ТМП 407-03-431.86-ЭС7-00.0.04 Ручка
ТМП 407-03-431.86-ЭС7-00.0.08 Ручка
ТМП 407-03-431.86-ЭС7-00.0.09 Пружина
ТМП 407-03-431.86-ЭС8-00.0.00 Хомут
ТМП 407-03-431.86-ЭС8-00.0.00 СБ Хомут
Разработан: Укргипроводхоз Минводхоза Украинской ССР
Утверждён:15.09.1986 Минводхоз СССР (USSR Minvodkhoz 507)
Расположен в:Техническая документация Строительство Справочные документы Типовые строительные конструкции, изделия и узлы Общероссийский строительный каталог Промышленные предприятия, здания и сооружения Предприятия, здания и сооружения промышленности и электроэнергетики Электроэнергетика Устройства и подстанции распределительные
Типовые материалы для проектирования 407-03-431.86Типовые материалы для проектирования 407-03-431.86Типовые материалы для проектирования 407-03-431.86Типовые материалы для проектирования 407-03-431.86Типовые материалы для проектирования 407-03-431.86Типовые материалы для проектирования 407-03-431.86Типовые материалы для проектирования 407-03-431.86Типовые материалы для проектирования 407-03-431.86Типовые материалы для проектирования 407-03-431.86Типовые материалы для проектирования 407-03-431.86Типовые материалы для проектирования 407-03-431.86Типовые материалы для проектирования 407-03-431.86Типовые материалы для проектирования 407-03-431.86Типовые материалы для проектирования 407-03-431.86Типовые материалы для проектирования 407-03-431.86Типовые материалы для проектирования 407-03-431.86Типовые материалы для проектирования 407-03-431.86Типовые материалы для проектирования 407-03-431.86Типовые материалы для проектирования 407-03-431.86Типовые материалы для проектирования 407-03-431.86Типовые материалы для проектирования 407-03-431.86Типовые материалы для проектирования 407-03-431.86Типовые материалы для проектирования 407-03-431.86Типовые материалы для проектирования 407-03-431.86Типовые материалы для проектирования 407-03-431.86Типовые материалы для проектирования 407-03-431.86Типовые материалы для проектирования 407-03-431.86Типовые материалы для проектирования 407-03-431.86Типовые материалы для проектирования 407-03-431.86Типовые материалы для проектирования 407-03-431.86Типовые материалы для проектирования 407-03-431.86

© 2013 Ёшкин Кот :-) Карта сайта