Скачать Типовые проектные решения 907-02-222 Альбом 1.3. Световое ограждение дымовой трубы высотой 60 м. Электротехническая частьДата актуализации: 10.08.2017 Типовые проектные решения 907-02-222
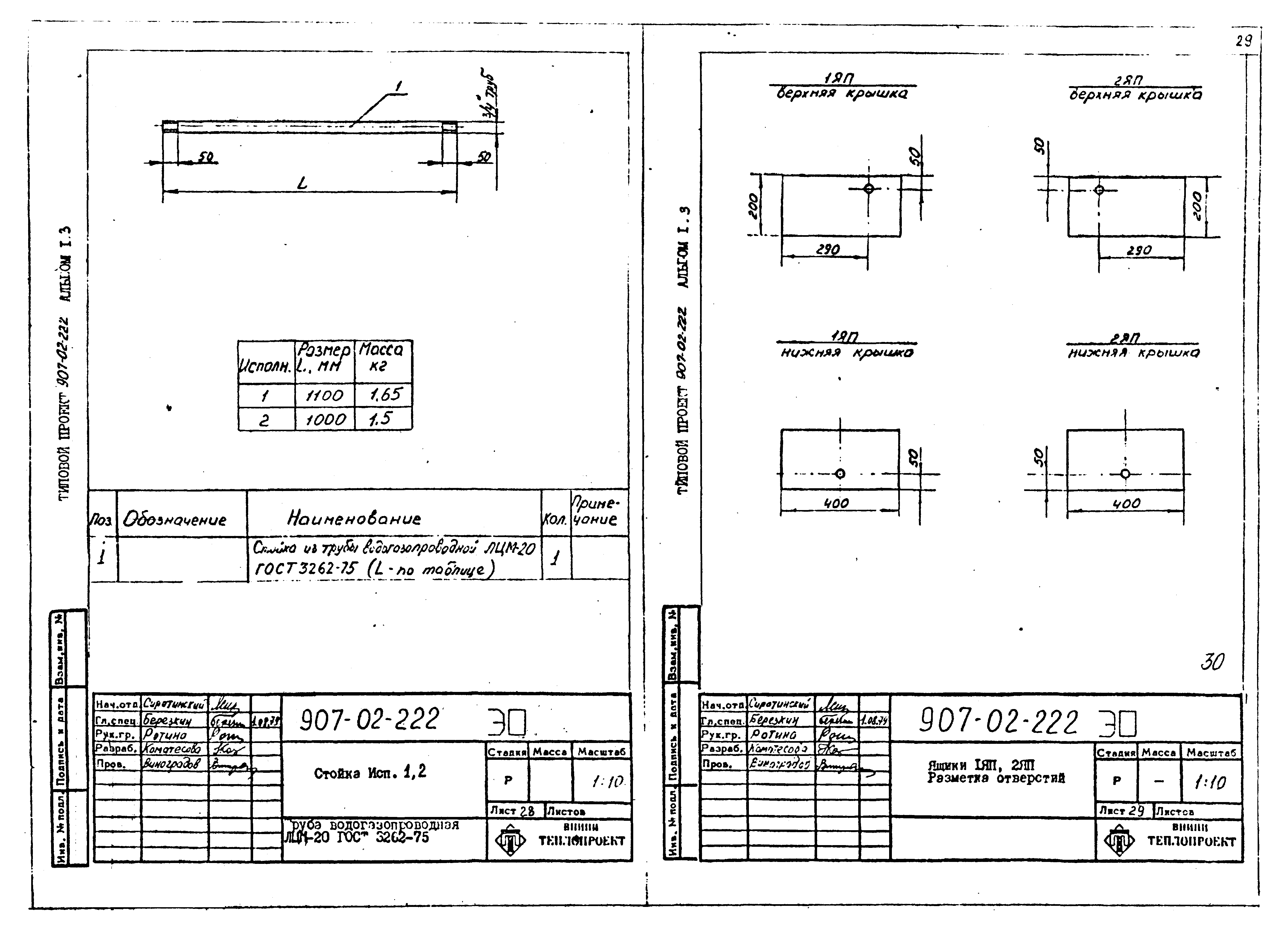
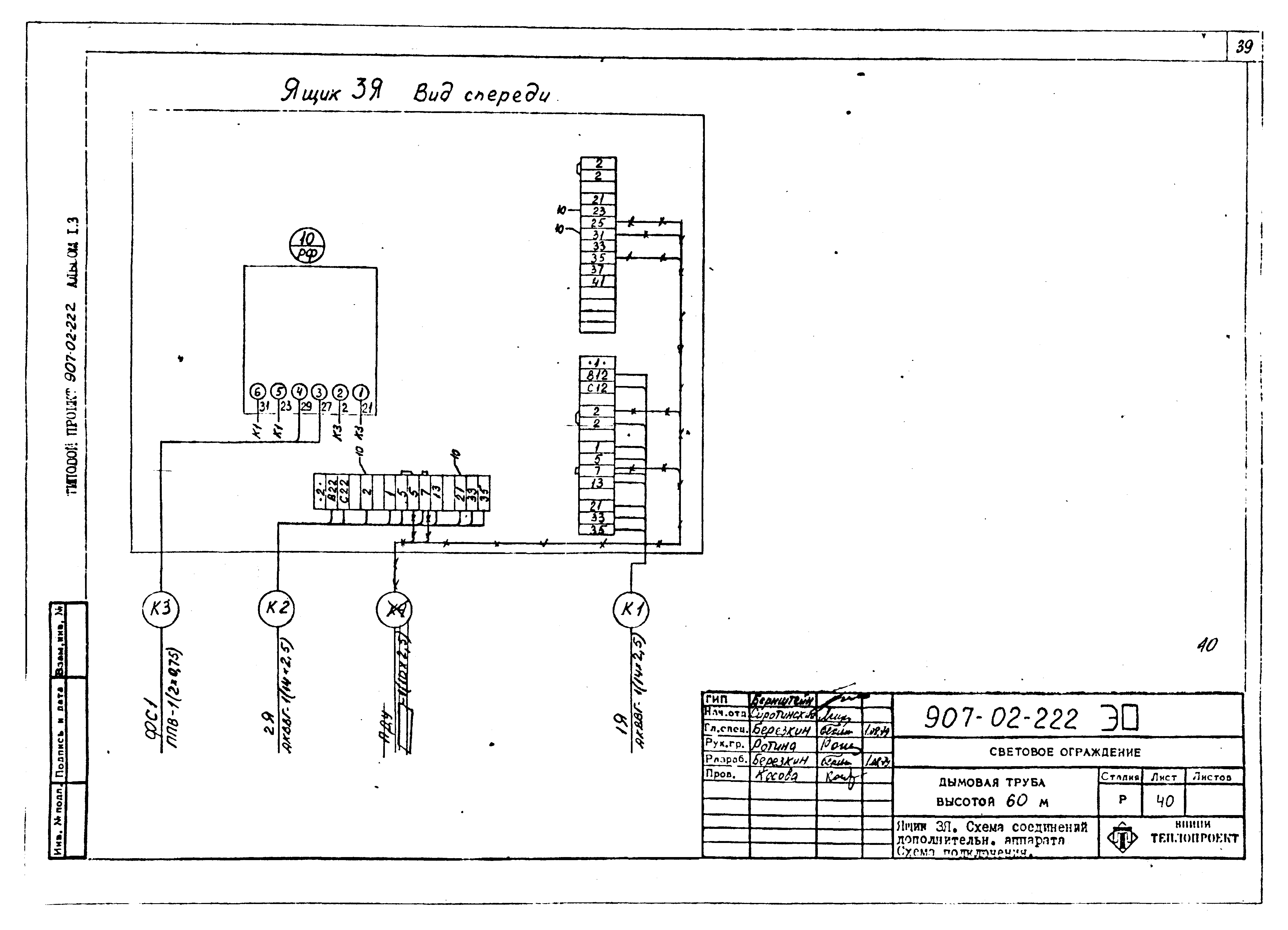
Альбом 1.3. Световое ограждение дымовой трубы высотой 60 м. Электротехническая частьОбозначение: | Типовые проектные решения 907-02-222 | Обозначение англ: | 907-02-222 | Статус: | cправочные материалы, мп, тпр | Название рус.: | Альбом 1.3. Световое ограждение дымовой трубы высотой 60 м. Электротехническая часть | Дата добавления в базу: | 01.09.2013 | Дата актуализации: | 05.05.2017 | Оглавление: | Электрическое освещение Общие данные Схема принципиальная управления огнями Общие цепи управления огнями Схема принципиальная сетей светового ограждения Кабельный журнал Расположение электрооборудования и прокладка кабелей. Общий вид План на отм. 10,0 м; 55,0 м Спецификация Установка ящиков 1Я, 2Я, 3Я Конструкция для установки ящиков 1Я, 2Я, 3Я Короб защитный исп. 1 Короб защитный исп. 2 Ящики 1Я, 2Я, 3Я. Разметка отверстий Установка ящиков 1ЯП, 2ЯП Конструкция для установки ящиков 1ЯП, 2ЯП Скоба для крепления стойки Скоба комплектная Труба комплектная Установка заградительного огня ЗОЛ-2М исп. 1 Установка заградительного огня ЗОЛ-2М исп. 2 Стойка исп. 1, 2 Ящики 1ЯП, 2ЯП. Разметка отверстий Хомут Клица Скоба поддерживающая исп. 1, 2 Трубная заготовка поз. 7 - 14 Трубная заготовка поз. 15, 16 Ящик 1Я. Схема подключения Ящик 2Я. Схема подключения Ящик 3Я. Чертеж общего вида Ящик 3Я. Установка дополнительного аппарата Ящик 3Я. Схема электрических соединений Ящик 3Я. Схема соединений дополнительного аппарата. Схема подключения Задание предприятию-изготовителю Общие данные Перечень комплектных устройств Ящик 3Я. Таблица технических данных аппаратов Ящик 3Я. Чертеж общего вида Ящик 3Я. Схема электрических соединений Ящик 3Я. Таблица перечня надписей | Разработан: | ВНИПИтеплопроект Минмонтажспецстроя СССР
| Утверждён: | 25.12.1979 Минмонтажспецстрой СССР (USSR Minmontazhspetsstroy )
| Расположен в: |
|
                                          
|