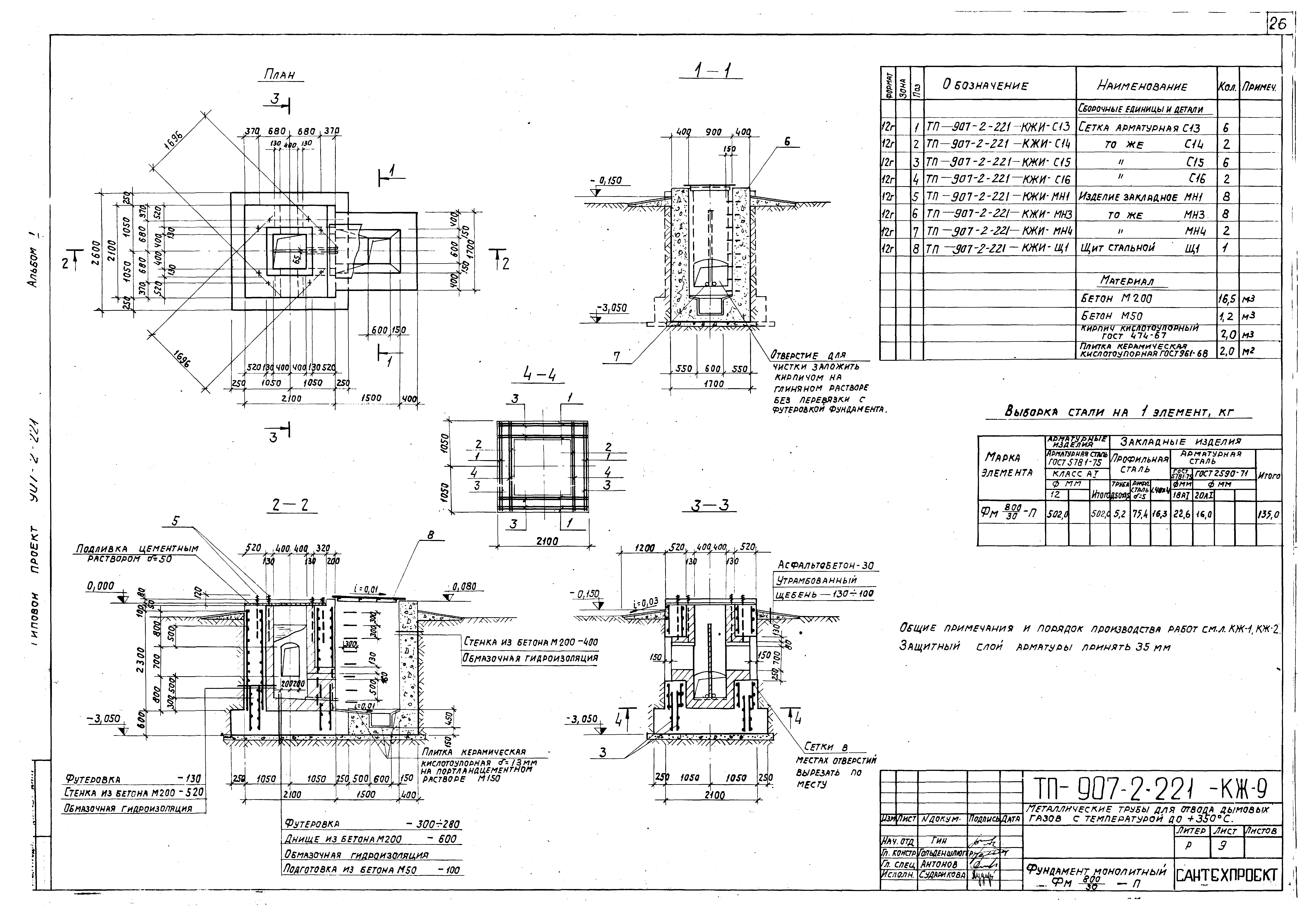
Скачать Типовой проект 907-2-221 Альбом 1. Рабочие чертежи дымовых труб. Заказные спецификацииДата актуализации: 10.08.2017 Типовой проект 907-2-221
Альбом 1. Рабочие чертежи дымовых труб. Заказные спецификацииОбозначение: | Типовой проект 907-2-221 | Обозначение англ: | 907-2-221 | Статус: | действует | Название рус.: | Альбом 1. Рабочие чертежи дымовых труб. Заказные спецификации | Дата добавления в базу: | 01.09.2013 | Дата актуализации: | 05.05.2017 | Разработан: | Укрпроектстальконструкция
| Утверждён: | 29.12.1978 Укрпроектстальконструкция (49)
| Расположен в: |
|
                                            
|