Информационная система
«Ёшкин Кот»

Скачать базу одним архивом
Скачать обновления
История создания базы
Карта сайта

Скачать Типовой проект 903-1-154 Альбом I. Часть 3. Блоки тепломеханического оборудования

Дата актуализации: 10.08.2017

Типовой проект 903-1-154

Альбом I. Часть 3. Блоки тепломеханического оборудования

Обозначение: Типовой проект 903-1-154
Обозначение англ: 903-1-154
Статус:действует
Название рус.:Альбом I. Часть 3. Блоки тепломеханического оборудования
Дата добавления в базу:01.09.2013
Дата актуализации:05.05.2017
Дата введения:28.09.1978
Оглавление:ТП 903-1-154-ТМ-7/1-1 Общие данные (начало)
ТП 903-1-154-ТМ-7/1-2 Общие данные (окончание)
ТП 903-1-154-ТМ-7/2-1 Перечень изолируемых поверхностей
ТП 903-1-154-ТМ-7/2-2 Перечень изолируемых поверхностей
ТП 903-1-154-ТМ-7/2-3 Перечень изолируемых поверхностей
ТП 903-1-154-ТМ-7/2-4 Перечень изолируемых поверхностей
ТП 903-1-154-ТМ-7/2-5 Перечень изолируемых поверхностей
ТП 903-1-154-ТМ-7/3-1 Сводная спецификация
ТП 903-1-154-ТМ-7/3-2 Сводная спецификация
ТП 903-1-154-ТМ-7/3-3 Сводная спецификация
ТП 903-1-154-ТМ-7/4-1 Блок деаэрационно-питательной Б-ДП. Общий вид установок
ТП 903-1-154-ТМ-7/4-2 Блок деаэрационно-питательной Б-ДП. Общий вид установок
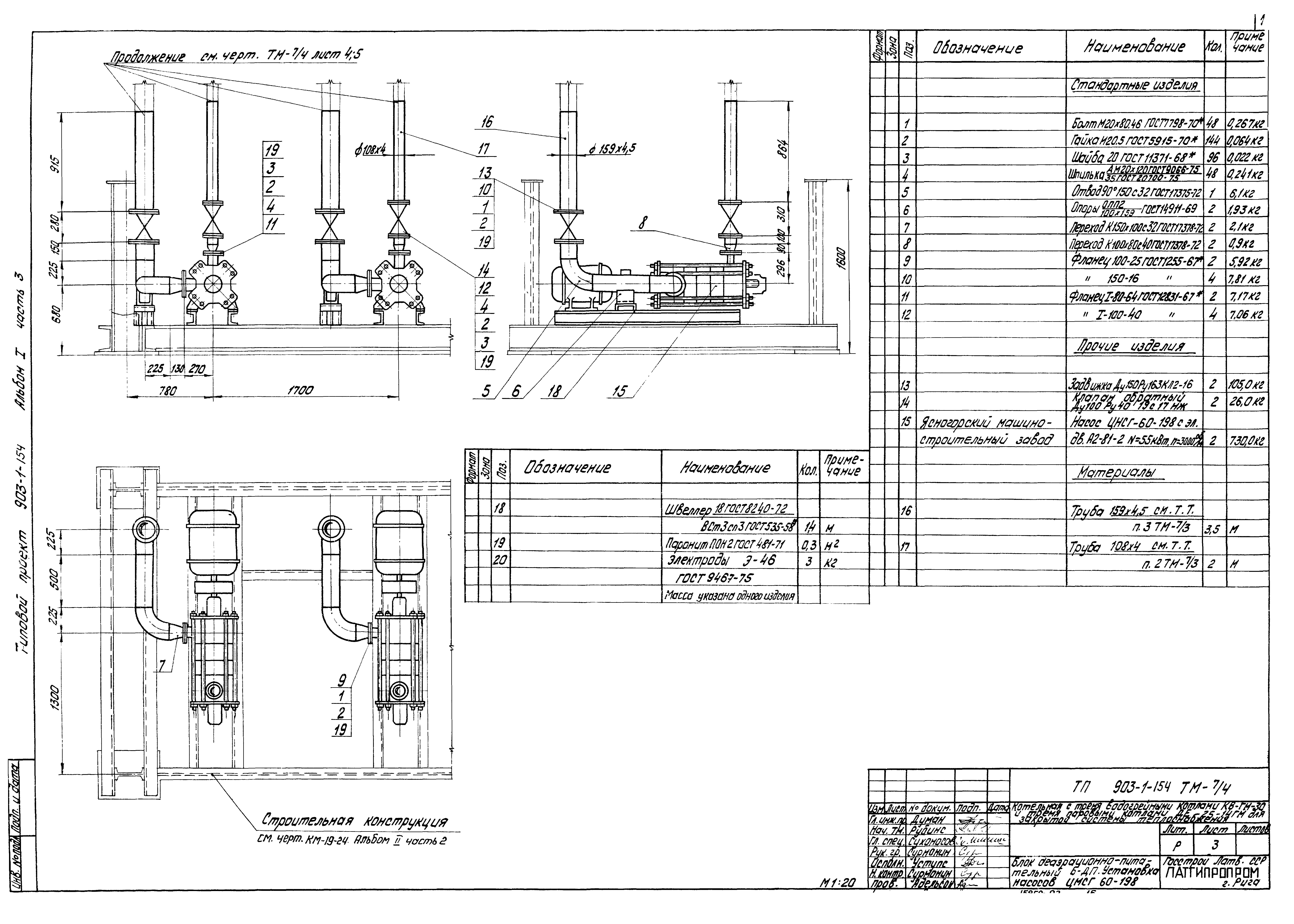
ТП 903-1-154-ТМ-7/4-3 Блок деаэрационно-питательной Б-ДП. Установка насосов ЦНГ-60-19в
ТП 903-1-154-ТМ-7/4-4 Блок деаэрационно-питательной Б-ДП. Трубопроводы блока
ТП 903-1-154-ТМ-7/4-5 Блок деаэрационно-питательной Б-ДП. Трубопроводы блока
ТП 903-1-154-ТМ-7/4-6 Блок деаэрационно-питательной Б-ДП. Установка сепаратора непрерывной продувки ø300
ТП 903-1-154-ТМ-7/4-7 Блок деаэрационно-питательной Б-ДП. Установка деаэраторного бака V=25м³
ТП 903-1-154-ТМ-7/4-8 Блок деаэрационно-питательной Б-ДП. Установка деаэраторного бака V=25м³
ТП 903-1-154-ТМ-7/4-9 Блок деаэрационно-питательной Б-ДП. Установка деаэраторной колонки ДА-100
ТП 903-1-154-ТМ-7/4-10 Блок деаэрационно-питательной Б-ДП. Установка охладителя выпара ОВА-8
ТП 903-1-154-ТМ-7/4-11 Блок деаэрационно-питательной Б-ДП. Установка предохранительного устройства к ДА-100
ТП 903-1-154-ТМ-7/5-1 Блок деаэрационно-питательной Б-ДПП. Общий вид установки
ТП 903-1-154-ТМ-7/5-2 Блок деаэрационно-питательной Б-ДПП. Общий вид установки
ТП 903-1-154-ТМ-7/5-3 Блок деаэрационно-питательной Б-ДПП. Установка насосов ЗК-6а и подогревателя химочищенной воды
ТП 903-1-154-ТМ-7/5-4 Блок деаэрационно-питательной Б-ДПП. Установка насосов ЗК-6а и подогревателя химочищенной воды
ТП 903-1-154-ТМ-7/5-5 Блок деаэрационно-питательной Б-ДПП. Установка охладителя подпиточной воды
ТП 903-1-154-ТМ-7/5-6 Блок деаэрационно-питательной Б-ДПП. Установка охладителя подпиточной воды
ТП 903-1-154-ТМ-7/5-7 Блок деаэрационно-питательной Б-ДПП. Установка бака деаэратора V=15м³
ТП 903-1-154-ТМ-7/5-8 Блок деаэрационно-питательной Б-ДПП. Установка бака деаэратора V=15м³
ТП 903-1-154-ТМ-7/5-9 Блок деаэрационно-питательной Б-ДПП. Установка деаэрационной колонки ДА-50
ТП 903-1-154-ТМ-7/5-10 Блок деаэрационно-питательной Б-ДПП. Установка охладителя выпара ОВА-2
ТП 903-1-154-ТМ-7/5-11 Блок деаэрационно-питательной Б-ДПП. Установка предохранительного устройства к ДА-50
ТП 903-1-154-ТМ-7/6-1 Блок охладителя производственного конденсата Б-ОПК
ТП 903-1-154-ТМ-7/6-2 Блок охладителя производственного конденсата Б-ОПК
ТП 903-1-154-ТМ-7/7-1 Блок охладителя конденсата с мазутного хозяйства Б-ОКМХ
ТП 903-1-154-ТМ-7/7-2 Блок охладителя конденсата с мазутного хозяйства Б-ОКМХ
ТП 903-1-154-ТМ-7/8-1 Блок редукционных установок Б-РУ
ТП 903-1-154-ТМ-7/8-2 Блок редукционных установок Б-РУ
ТП 903-1-154-ТМ-7/9-1 Блок рециркуляционных установок Б-РН
ТП 903-1-154-ТМ-7/9-2 Блок рециркуляционных установок Б-РН
ТП 903-1-154-ТМ-7/10-1 Блок летних сетевых насосов Б-ЛСН
ТП 903-1-154-ТМ-7/10-2 Блок летних сетевых насосов Б-ЛСН
ТП 903-1-154-ТМ-7/11-1 Блок охладителей проб пара и воды Б-ОППВ
ТП 903-1-154-ТМ-7/12-1 Сводная спецификация
ТП 903-1-154-ТМ-7/12-2 Сводная спецификация
ТП 903-1-154-ТМ-7/13-1 Блок насосов исходной воды 4К-8а и пароводяного подогревателя Q=100м/ч
ТП 903-1-154-ТМ-7/13-2 Блок насосов исходной воды 4К-8а и пароводяного подогревателя Q=100м/ч
ТП 903-1-154-ТМ-7/14-1 Блок насосов декарбонизированной воды ЗК-6У
ТП 903-1-154-ТМ-7/15-1 Блок насосов декарбонизированной воды ЗК-9
ТП 903-1-154-ТМ-7/16-1 Блок насосов-дозаторов крепкой серной кислоты НД-1000/10 и баков-мерников V=1,5м³
ТП 903-1-154-ТМ-7/16-2 Блок насосов-дозаторов крепкой серной кислоты НД-1000/10 и баков-мерников V=1,5м³
ТП 903-1-154-ТМ-7/17-1 Блок насосов-дозаторов крепкой щелочи НД-100/10 и баков-мерников V=1.5 м³
ТП 903-1-154-ТМ-7/17-2 Блок насосов-дозаторов крепкой щелочи НД-100/10 и баков-мерников V=1.5 м³
ТП 903-1-154-ТМ-7/18-1 Блок гидромешалки целлюлозы и насоса НП-1М
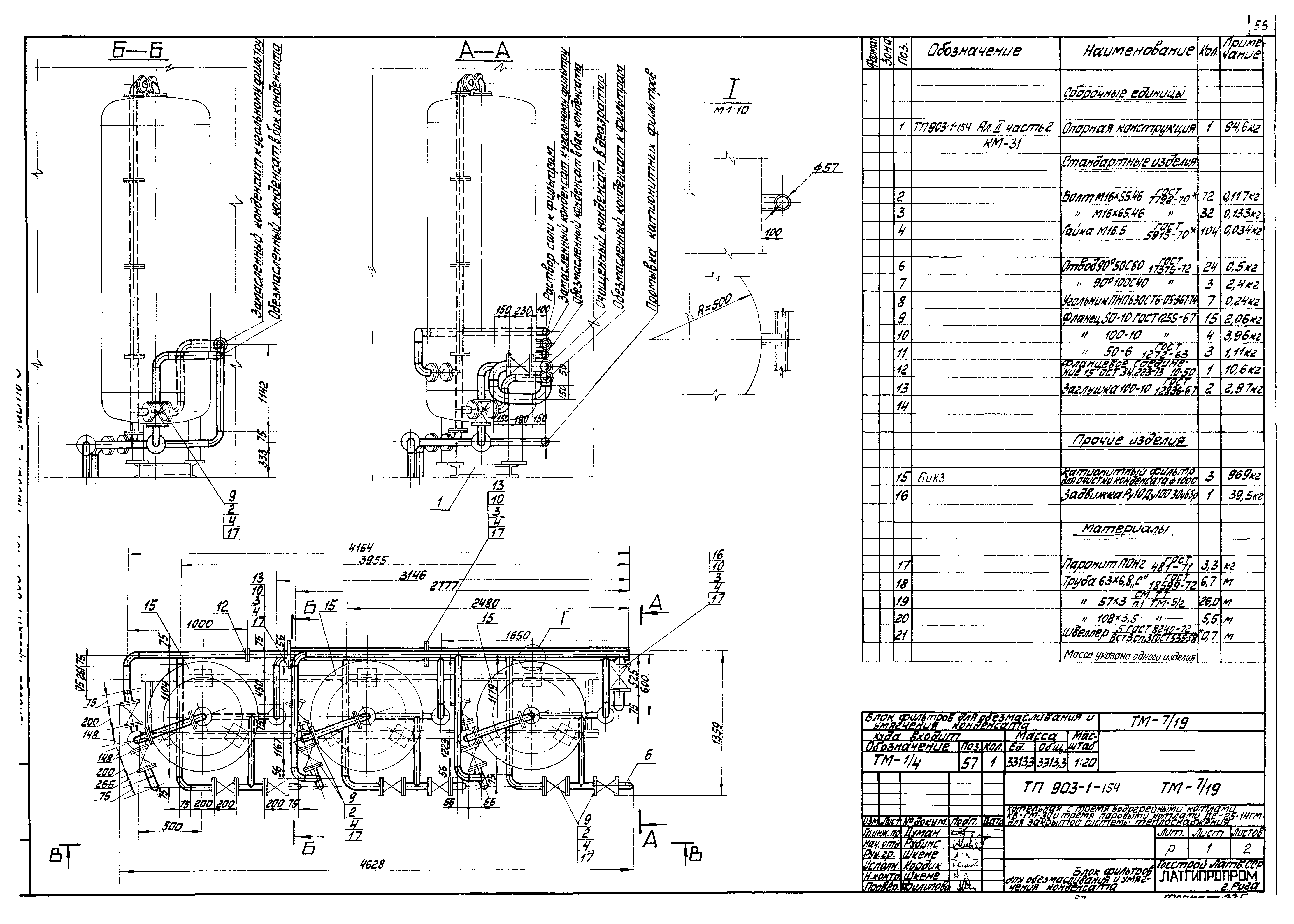
ТП 903-1-154-ТМ-7/19-1 Блок фильтров для обезмасливания и умягчения конденсата
ТП 903-1-154-ТМ-7/19-2 Блок фильтров для обезмасливания и умягчения конденсата
ТП 903-1-154-ТМ-7/20-1 Блок Nа-катионных фильтров ø1500
ТП 903-1-154-ТМ-7/20-2 Блок Nа-катионных фильтров ø1500
ТП 903-1-154-ТМ-7/21-3 Блок Н-катионных фильтров (буферных) ø1500
ТП 903-1-154-ТМ-7/21-1 Блок Н-катионных фильтров (буферных) ø1500
ТП 903-1-154-ТМ-7/22-1 Блок баков-мерников раствора щелочи и насоса 1.5Х-6Д-1
ТП 903-1-154-ТМ-7/22-2 Блок баков-мерников раствора щелочи и насоса 1.5Х-6Д-1
ТП 903-1-154-ТМ-7/23-1 Блок регенерационной установки поваренной соли
ТП 903-1-154-ТМ-7/23-2 Блок регенерационной установки поваренной соли
ТП 903-1-154-ТМ-7/23-3 Блок регенерационной установки поваренной соли
ТП 903-1-154-ТМ-7/23-4 Блок регенерационной установки поваренной соли
ТП 903-1-154-ТМ-7/24-1 Блок декарбонизатора
ТП 903-1-154-ТМ-7/24-2 Блок декарбонизатора
ТП 903-1-154-ТМ-7/24-3 Блок декарбонизатора
ТП 903-1-154-ТМ-7/25-1 Сводная спецификация
ТП 903-1-154-ТМ-7/26-1 Блок фильтра с байпасом БФ-ГРУ-III
ТП 903-1-154-ТМ-7/27-1 Блок редуцирования БГРУ-III
ТП 903-1-154-ТМ-7/28-1 Блок редуцирования БГРУ-IV
Разработан: Латгипропром
Утверждён:17.10.1977 Главпромстройпроект Госстроя СССР (71)
Расположен в:Техническая документация Строительство Справочные документы Типовые строительные конструкции, изделия и узлы Общероссийский строительный каталог Промышленные предприятия, здания и сооружения Здания и сооружения санитарно-технические Теплоснабжение Котельные установки Закрытые системы теплоснабжения Топливо - газ и мазут
Типовой проект 903-1-154Типовой проект 903-1-154Типовой проект 903-1-154Типовой проект 903-1-154Типовой проект 903-1-154Типовой проект 903-1-154Типовой проект 903-1-154Типовой проект 903-1-154Типовой проект 903-1-154Типовой проект 903-1-154Типовой проект 903-1-154Типовой проект 903-1-154Типовой проект 903-1-154Типовой проект 903-1-154Типовой проект 903-1-154Типовой проект 903-1-154Типовой проект 903-1-154Типовой проект 903-1-154Типовой проект 903-1-154Типовой проект 903-1-154Типовой проект 903-1-154Типовой проект 903-1-154Типовой проект 903-1-154Типовой проект 903-1-154Типовой проект 903-1-154Типовой проект 903-1-154Типовой проект 903-1-154Типовой проект 903-1-154Типовой проект 903-1-154Типовой проект 903-1-154Типовой проект 903-1-154Типовой проект 903-1-154Типовой проект 903-1-154Типовой проект 903-1-154Типовой проект 903-1-154Типовой проект 903-1-154Типовой проект 903-1-154Типовой проект 903-1-154Типовой проект 903-1-154Типовой проект 903-1-154Типовой проект 903-1-154Типовой проект 903-1-154Типовой проект 903-1-154Типовой проект 903-1-154Типовой проект 903-1-154Типовой проект 903-1-154Типовой проект 903-1-154Типовой проект 903-1-154Типовой проект 903-1-154Типовой проект 903-1-154Типовой проект 903-1-154Типовой проект 903-1-154Типовой проект 903-1-154Типовой проект 903-1-154Типовой проект 903-1-154Типовой проект 903-1-154Типовой проект 903-1-154Типовой проект 903-1-154Типовой проект 903-1-154Типовой проект 903-1-154Типовой проект 903-1-154Типовой проект 903-1-154Типовой проект 903-1-154Типовой проект 903-1-154Типовой проект 903-1-154Типовой проект 903-1-154Типовой проект 903-1-154Типовой проект 903-1-154Типовой проект 903-1-154Типовой проект 903-1-154Типовой проект 903-1-154Типовой проект 903-1-154Типовой проект 903-1-154Типовой проект 903-1-154Типовой проект 903-1-154

© 2013 Ёшкин Кот :-) Карта сайта