Информационная система
«Ёшкин Кот»

Скачать базу одним архивом
Скачать обновления
История создания базы
Карта сайта

Скачать Типовой проект 903-1-154 Альбом I. Часть 1. Тепломеханическая часть. Компоновка котельной. Установка оборудования неблочного исполнения. Газовоздуховоды. Газоснабжение

Дата актуализации: 10.08.2017

Типовой проект 903-1-154

Альбом I. Часть 1. Тепломеханическая часть. Компоновка котельной. Установка оборудования неблочного исполнения. Газовоздуховоды. Газоснабжение

Обозначение: Типовой проект 903-1-154
Обозначение англ: 903-1-154
Статус:действует
Название рус.:Альбом I. Часть 1. Тепломеханическая часть. Компоновка котельной. Установка оборудования неблочного исполнения. Газовоздуховоды. Газоснабжение
Дата добавления в базу:01.09.2013
Дата актуализации:05.05.2017
Дата введения:28.09.1978
Оглавление:ТП 903-1-154-ТМ-1/1-1 Общие данные (начало)
ТП 903-1-154-ТМ-1/1-2 Общие данные (продолжение)
ТП 903-1-154-ТМ-1/1-3 Общие данные (продолжение)
ТП 903-1-154-ТМ-1/1-4 Общие данные (продолжение)
ТП 903-1-154-ТМ-1/1-5 Общие данные (продолжение)
ТП 903-1-154-ТМ-1/1-6 Общие данные (окончание)
ТП 903-1-154-ТМ-1/2-1 Тепловая схема водогрейной части котельной
ТП 903-1-154-ТМ-1/3-1 Тепловая схема паровой части котельной
ТП 903-1-154-ТМ-1/4-1 Компоновка котельной
ТП 903-1-154-ТМ-1/4-2 Компоновка котельной
ТП 903-1-154-ТМ-1/5-1 Перечень изолируемых поверхностей
ТП 903-1-154-ТМ-1/5-2 Перечень изолируемых поверхностей
ТП 903-1-154-ТМ-1/5-3 Перечень изолируемых поверхностей
ТП 903-1-154-ТМ-1/5-4 Перечень изолируемых поверхностей
ТП 903-1-154-ТМ-1/5-5 Перечень изолируемых поверхностей
ТП 903-1-154-ТМ-1/5-6 Перечень изолируемых поверхностей
ТП 903-1-154-ТМ-1/5-7 Перечень изолируемых поверхностей
ТП 903-1-154-ТМ-2/1-1 Установка оборудования неблочного исполнения. Сводная спецификация
ТП 903-1-154-ТМ-2/2-1 Установка оборудования неблочного исполнения. Установка дымососа ДН-17 с электродвигателем АО-114-12/8/6
ТП 903-1-154-ТМ-2/3-1 Установка оборудования неблочного исполнения. Установка вентилятора ВДН-15 с электродвигателем АО-104-12/8/6
ТП 903-1-154-ТМ-2/4-1 Установка оборудования неблочного исполнения. Установка электровентилятора 30ЦС-85 с электродвигателем АО2-52-2
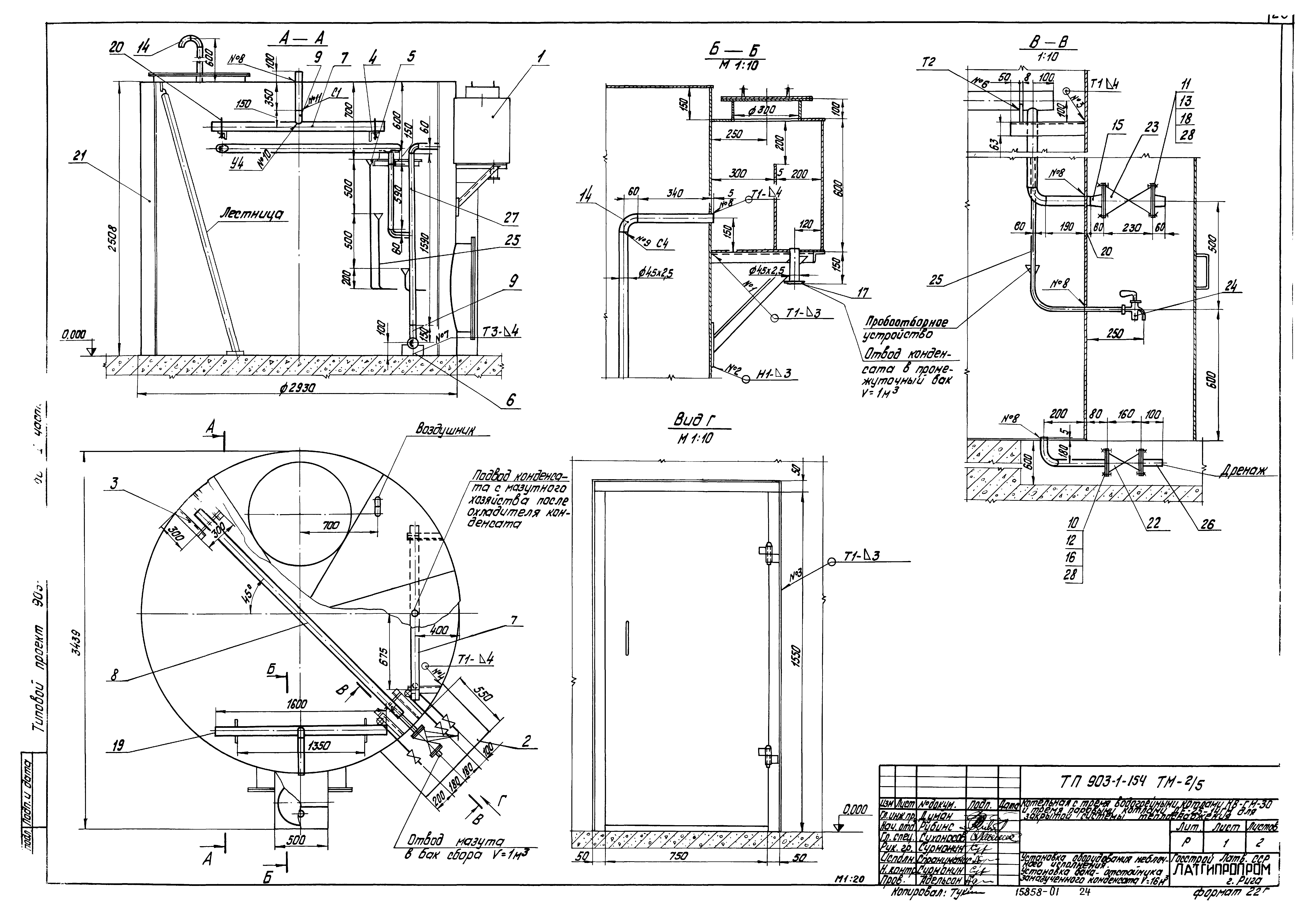
ТП 903-1-154-ТМ-2/5-1 Установка оборудования неблочного исполнения. Установка бака-отстойника замазученного конденсата V=16м³
ТП 903-1-154-ТМ-2/5-2 Установка оборудования неблочного исполнения. Установка бака-отстойника замазученного конденсата V=16м³
ТП 903-1-154-ТМ-2/6-1 Установка оборудования неблочного исполнения. Установка бака-отстойника производственного конденсата V=16м³
ТП 903-1-154-ТМ-2/7-1 Установка оборудования неблочного исполнения. Таблица крепежных деталей для установки оборудования и блоков
ТП 903-1-154-ТМ-3/1-1 Газовоздухопроводы. Сводная спецификация
ТП 903-1-154-ТМ-3/2-1 Газовоздухопроводы. Газопроводы котла КВ-ГМ-30
ТП 903-1-154-ТМ-3/2-2 Газовоздухопроводы. Газопроводы котла КВ-ГМ-30
ТП 903-1-154-ТМ-3/3-1 Газовоздухопроводы. Воздухопроводы котла КВ-ГМ-30
ТП 903-1-154-ТМ-3/3-2 Газовоздухопроводы. Воздухопроводы котла КВ-ГМ-30
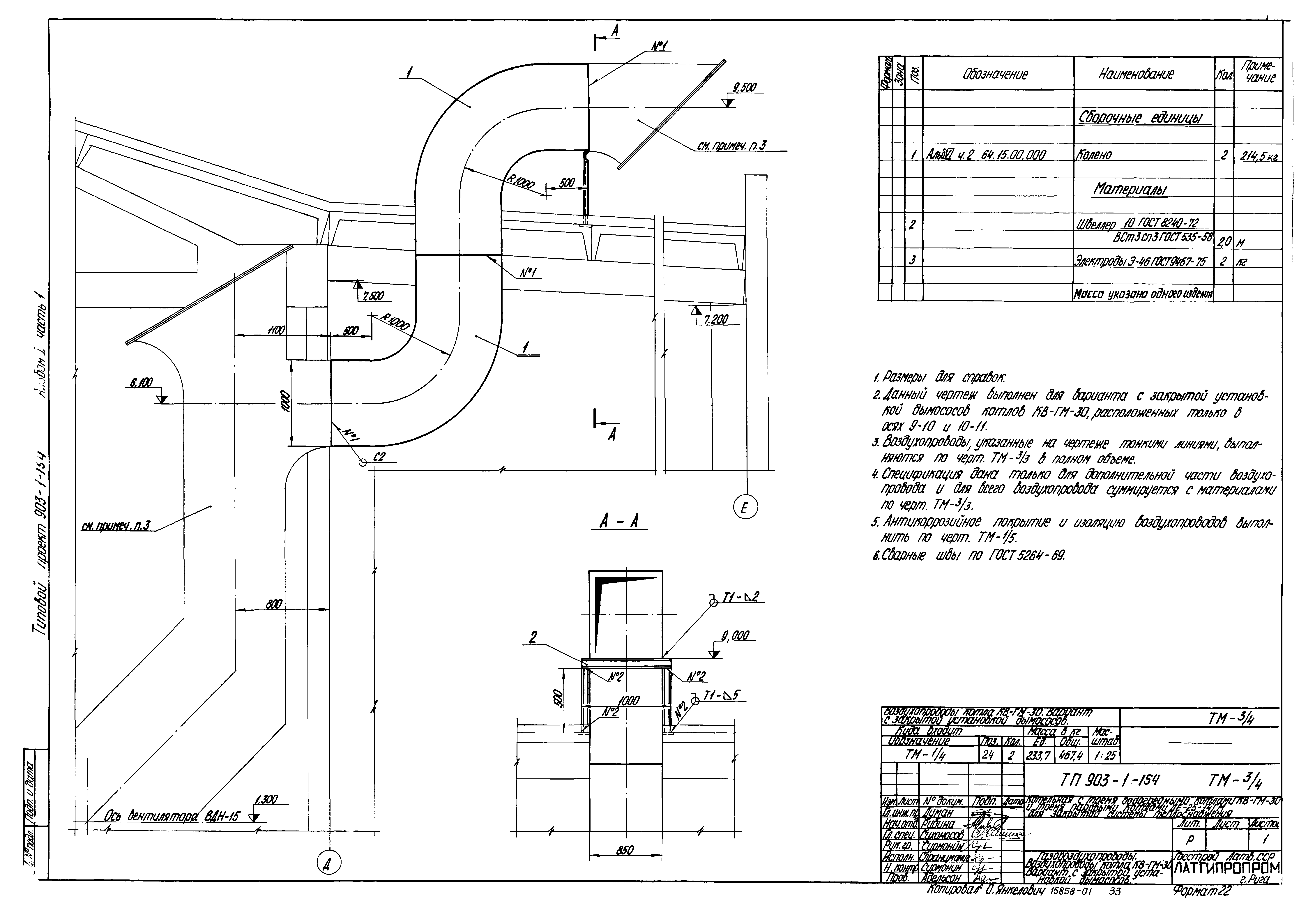
ТП 903-1-154-ТМ-3/4-1 Газовоздухопроводы. Воздухопроводы котла КВ-ГМ-30. Вариант с закрытый установкой дымососов
ТП 903-1-154-ТМ-3/5-1 Газовоздухопроводы. Газопроводы котла ДЕ-25-14ГМ
ТП 903-1-154-ТМ-3/5-2 Газовоздухопроводы. Газопроводы котла ДЕ-25-14ГМ
ТП 903-1-154-ТМ-3/6-1 Газовоздухопроводы. Воздухопроводы котла ДЕ-25-14ГМ
ТП 903-1-154-ТМ-6/1-1 Газоснабжение. Общие данные
ТП 903-1-154-ТМ-6/2-1 Газоснабжение. Сводная спецификация
ТП 903-1-154-ТМ-6/3-1 Газоснабжение. План котельной с разводкой газопроводов
ТП 903-1-154-ТМ-6/4-1 Газоснабжение. Аксонометрическая схема газопроводов котельной
ТП 903-1-154-ТМ-6/5-1 Газоснабжение. Газорегуляторная установка с 2-мя регуляторами РДУК2-200/105 и РДУК2-100/70. План
ТП 903-1-154-ТМ-6/5-2 Газоснабжение. Газорегуляторная установка с 2-мя регуляторами РДУК2-200/105 и РДУК2-100/70. Разрезы А-А и Б-Б
ТП 903-1-154-ТМ-6/5-3 Газоснабжение. Газорегуляторная установка с 2-мя регуляторами РДУК2-200/105 и РДУК2-100/70. Разрез В-В
ТП 903-1-154-ТМ-6/5-4 Газоснабжение. Аксонометрическая схема газопроводов ГРУ
ТП 903-1-154-ТМ-6/6-1 Газоснабжение. Газооборудование котла КВ-ГМ-30. План
ТП 903-1-154-ТМ-6/6-2 Газоснабжение. Газооборудование котла КВ-ГМ-30. Вид А
ТП 903-1-154-ТМ-6/7-1 Газоснабжение. Газооборудование котла ДЕ-25-14ГМ. План
ТП 903-1-154-ТМ-6/7-2 Газоснабжение. Газооборудование котла ДЕ-25-14ГМ. Вид с фронта
ТП 903-1-154-ТМ-6/8-1 Газоснабжение. Заслонка дроссельная ЗД-200. Сборочный чертеж
ТП 903-1-154-ТМ-6/9-1 Газоснабжение. Заслонка дроссельная ЗД-150. Сборочный чертеж
ТП 903-1-154-ТМ-6/10-1 Газоснабжение. Установка сбросного продувочного газопровода. Сборочный чертеж
ТП 903-1-154-ТМ-6/11-1 Газоснабжение. Фильтр газовый Ду200Рр=6 кгс/см². Общий вид
ТП 903-1-154-ТМ-6/11-2 Газоснабжение. Фильтр газовый Ду200Рр=6 кгс/см². Общий вид
Разработан: Латгипропром
Утверждён:17.10.1977 Главпромстройпроект Госстроя СССР (71)
Расположен в:Техническая документация Строительство Справочные документы Типовые строительные конструкции, изделия и узлы Общероссийский строительный каталог Промышленные предприятия, здания и сооружения Здания и сооружения санитарно-технические Теплоснабжение Котельные установки Закрытые системы теплоснабжения Топливо - газ и мазут
Типовой проект 903-1-154Типовой проект 903-1-154Типовой проект 903-1-154Типовой проект 903-1-154Типовой проект 903-1-154Типовой проект 903-1-154Типовой проект 903-1-154Типовой проект 903-1-154Типовой проект 903-1-154Типовой проект 903-1-154Типовой проект 903-1-154Типовой проект 903-1-154Типовой проект 903-1-154Типовой проект 903-1-154Типовой проект 903-1-154Типовой проект 903-1-154Типовой проект 903-1-154Типовой проект 903-1-154Типовой проект 903-1-154Типовой проект 903-1-154Типовой проект 903-1-154Типовой проект 903-1-154Типовой проект 903-1-154Типовой проект 903-1-154Типовой проект 903-1-154Типовой проект 903-1-154Типовой проект 903-1-154Типовой проект 903-1-154Типовой проект 903-1-154Типовой проект 903-1-154Типовой проект 903-1-154Типовой проект 903-1-154Типовой проект 903-1-154Типовой проект 903-1-154Типовой проект 903-1-154Типовой проект 903-1-154Типовой проект 903-1-154Типовой проект 903-1-154Типовой проект 903-1-154Типовой проект 903-1-154Типовой проект 903-1-154Типовой проект 903-1-154Типовой проект 903-1-154Типовой проект 903-1-154Типовой проект 903-1-154Типовой проект 903-1-154Типовой проект 903-1-154Типовой проект 903-1-154Типовой проект 903-1-154Типовой проект 903-1-154Типовой проект 903-1-154Типовой проект 903-1-154Типовой проект 903-1-154Типовой проект 903-1-154

© 2013 Ёшкин Кот :-) Карта сайта