Информационная система
«Ёшкин Кот»

Скачать базу одним архивом
Скачать обновления
История создания базы
Карта сайта

Скачать Типовой проект 903-1-204 Альбом 5.11. Котельная. Архитектурно-строительная часть. Конструкции нулевого цикла и борова

Дата актуализации: 10.08.2017

Типовой проект 903-1-204

Альбом 5.11. Котельная. Архитектурно-строительная часть. Конструкции нулевого цикла и борова

Обозначение: Типовой проект 903-1-204
Обозначение англ: 903-1-204
Статус:действует
Название рус.:Альбом 5.11. Котельная. Архитектурно-строительная часть. Конструкции нулевого цикла и борова
Дата добавления в базу:01.09.2013
Дата актуализации:05.05.2017
Оглавление:ТП 903-1-204 Содержание альбома
ТП 903-1-204-КЖ Конструкции железобетонные
ТП 903-1-204-КЖ1-1 Общие данные (начало)
ТП 903-1-204-КЖ1-2 Общие данные (окончание)
ТП 903-1-204-КЖ1-3 Схема расположения элементов подземного хозяйства в осях 1-6;А-Г
ТП 903-1-204-КЖ1-4 Схема расположения элементов подземного хозяйства в осях 1-6;А-Г
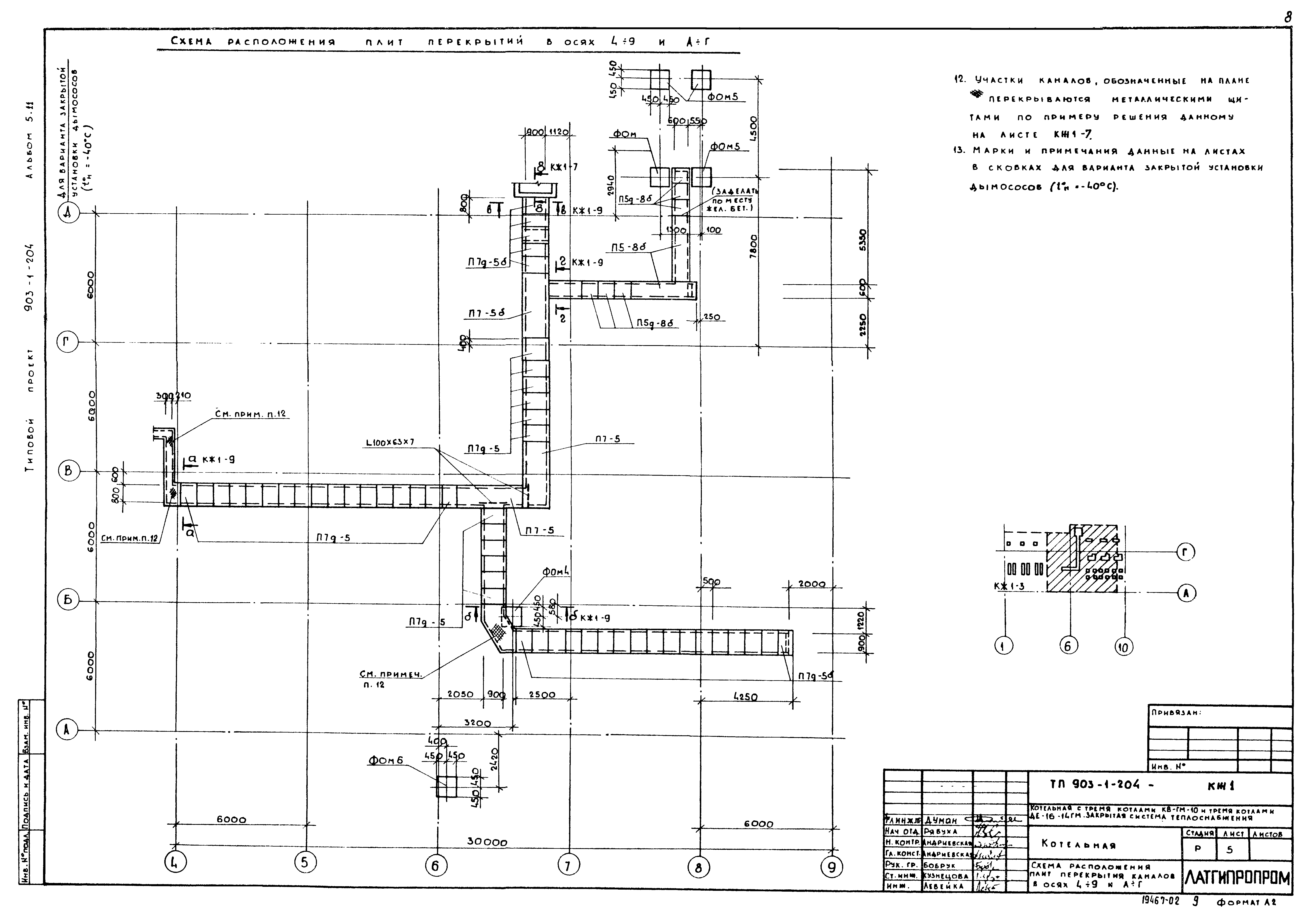
ТП 903-1-204-КЖ1-5 Схема расположения плит перекрытия каналов в осях 4-9 и А-Г
ТП 903-1-204-КЖ1-6 Подземное хозяйство. Разрезы 1-1÷6-6
ТП 903-1-204-КЖ1-7 Подземное хозяйство. Разрезы 7-7,8-8. Деталь гидроизоляции каналов
ТП 903-1-204-КЖ1-8 Спецификация элементов к схемам расположения подземного хозяйства на листах КЖ1-3÷КЖ1-5
ТП 903-1-204-КЖ1-9 Подземное хозяйство. Разрезы а-а÷д-д. ФОМ5;ФОМ6. Опалубка и армирование
ТП 903-1-204-КЖ1-10 ФОМ1-ФОМ4. Опалубка и армирование
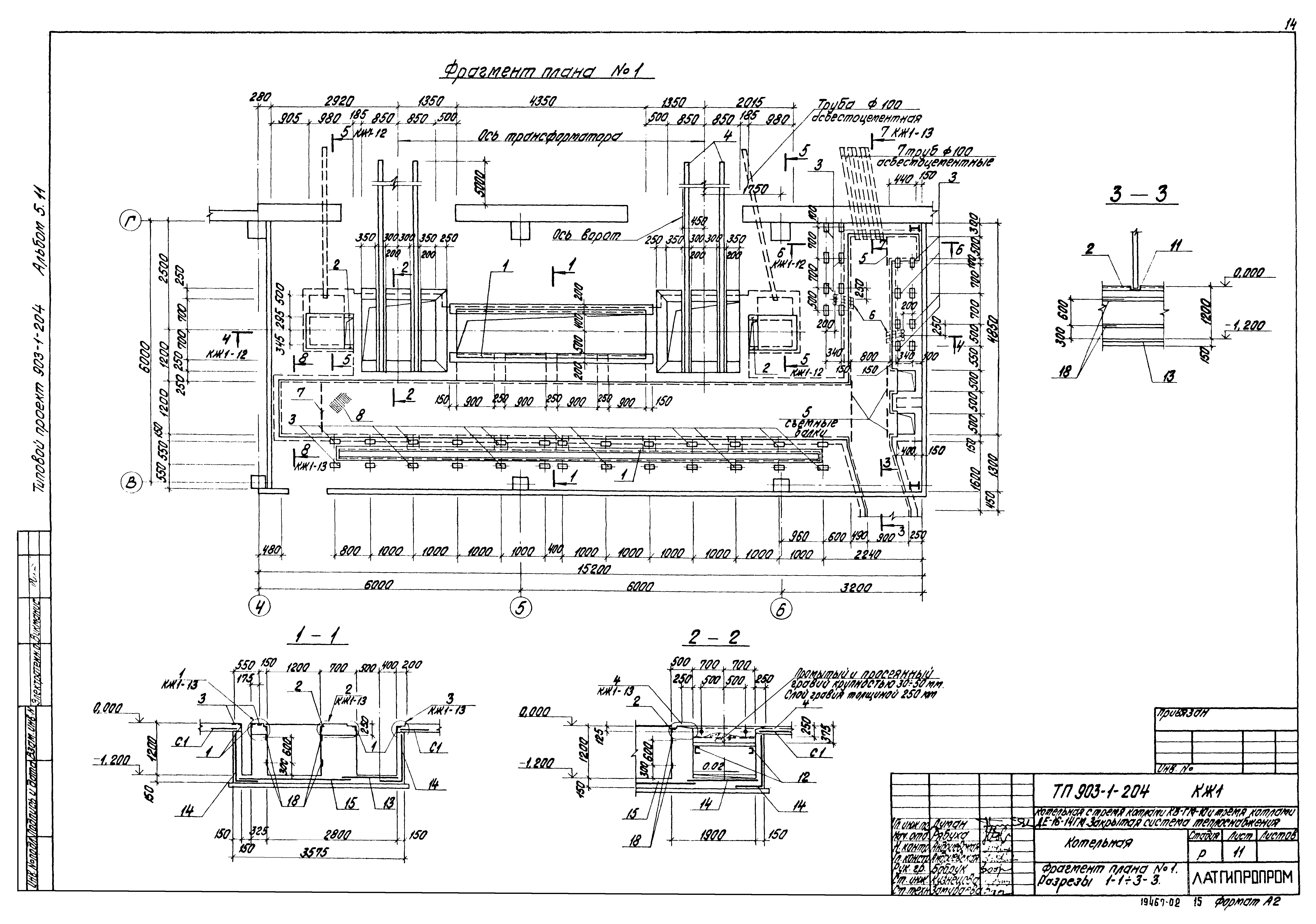
ТП 903-1-204-КЖ1-11 Фрагмент плана № 1. Разрезы 1-1÷3-3
ТП 903-1-204-КЖ1-12 Фрагмент плана № 1. Разрезы 4-4÷6-6
ТП 903-1-204-КЖ1-13 Фрагмент плана № 1. Узлы. Разрезы 7-7,8-8
ТП 903-1-204-КЖ1-14 Продувочный колодец ПРМ1. Опалубка и армирование. Разрезы 1-1÷3-3. Узел 7
ТП 903-1-204-КЖ1-15 Продувочный колодец ПРМ1. Опалубка и армирование. Разрезы 4-4÷7-7
ТП 903-1-204-КЖ1-16 Боров. План на отм. 5.200. Фасад. Узлы 8-12
ТП 903-1-204-КЖ1-17 Боров. Разрезы 1-1÷7-7
ТП 903-1-204-КЖ1-18 Боров. Схема расположения фундаментов
ТП 903-1-204-КЖ1-19 Боров. Фундаменты ФМ1-1,ФМ2-1,ФМ3-1,ФМ4-1. Опалубка и армирование
ТП 903-1-204-КЖ1-20 Боров. Схемы расположения колонн и плит перекрытия
ТП 903-1-204-КЖ1-21 Боров. Схемы расположения плит покрытия. Разрезы 1-1÷4-4. Узлы 13-16
ТП 903-1-204-КЖ1-22 Боров. Монолитные участки УМ1-УМ4. УМ5*-УМ8*. Опалубка и армирование
ТП 903-1-204-КЖ1-23 Боров. Спецификация монолитных участков УМ1-УМ4,УМ5*-УМ10*
ТП 903-1-204-КМ Конструкции металлические
ТП 903-1-204-КМ-1 Боров. Общие данные. Ведомость металлоконструкций по видам профилей
ТП 903-1-204-КМ-2 Боров. Схема расположения металлических балок перекрытия и площадок. Разрезы 1-1,2-2
ТП 903-1-204-КМ-3 Боров. Узлы 1-3
ТП 903-1-204-КМ-4 Боров. Узлы 4-9
Разработан: Латгипропром
Утверждён:10.11.1983 Главпромстройпроект Госстроя СССР (41)
Расположен в:Техническая документация Строительство Справочные документы Типовые строительные конструкции, изделия и узлы Общероссийский строительный каталог Промышленные предприятия, здания и сооружения Здания и сооружения санитарно-технические Теплоснабжение Котельные установки Закрытые системы теплоснабжения Топливо - газ и мазут
Типовой проект 903-1-204Типовой проект 903-1-204Типовой проект 903-1-204Типовой проект 903-1-204Типовой проект 903-1-204Типовой проект 903-1-204Типовой проект 903-1-204Типовой проект 903-1-204Типовой проект 903-1-204Типовой проект 903-1-204Типовой проект 903-1-204Типовой проект 903-1-204Типовой проект 903-1-204Типовой проект 903-1-204Типовой проект 903-1-204Типовой проект 903-1-204Типовой проект 903-1-204Типовой проект 903-1-204Типовой проект 903-1-204Типовой проект 903-1-204Типовой проект 903-1-204Типовой проект 903-1-204Типовой проект 903-1-204Типовой проект 903-1-204Типовой проект 903-1-204Типовой проект 903-1-204Типовой проект 903-1-204Типовой проект 903-1-204Типовой проект 903-1-204Типовой проект 903-1-204Типовой проект 903-1-204Типовой проект 903-1-204

© 2013 Ёшкин Кот :-) Карта сайта