Информационная система
«Ёшкин Кот»

Скачать базу одним архивом
Скачать обновления
История создания базы
Карта сайта

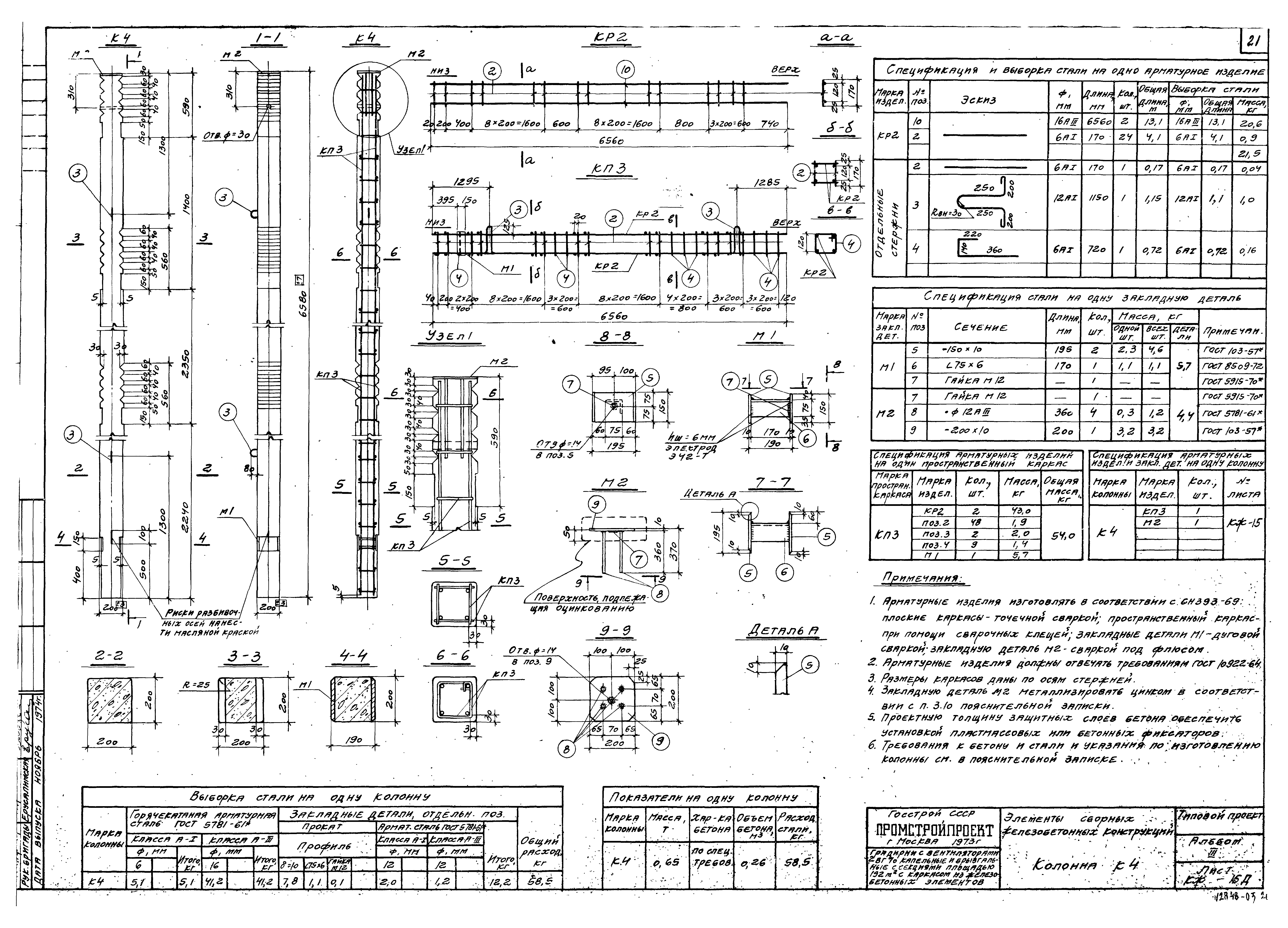
Скачать Типовой проект 901-6-43 Альбом III. Элементы сборных железобетонных конструкций

Дата актуализации: 10.08.2017

Типовой проект 901-6-43

Альбом III. Элементы сборных железобетонных конструкций

Обозначение: Типовой проект 901-6-43
Обозначение англ: 901-6-43
Статус:отменен
Название рус.:Альбом III. Элементы сборных железобетонных конструкций
Дата добавления в базу:01.09.2013
Дата актуализации:05.05.2017
Дата введения:01.01.1997
Разработан: ЦНИИпроектстальконструкция
Союзводоканалниипроект
Утверждён:07.02.1974 СоюзводоканалНИИпроект (SoyuzvodokanalNIIproject 25)
Расположен в:Техническая документация Строительство Справочные документы Типовые строительные конструкции, изделия и узлы Общероссийский строительный каталог Промышленные предприятия, здания и сооружения Здания и сооружения санитарно-технические Водоснабжение Градирни
Заменяет собой:
  • Типовой проект 901-6-19
Чем заменён:
Типовой проект 901-6-43Типовой проект 901-6-43Типовой проект 901-6-43Типовой проект 901-6-43Типовой проект 901-6-43Типовой проект 901-6-43Типовой проект 901-6-43Типовой проект 901-6-43Типовой проект 901-6-43Типовой проект 901-6-43Типовой проект 901-6-43Типовой проект 901-6-43Типовой проект 901-6-43Типовой проект 901-6-43Типовой проект 901-6-43Типовой проект 901-6-43Типовой проект 901-6-43Типовой проект 901-6-43Типовой проект 901-6-43Типовой проект 901-6-43Типовой проект 901-6-43Типовой проект 901-6-43Типовой проект 901-6-43Типовой проект 901-6-43Типовой проект 901-6-43Типовой проект 901-6-43Типовой проект 901-6-43

© 2013 Ёшкин Кот :-) Карта сайта