Информационная система
«Ёшкин Кот»

Скачать базу одним архивом
Скачать обновления
История создания базы
Карта сайта

Скачать Типовой проект 904-1-56.84 Альбом 6. Архитектурно-строительная и сантехническая части для 4 компрессоров

Дата актуализации: 10.08.2017

Типовой проект 904-1-56.84

Альбом 6. Архитектурно-строительная и сантехническая части для 4 компрессоров

Обозначение: Типовой проект 904-1-56.84
Обозначение англ: 904-1-56.84
Статус:действует
Название рус.:Альбом 6. Архитектурно-строительная и сантехническая части для 4 компрессоров
Дата добавления в базу:01.09.2013
Дата актуализации:05.05.2017
Дата введения:30.12.1983
Оглавление:ТП 904-1-56.84 Содержание альбома
ТП 904-1-56.84-ПЗ Пояснительная записка
ТП 904-1-56.84-АР Архитектурные решения
ТП 904-1-56.84-АР-1 Общие данные (начало)
ТП 904-1-56.84-АР-2 Общие данные (окончание)
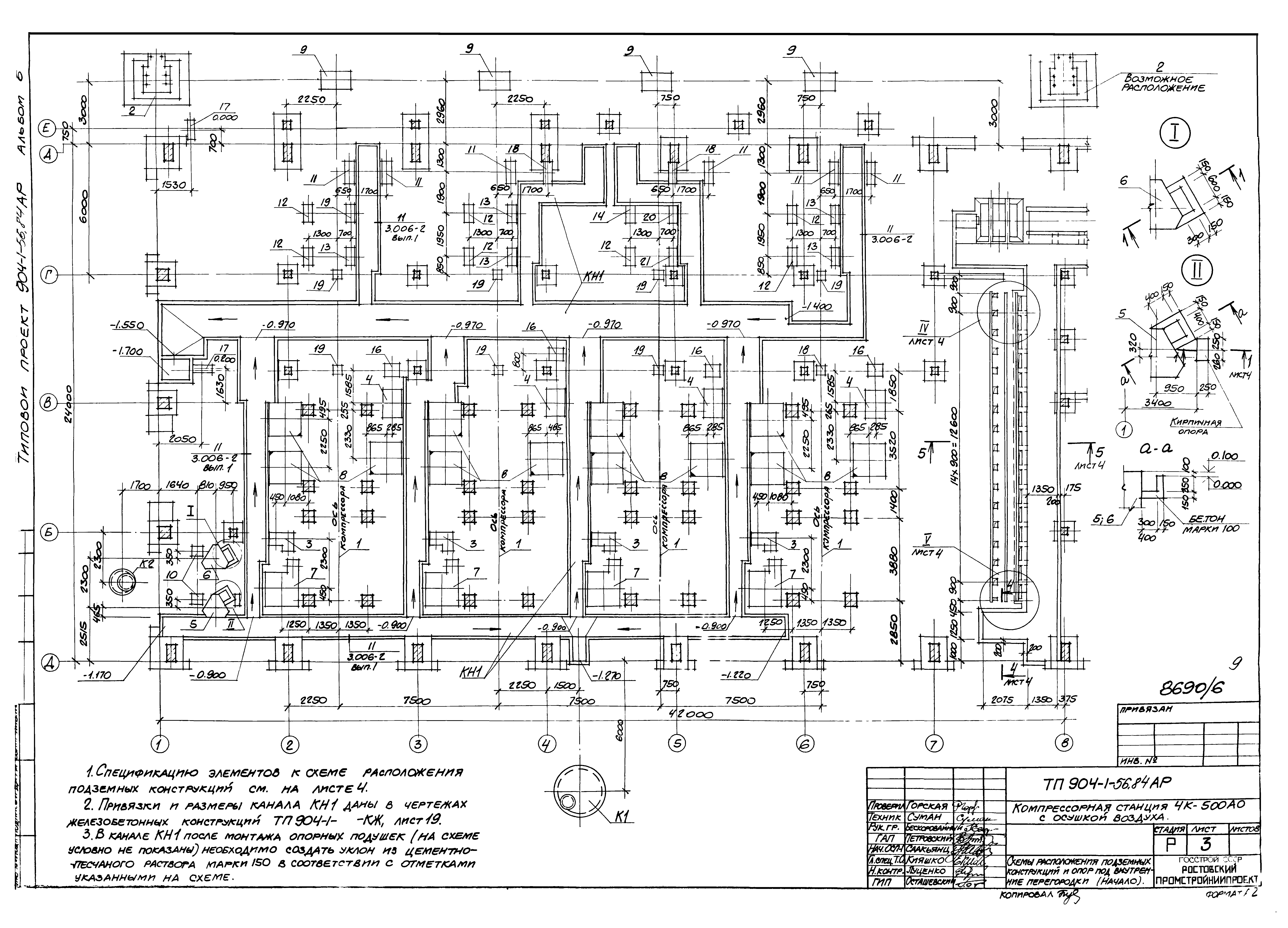
ТП 904-1-56.84-АР-3 Схемы расположения подземных конструкций и опор под внутренние перегородки (начало)
ТП 904-1-56.84-АР-4 Схемы расположения подземных конструкций и опор под внутренние перегородки (окончание)
ТП 904-1-56.84-АР-5 Планы на отм. 0.000 и 3.800
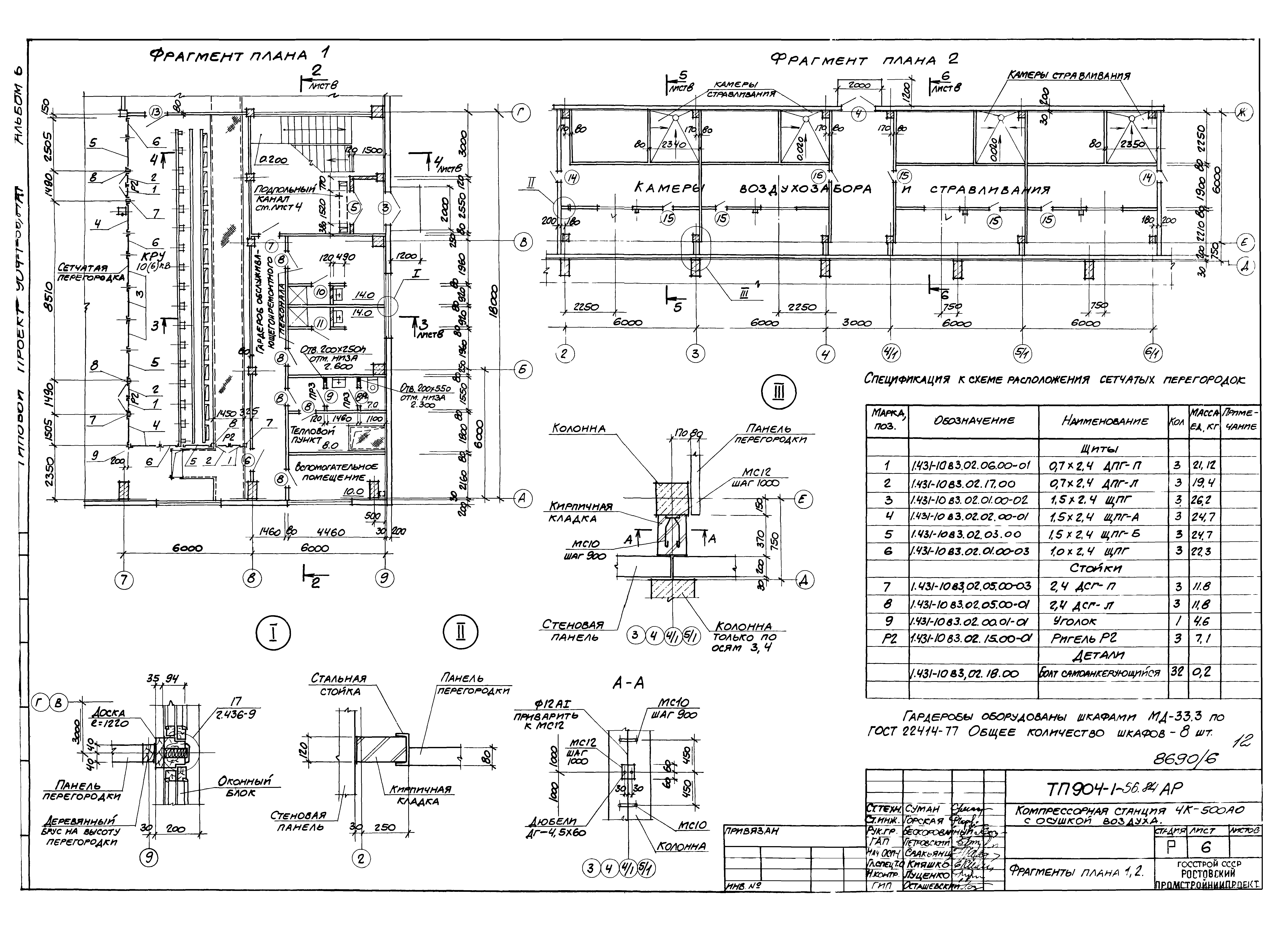
ТП 904-1-56.84-АР-6 Фрагменты плана 1,2
ТП 904-1-56.84-АР-7 Фрагмент плана 3
ТП 904-1-56.84-АР-8 Разрезы 1-1-6-6
ТП 904-1-56.84-АР-9 Фасады
ТП 904-1-56.84-АР-10 Схемы расположения опор двойного пола, деревянных щитов и накладных проступей
ТП 904-1-56.84-АР-11 Сечения 1-1,2-2
ТП 904-1-56.84-АР-12 Ведомость отделки помещений. Экспликация полов. План кровли
ТП 904-1-56.84-АР-13 Узлы 4-13. Схема установки закладных элементов в проеме ворот
ТП 904-1-56.84-КЖ Конструкции железобетонные
ТП 904-1-56.84-КЖ-1 Общие данные (начало)
ТП 904-1-56.84-КЖ-2 Общие данные (продолжение)
ТП 904-1-56.84-КЖ-3 Общие данные (окончание)
ТП 904-1-56.84-КЖ-4 Спецификация к схемам расположения элементов фундаментов
ТП 904-1-56.84-КЖ-5 Схема расположения элементов фундаментов
ТП 904-1-56.84-КЖ-6 Узлы 5-14
ТП 904-1-56.84-КЖ-7 Узлы 15-22
ТП 904-1-56.84-КЖ-8 Фундаменты ФМ1-ФМ3
ТП 904-1-56.84-КЖ-9 Фундаменты ФМ4-ФМ6
ТП 904-1-56.84-КЖ-10 Фундаменты ФМ7-ФМ9
ТП 904-1-56.84-КЖ-11 Фундаменты ФМ10-ФМ12
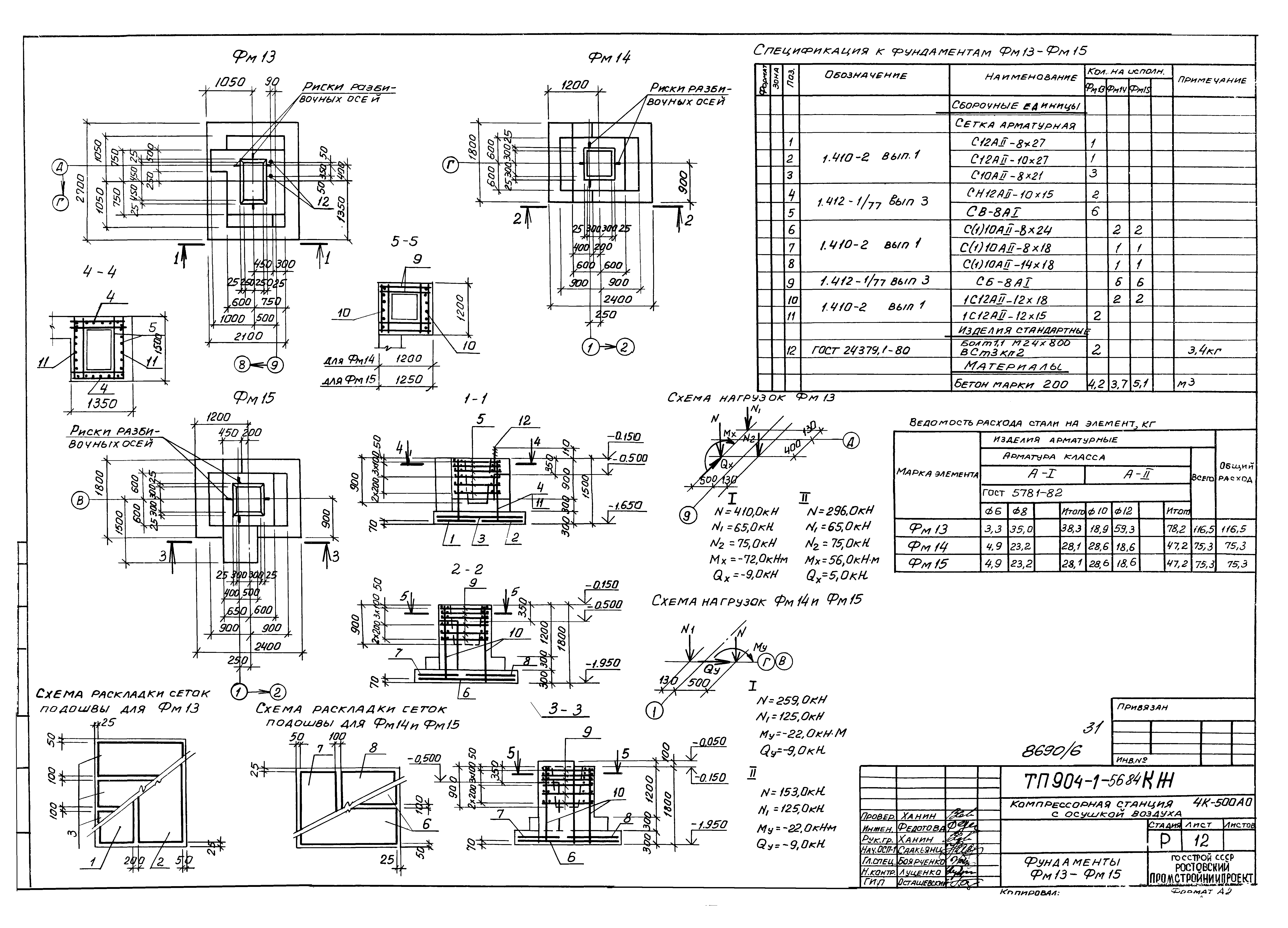
ТП 904-1-56.84-КЖ-12 Фундаменты ФМ13-ФМ15
ТП 904-1-56.84-КЖ-13 Фундаменты ФМ16-ФМ18;ФМ28
ТП 904-1-56.84-КЖ-14 Фундаменты ФМ19-ФМ21
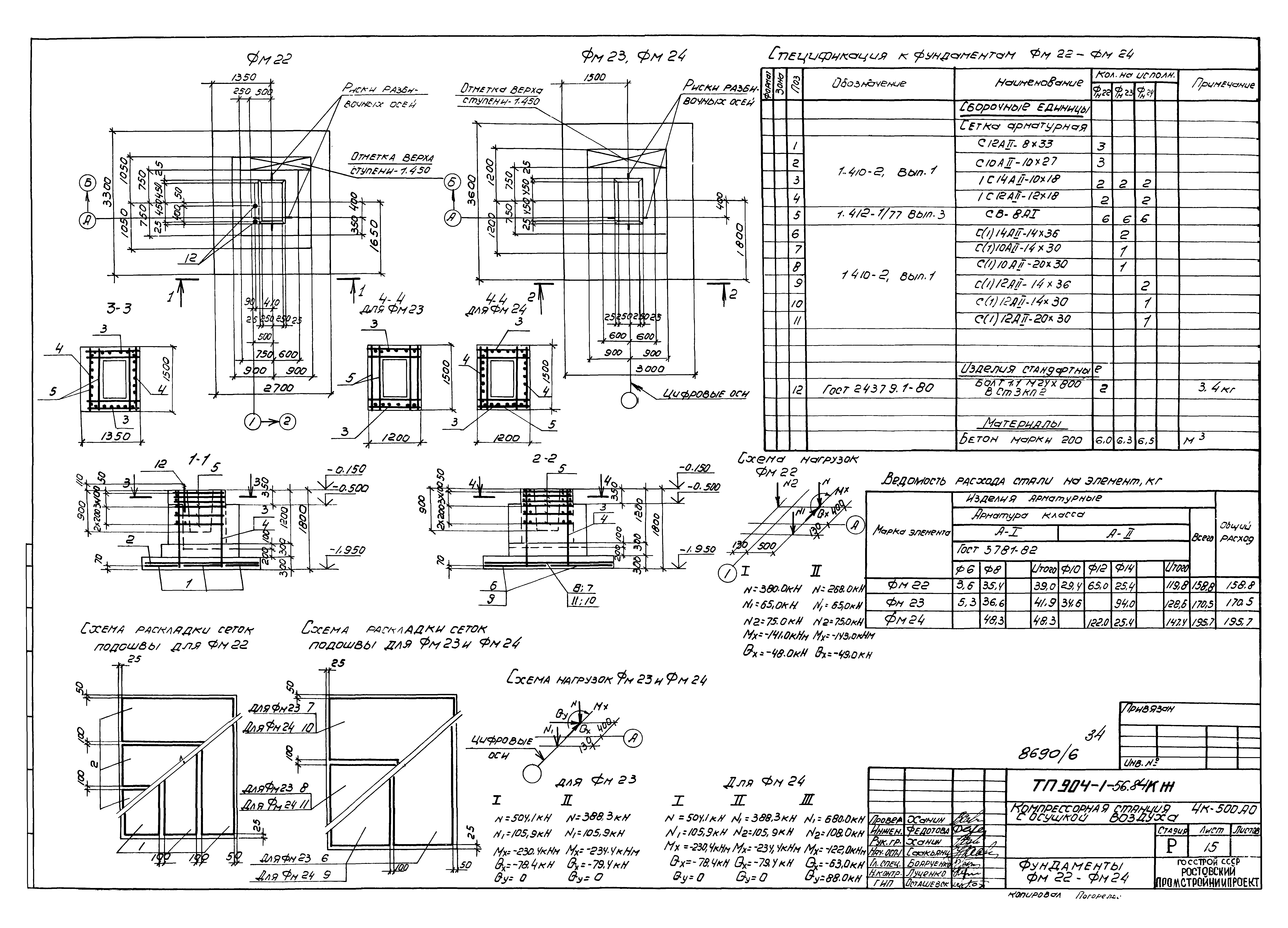
ТП 904-1-56.84-КЖ-15 Фундаменты ФМ22-ФМ24
ТП 904-1-56.84-КЖ-16 Фундаменты ФМ25-ФМ27
ТП 904-1-56.84-КЖ-17 Схемы расположения элементов колодцев К1,К2
ТП 904-1-56.84-КЖ-18 Схема расположения плит перекрытия и элементов канала КР1 (начало)
ТП 904-1-56.84-КЖ-19 Схема расположения плит перекрытия и элементов канала КР1 (продолжение)
ТП 904-1-56.84-КЖ-20 Схема расположения плит перекрытия и элементов канала КР1 (продолжение)
ТП 904-1-56.84-КЖ-21 Схема расположения плит перекрытия и элементов канала КР1 (окончание)
ТП 904-1-56.84-КЖ-22 Спецификация к участкам монолитным УМ1-УМ3
ТП 904-1-56.84-КЖ-23 Спецификация к участкам монолитным УМ4-УМ8
ТП 904-1-56.84-КЖ-24 Спецификация к участкам монолитным УМ9-УМ14
ТП 904-1-56.84-КЖ-25 Спецификация к участкам монолитным УМ15,УМ16
ТП 904-1-56.84-КЖ-26 Ведомость деталей
ТП 904-1-56.84-КЖ-27 Участок монолитный УМ1
ТП 904-1-56.84-КЖ-28 Участки монолитные УМ2,УМ3
ТП 904-1-56.84-КЖ-29 Участки монолитные УМ4-УМ6
ТП 904-1-56.84-КЖ-30 Участки монолитные УМ7-УМ9
ТП 904-1-56.84-КЖ-31 Участки монолитные УМ10-УМ12
ТП 904-1-56.84-КЖ-32 Участки монолитные УМ13,УМ14,УМ16
ТП 904-1-56.84-КЖ-33 Участок монолитный УМ15
ТП 904-1-56.84-КЖ-34 Схема расположения подливок, изделий соединительных и элементов к фундаменту ФО1 (начало)
ТП 904-1-56.84-КЖ-35 Схема расположения подливок, изделий соединительных и элементов к фундаменту ФО1 (окончание)
ТП 904-1-56.84-КЖ-36 Плита ПФМ1
ТП 904-1-56.84-КЖ-37 Плита ПФМ2. Спецификация
ТП 904-1-56.84-КЖ-38 Плита ПФМ2. Общий вид (начало)
ТП 904-1-56.84-КЖ-39 Плита ПФМ2. Общий вид (окончание)
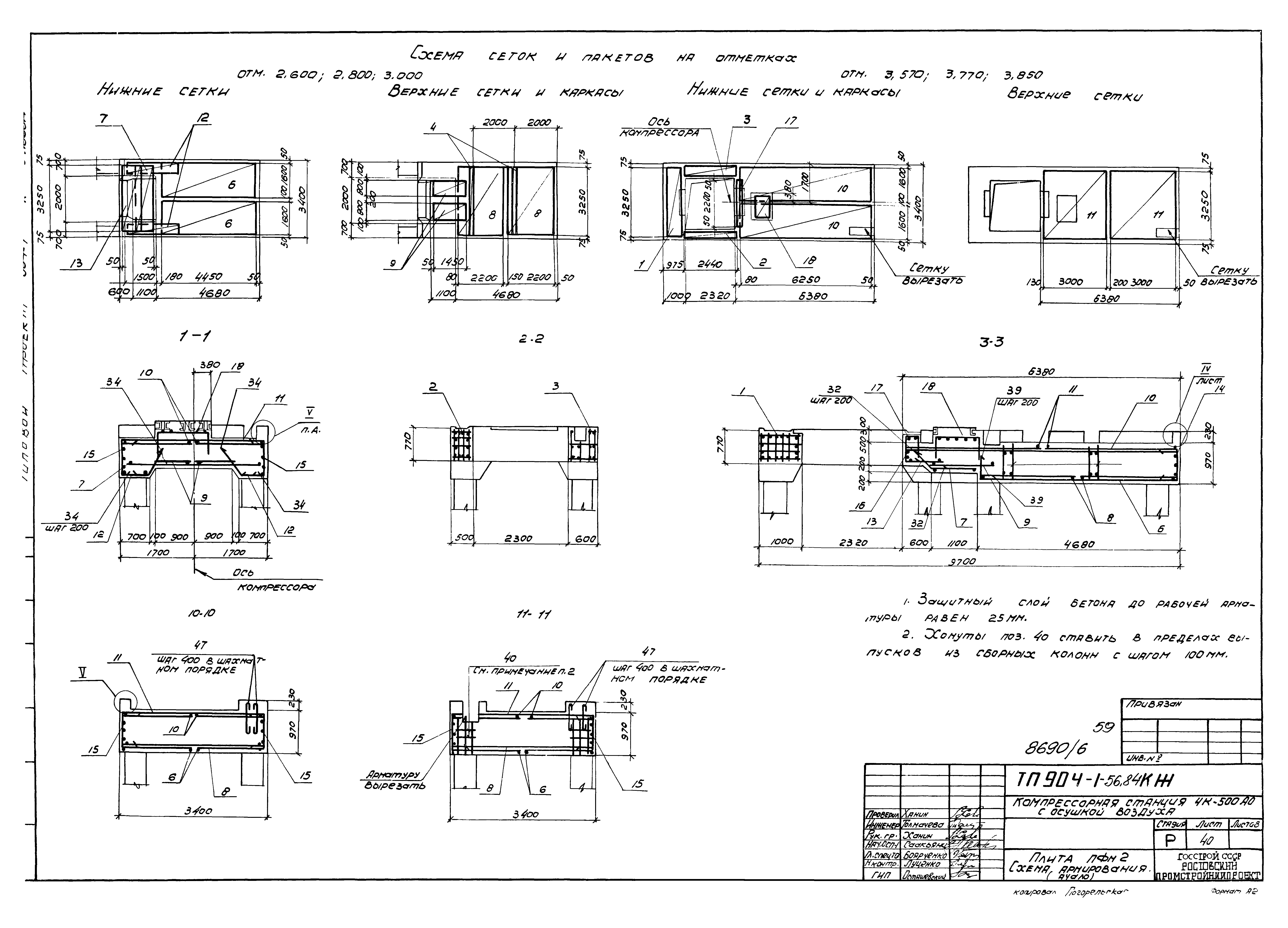
ТП 904-1-56.84-КЖ-40 Плита ПФМ2. Схема армирования (начало)
ТП 904-1-56.84-КЖ-41 Плита ПФМ2. Схема армирования (окончание)
ТП 904-1-56.84-КЖ-42 Спецификация к схемам расположения элементов каркаса, лестницы, плит покрытия и фундаментов под оборудование
ТП 904-1-56.84-КЖ-43 Узлы 1-5
ТП 904-1-56.84-КЖ-44 Схемы расположения элементов каркаса и лестницы
ТП 904-1-56.84-КЖ-45 Схемы расположения ферм и балок покрытия, подкрановых балок
ТП 904-1-56.84-КЖ-46 Схема расположения плит покрытия
ТП 904-1-56.84-КЖ-47 Схемы расположения плит перекрытия (начало)
ТП 904-1-56.84-КЖ-48 Схемы расположения плит перекрытия (окончание)
ТП 904-1-56.84-КЖ-49 Плиты ПМ1-ПМ6 (начало)
ТП 904-1-56.84-КЖ-50 Плиты ПМ1-ПМ6 (окончание)
ТП 904-1-56.84-КЖ-51 Спецификация к схемам расположения стеновых панелей
ТП 904-1-56.84-КЖ-52 Схемы расположения стеновых панелей
ТП 904-1-56.84-КЖ-53 Фрагменты 1-12
ТП 904-1-56.84-КЖ-54 Фрагменты 13-27
ТП 904-1-56.84-КЖ-55 Схемы расположения перегородок в осях 1-2,7-9 (начало)
ТП 904-1-56.84-КЖ-56 Схемы расположения перегородок в осях 1-2,7-9 (окончание)
ТП 904-1-56.84-КЖ-57 Схема расположения перегородок в осях Е-Ж
ТП 904-1-56.84-КЖ-58 Узлы 1-14
ТП 904-1-56.84-КЖ-59 Фундаменты под оборудование ФОМ2-ФОМ27 (начало)
ТП 904-1-56.84-КЖ-60 Фундаменты под оборудование ФОМ2-ФОМ27 (продолжение)
ТП 904-1-56.84-КЖ-61 Фундаменты под оборудование ФОМ2-ФОМ27 (окончание)
ТП 904-1-56.84-КМ Конструкции металлические
ТП 904-1-56.84-КМ-1 Общие данные
ТП 904-1-56.84-КМ-2 Ведомость металлоконструкций по видам профилей
ТП 904-1-56.84-КМ-3 Техническая спецификация металла на объект (начало)
ТП 904-1-56.84-КМ-4 Техническая спецификация металла на объект (окончание)
ТП 904-1-56.84-КМ-5 Техническая спецификация металла на лестницы, площадки, ограждения
ТП 904-1-56.84-КМ-6 Техническая спецификация металла на оконные переплеты, рельсы и упоры
ТП 904-1-56.84-КМ-7 Схема расположения балок и настила перекрытия на отм. 3.800 (начало)
ТП 904-1-56.84-КМ-8 Схема расположения балок и настила перекрытия на отм. 3.800 (продолжение)
ТП 904-1-56.84-КМ-9 Схема расположения балок и настила перекрытия на отм. 3.800 (окончание)
ТП 904-1-56.84-КМ-10 Схема расположения балок на отм. 3.170,7.370,4.650,5.550
ТП 904-1-56.84-КМ-11 Схема расположения коробов электрокабелей
ТП 904-1-56.84-КМ-12 Шахта для электрокабелей. Схема расположения стоек трубопроводов
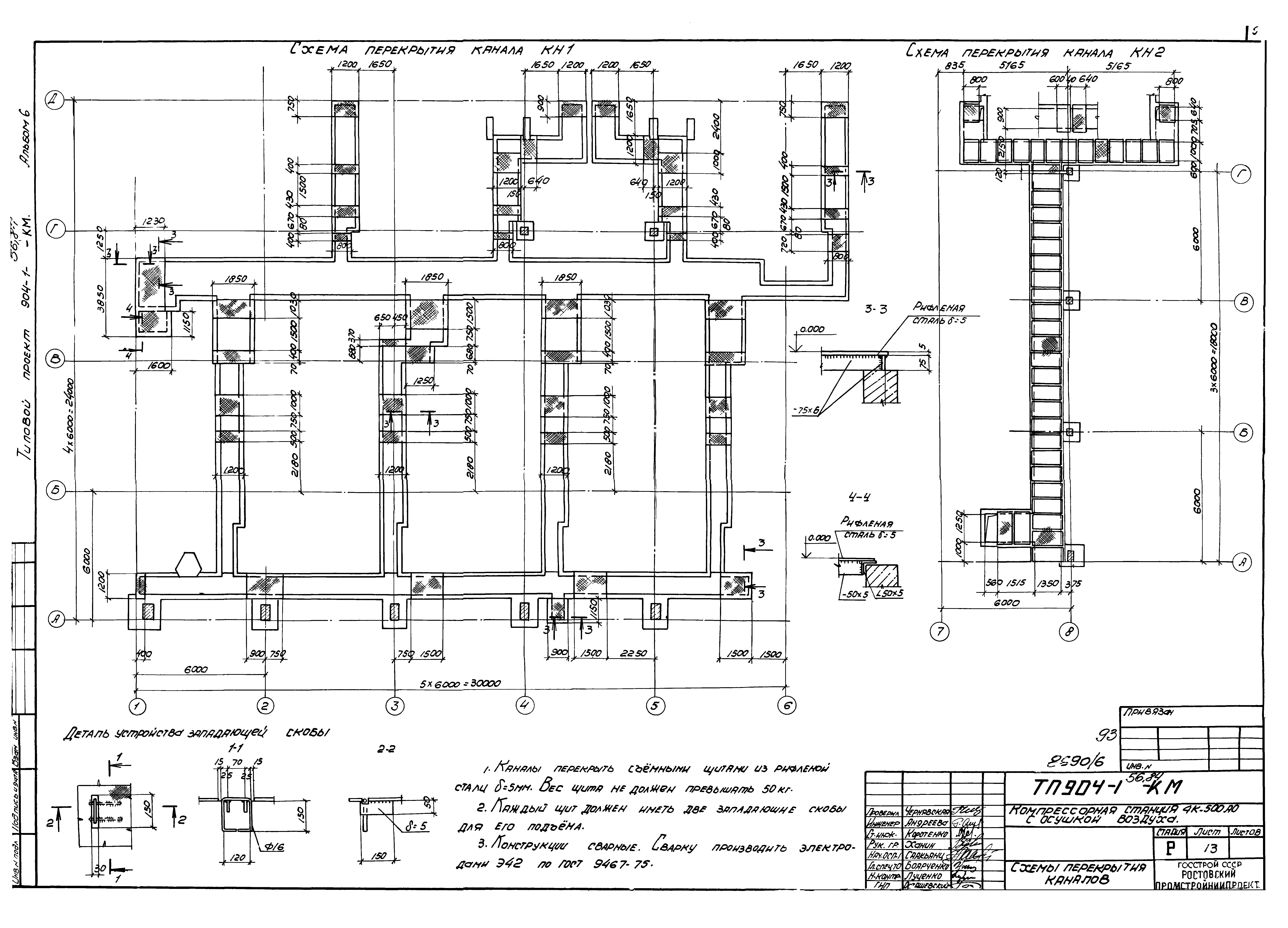
ТП 904-1-56.84-КМ-13 Схемы перекрытия каналов
ТП 904-1-56.84-КМ-14 Схема расположения оконных переплетов, кронштейнов
ТП 904-1-56.84-КМ-15 Схема расположения балок и решеток на отм. 1.150;2.950. Решетки Р1-Р3
ТП 904-1-56.84-КМ-16 Схема расположения ограждений на отм. 3.800 и лестниц
ТП 904-1-56.84-КМ-17 Схема расположения опор под трубопровод
ТП 904-1-56.84-КМ-18 Схема расположения рельсов и площадки на отм. 8.400
ТП 904-1-56.84-ВК Внутренние водопровод и канализация
ТП 904-1-56.84-ВК-1 Общие данные
ТП 904-1-56.84-ВК-2 Планы
ТП 904-1-56.84-ВК-3 План кровли. Схемы
ТП 904-1-56.84-ОВ Отопление и вентиляция
ТП 904-1-56.84-ОВ-1 Общие данные (начало)
ТП 904-1-56.84-ОВ-2 Общие данные (окончание)
ТП 904-1-56.84-ОВ-3 План на отм. 0.000
ТП 904-1-56.84-ОВ-4 План на отм. 3.800
ТП 904-1-56.84-ОВ-5 Схема системы отопления. Узел управления
ТП 904-1-56.84-ОВ-6 Схема системы теплоснабжения установок А1
ТП 904-1-56.84-ОВ-7 Разрезы 1-1;2-2;3-3. Схемы систем В2,ВЕ,ВЕ2,ВЕ3,ВЕ4
Разработан: Ростовский Промстройниипроект Госстроя СССР
Утверждён:01.11.1983 Минстройдормаш (Minstroydormash 20/83)
Расположен в:Техническая документация Строительство Справочные документы Типовые строительные конструкции, изделия и узлы Общероссийский строительный каталог Промышленные предприятия, здания и сооружения Здания и сооружения санитарно-технические Воздухоснабжение, вентиляция и кондиционирование воздуха Воздухоснабжение
Типовой проект 904-1-56.84Типовой проект 904-1-56.84Типовой проект 904-1-56.84Типовой проект 904-1-56.84Типовой проект 904-1-56.84Типовой проект 904-1-56.84Типовой проект 904-1-56.84Типовой проект 904-1-56.84Типовой проект 904-1-56.84Типовой проект 904-1-56.84Типовой проект 904-1-56.84Типовой проект 904-1-56.84Типовой проект 904-1-56.84Типовой проект 904-1-56.84Типовой проект 904-1-56.84Типовой проект 904-1-56.84Типовой проект 904-1-56.84Типовой проект 904-1-56.84Типовой проект 904-1-56.84Типовой проект 904-1-56.84Типовой проект 904-1-56.84Типовой проект 904-1-56.84Типовой проект 904-1-56.84Типовой проект 904-1-56.84Типовой проект 904-1-56.84Типовой проект 904-1-56.84Типовой проект 904-1-56.84Типовой проект 904-1-56.84Типовой проект 904-1-56.84Типовой проект 904-1-56.84Типовой проект 904-1-56.84Типовой проект 904-1-56.84Типовой проект 904-1-56.84Типовой проект 904-1-56.84Типовой проект 904-1-56.84Типовой проект 904-1-56.84Типовой проект 904-1-56.84Типовой проект 904-1-56.84Типовой проект 904-1-56.84Типовой проект 904-1-56.84Типовой проект 904-1-56.84Типовой проект 904-1-56.84Типовой проект 904-1-56.84Типовой проект 904-1-56.84Типовой проект 904-1-56.84Типовой проект 904-1-56.84Типовой проект 904-1-56.84Типовой проект 904-1-56.84Типовой проект 904-1-56.84Типовой проект 904-1-56.84Типовой проект 904-1-56.84Типовой проект 904-1-56.84Типовой проект 904-1-56.84Типовой проект 904-1-56.84Типовой проект 904-1-56.84Типовой проект 904-1-56.84Типовой проект 904-1-56.84Типовой проект 904-1-56.84Типовой проект 904-1-56.84Типовой проект 904-1-56.84Типовой проект 904-1-56.84Типовой проект 904-1-56.84Типовой проект 904-1-56.84Типовой проект 904-1-56.84Типовой проект 904-1-56.84Типовой проект 904-1-56.84Типовой проект 904-1-56.84Типовой проект 904-1-56.84Типовой проект 904-1-56.84Типовой проект 904-1-56.84Типовой проект 904-1-56.84Типовой проект 904-1-56.84Типовой проект 904-1-56.84Типовой проект 904-1-56.84Типовой проект 904-1-56.84Типовой проект 904-1-56.84Типовой проект 904-1-56.84Типовой проект 904-1-56.84Типовой проект 904-1-56.84Типовой проект 904-1-56.84Типовой проект 904-1-56.84Типовой проект 904-1-56.84Типовой проект 904-1-56.84Типовой проект 904-1-56.84Типовой проект 904-1-56.84Типовой проект 904-1-56.84Типовой проект 904-1-56.84Типовой проект 904-1-56.84Типовой проект 904-1-56.84Типовой проект 904-1-56.84Типовой проект 904-1-56.84Типовой проект 904-1-56.84Типовой проект 904-1-56.84Типовой проект 904-1-56.84Типовой проект 904-1-56.84Типовой проект 904-1-56.84Типовой проект 904-1-56.84Типовой проект 904-1-56.84Типовой проект 904-1-56.84Типовой проект 904-1-56.84Типовой проект 904-1-56.84Типовой проект 904-1-56.84Типовой проект 904-1-56.84Типовой проект 904-1-56.84Типовой проект 904-1-56.84Типовой проект 904-1-56.84Типовой проект 904-1-56.84Типовой проект 904-1-56.84Типовой проект 904-1-56.84Типовой проект 904-1-56.84

© 2013 Ёшкин Кот :-) Карта сайта