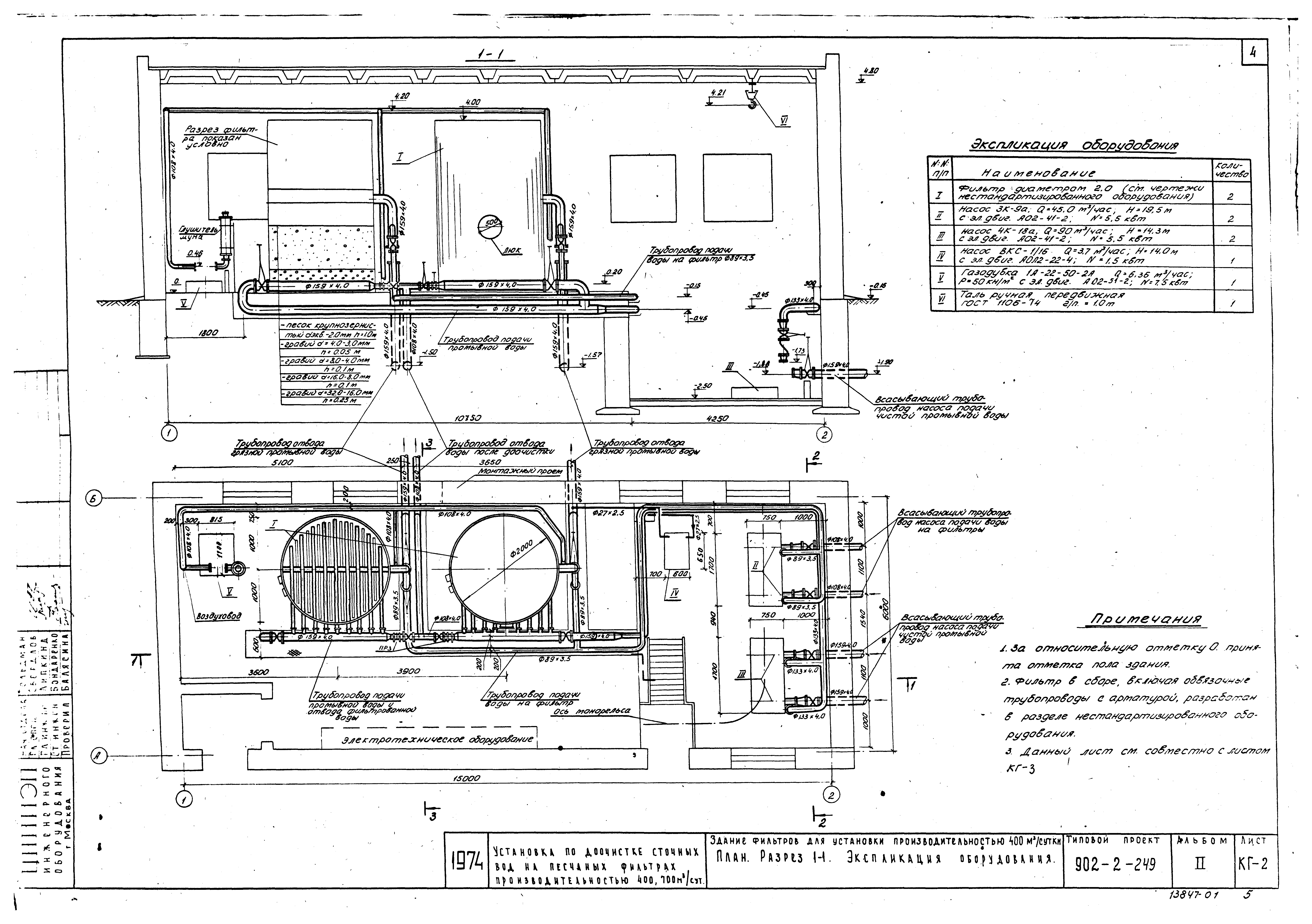
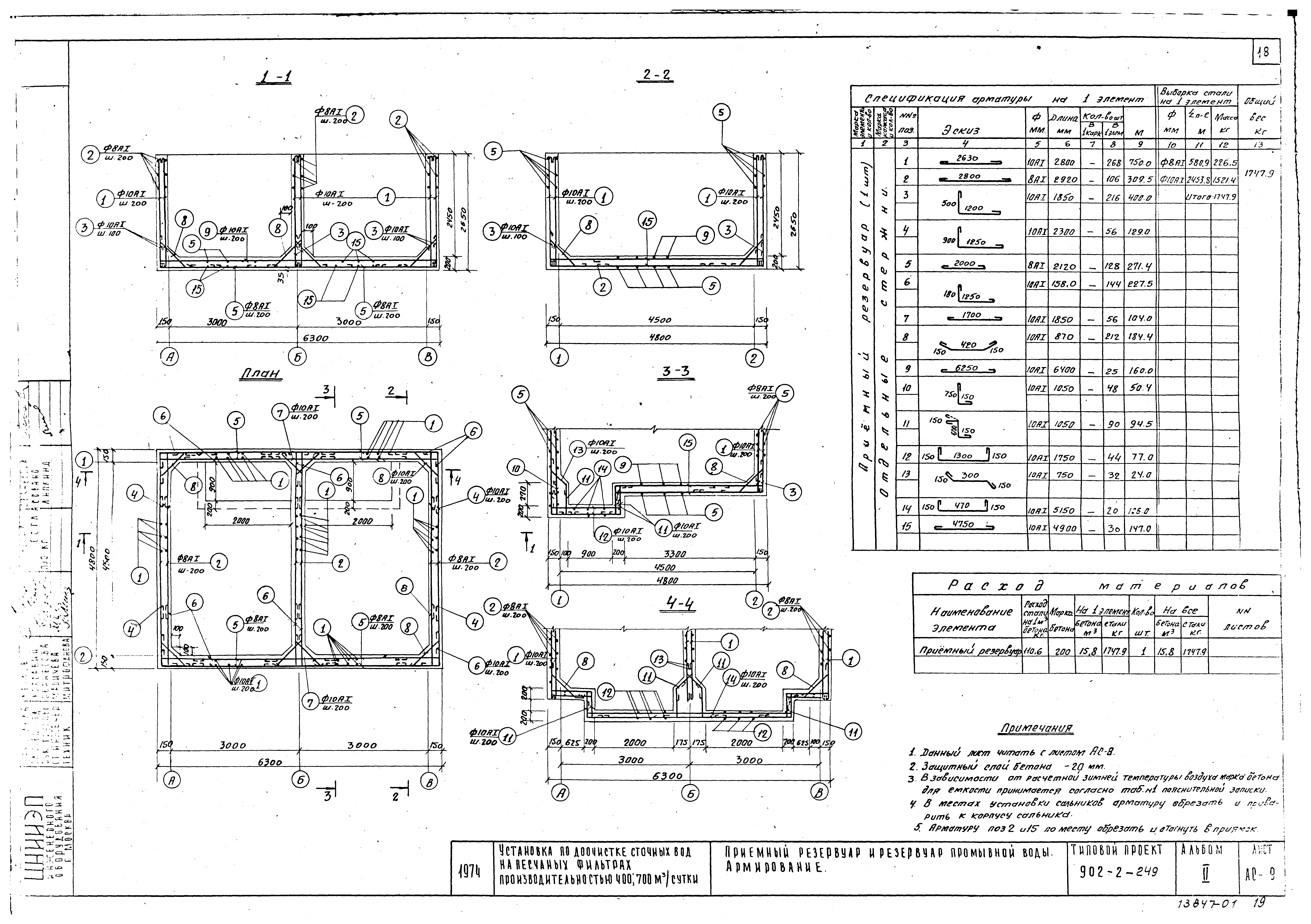
Скачать Типовой проект 902-2-249 Альбом II. Технологическая, архитектурно-строительная, электротехническая и санитарно-техническая частиДата актуализации: 10.08.2017 Типовой проект 902-2-249
Альбом II. Технологическая, архитектурно-строительная, электротехническая и санитарно-техническая частиОбозначение: | Типовой проект 902-2-249 | Обозначение англ: | 902-2-249 | Статус: | заменен | Название рус.: | Альбом II. Технологическая, архитектурно-строительная, электротехническая и санитарно-техническая части | Дата добавления в базу: | 01.09.2013 | Дата актуализации: | 05.05.2017 | Дата введения: | 01.09.1986 | Разработан: | ЦНИИЭП иженерного оборудования
| Утверждён: | 31.07.1975 Госгражданстрой (Gosgrazhdanstroy 161)
| Расположен в: |
| Чем заменён: | |
                           
|