Скачать Типовой проект 902-2-338 Альбом I. Технологическая, строительная, теплотехническая, электротехническая части, примерный генплан и организация строительстваДата актуализации: 10.08.2017 Типовой проект 902-2-338
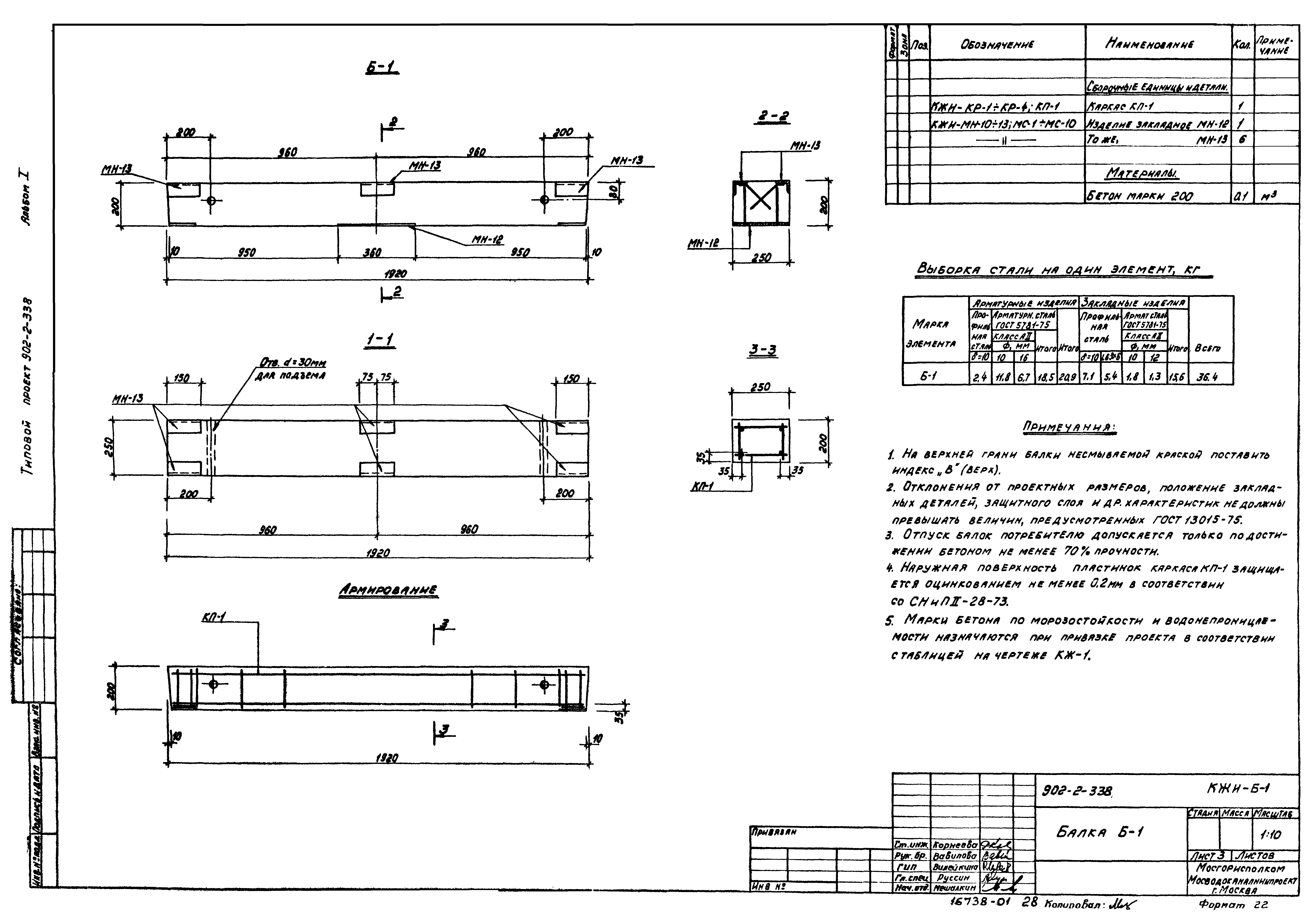
Альбом I. Технологическая, строительная, теплотехническая, электротехническая части, примерный генплан и организация строительстваОбозначение: | Типовой проект 902-2-338 | Обозначение англ: | 902-2-338 | Статус: | действует | Название рус.: | Альбом I. Технологическая, строительная, теплотехническая, электротехническая части, примерный генплан и организация строительства | Дата добавления в базу: | 01.09.2013 | Дата актуализации: | 05.05.2017 | Оглавление: | ТП 902-2-338 Содержание альбома ТП 902-2-338-НК Технологическая часть ТП 902-2-338-НК-1 Пояснительная часть ТП 902-2-338-НК-2 Пояснительная записка ТП 902-2-338-НК-3 Общие данные ТП 902-2-338-НК-4 План. Разрезы 1-1;2-2;3-3. Схема ТП 902-2-338-КЖ Строительная часть ТП 902-2-338 Пояснительная записка ТП 902-2-338-КЖ-1 Общие данные ТП 902-2-338-КЖ-2 Общие виды ТП 902-2-338-КЖ-3 Днище. Опалубочный чертеж ТП 902-2-338-КЖ-4 Днище. Армирование. План сеток. Узлы 1-2 ТП 902-2-338-КЖ-5 Днище. Армирование. Узлы 3-7. Элемент плана 1. Выборка стали ТП 902-2-338-КЖ-6 Стены. Монтажная схема ТП 902-2-338-КЖ-7 Стены. Монолитный участок УМ-1 ТП 902-2-338-КЖ-8 Стены. Монолитный участок УМ-2 ТП 902-2-338-КЖ-9 Стены. Монолитные участки УМ-3÷УМ5 ТП 902-2-338-КЖ-10 Перекрытие на отм. 4.480. Монтажная схема. Узлы ТП 902-2-338-КЖ-11 Мазутосборные колодцы №1 и №2 ТП 902-2-338-КМ-1 Общие данные (начало) ТП 902-2-338-КМ-2 Общие данные (окончание) ТП 902-2-338-КМ-3 Перекрытие на отм. 4.480. Монтажная схема щитов балок ТП 902-2-338-КМ-4 Пути подвесного крана. Навес. Монтажная схема ТП 902-2-338-КМ-5 Пути подвесного крана. Навес. Узлы 1-8 ТП 902-2-338-КМ-6 Пути подвесного крана. Навес. Узлы 9-14 ТП 902-2-338-КЖИ-ПС-1-42-62а,б,в,д,е Стеновые панели ПС-1-42-62а,б,в,д,е ТП 902-2-338-КЖИ-ПС-1-36-62а,б,в,д,е Стеновые панели ПС-1-36-62а,б,в,д,е ТП 902-2-338-КЖИ-Б-1 Балка Б-1 ТП 902-2-338-КЖИ-КР-1÷КР-4;КП-1 Каркасы КР-1÷КР-4;КП-1 ТП 902-2-338-КЖИ-МН-1÷МН-9 Закладные изделия МН-1÷МН-9 ТП 902-2-338-КЖИ-МН-10÷МН-15;МС-1÷МС-10 Закладные изделия МН-10÷МН-15. Соединительные элементы МС-1÷МС-10 ТП 902-2-338-ТС Теплотехническая часть ТП 902-2-338-ТС-1 Пояснительная записка. Общие данные ТП 902-2-338-ТС-2 Обогрев мазутосборного лотка. План. Разрезы. Схема. Опора. Детали крепления трубопроводов ТП 902-2-338-ЭО Электротехническая часть ТП 902-2-338-ЭО-1 Общие данные ТП 902-2-338-ЭО-2 Пояснительная записка ТП 902-2-338-ЭО-3 Функциональная схема. Питание приборов КИП. Кабельный журнал ТП 902-2-338-ЭО-4 Расположение электрооборудования, приборов КИП, прокладка кабелей и сеток заземления ТП 902-2-338-ЭО-5 Электроосвещение ТП 902-2-338-ЭО-6 Схема внешних соединений приборов КИП ТП 902-2-338-ЭО-7 Принципиальная схема сигнализации ТП 902-2-338-ЭО-8 Шкаф сигнализации ШС. Общий вид. Задание заводу-изготовителю ТП 902-2-338-ЭО-9 Шкаф сигнализации ШС. Технические данные электрооборудования. Перечень надписей. Задание заводу-изготовителю ТП 902-2-338-ЭО-10 Шкаф сигнализации ШС. Схема соединений. Задание заводу-изготовителю ТП 902-2-338-Г.Т. Генплан ТП 902-2-338-Г.Т. Примерный план ТП 902-2-338-ОС Организация строительства ТП 902-2-338-ОС-1 Пояснительная записка ТП 902-2-338-ОС-2 Пояснительная записка ТП 902-2-338-ОС-3 Пояснительная записка | Разработан: | МосводоканалНИИпроект
| Утверждён: | 10.08.1979 Главпромстройпроект Госстроя СССР (19/5-3151)
| Расположен в: |
|
                                              
|