Информационная система
«Ёшкин Кот»

Скачать базу одним архивом
Скачать обновления
История создания базы
Карта сайта

Скачать Типовой проект 903-4-178.94 Альбом 3. Силовое электрооборудование. Автоматизация силового электрооборудования. Автоматизация

Дата актуализации: 10.08.2017

Типовой проект 903-4-178.94

Альбом 3. Силовое электрооборудование. Автоматизация силового электрооборудования. Автоматизация

Обозначение: Типовой проект 903-4-178.94
Обозначение англ: 903-4-178.94
Статус:не определен законодательством
Название рус.:Альбом 3. Силовое электрооборудование. Автоматизация силового электрооборудования. Автоматизация
Дата добавления в базу:01.09.2013
Дата актуализации:05.05.2017
Дата введения:31.10.1994
Оглавление:ТП 903-4-178.94-ЭМ Силовое электрооборудование
ТП 903-4-178.94-ЭМ-1 Общие данные
ТП 903-4-178.94-ЭМ-1 Питающая сеть 380/220 В. Схема управления вводов № 1 и № 2
ТП 903-4-178.94-ЭМ-1 Распределительная сеть 380/220 В. Принципиальная однолинейная схема
ТП 903-4-178.94-ЭМ-1 Расположение электрооборудования, прокладка кабелей. План
ТП 903-4-178.94-ЭМ-1 Электроосвещение. План
ТП 903-4-178.94-АЭМ Автоматизация силового электрооборудования
ТП 903-4-178.94-АЭМ-1 Общие данные
ТП 903-4-178.94-АЭМ-2 Насосы 1.1, 1.2. Принципиальная электрическая схема управления
ТП 903-4-178.94-АЭМ-3 Насосы 2.1, 2.2. Принципиальная электрическая схема управления
ТП 903-4-178.94-АЭМ-4 Вентиль 4-Y1. Принципиальная электрическая схема управления
ТП 903-4-178.94-АЭМ-5 Принципиальная электрическая схема сигнализации
ТП 903-4-178.94-АТМ Автоматизация
ТП 903-4-178.94-АТМ-1 Общие данные
ТП 903-4-178.94-АТМ-2 Схема автоматизации
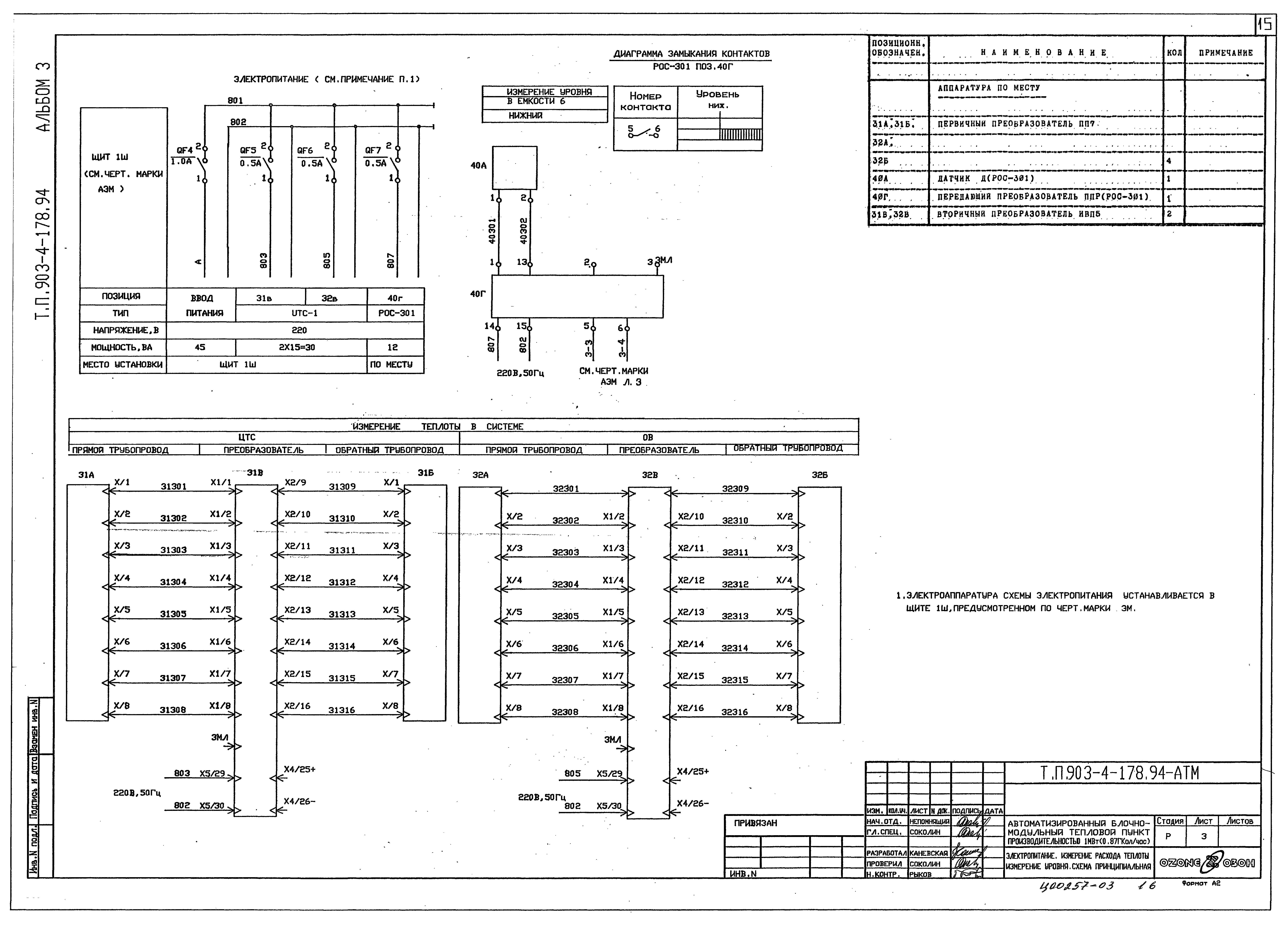
ТП 903-4-178.94-АТМ-3 Электропитание. Измерение расхода теплоты. Измерение уровня. Схема принципиальная
ТП 903-4-178.94-АТМ-4 Схема местных замеров и импульсных проводок. Начало
ТП 903-4-178.94-АТМ-5 Схема местных замеров и импульсных проводок. Окончание
ТП 903-4-178.94-АТМ-6 Таблица соединений внешних электрических проводок
ТП 903-4-178.94-АТМ-7 Таблица подключения внешних электрических проводок
ТП 903-4-178.94-АТМ-8 План расположения
Разработан: АО ОЗОН
Утверждён:10.10.1994 Комитет РФ по химической и нефтехимической промышленности (09/1-11-102)
Расположен в:Техническая документация Строительство Справочные документы Типовые строительные конструкции, изделия и узлы Общероссийский строительный каталог Промышленные предприятия, здания и сооружения Здания и сооружения санитарно-технические Теплоснабжение Сооружения тепловых сетей Тепловые пункты в блочно-модульном исполнении
Типовой проект 903-4-178.94Типовой проект 903-4-178.94Типовой проект 903-4-178.94Типовой проект 903-4-178.94Типовой проект 903-4-178.94Типовой проект 903-4-178.94Типовой проект 903-4-178.94Типовой проект 903-4-178.94Типовой проект 903-4-178.94Типовой проект 903-4-178.94Типовой проект 903-4-178.94Типовой проект 903-4-178.94Типовой проект 903-4-178.94Типовой проект 903-4-178.94Типовой проект 903-4-178.94Типовой проект 903-4-178.94Типовой проект 903-4-178.94Типовой проект 903-4-178.94Типовой проект 903-4-178.94Типовой проект 903-4-178.94Типовой проект 903-4-178.94

© 2013 Ёшкин Кот :-) Карта сайта