| ||||||||||||||||||||||||||
Скачать Типовой проект 807-10-68.84 Альбом I. Пояснительная записка. Технология производства. Архитектурные решения. Конструкции железобетонные. Отопление и вентиляция. Внутренние водопровод и канализация. Электротехническая часть. Автоматизация отопления и вентиляции. Связь и сигнализацияДата актуализации: 10.08.2017
|
| Обозначение: | Типовой проект 807-10-68.84 |
| Обозначение англ: | 807-10-68.84 |
| Статус: | не определен законодательством |
| Название рус.: | Альбом I. Пояснительная записка. Технология производства. Архитектурные решения. Конструкции железобетонные. Отопление и вентиляция. Внутренние водопровод и канализация. Электротехническая часть. Автоматизация отопления и вентиляции. Связь и сигнализация |
| Дата добавления в базу: | 01.09.2013 |
| Дата актуализации: | 05.05.2017 |
| Дата введения: | 06.02.1984 |
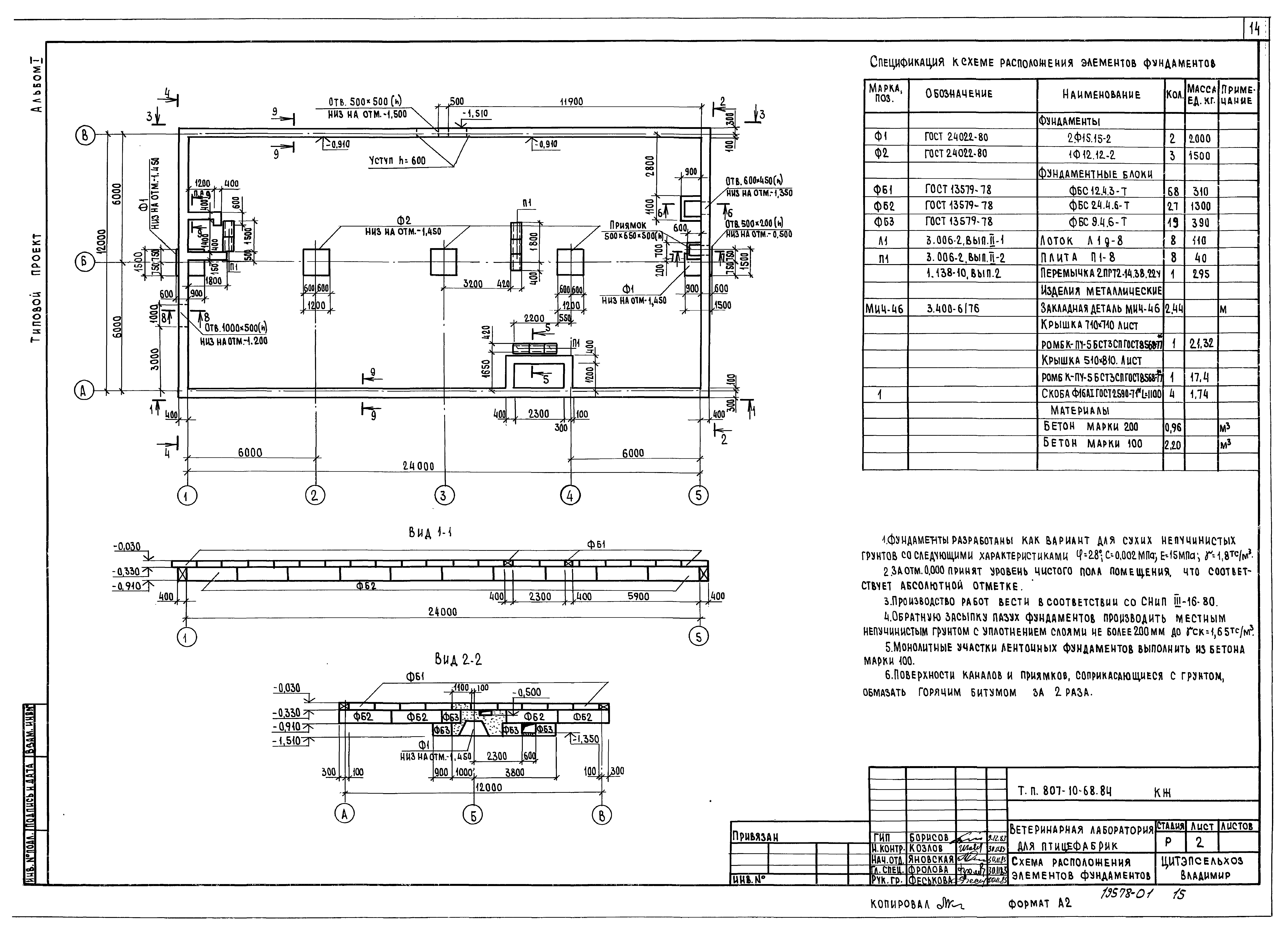
| Оглавление: | ТП 807-10-68.84 Содержание альбома ТП 807-10-68.84-ПЗ-1 Пояснительная записка ТП 807-10-68.84-ПЗ-2 Пояснительная записка ТП 807-10-68.84-ПЗ-3 Пояснительная записка ТП 807-10-68.84-ПЗ-4 Пояснительная записка ТП 807-10-68.84-ТХ-1 Общие данные. План на отм. 0.000 ТП 807-10-68.84-АР-1 Общие данные (начало) ТП 807-10-68.84-АР-2 Общие данные (окончание) ТП 807-10-68.84-АР-3 План на отм. 0.000. Разрез 1-1 ТП 807-10-68.84-АР-4 Фасады. Схема заполнения оконных проемов ТП 807-10-68.84-АР-5 План полов на отм. 0.000. Разрез 1-1 ТП 807-10-68.84-КЖ-1 Общие данные ТП 807-10-68.84-КЖ-2 Схема расположения элементов фундаментов ТП 807-10-68.84-КЖ-3 Виды 3-3,4-4. Сечения 5-5÷9-9 ТП 807-10-68.84-КЖ-4 Схемы расположения элементов каркаса и плит покрытия ТП 807-10-68.84-КЖ-5 Схемы расположения элементов стеновых панелей ТП 807-10-68.84-КЖ-6 Узлы А,Б ТП 807-10-68.84-КЖ-7 Схемы расположения элементов перегородок ТП 807-10-68.84-КЖ-8 Схемы расположения элементов входа ТП 807-10-68.84-ОВ-1 Общие данные (начало) ТП 807-10-68.84-ОВ-2 Общие данные (окончание) ТП 807-10-68.84-ОВ-3 План на отм. 0.000 ТП 807-10-68.84-ОВ-4 Схемы систем отопления теплоснабжения установок П1,П2, вентиляции П1,П2,В1,В2,ВЕ4,ВЕ6,ВЕ7. Узел управления ТП 807-10-68.84-ОВ-5 Установки П1,П2 ТП 807-10-68.84-ВК-1 Общие данные ТП 807-10-68.84-ВК-2 План на отм. 0.000 ТП 807-10-68.84-ВК-3 Схемы систем ВО,Т3,К1,К3,К13,К14 ТП 807-10-68.84-ВКН.01;02 Сифон групповой одиночный прямой ТП 807-10-68.84-ЭМ-1 Общие данные ТП 807-10-68.84-ЭМ-2 Силовое электрооборудование. План на отм. 0.000 ТП 807-10-68.84-ЭМ-3 Силовое электрооборудование. Расчетная схема (начало) ТП 807-10-68.84-ЭМ-4 Силовое электрооборудование. Расчетная схема (продолжение) ТП 807-10-68.84-ЭМ-5 Электрическое освещение. План на отм. 0.000 ТП 807-10-68.84-ЭМ-6 Электрическое освещение. Спецификация ТП 807-10-68.84-СС-1 Общие данные. План ТП 807-10-68.84-АОВ-1 Общие данные. Система П1(П2). Схемы функциональная и электрическая принципиальная ТП 807-10-68.84-АОВ-2 Система П1(П2). Схема внешних проводок. План расположения |
| Разработан: | ЦИТЭПсельхозпрома |
| Утверждён: | 01.12.1983 Главсельстройпроект Минсельхоза СССР (Glavselstroyproject, USSR Minselkhoz 103) |
| Расположен в: |






































