Информационная система
«Ёшкин Кот»

Скачать базу одним архивом
Скачать обновления
История создания базы
Карта сайта

Скачать Типовой проект 902-5-41.87 Альбом III. Тепловая изоляция. Проект производства работ

Дата актуализации: 10.08.2017

Типовой проект 902-5-41.87

Альбом III. Тепловая изоляция. Проект производства работ

Обозначение: Типовой проект 902-5-41.87
Обозначение англ: 902-5-41.87
Статус:не определен законодательством
Название рус.:Альбом III. Тепловая изоляция. Проект производства работ
Дата добавления в базу:01.09.2013
Дата актуализации:05.05.2017
Дата введения:13.05.1987
Оглавление:ТП 902-5-41.87 Титульный лист
ТП 902-5-41.87 Содержание
ТП 902-5-41.87-ПЗ Пояснительная записка
ТП 902-5-41.87-ТИ Общие данные (начало)
ТП 902-5-41.87-ТИ Общие данные (окончание)
ТП 902-5-41.87-ТИ Тепловая изоляция резервуара. Общий вид. Узел 1. Разрезы Б-Б,В-В,Ж-Ж,К-К...П-П
ТП 902-5-41.87-ТИ Тепловая изоляция резервуара. Вид 4-4. Разрезы Г-Г...Е-Е,З-З,И-И,Т-Т...Ц-Ц,Ш-Ш
ТП 902-5-41.87-ТИ Тепловая изоляция резервуара. Раскладка панелей на стенке резервуара. Фрагмент. Разрезы Р-Р,С-С,Е1-Е1
ТП 902-5-41.87-ТИ Тепловая изоляция резервуара. Вид А-А. Разрезы Щ-Щ...Я-Я,А1-А1...Е1-Е1. Узел 2
ТП 902-5-41.87-ТИ Тепловая изоляция резервуара. Спецификация
ТП 902-5-41.87-ТИ Размещение приварных деталей на стенке резервуара. Развертка стен резервуара. Разрезы А-А...В-В. Виды Г-Г,Д-Д
ТП 902-5-41.87-ТИ Размещение приварных деталей на стенке резервуара. Фрагмент 1. Разрезы Е-Е...И-И. Узлы 1...3
ТП 902-5-41.87-ТИ Размещение приварных деталей на стенке резервуара. Фрагменты 2,3. Разрезы К-К...М-М. Узлы 4...8
ТП 902-5-41.87-ТИ Размещение приварных деталей на стенке резервуара. Спецификация
ТП 902-5-41.87-ТИ Размещение приварных деталей на крыше резервуара. Общий вид
ТП 902-5-41.87-ТИ Размещение приварных деталей на крыше резервуара. Узлы. Разрезы
ТП 902-5-41.87-ППР Общие данные (начало)
ТП 902-5-41.87-ППР Общие данные (продолжение)
ТП 902-5-41.87-ППР Общие данные (окончание)
ТП 902-5-41.87-ППР Схема организации работ по монтажу изоляции. План
ТП 902-5-41.87-ППР Схема организации работ по монтажу изоляции. Вид А-А
ТП 902-5-41.87-ППР Монтаж изоляции по крыше. Фрагмент 1. План
ТП 902-5-41.87-ППР Монтаж изоляции по крыше. Фрагмент 1. Узел. Разрезы
ТП 902-5-41.87-ППР Схема установки стоечных лесов. Фрагмент 1. План
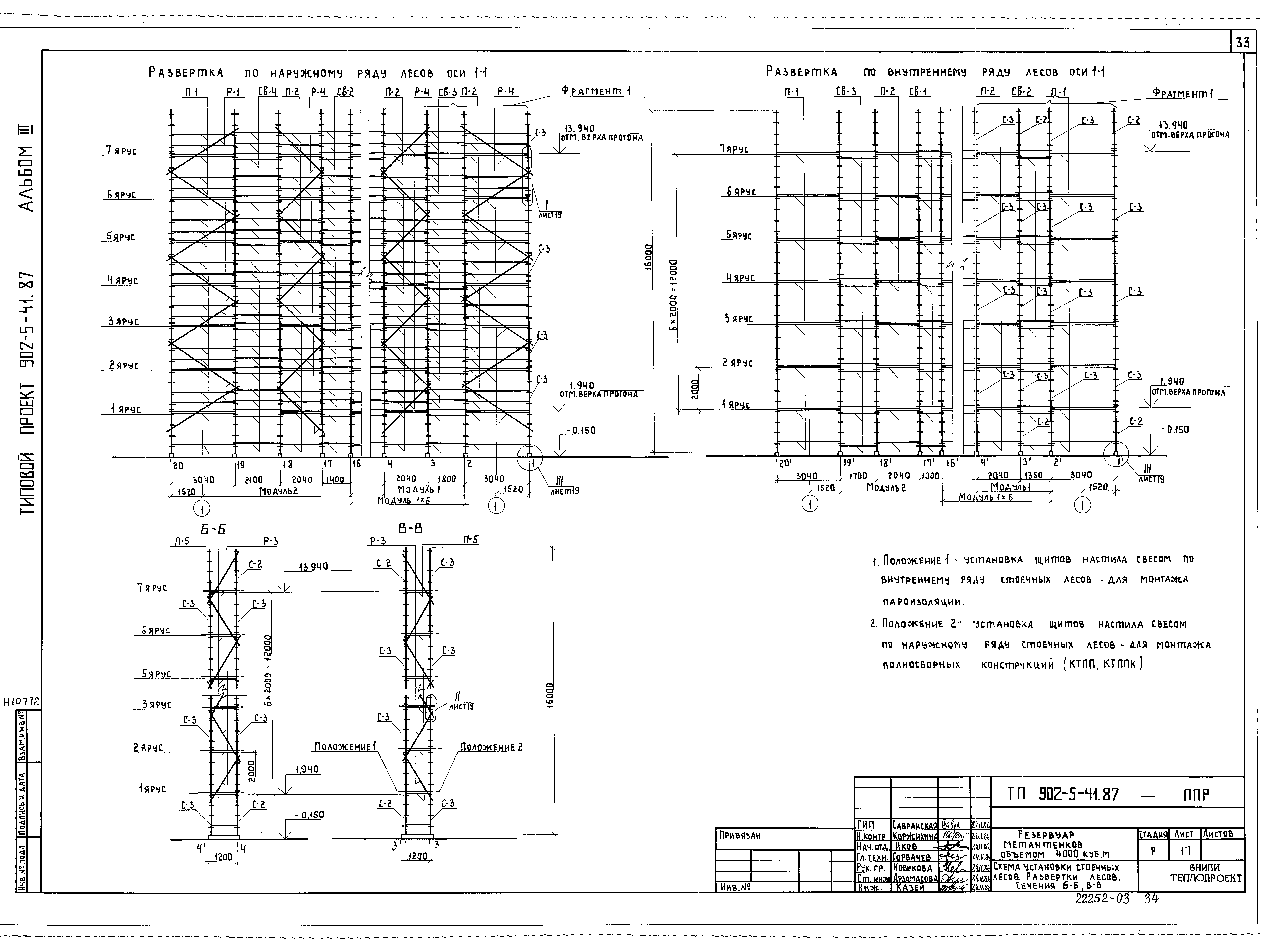
ТП 902-5-41.87-ППР Схема установки стоечных лесов. Развертки лесов. Сечения Б-Б,В-В
ТП 902-5-41.87-ППР Схема установки стоечных лесов. Виды А-А,Г-Г. Разрезы Д-Д...Л-Л. Установки щитов
ТП 902-5-41.87-ППР Схема установки стоечных лесов. Узлы 1...3
ТП 902-5-41.87-ППР Строповка. Разрезы А-А,Б-Б
ТП 902-5-41.87-ППР Схема погрузки полносборных конструкций на автомашину
ТП 902-5-41.87-ППР График производства (начало)
ТП 902-5-41.87-ППР График производства (окончание)
ТП 902-5-41.87-ППР Калькуляция трудовых затрат (начало)
ТП 902-5-41.87-ППР Калькуляция трудовых затрат (продолжение)
ТП 902-5-41.87-ППР Калькуляция трудовых затрат (окончание)
ТП 902-5-41.87-ППРИ-01 Поддон для перевозки конструкций полносборных
ТП 902-5-41.87-ППРИ-02 Стяжка
ТП 902-5-41.87-ППРИ-03 Подкладка
ТП 902-5-41.87-ППРИ-04 Прогон П-5
ТП 902-5-41.87-ППРИ-05 Штырь
ТП 902-5-41.87-ППРИ-06 Балка
ТП 902-5-41.87-ППРИ-07 Доска бортовая ДН-1
ТП 902-5-41.87-ППРИ-08 Балка опорная
ТП 902-5-41.87-ППРИ-11 Балка консольная
ТП 902-5-41.87-ППРИ-12 Скоба
ТП 902-5-41.87-ППРИ-13 Вставка
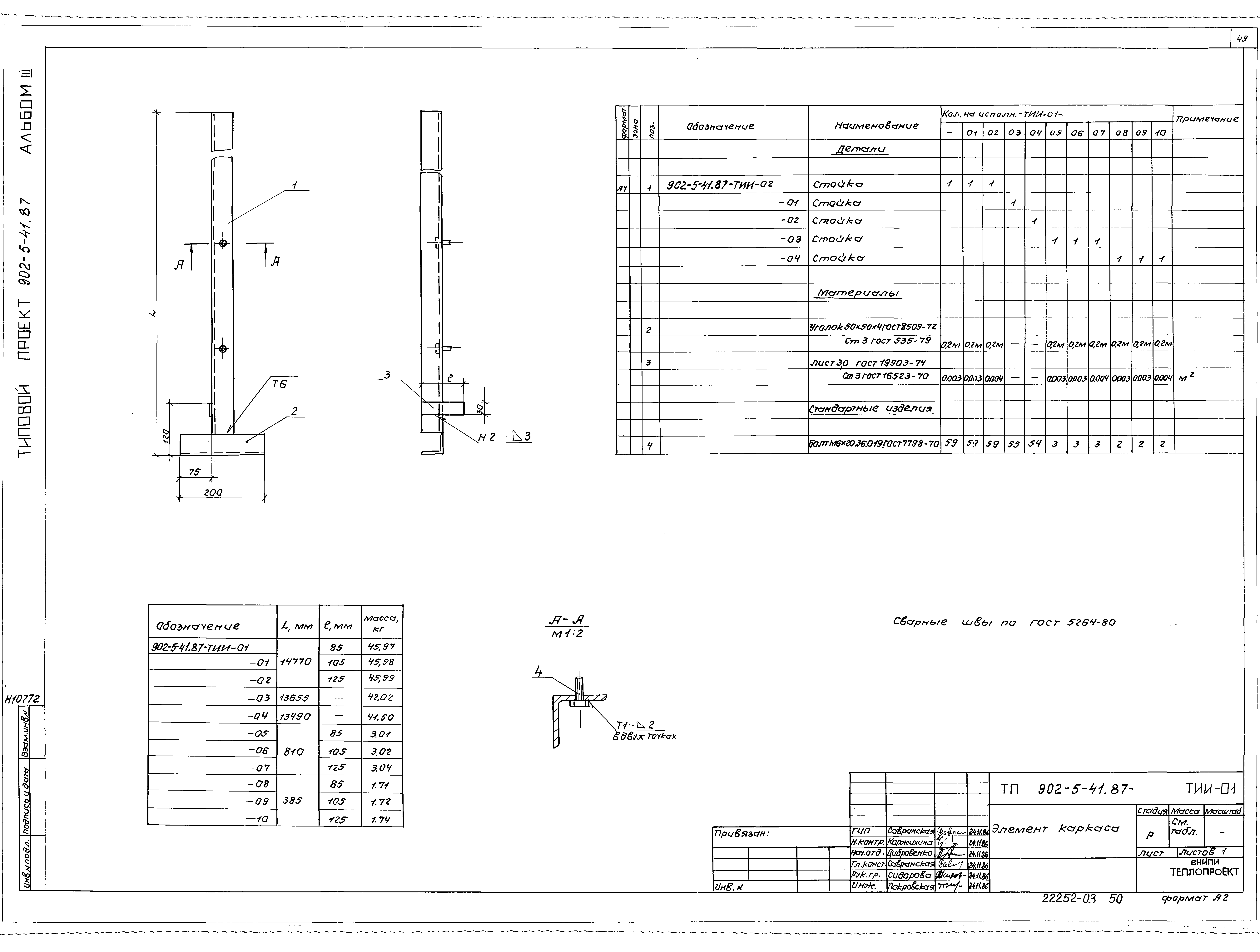
ТП 902-5-41.87-ТИИ-01 Элемент каркаса
ТП 902-5-41.87-ТИИ-02 Стойка
ТП 902-5-41.87-ТИИ-03 Поперечина
ТП 902-5-41.87-ТИИ-04 Штырь
ТП 902-5-41.87-ТИИ-05 Диафрагма
ТП 902-5-41.87-ТИИ-06 Элемент опоры
ТП 902-5-41.87-ТИИ-07 Упор
ТП 902-5-41.87-ТИИ-08 Элемент бандажа
ТП 902-5-41.87-ТИИ-09 Кляммера
ТП 902-5-41.87-ТИИ-10 Элемент бандажа каркаса
ТП 902-5-41.87-ТИИ-11 Подвеска
ТП 902-5-41.87-ТИИ-12 Накладка
ТП 902-5-41.87-ТИИ-13 Основание
ТП 902-5-41.87-ТИИ-14 Элемент кольца
ТП 902-5-41.87-ТИИ-15 Планка со штырями
ТП 902-5-41.87-ТИИ-16 Полуобод
ТП 902-5-41.87-ТИИ-17 Элемент обода
ТП 902-5-41.87-ТИИ-18 Накладка
ТП 902-5-41.87-ТИИ-19 Накладка
ТП 902-5-41.87-ТИИ-20 Накладка
ТП 902-5-41.87-ТИИ-21 Накладка
ТП 902-5-41.87-ТИИ-22 Диафрагма
Разработан: ВНИПИТеплопроект
Утверждён:13.05.1987 МЖКХ РСФСР (5-тд)
Расположен в:Техническая документация Строительство Справочные документы Типовые строительные конструкции, изделия и узлы Общероссийский строительный каталог Промышленные предприятия, здания и сооружения Здания и сооружения санитарно-технические Канализация Сооружения для очистки производственных сточных вод Сооружения для обработки осадка
Типовой проект 902-5-41.87Типовой проект 902-5-41.87Типовой проект 902-5-41.87Типовой проект 902-5-41.87Типовой проект 902-5-41.87Типовой проект 902-5-41.87Типовой проект 902-5-41.87Типовой проект 902-5-41.87Типовой проект 902-5-41.87Типовой проект 902-5-41.87Типовой проект 902-5-41.87Типовой проект 902-5-41.87Типовой проект 902-5-41.87Типовой проект 902-5-41.87Типовой проект 902-5-41.87Типовой проект 902-5-41.87Типовой проект 902-5-41.87Типовой проект 902-5-41.87Типовой проект 902-5-41.87Типовой проект 902-5-41.87Типовой проект 902-5-41.87Типовой проект 902-5-41.87Типовой проект 902-5-41.87Типовой проект 902-5-41.87Типовой проект 902-5-41.87Типовой проект 902-5-41.87Типовой проект 902-5-41.87Типовой проект 902-5-41.87Типовой проект 902-5-41.87Типовой проект 902-5-41.87Типовой проект 902-5-41.87Типовой проект 902-5-41.87Типовой проект 902-5-41.87Типовой проект 902-5-41.87Типовой проект 902-5-41.87Типовой проект 902-5-41.87Типовой проект 902-5-41.87Типовой проект 902-5-41.87Типовой проект 902-5-41.87Типовой проект 902-5-41.87Типовой проект 902-5-41.87Типовой проект 902-5-41.87Типовой проект 902-5-41.87Типовой проект 902-5-41.87Типовой проект 902-5-41.87Типовой проект 902-5-41.87Типовой проект 902-5-41.87Типовой проект 902-5-41.87Типовой проект 902-5-41.87Типовой проект 902-5-41.87Типовой проект 902-5-41.87Типовой проект 902-5-41.87Типовой проект 902-5-41.87Типовой проект 902-5-41.87Типовой проект 902-5-41.87Типовой проект 902-5-41.87Типовой проект 902-5-41.87Типовой проект 902-5-41.87

© 2013 Ёшкин Кот :-) Карта сайта