Информационная система
«Ёшкин Кот»

Скачать базу одним архивом
Скачать обновления
История создания базы
Карта сайта

Скачать Серия 1.432-4 Выпуск 1. Материалы для проектирования

Дата актуализации: 10.08.2017

Серия 1.432-4

Выпуск 1. Материалы для проектирования

Обозначение: Серия 1.432-4
Обозначение англ: Series 1.432-4
Статус:не действует
Название рус.:Выпуск 1. Материалы для проектирования
Дата добавления в базу:01.09.2013
Дата актуализации:05.05.2017
Дата введения:01.12.1977
Область применения:Данный выпуск содержит материалы для проектирования панельных стен холодильников, а именно: примеры решения фасадов с применением вертикальных и горизонтальных панелей, схемы раскладки панелей в одноэтажных и многоэтажных зданиях, детали крепления панелей к конструкциям каркаса, расчетные данные для вертикальных и горизонтальных цокольных панелей, таблицы для определения толщины теплоизоляции панелей и номенклатуру панелей
Оглавление:1.432-4 Пояснительная записка
1.432-4 Номенклатура вертикальных панелей и расход материалов
1.432-4 Номенклатура горизонтальных панелей и расход материалов
1.432-4 Номенклатура блоков для углов здания и расход материалов
1.432-4 Таблица требуемых сопротивлений теплопередаче Rо (в степени тр) для стен холодильников
1.432-4 Толщины теплоизоляции в стенах с вертикальными панелями
1.432-4 Толщины теплоизоляции в стенах с вертикальными панелями (при φ=85%)
1.432-4 Толщины теплоизоляции в стенах с вертикальными панелями (при φ=90%)
1.432-4 Таблица расчетных данных
1.432-4 Схема производственного холодильника. Примеры решения фасадов
1.432-4 Схема производственного холодильника. Пример решения фасадов
1.432-4 Детали сопряжения стен
1.432-4 Деталь теплоизоляции элементов крепления
1.432-4 Схемы раскладки вертикальных панелей
1.432-4 Схемы раскладки панелей в стенах
1.432-4 Схемы раскладки панелей в одноэтажных зданиях при высотах Н=3.6 и 4.8 м
1.432-4 Схемы раскладки панелей в одноэтажном здании при высоте Н=6.0 м
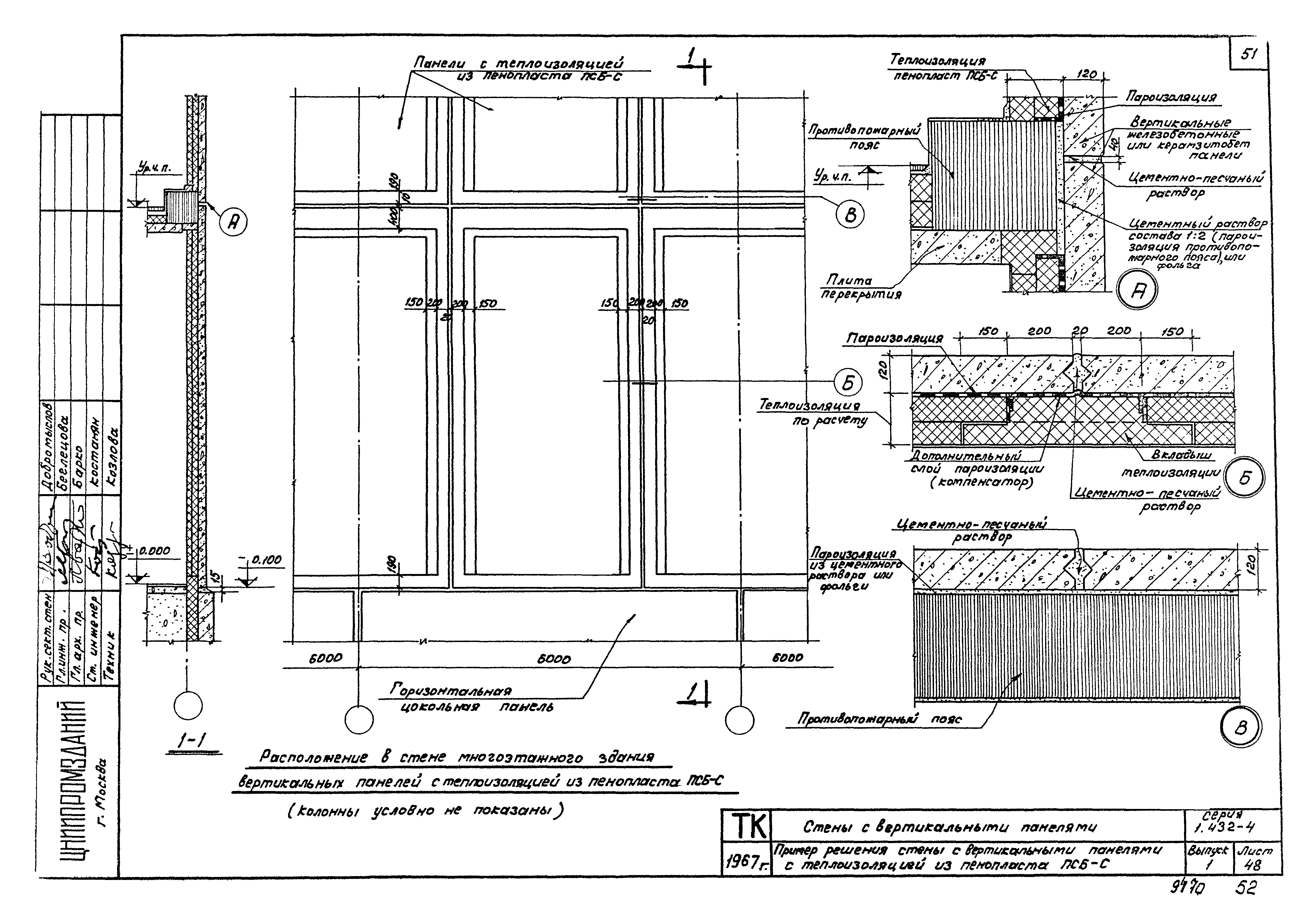
1.432-4 Схемы раскладки панелей в многоэтажном здании при безбалочных перекрытиях и высотах этажей Н=4.8 и 6.0 м
1.432-4 Схемы раскладки панелей в многоэтажном здании при безбалочных перекрытиях (при полукапителях) и высотах этажей Н=4.8 и 6.0 м
1.432-4 Схемы раскладки панелей в многоэтажном здании при конструкциях каркаса по серии 20 и высотах этажей 4.8 и 6.0 м
1.432-4 Примеры решения углов здания при вертикальных панелях
1.432-4 Схемы раскладки горизонтальных панелей
1.432-4 Схемы раскладки панелей в одноэтажных зданиях при высотах Н=4.8 м и 6.0 м
1.432-4 Схемы раскладки панелей в многоэтажном здании при конструкции каркаса по серии ИИ20 и высотах этажей Н=4.8
1.432-4 Схемы раскладки панелей в многоэтажном здании при конструкции каркаса по серии ИИ20 и высотах этажей Н=6.0
1.432-4 Примеры решения углов здания при горизонтальных панелях
1.432-4 Детали стен и их крепления
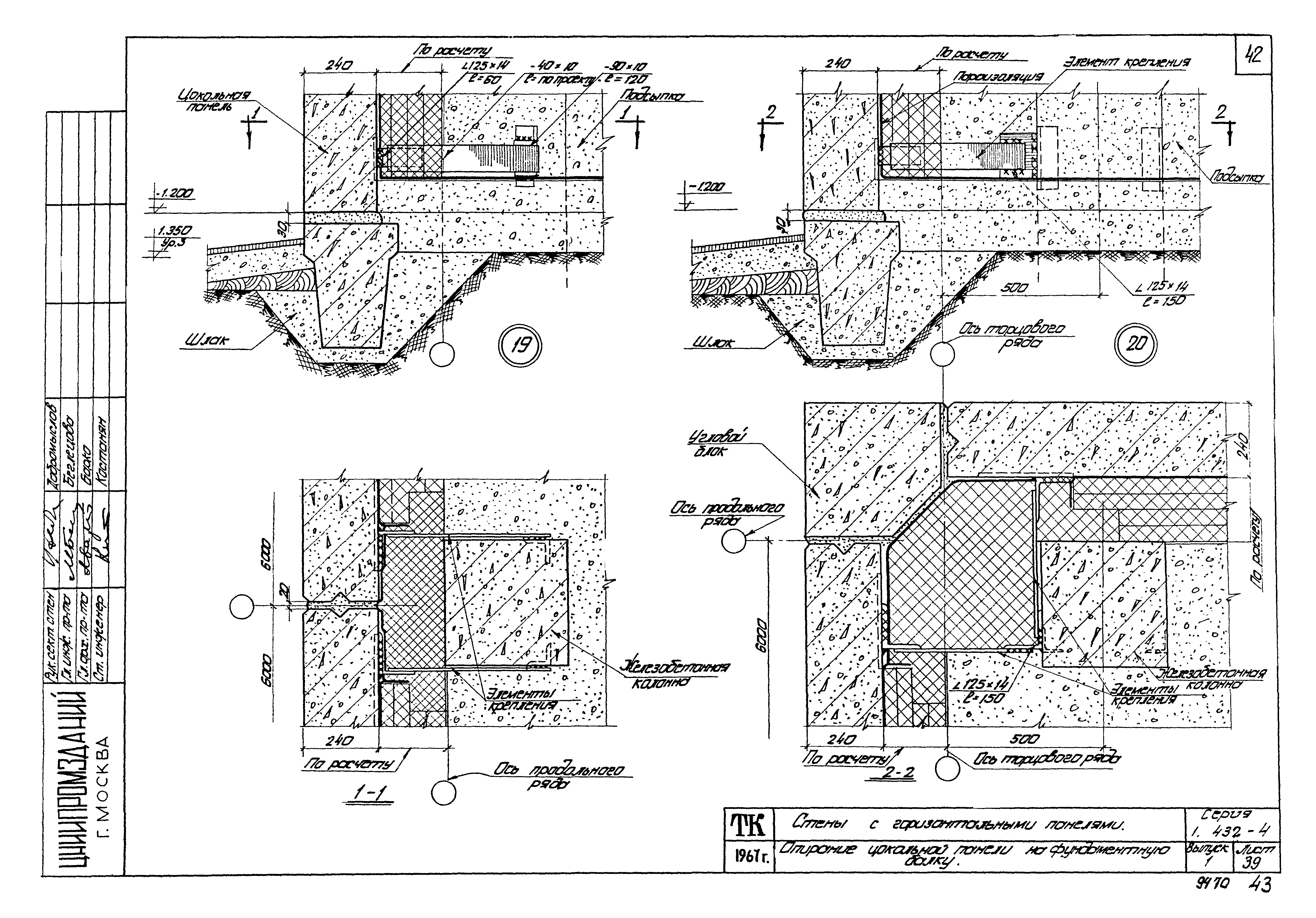
1.432-4 Крепление цокольной панели к колоннам каркаса и опирание ее на фундаментную балку
1.432-4 Крепление цокольной панели к колоннам каркаса и опирание ее на фундаментную балку при наличии платформы
1.432-4 Крепление цокольной панели к колоннам каркаса
1.432-4 Крепление вертикальной панели к цокольной
1.432-4 Крепление вертикальных панелей и карнизных плит одноэтажного здания к плите покрытия
1.432-4 Крепление вертикальных панелей в многоэтажных зданиях с безбалочными конструкциями к плите перекрытия
1.432-4 Крепление вертикальных панелей и карнизных плит многоэтажного здания с безбалочными конструкциями к плите покрытия
1.432-4 Крепление вертикальных панелей многоэтажного здания с конструкциями каркаса по серии ИИ20
1.432-4 Опирание цокольной панели на фундаментную балку
1.432-4 Опирание цокольной панели к колоннам каркаса
1.432-4 Опирание горизонтальных панелей к колоннам каркаса
1.432-4 Опирание горизонтальных панелей и карнизных плит одноэтажного здания к конструкциям покрытия
1.432-4 Опирание горизонтальных панелей и карнизных плит многоэтажного здания к конструкциям покрытия
1.432-4 План карнизных плит в одноэтажном здании с вертикальными панелями
1.432-4 План карнизных плит в многоэтажном здании с вертикальными панелями
1.432-4 План карнизных плит в одноэтажном и многоэтажном зданиях с горизонтальными панелями
1.432-4 Пример решения с вертикальными панелями с теплоизоляцией из пенопласта ПСБ-С
1.432-4 Вертикальная панель с теплоизоляцией из пенопласта ПСБ-С
1.432-4 Пример крепления теплоизоляции из минераловатных плит в панели (с применением уголка МС-3)
1.432-4 Пример крепления теплоизоляции из минераловатных плит в панели (с применением деревянной бобышки)
1.432-4 Деревянный каркас для крепления теплоизоляции
1.432-4 Узлы 1,2 и 3
1.432-4 Пример решения стены с горизонтальными панелями с теплоизоляцией из пенопласта ПСБ-С
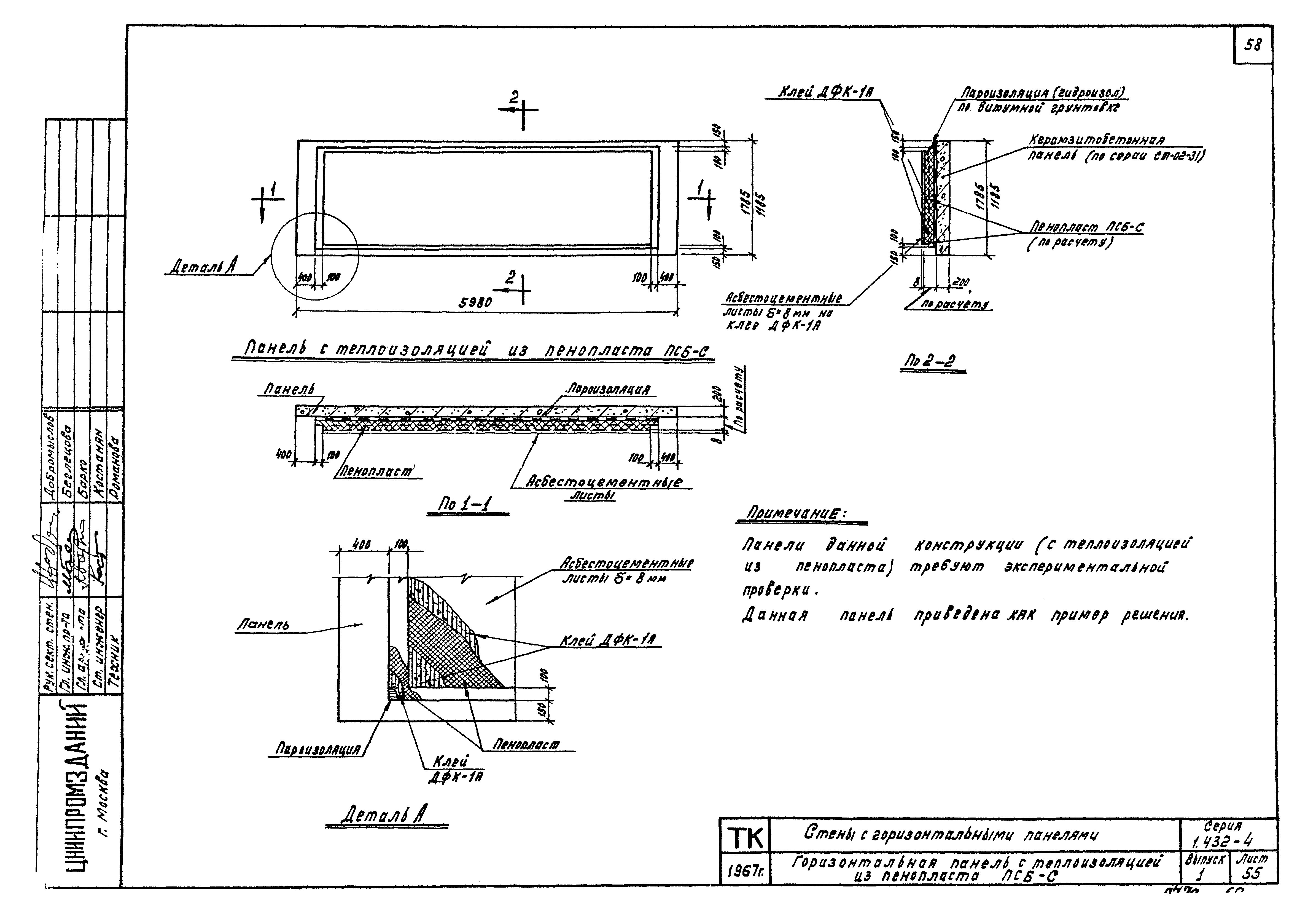
1.432-4 Горизонтальная панель с теплоизоляцией из пенопласта ПСБ-С
1.432-4 Конструкция швов между панелями
Разработан: ЦНИИпромзданий
Утверждён:28.09.1967 Госстрой СССР (Государственный комитет Совета Министров СССР по делам строительства) (USSR Gosstroy )
Расположен в:Техническая документация Строительство Справочные документы Типовые строительные конструкции, изделия и узлы Общероссийский строительный каталог Строительные конструкции, изделия и узлы зданий и сооружений для всех видов строительства Конструкции, изделия и узлы зданий Ограждающие конструкции Стены наружные Панели (бетонные и железобетонные)
Нормативные ссылки:
Серия 1.432-4Серия 1.432-4Серия 1.432-4Серия 1.432-4Серия 1.432-4Серия 1.432-4Серия 1.432-4Серия 1.432-4Серия 1.432-4Серия 1.432-4Серия 1.432-4Серия 1.432-4Серия 1.432-4Серия 1.432-4Серия 1.432-4Серия 1.432-4Серия 1.432-4Серия 1.432-4Серия 1.432-4Серия 1.432-4Серия 1.432-4Серия 1.432-4Серия 1.432-4Серия 1.432-4Серия 1.432-4Серия 1.432-4Серия 1.432-4Серия 1.432-4Серия 1.432-4Серия 1.432-4Серия 1.432-4Серия 1.432-4Серия 1.432-4Серия 1.432-4Серия 1.432-4Серия 1.432-4Серия 1.432-4Серия 1.432-4Серия 1.432-4Серия 1.432-4Серия 1.432-4Серия 1.432-4Серия 1.432-4Серия 1.432-4Серия 1.432-4Серия 1.432-4Серия 1.432-4Серия 1.432-4Серия 1.432-4Серия 1.432-4Серия 1.432-4Серия 1.432-4Серия 1.432-4Серия 1.432-4Серия 1.432-4Серия 1.432-4Серия 1.432-4Серия 1.432-4

© 2013 Ёшкин Кот :-) Карта сайта