Скачать Типовой проект 902-3-33.84 Альбом II. Технологическая, строительная части, нестандартизированное оборудованиеДата актуализации: 10.08.2017 Типовой проект 902-3-33.84
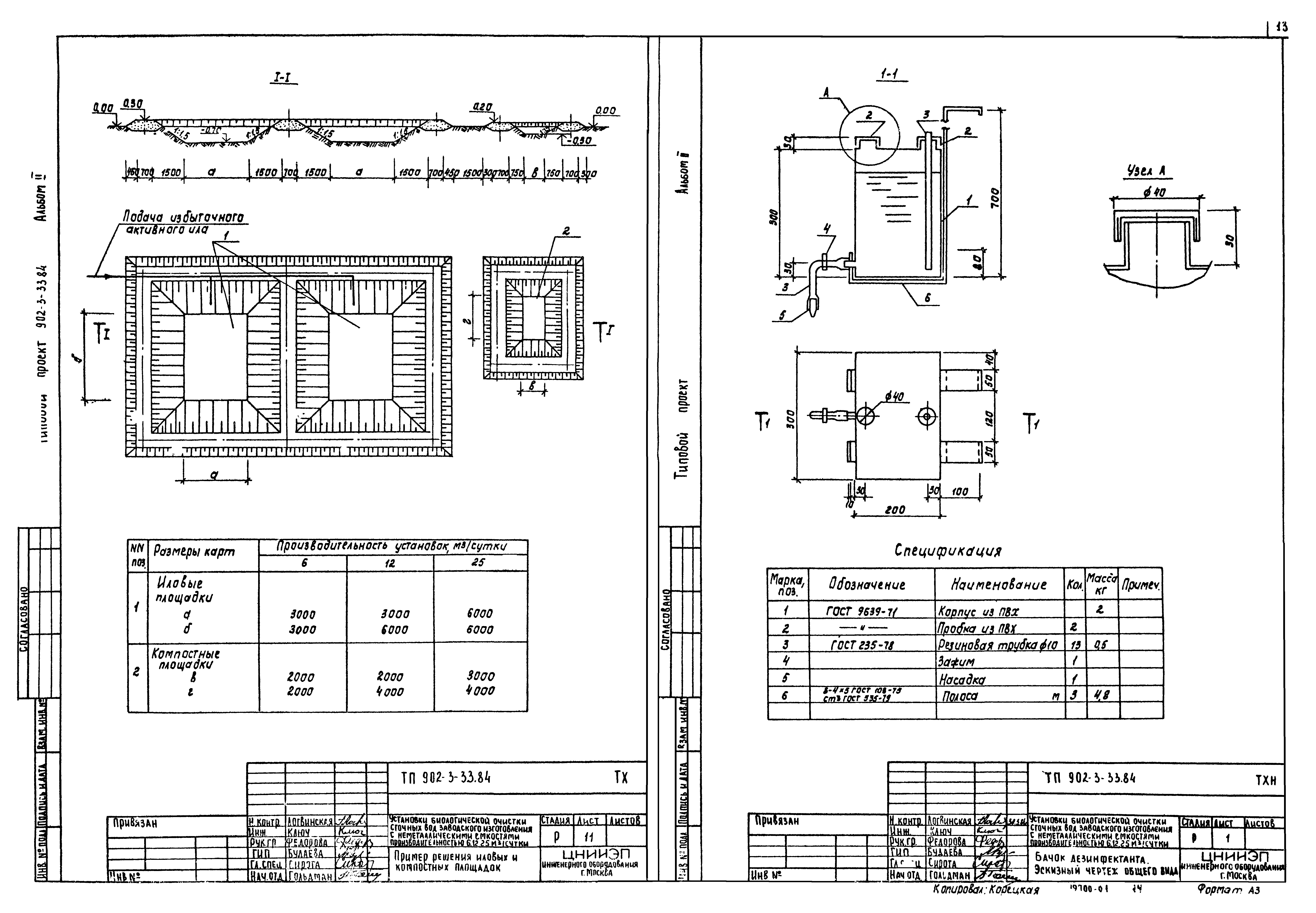
Альбом II. Технологическая, строительная части, нестандартизированное оборудованиеОбозначение: | Типовой проект 902-3-33.84 | Обозначение англ: | 902-3-33.84 | Статус: | не действует | Название рус.: | Альбом II. Технологическая, строительная части, нестандартизированное оборудование | Дата добавления в базу: | 01.09.2013 | Дата актуализации: | 05.05.2017 | Оглавление: | ТП 902-3-33.84 Содержание альбома ТП 902-3-33.84-ТХ Технологическая часть ТП 902-3-33.84-ТХ-1 Общие данные ТП 902-3-33.84-ТХ-2 Схема расположения установок. Схемы использования и сброса очищенной воды. Резервуар очищенной воды ТП 902-3-33.84-ТХ-3 План с коммуникациями ТП 902-3-33.84-ТХ-4 Схемы движения воды ТП 902-3-33.84-ТХ-5 Аксонометрические схемы ТП 902-3-33.84-ТХ-6 Аксонометрические схемы ТП 902-3-33.84-ТХ-7 Аэротенк 1А. План. Разрезы 1-1,2-2. Схема щита перекрытия ТП 902-3-33.84-ТХ-8 Аэротенки 1В,1Г. Планы. Разрезы 1-1,2-2 ТП 902-3-33.84-ТХ-9 Отстойники ø1000,700 мм. Планы. Разрезы 1-1;2-2. Схема щита перекрытия ТП 902-3-33.84-ТХ-10 Отстойники ø1500мм. Контактные резервуары ø1000,700 мм. Планы. Разрезы 1-1;2-2. Схема щита перекрытия для отстойника ТП 902-3-33.84-ТХ-11 Пример решения иловых и компостных площадок ТП 902-3-33.84-ТХН-1 Бочок дезинфектанта. Эскизный чертеж общего вида ТП 902-3-33.84-ГП Строительная часть ТП 902-3-33.84-ГП-1 Генплан ТП 902-3-33.84-КЖ Конструкции железобетонные ТП 902-3-33.84-КЖ-1 Общие данные (начало) ТП 902-3-33.84-КЖ-2 Общие данные (продолжение) ТП 902-3-33.84-КЖ-3 Общие данные (окончание) ТП 902-3-33.84-КЖ-4 Аэротенки. Отстойники. Контактные резервуары ТП 902-3-33.84-КЖ-5 Детали ТП 902-3-33.84-КЖ-6 Спецификация элементов к сооружениям ТП 902-3-33.84 Нестандартизированное оборудование ТП 902-3-33.84 1312.01.000 Эжекторный аэратор. Эскизный чертеж общего вида 1312.01.000 ТП 902-3-33.84 1312.02.000 Центральная труба. Эскизный чертеж общего вида 1312.02.000 ТП 902-3-33.84 1312.03.000 Решетка. Эскизный чертеж общего вида 1312.03.000 | Разработан: | ЦНИИЭП инженерного оборудования
| Утверждён: | 26.10.1983 Госгражданстрой (Gosgrazhdanstroy 321)
| Издан: | ЦИТП Госстроя СССР (CITP, Gosstroy (USSR) 1984 г. )
| Расположен в: |
|
                       
|