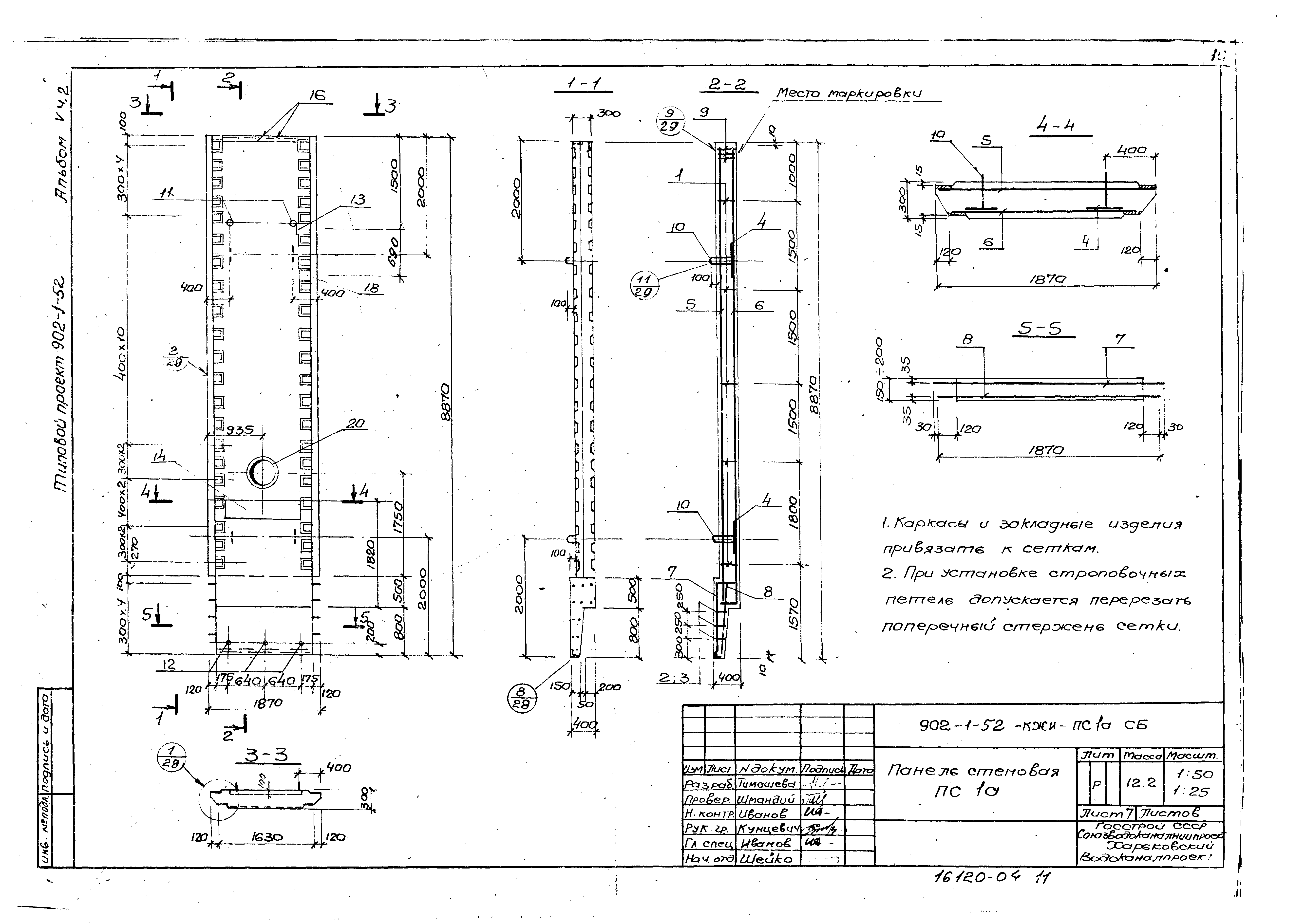
Скачать Типовой проект 902-1-52 Альбом V. Часть 2. Сборные железобетонные изделия (глубина заложения подводящего коллектора 7,0 м). Подземная частьДата актуализации: 10.08.2017 Типовой проект 902-1-52
Альбом V. Часть 2. Сборные железобетонные изделия (глубина заложения подводящего коллектора 7,0 м). Подземная частьОбозначение: | Типовой проект 902-1-52 | Обозначение англ: | 902-1-52 | Статус: | действует | Название рус.: | Альбом V. Часть 2. Сборные железобетонные изделия (глубина заложения подводящего коллектора 7,0 м). Подземная часть | Дата добавления в базу: | 01.09.2013 | Дата актуализации: | 05.05.2017 | Дата введения: | 15.05.1979 | Разработан: | Харьковский Водоканалпроект
| Утверждён: | 22.12.1978 Союзводоканалпроект (Soyuzvodokanalproject 96)
| Расположен в: |
|
                                                                                       
|