Скачать Типовой проект 902-2-385.85 Альбом II. Технологическая и электротехническая части. Отопление и вентиляцияДата актуализации: 10.08.2017 Типовой проект 902-2-385.85
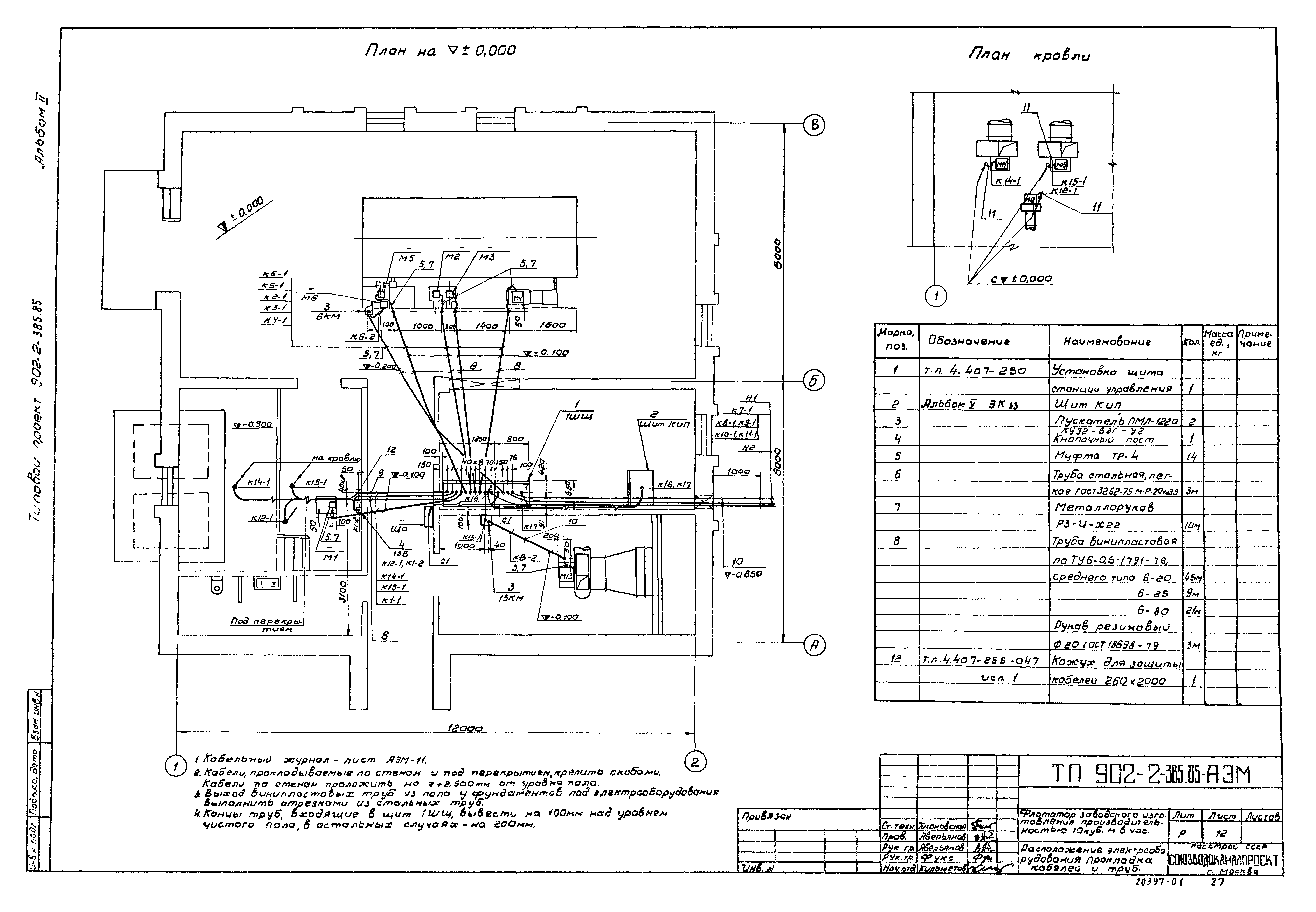
Альбом II. Технологическая и электротехническая части. Отопление и вентиляцияОбозначение: | Типовой проект 902-2-385.85 | Обозначение англ: | 902-2-385.85 | Статус: | действует | Название рус.: | Альбом II. Технологическая и электротехническая части. Отопление и вентиляция | Дата добавления в базу: | 01.09.2013 | Дата актуализации: | 05.05.2017 | Оглавление: | ТП 902-2-385.85 Титульный лист ТП 902-2-385.85 Содержание альбома ТП 902-2-385.85-НК Технологическая часть ТП 902-2-385.85-НК-1 Общие данные. Примерное решение генерального плана ТП 902-2-385.85-НК-2 Размещение элементов флотационной установки по технологической схеме ТП 902-2-385.85-НК-3,8 Монтажный чертеж. План ТП 902-2-385.85-НК-4,9 Монтажный чертеж. Разрезы А-А,Б-Б ТП 902-2-385.85-НК-5,10 Монтажный чертеж. Разрезы 8-8;Г-Г, узлы, площадка передвижная ТП 902-2-385.85-НК-6,11 Монтажный чертеж. Разрезы Ж-Ж,И-И,К-К. Узлы ТП 902-2-385.85-НК-7,12 Монтажный чертеж. Спецификация ТП 902-2-385.85-АЭМ Электротехническая часть ТП 902-2-385.85-АЭМ Электрооборудование и автоматика ТП 902-2-385.85-АЭМ-1 Общие данные ТП 902-2-385.85-АЭМ-2 Схема принципиальная однолинейная сет 380/220 В ТП 902-2-385.85-АЭМ-3 Схемы принципиальные управления насосами нейтрализации стоков № 1 и вытяжным вентилятором М12 ТП 902-2-385.85-АЭМ-4 Схема принципиальная управления насосами подачи коагулянта М2, флокулянта М3, рециркуляционным насосом М4, скребком М5 ТП 902-2-385.85-АЭМ-5 Схема принципиальная управления насосом подачи очищенных стоков на доочистку М7 ТП 902-2-385.85-АЭМ-6 Схема принципиальная управления насосом подачи очищенных стоков на флотатор М8(М9) ТП 902-2-385.85-АЭМ-7 Схема принципиальная управления вытяжными вентиляторами системы В-1,М-14 и М-15 ТП 902-2-385.85-АЭМ-8 Схема принципиальная управления вытяжными вентиляторами системы В-1,М-14 и М-16 ТП 902-2-385.85-АЭМ-9 Схема принципиальная сигнализации ТП 902-2-385.85-АЭМ-10 Схемы подключения электрооборудования ТП 902-2-385.85-АЭМ-11 Кабельный журнал ТП 902-2-385.85-АЭМ-12 Расположение электрооборудования. Прокладка кабелей и труб (произв. 10 куб м в час) ТП 902-2-385.85-АЭМ-13 Расположение электрооборудования. Прокладка кабелей и труб (произв. 20 куб м в час) ТП 902-2-385.85-АЭМ-14 Электроосвещение ТП 902-2-385.85-ЭК Технологический контроль ТП 902-2-385.85-ЭК-1 Общие данные ТП 902-2-385.85-ЭК-2 Схема принципиальная технологического контроля ТП 902-2-385.85-ЭК-3 Схема электрическая принципиальная питания приборов ТП 902-2-385.85-ЭК-4 Схема внешних проводок расположения оборудования, прокладка кабелей и труб ТП 902-2-385.85-ОВ Отопление и вентиляция ТП 902-2-385.85-ОВ-1 Общие данные ТП 902-2-385.85-ОВ-2 План, разрез, схемы отопления и вентиляции ТП 902-2-385.85-ОВ-3 Приточная П1 и вытяжные В1,В2 установки, узлы ввода №1,2 ТП 902-2-385.85-ОВ-4 Спецификация отопительно-вентиляционных установок (начало) ТП 902-2-385.85-ОВ-5 Спецификация отопительно-вентиляционных установок (окончание) ТП 902-2-385.85-ОВН-1,2,3 Эскизные чертежи общих видов нетиповых конструкций марки ОВН | Разработан: | Союзводоканалпроект
| Утверждён: | 28.12.1984 Госстрой СССР (Государственный комитет Совета Министров СССР по делам строительства) (USSR Gosstroy 40)
| Издан: | ЦИТП Госстроя СССР (CITP, Gosstroy (USSR) 1985 г. )
| Расположен в: |
|
                                      
|