Информационная система
«Ёшкин Кот»

Скачать базу одним архивом
Скачать обновления
История создания базы
Карта сайта

Скачать Типовой проект 904-1-51 Альбом 3. Автоматизация и КИП. Чертежи

Дата актуализации: 10.08.2017

Типовой проект 904-1-51

Альбом 3. Автоматизация и КИП. Чертежи

Обозначение: Типовой проект 904-1-51
Обозначение англ: 904-1-51
Статус:действует
Название рус.:Альбом 3. Автоматизация и КИП. Чертежи
Дата добавления в базу:01.09.2013
Дата актуализации:05.05.2017
Дата введения:01.05.1982
Оглавление:ТП 904-1-51 Содержание альбома
ТП 904-1-51-А-1 Общие данные
ТП 904-1-51-А-2 Общие данные
ТП 904-1-51-А-3 Общие данные
ТП 904-1-51-А-4 Общие данные
ТП 904-1-51-А-5 Общие данные
ТП 904-1-51-А-6 Общие данные
ТП 904-1-51-А-7 Общие данные
ТП 904-1-51-А-8 Общие данные
ТП 904-1-51-А-9 Общие данные
ТП 904-1-51-А-10 Общие данные
ТП 904-1-51-А-11 Общие данные
ТП 904-1-51-А-12 Компрессор № 1. Воздушный тракт. Функциональная схема автоматизации
ТП 904-1-51-А-13 Компрессор № 1. Система водопроводов и маслопроводов. Функциональная схема автоматизации
ТП 904-1-51-А-14 Компрессорная станция. Функциональная схема автоматизации
ТП 904-1-51-А-15 Компрессор № 1. Принципиальная электрическая схема питания
ТП 904-1-51-А-16 Компрессорная станция. Принципиальная электрическая схема питания
ТП 904-1-51-А-17 Компрессор № 1. Принципиальная электрическая схема управления, регулирования и сигнализации
ТП 904-1-51-А-18 Компрессор № 1. Принципиальная электрическая схема управления, регулирования и сигнализации
ТП 904-1-51-А-19 Компрессор № 1. Принципиальная электрическая схема управления, регулирования и сигнализации
ТП 904-1-51-А-20 Компрессор № 1. Принципиальная электрическая схема управления, регулирования и сигнализации
ТП 904-1-51-А-21 Компрессор № 1. Принципиальная электрическая схема управления, регулирования и сигнализации
ТП 904-1-51-А-22 Компрессор № 1. Принципиальная электрическая схема теплового контроля
ТП 904-1-51-А-23 Компрессор № 1. Принципиальная электрическая схема теплового контроля
ТП 904-1-51-А-24 Компрессор № 1. Принципиальная электрическая схема теплового контроля
ТП 904-1-51-А-25 Компрессор № 1. Принципиальная электрическая схема сигнализации по давлению
ТП 904-1-51-А-26 Компрессор № 1. Принципиальная электрическая схема сигнализации по температуре
ТП 904-1-51-А-27 Компрессорная станция. Принципиальная электрическая схема управления и регулирования
ТП 904-1-51-А-28 Компрессорная станция. Принципиальная электрическая схема управления и регулирования
ТП 904-1-51-А-29 Компрессор № 1. Схема внешних электрических и трубных проводок
ТП 904-1-51-А-30 Компрессор № 1. Схема внешних электрических и трубных проводок
ТП 904-1-51-А-31 Компрессорная станция. Схема внешних электрических и трубных проводок
ТП 904-1-51-А-32 Компрессор № 1. Щит контроля, управления и регулирования ЩКУ. Схема подключения
ТП 904-1-51-А-33 Компрессорная станция центральный щит компрессорной. Панель 1. Схема подключения
ТП 904-1-51-А-34 Компрессорная станция. Центральный щит компрессорной. Панель 5. Схема подключения
ТП 904-1-51-А-35 Отопительные агрегаты. Функциональная схема автоматизации
ТП 904-1-51-А-36 Отопительные агрегаты. Функциональная схема автоматизации
ТП 904-1-51-А-37 Отопительные агрегаты. Принципиальная электрическая схема управления
ТП 904-1-51-А-38 Отопительные агрегаты. Схема внешних электрических и трубных проводок
ТП 904-1-51-А-39 Отопительные агрегаты. Схема внешних электрических и трубных проводок
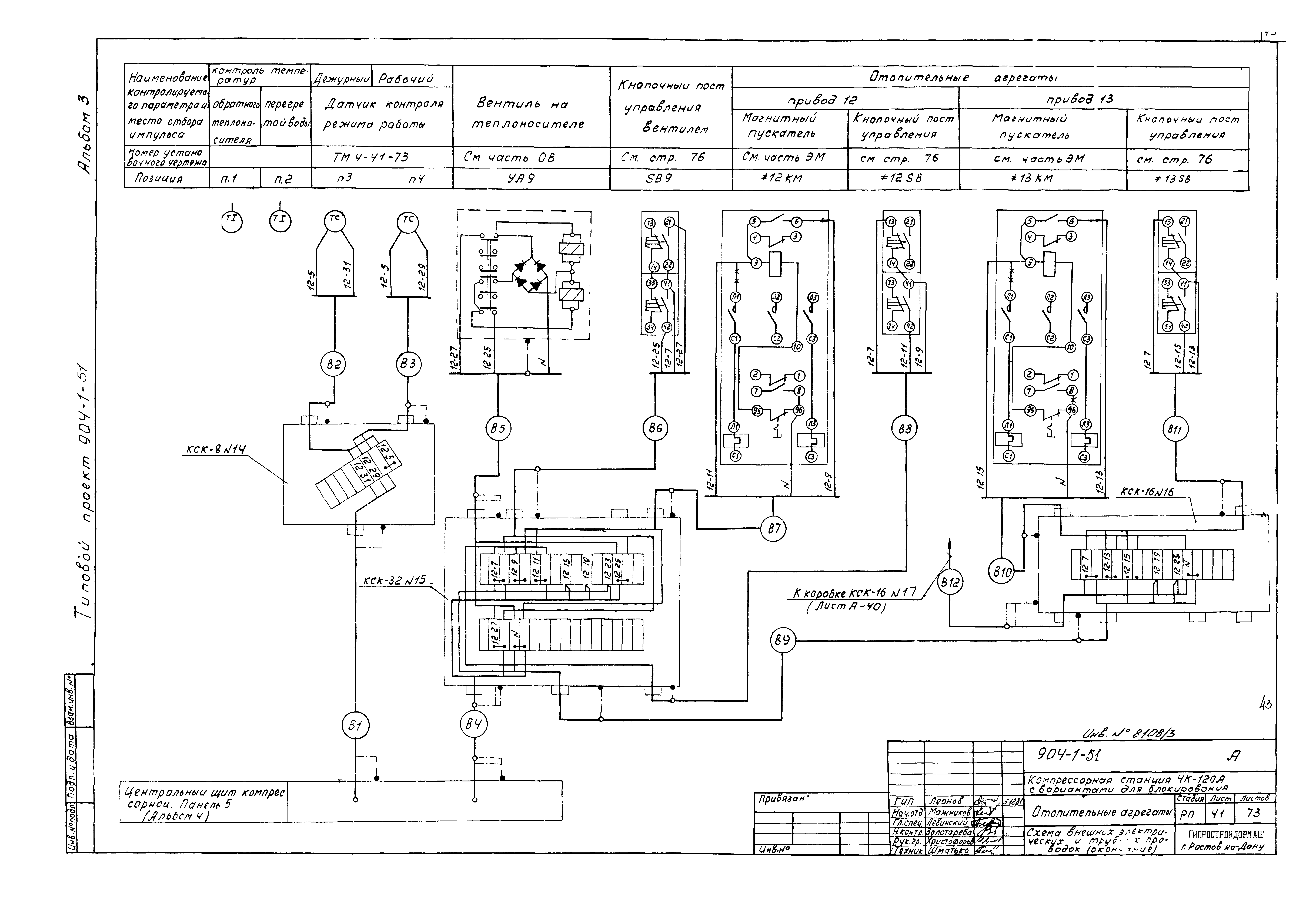
ТП 904-1-51-А-40 Отопительные агрегаты. Схема внешних электрических и трубных проводок
ТП 904-1-51-А-41 Отопительные агрегаты. Схема внешних электрических и трубных проводок
ТП 904-1-51-А-42 Компрессорная станция. Журнал кабельных проводок
ТП 904-1-51-А-43 Компрессорная станция. Журнал кабельных проводок
ТП 904-1-51-А-44 Компрессорная станция. Журнал кабельных проводок
ТП 904-1-51-А-45 Компрессорная станция. Журнал кабельных проводок
ТП 904-1-51-А-46 Компрессорная станция. Журнал кабельных проводок
ТП 904-1-51-А-47 Компрессорная станция. Журнал импульсных проводок
ТП 904-1-51-А-48 Отопительные агрегаты. Журнал кабельных проводок
ТП 904-1-51-А-49 Отопительные агрегаты. Журнал кабельных проводок
ТП 904-1-51-А-50 Компрессорная станция. План расположения средств автоматизации и проводок
ТП 904-1-51-А-51 Компрессорная станция. План расположения средств автоматизации и проводок
ТП 904-1-51-А-52 Компрессорная станция. План расположения средств автоматизации и проводок
ТП 904-1-51-А-53 Компрессорная станция. План расположения средств автоматизации и проводок
ТП 904-1-51-А-54 Компрессор №1. План расположения средств автоматизации и проводок
ТП 904-1-51-А-55 Вариант 1. План расположения средств автоматизации и проводок
ТП 904-1-51-А-56 Вариант 2. План расположения средств автоматизации и проводок
ТП 904-1-51 Насосная станция водопровода оборотной воды
ТП 904-1-51-А-57 Насосы охлажденной воды. Функциональная схема автоматизации
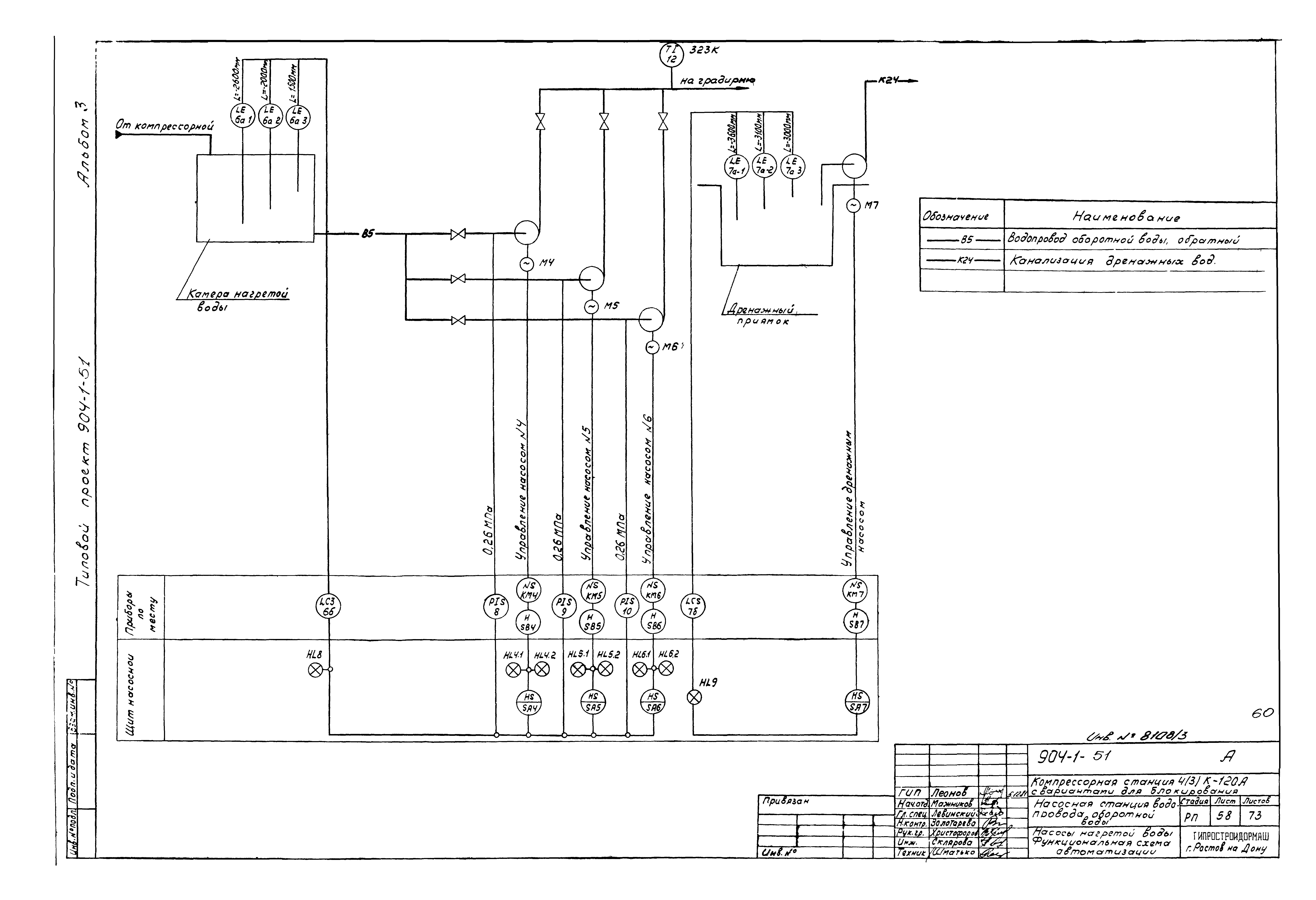
ТП 904-1-51-А-58 Насосы нагретой воды. Функциональная схема автоматизации
ТП 904-1-51-А-59 Принципиальная электрическая схема питания
ТП 904-1-51-А-60 Насосы охлажденной воды. Принципиальная электрическая схема управления
ТП 904-1-51-А-61 Насосы охлажденной воды. Принципиальная электрическая схема управления
ТП 904-1-51-А-62 Насосы нагретой воды. Принципиальная электрическая схема управления
ТП 904-1-51-А-63 Насосы нагретой воды. Принципиальная электрическая схема управления
ТП 904-1-51-А-64 Принципиальная электрическая схема аварийной сигнализации
ТП 904-1-51-А-65 Схема внешних электрических и трубных проводок
ТП 904-1-51-А-66 Схема внешних электрических и трубных проводок
ТП 904-1-51-А-67 Схема внешних электрических и трубных проводок
ТП 904-1-51-А-68 Схема внешних электрических и трубных проводок
ТП 904-1-51-А-69 Щит насосной. Схема подключения
ТП 904-1-51-А-70 Журнал кабельных проводок
ТП 904-1-51-А-71 Журнал кабельных проводок
ТП 904-1-51-А-72 Журнал импульсных проводок
ТП 904-1-51-А-73 План расположения средств автоматизации и проводок
ТП 904-1-51-01.000 Установка датчиков ЭРСУ-3 в камерах нагретой и охлажденной воды
ТП 904-1-51-02.000 Установка звонка типа 3ВП-220
ТП 904-1-51-03.000 Установка кнопочных постов управления ПКЕ 722-2
ТП 904-1-51-01.000 СБ Установка датчиков ЭРСУ-3 в камерах нагретой и охлажденной воды. Сборочный чертеж
ТП 904-1-51-02.000 СБ Установка звонка типа 3ВП-220. Сборочный чертеж
ТП 904-1-51-03.000 СБ Установка кнопочных постов управления ПКЕ 722-2. Сборочный чертеж
Разработан: Гипростройдормаш
Утверждён:30.03.1982 Минстройдормаш (Minstroydormash 1/82)
Расположен в:Техническая документация Строительство Справочные документы Типовые строительные конструкции, изделия и узлы Общероссийский строительный каталог Промышленные предприятия, здания и сооружения Здания и сооружения санитарно-технические Воздухоснабжение, вентиляция и кондиционирование воздуха Воздухоснабжение
Типовой проект 904-1-51Типовой проект 904-1-51Типовой проект 904-1-51Типовой проект 904-1-51Типовой проект 904-1-51Типовой проект 904-1-51Типовой проект 904-1-51Типовой проект 904-1-51Типовой проект 904-1-51Типовой проект 904-1-51Типовой проект 904-1-51Типовой проект 904-1-51Типовой проект 904-1-51Типовой проект 904-1-51Типовой проект 904-1-51Типовой проект 904-1-51Типовой проект 904-1-51Типовой проект 904-1-51Типовой проект 904-1-51Типовой проект 904-1-51Типовой проект 904-1-51Типовой проект 904-1-51Типовой проект 904-1-51Типовой проект 904-1-51Типовой проект 904-1-51Типовой проект 904-1-51Типовой проект 904-1-51Типовой проект 904-1-51Типовой проект 904-1-51Типовой проект 904-1-51Типовой проект 904-1-51Типовой проект 904-1-51Типовой проект 904-1-51Типовой проект 904-1-51Типовой проект 904-1-51Типовой проект 904-1-51Типовой проект 904-1-51Типовой проект 904-1-51Типовой проект 904-1-51Типовой проект 904-1-51Типовой проект 904-1-51Типовой проект 904-1-51Типовой проект 904-1-51Типовой проект 904-1-51Типовой проект 904-1-51Типовой проект 904-1-51Типовой проект 904-1-51Типовой проект 904-1-51Типовой проект 904-1-51Типовой проект 904-1-51Типовой проект 904-1-51Типовой проект 904-1-51Типовой проект 904-1-51Типовой проект 904-1-51Типовой проект 904-1-51Типовой проект 904-1-51Типовой проект 904-1-51Типовой проект 904-1-51Типовой проект 904-1-51Типовой проект 904-1-51Типовой проект 904-1-51Типовой проект 904-1-51Типовой проект 904-1-51Типовой проект 904-1-51Типовой проект 904-1-51Типовой проект 904-1-51Типовой проект 904-1-51Типовой проект 904-1-51Типовой проект 904-1-51Типовой проект 904-1-51Типовой проект 904-1-51Типовой проект 904-1-51Типовой проект 904-1-51Типовой проект 904-1-51Типовой проект 904-1-51Типовой проект 904-1-51Типовой проект 904-1-51Типовой проект 904-1-51Типовой проект 904-1-51Типовой проект 904-1-51

© 2013 Ёшкин Кот :-) Карта сайта